DELFT
Oostsingel 183 - 2612 HL
هولندا

Jan Paul van Daal profile image
Jan Paul van Daal
Real estate agent
€6,250 p.m.
منطقة المعيشة
322m2
حجم الأرض
879m2
غرف النوم
5

الوصف

Stylish and spacious detached villa for rent near the center of Delft

Located on a green and quiet lane just nearby the charming center of Delft, this beautifully maintained and luxuriously finished detached villa offers a generous living space of 332 m².

The home features five spacious bedrooms, two modern bathrooms, and a fully basemented level — perfect for additional living, working, or hobby space.

The location is ideal: within walking distance of the Delftse Hout recreational area, various sports facilities, and both primary and secondary schools. The International School of The Hague is just a 20-minute drive away. In short: a unique combination of tranquility, space, and urban convenience.

Layout:

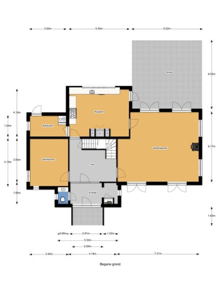
Ground floor:
Entrance with wardrobe and meter cupboard. Spacious hallway with access to the study (3.80 x 3.40 m). Guest toilet. Living room with elegant herringbone parquet flooring and fireplace. Multiple French doors provide access to the surrounding garden. Large open-plan Siematic kitchen (4.18 x 5.30 m) equipped with an American-style fridge/freezer, 6-burner gas hob with oven, extractor hood, dishwasher, and a separate combi microwave/oven. Utility room with washing machine and dryer connections. Sunny, generous terrace (6.05 x 6.22 m).

First floor:
Spacious landing with skylight. Large master bedroom with built-in wardrobes and adjoining luxurious bathroom featuring a whirlpool bathtub, walk-in shower, toilet, and double vanity. Rear-facing bedroom with dormer window. Two additional bedrooms (3.14 x 3.84 m and 3.50 x 3.84 m), both with dormer windows and playful loft spaces. Second bathroom with double washbasin and walk-in shower. Separate toilet with wall-mounted WC and washbasin.

Second floor:
Landing with storage. Spacious bedroom with Velux skylight.

Basement:
Large hallway. Toilet with washbasin. Gym with sauna and shower facilities. Multifunctional room with built-in cupboards. Storage area housing the boiler and heat pump (geothermal heating system).

Details:

High-quality finishes, mostly herringbone parquet flooring throughout;
Fully basemented;
Underfloor heating on all levels;
The house is fully furnished with curtains and light fixtures (not furnished with furniture);
Private parking on own premises (three spaces);
Rent is excluding utilities (gas, water, electricity) and municipal taxes;
Rent includes cleaning services, maintenance of technical installations, and garden maintenance;
Built in 2009;
The International School of The Hague is a 20-minute drive away;
Pets are not preferred; pets allowed only with landlord approval;
Minimum rental period: 2 years;
Energy label A;
A new international school will soon be opening in Delft.

الميزات الخاصة

Alarm system

الميزات

نقل الملكية
سعر الإيجار
€ 6.250 p.m.
الحالة
beschikbaar
القبول
in overleg
البناء
نوع المنزل
Villa
نوع المبنى
vrijstaande woning
فترة البناء
2009
تقييم الطاقة
A
نوع السقف
zadeldak
غرف النوم
5
الحمامات
2
المساحات السطحية والحجم
منطقة المعيشة
322 m2
مساحة داخلية أخرى
48 m2
المساحة الخارجية الملحقة بالمبنى
42 m2
الحجم بالأمتار المكعبة
1221 m3
حجم الأرض
879 m2
المرافق
Mechanische ventilatie
Alarminstallatie
Beschutte ligging
Baerz & Co Property Brochure

كتيب

فيديوهات

مخططات الطوابق

Van Daal Makelaardij

Voldersgracht 33
2611 ED Delft

janpaul@vandaalmakelaardij.nl
+31 (0)15 - 212 73 00

www.vandaalmakelaardij.nl

طلب معلومات / مشاهدة

Jan Paul van Daal profile image
Jan Paul van Daal
Real estate agent