SCHIMMERT
Op De Bies 29 b - 6333 BV
هولندا

Jos Toussaint profile image
Jos Toussaint
NVM Makelaar - RM/RT
€1,195,000 k.k.
مساحة المعيشة
395m2
حجم الأرض
1861m2
غرف نوم
4

الوصف

This beautiful detached villa with unobstructed views is located in a prime location on the outskirts of Schimmert!

This property has been finished with high-quality materials and is situated on a spacious plot of 1,861 m² with unobstructed views at the rear. The house has 4 (possibly 5 or even 6) bedrooms, 3 bathrooms, 28 solar panels, possibilities for working from home, two spacious indoor garages, and a large backyard with a swimming pool and much more... In short, this beautiful property is a must-see!

LAYOUT

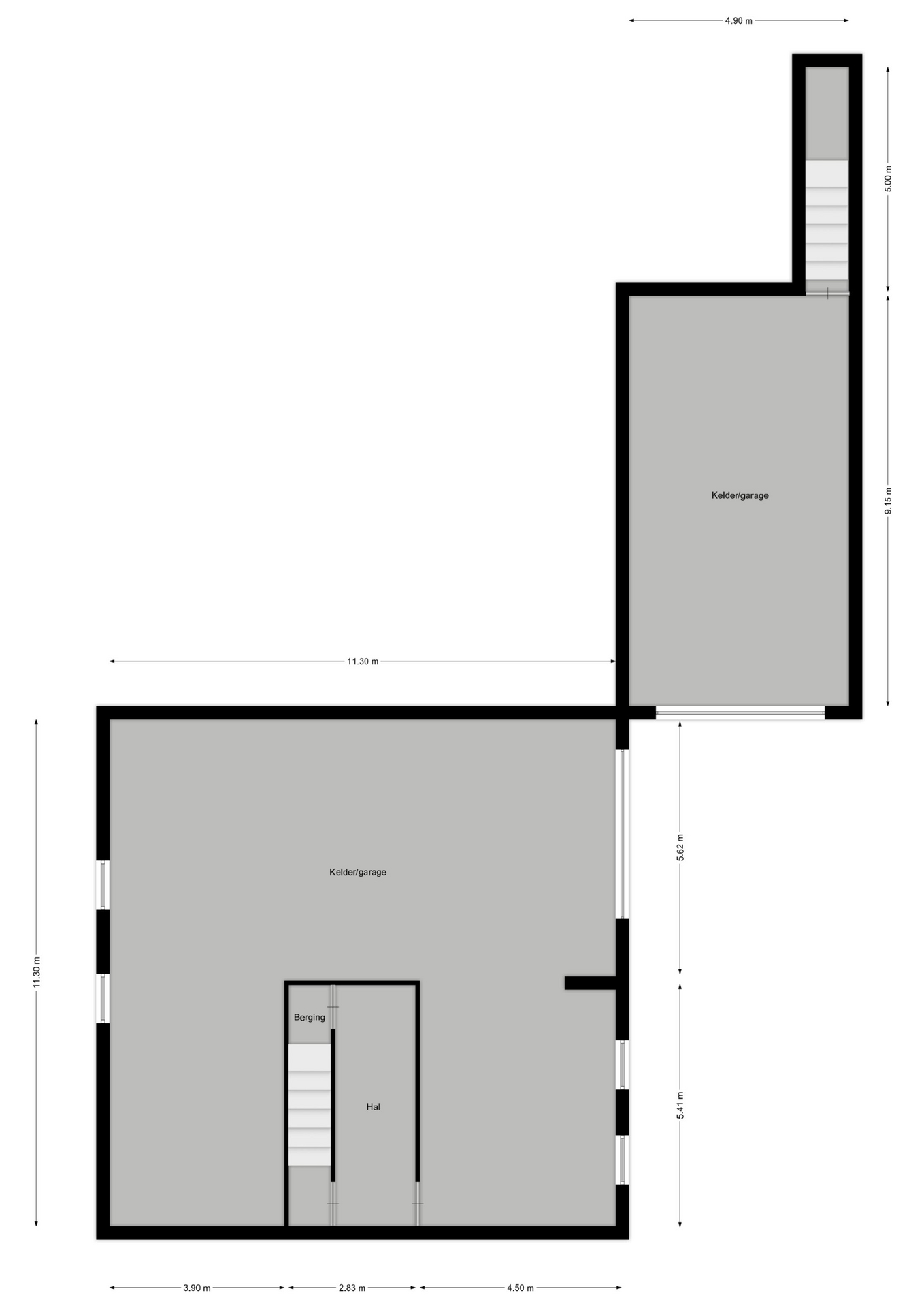
Basement:
The spacious driveway provides access to two garages (approx. 111 and 50 m²). The largest garage offers plenty of possibilities and provides indoor access to the house. The second garage provides access to the garden at the rear. This garage also houses the swimming pool equipment. In total, there is space for approx. 8 cars in the garages. Various vehicles can also be parked at the front of the house.

Ground floor:
The impressive entrance/hallway offers plenty of space and access to the meter cupboard, toilet, cloakroom, utility room, and office space (approx. 21m²), which could potentially be added to the living room. A modern pivot door leads to the living area. The spacious living room with adjoining open kitchen (approx. 73m² in total) exudes atmosphere and luxury thanks to its cozy interior and optimal garden view. There is also a practical air conditioning system and an attractive decorative gas fireplace. The kitchen with spacious cupboards and island is equipped with various built-in appliances and provides access to the utility room (approx. 11m²) behind it, which has a complete second kitchen. Adjacent to the living area is a multifunctional room, currently used as a TV room/game room (approx. 15m²). From here, you can also access an extra room with a shower, toilet, and access to the garden and the room currently used as a practice room. For extra comfort, the ground floor has underfloor heating.

First floor:
The stylish staircase leads to the spacious landing with an attractive loft and access to a laundry and ironing room, a bathroom, separate toilet, and three bedrooms. The laundry and ironing room (approx. 10m²) has modern furniture with a sink. The bathroom (approx. 7m²) has a shower and double sink. The bedrooms are approx. 29, 20, and 20 m² in size and all have air conditioning. The bedrooms are also located at the rear, so there is a beautiful view from every room. The master bedroom has an en-suite bathroom (approx. 13.5 m²) with a walk-in shower, bathtub, double sink, and toilet.

Second floor:
A fixed staircase leads to a landing with access to the walk-in closet, the boiler room, and the fourth bedroom with en-suite bathroom. The bedroom (approx. 29m²) has a practical dormer window and therefore offers a beautiful view of the garden. From the bedroom, there is open access to the third bathroom (13.5m²), which is equipped with a freestanding bathtub, double sink, walk-in shower, and toilet. The walk-in closet has custom-made cupboards on both sides.

Garden:
The house is centered on the plot, so the garden surrounds the house. This spacious backyard of approx. 1,575 m² has several (sun) terraces, a large lawn, and borders with green plants. Because of the forest plot behind it, this backyard gives a feeling of peace, space, and privacy. The backyard also features a heated swimming pool, a charming pond, and several (covered) seating areas. In this garden, you can enjoy optimal privacy and all the beauty that this wonderful environment and nature has to offer.

Further details:
- Beautiful villa built in 2007 with energy label A;
- Double garage in the basement (total approx. 161m²) suitable for parking approx. 8 vehicles;
- Located on a plot of 1,861m²;
- Possibility to work from home;
- Equipped with 28 solar panels;
- Equipped with 4 bedrooms (possibly more) and 3 bathrooms;
- The house is fully equipped with plastic window frames with HR++ glass and roof, cavity, and floor insulation;
- Partially equipped with underfloor heating;
- Equipped with roller shutters and awnings;
- Equipped with alarm system;
- Nice backyard with a swimming pool, pond, and back entrance;
- Close to various amenities and roads. Quiet location with green meadows and fields with various walking and cycling routes within walking distance;
- All measurements are indicative and no rights can be derived from them.

Surroundings:
Schimmert is a picturesque village located in the south of the Netherlands. It is situated in the province of Limburg, in the municipality of Beekdaelen. Schimmert is surrounded by a beautiful landscape of rolling hills, green meadows, and vast forests, making it an ideal destination for nature lovers and hikers. With its charming streets, traditional houses, and cozy atmosphere, the village exudes an authentic and rural ambiance. Schimmert also has a rich history dating back to Roman times, which can be seen in several historical sights, such as the Sint-Remigiuskerk church. In addition, the village is conveniently located near cities such as Maastricht and Valkenburg, making it an ideal base for exploring the region.

الميزات

حمام سباحة
ألواح شمسية
نظام إنذار
تكييف هواء
نقل الملكية
السعر المطلوب
€ 1.195.000 k.k.
الحالة
beschikbaar
القبول
in overleg
البناء
نوع المنزل
Villa
نوع المبنى
vrijstaande woning
فترة البناء
2007
تصنيف الطاقة
A
نوع السقف
schilddak
غرف نوم
4
حمامات
3
المساحات السطحية والحجم
مساحة المعيشة
395 m2
مساحة داخلية أخرى
161 m2
المساحة الخارجية الملحقة بالمبنى
25 m2
مساحة تخزين خارجية
26 m2
الحجم بالمتر المكعب
1891 m3
حجم الأرض
1861 m2
المرافق
Alarminstallatie
Rolluiken
Tv kabel
Buitenzonwering
Zwembad
Airconditioning
Rookkanaal
Schuifpui
Zonnepanelen
Vrij uitzicht
Landelijk gelegen
Baerz & Co Property Brochure

كتيب

مخططات الطوابق

Damen Makelaardij

Ambyerstraat-Noord 72
6225 EG Maastricht

j.toussaint@damen-og.nl
+31 433479090

www.damen-og.nl

طلب معلومات / مشاهدة

Jos Toussaint profile image
Jos Toussaint
NVM Makelaar - RM/RT