Herenhuis acheter in ROTTERDAM

ROTTERDAM Oudedijk 92 A - 3061 AM Pays-Bas


Xandra Bek profile image
Xandra Bek
Real Estate Agent
+31 653634909
xbek@vanherk.nl

Van Herk Makelaars Excellent
Oudehoofdplein 4
3011 TM Rotterdam
NETHERLANDS
+31 102581855
www.vanherk.nl/excellent/
excellent@vanherk.nl

Espace de vie
295m2
Superficie du terrain
158m2
Chambres à coucher
6

Description

PRACHTIG KARAKTERISTIEK HERENHUIS VAN 295 M² MET ENERGIELABEL B.

HET PAND IS ADMINISTRATIEF GESPLITST EN BESCHIKT OVER HUISNUMMERS A EN B, MET TWEE APARTE VOORDEUREN.

VERKOPER AAN HET WOORD
“In 2006 reed ik over de Oudedijk en viel mijn oog op de vrolijke witte balkons en de brede opgang van nr. 92, met daarboven een bord 'te koop'. Iets vertelde me dat dit de plek kon zijn voor mijn droom, een locatie om te wonen en te verbinden. Na de aankoop heb ik de vele ruime kamers ingericht als kantoor, en de woonkamer werd een levendige ontmoetingsplek voor creatieve oplossingen. Van live-muziek tot kunst en bijeenkomsten voor persoonlijke ontwikkeling en socratische cafés, dit pand heeft talloze mensen verbonden en geholpen op hun levenspad. Het is nu tijd om het door te geven, en ik ben ervan overtuigd dat de nieuwe bewoners hier net zoveel vreugde en woonplezier zullen ervaren. Aan de goede energie van het pand zal het niet liggen.”

EEN PAND VOL MOGELIJKHEDEN
Achter deze authentieke gevel schuilt een woning vol potentieel. Wil je wonen over vier verdiepingen met maar liefst 295 m² aan woonoppervlakte? Of overweeg je een splitsing in twee appartementen? Misschien zoek je een kantoor aan huis met een eigen entree? Aan de Oudedijk 92 zijn de mogelijkheden eindeloos.

UNIEKE WOONBELEVING
Dit herenhuis is met respect voor zijn geschiedenis onderhouden en beschikt over prachtig hoge plafonds en een schitterende voorgevel. Het is volledig geïsoleerd met vloer-, dak- en muurisolatie en voorzien van dubbel glas. Ondanks de moderne renovaties blijft het karakter behouden dankzij authentieke elementen. Binnenin vind je vijf slaapkamers, ruimte souterrain en twee badkamers, terwijl de voor- en achtertuin zorgen voor ultiem woongenot. Bovendien ligt het huis op een fantastische locatie. Wat wil je nog meer?

OMGEVING
Kralingen-West is een levendige en populaire buurt vol gezelligheid, nabij de Kralingse Plas en het Bos. De locatie is ideaal voor natuurliefhebbers die toch dicht bij alle voorzieningen willen wonen. In de buurt vind je diverse winkelstraten, zoals de Oudedijk, Lusthofstraat en Vlietlaan, met een enorme keuze aan gezellige restaurants, hippe boetiekjes en leuke delicatessenwinkels. De natuur is nooit ver weg, wat je de mogelijkheid biedt om te barbecueën, picknicken, sporten of gewoon te ontspannen. Ook zijn (basis)scholen, sportfaciliteiten en openbaar vervoer (tram en metro) op loopafstand. Het bruisende centrum en de Erasmus Universiteit zijn met de fiets in een mum van tijd te bereiken, terwijl belangrijke uitvalswegen zoals de A16 en A20 eenvoudig bereikbaar zijn. Geniet van al het moois dat Kralingen te bieden heeft!

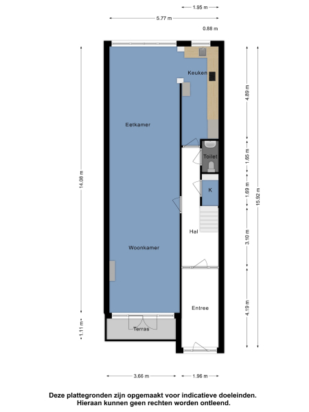
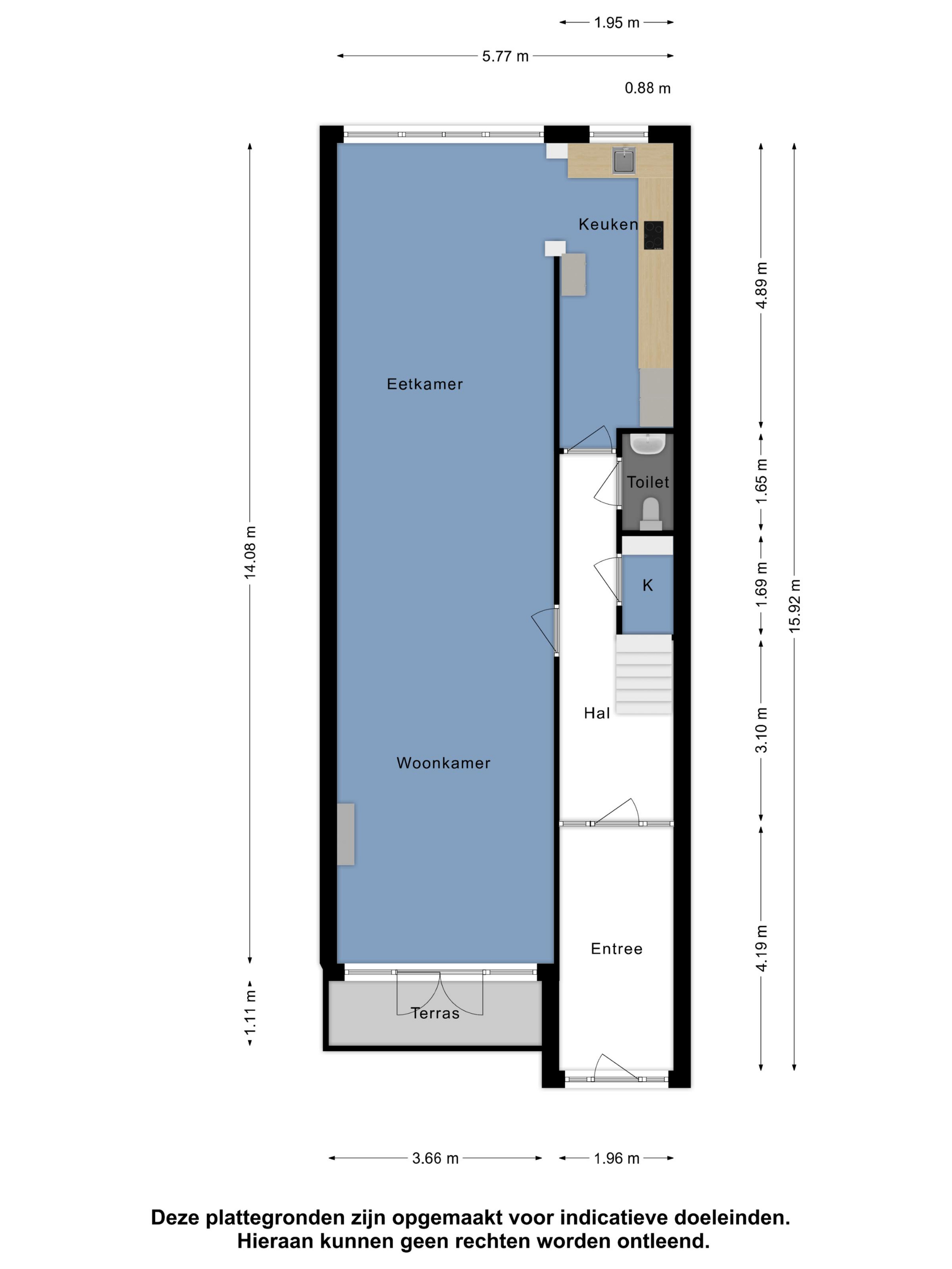
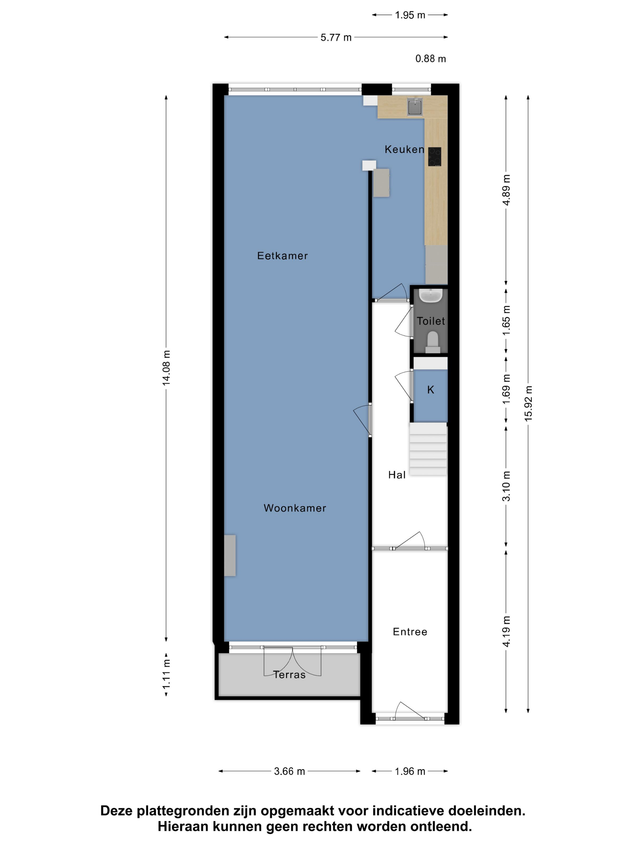
INDELING

OUDEDIJK 92 A
BEGANE GROND
Bij binnenkomst kom je in de imposante entree met marmeren tegels. Vanuit hier is de lange hal met toilet en trapkast toegankelijk, die het leefgedeelte verbindt. Direct valt de hoogte van de plafonds op. De woonkamer van 14 meter lang is momenteel ingedeeld in een zitgedeelte aan de voorzijde en een eetgedeelte aan de achterzijde, met toegang tot de halfopen keuken. Door de ruime indeling heb je voldoende mogelijkheden om de ruimte helemaal naar eigen smaak in te richten. Voorheen was het souterrain bereikbaar via een trap in de eetkamer, maar het is ook mogelijk om deze verbinding opnieuw te realiseren. De keuken is uitgerust met een 5-pits gasfornuis met oven, afzuigkap, vaatwasser, spoelbak en koel-vriescombinatie. Dit is een heerlijke plek waar je tijdens het koken interactie kunt hebben met je gezelschap.

EERSTE VERDIEPING
De lange overloop biedt toegang tot de verschillende vertrekken. Aan de voorzijde vind je slaapkamer 3, die momenteel als studeerruimte is ingericht en toegang biedt tot het balkon. De naastgelegen slaapkamer heeft ook toegang tot dit balkon. De slaapkamer aan de achterzijde beschikt over een prachtige en-suite badkamer met een vrijstaand bad, twee wastafels en twee doucheruimtes. Openslaande deuren geven toegang tot een balkon op het zuiden, en de kamer heeft een handige inloopkast. Vanuit de overloop is er een tweede separaat toilet met fonteintje en een trap naar de bovenste etage.

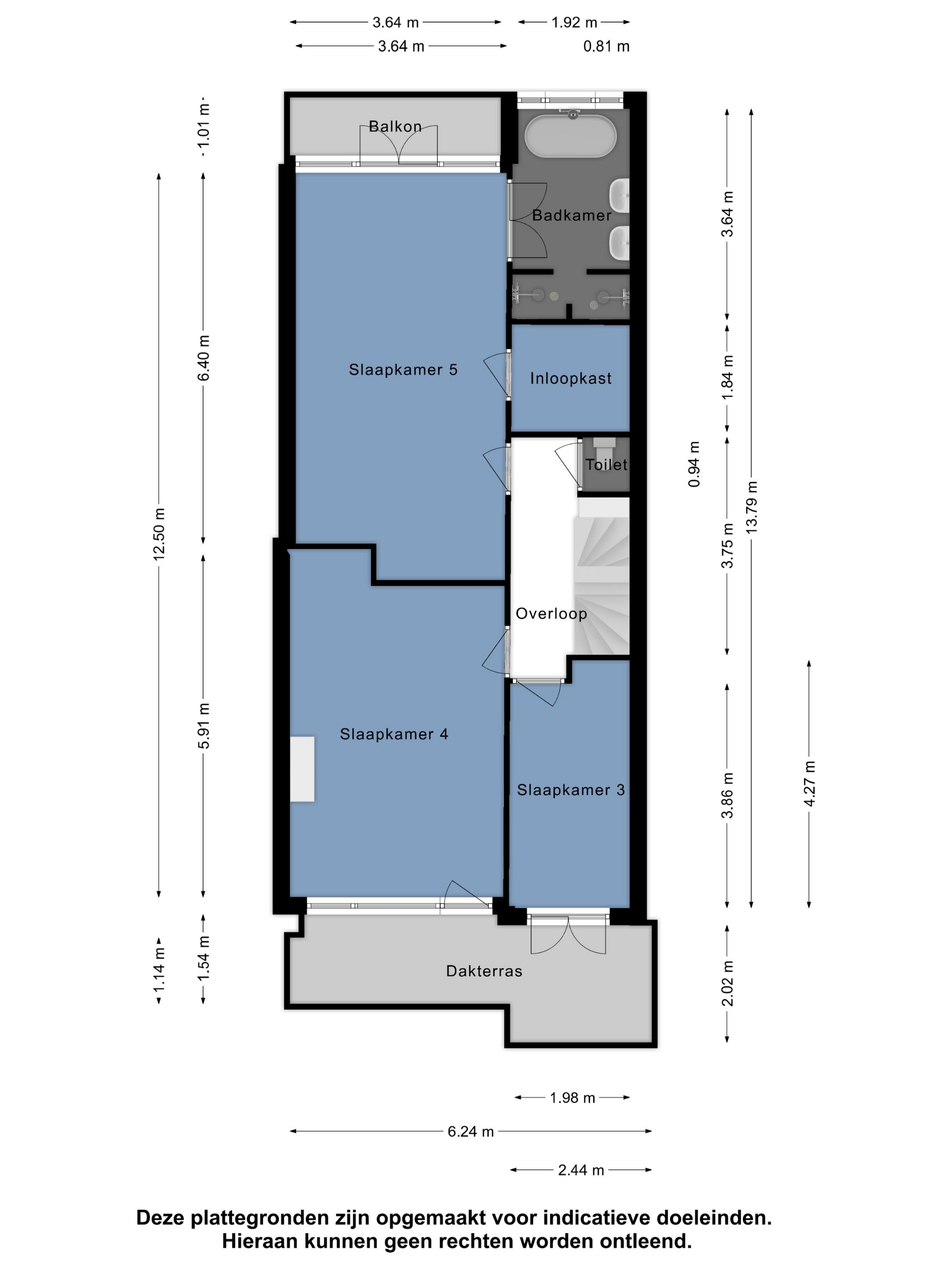
TWEEDE VERDIEPING
De overloop biedt toegang tot diverse vertrekken. Aan de voorzijde bevindt zich een slaapkamer met ingebouwde kasten en een keukentje. Aan de achterzijde vind je een riante slaapkamer met een brede dakkapel, wastafel en zonnig terras. Op deze etage is er ook een tweede badkamer, voorzien van een ligbad, inloopdouche en wastafel met meubel. Terug in de hal vind je een separaat toilet met wastafel, de opstelling voor de CV-ketels en aansluitingen voor de wasmachine en droger.

OUDEDIJK 92 B
SOUTERRAIN
Via de voortuin en een trappetje naar beneden bereik je de voordeur van Oudedijk 92 B. Het souterrain is nu een open ruimte met tal van mogelijkheden. Je kunt het omtoveren tot een zelfstandig appartement, een man cave, een kantoor aan huis of een creatieve studio (impressies met betrekking tot deze mogelijkheden zijn toegevoegd aan de presentatie). Met de mogelijkheid om een trap te realiseren, kun je een interne verbinding maken naar de eerste verdieping, waardoor deze ruimte nog functioneler wordt. De achtertuin is in 2023 opnieuw aangelegd en ligt op het zuiden, waardoor je kunt genieten van de zon in alle privacy.

BIJZONDERHEDEN
- Woonoppervlakte circa 295 M²;
- Inhoud circa 1040 M³;
- Gebouwgebonden buitenruimte 26 M², verdeeld over 4 balkons, waarvan 3 gelegen op het zuiden;
- Bouwjaar 1903;
- Pand administratief gesplitst in Oudedijk 92 A en B;
- 5 ruime slaapkamers;
- 2 badkamers;
- Voorzien van kunststof en houten kozijnen met dubbele beglazing;
- Voorzien van vloer-, muur- en dakisolatie;
- Energielabel B;
- Verwarming en warm water middels CV-ketels;
- Vernieuwde meterkast;
- Riool is vernieuwd;
- Er zijn diverse dakpannen vervangen, bitumen op dakkapel vernieuwd en goten gerepareerd, dakkapellen gerenoveerd in 2023 en 2024;
- Gelegen op erfpachtgrond, canon afgekocht tot 31-01-2032. Het is mogelijk om de grond te kopen van de gemeente;
- Oplevering in overleg.

INTERESSE? MAAK DAN SNEL EEN AFSPRAAK!
Ons advies is om bij het kopen van jouw nieuwe huis altijd jouw eigen NVM makelaar mee te nemen.

TOELICHTINGSCLAUSULE NEN2580
De Meetinstructie is gebaseerd op de NEN2580. De Meetinstructie is bedoeld om een meer eenduidige manier van meten toe te passen voor het geven van een indicatie van de gebruiksoppervlakte. De Meetinstructie sluit verschillen in meetuitkomsten niet volledig uit, door bijvoorbeeld interpretatieverschillen, afrondingen of beperkingen bij het uitvoeren van de meting.

KOOPOVEREENKOMST PAS RECHTSGELDIG NA ONDERTEKENING
Een mondelinge overeenstemming tussen de particuliere verkoper en de particuliere koper is niet rechtsgeldig. Met andere woorden: er is geen koop. Er is pas sprake van een rechtsgeldige koop als de particuliere verkoper en de particuliere koper de koopovereenkomst hebben ondertekend. Dit vloeit voort uit artikel 7:2 Burgerlijk Wetboek. Een bevestiging van de mondelinge overeenstemming per e-mail of een toegestuurd concept van de koopovereenkomst wordt overigens niet gezien als een 'ondertekende koopovereenkomst'

“Deze informatie is door ons met de nodige zorgvuldigheid samengesteld. Onzerzijds wordt echter geen enkele aansprakelijkheid aanvaard voor enige onvolledigheid, onjuistheid of anderszins, dan wel de gevolgen daarvan. Alle opgegeven maten en oppervlakten zijn indicatief.”

Caractéristiques

Transfert
Prix demandé
€ 995.000 k.k.
Statut
beschikbaar
Acceptation
in overleg
Construire
Type de maison
Herenhuis
Type de construction
tussenwoning
Année de construction
1903
Cote énergétique
B
Type de toit
zadeldak
Chambres à coucher
6
Salles de bain
2
Surfaces et contenus
Espace de vie
295 m2
Autre espace intérieur
6 m2
Espace extérieur lié au bâtiment
26 m2
Contenu
1040 m3
Superficie du terrain
158 m2
installations
Tv kabel
Dakraam
Natuurlijke ventilatie
In woonwijk
Open ligging
Baerz & Co Property Brochure

Brochure

Demande d'information / de consultation

Vidéos

Video Oudedijk 92 A

Visites virtuelles

VIRTUAL TOUR
Virtual Tour Oudedijk 92 A

Photos

Cartes