BAARLE-NASSAU
Oude Bredasebaan 17 - 5111 GA
Nederland

Lennart van Oosterhout profile image
Lennart van Oosterhout
Real Estate Agent
€1.325.000 k.k.
Woonoppervlakte
290m2
Perceeloppervlakte
4545m2
Slaapkamers
5

Omschrijving

Op een uniek en uitgestrekt bosperceel, aan de rand van Baarle-Nassau, bevindt zich dit karaktervolle en multifunctionele woonhuis, omgeven door een weelderige, parkachtige bostuin met meerdere hoogwaardige bijgebouwen.

Deze royale villa biedt een schat aan mogelijkheden en is bij uitstek geschikt voor de huisvesting van grote gezinnen, het bieden van mantelzorg dan wel het uitoefenen van een aan huis gebonden beroep of onderneming.

De rondom gesitueerde bostuin staat garant voor optimale privacy en vormt een harmonieus geheel met het omliggende landschap. De aanwezigheid van diverse solide bijgebouwen verhoogt de functionaliteit en vergroot voorts de gebruiksmogelijkheden van dit buitengewone geheel.

Gelegen aan de rustige Oude Bredasebaan, omgeven door een weelderig bosrijk landschap, vindt u een omgeving van ongekende charme. Binnen een straal van 2 à 3 kilometer treft u tal van voorzieningen aan, zoals basisscholen, kinderopvang, een supermarkt en het dorpscentrum.
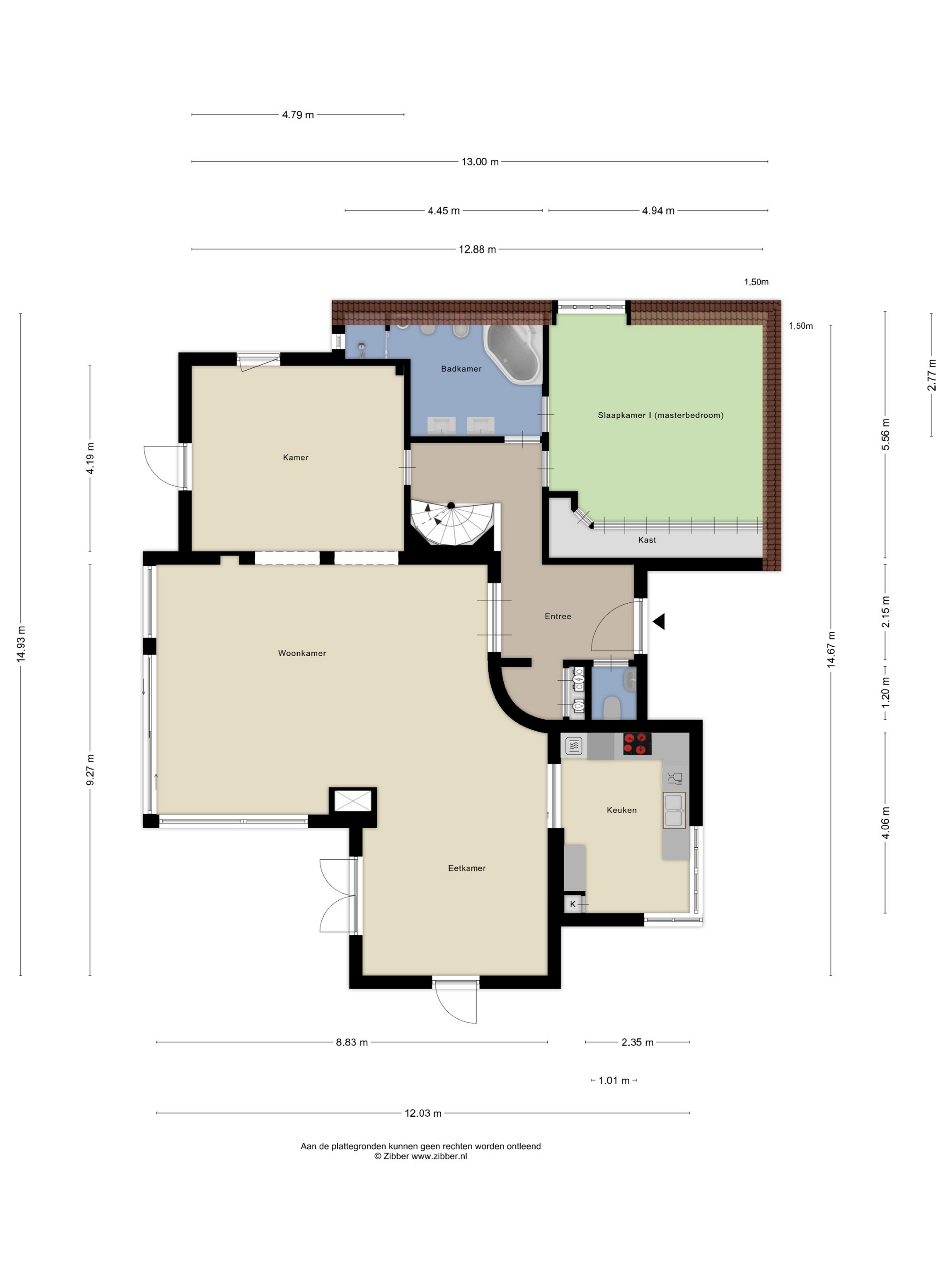
BEGANE GROND
HAL / ENTREE
Lichte hal/entree met toiletruimte, garderobe, meterkast en toegang tot de diverse vertrekken.

TOILET
De toiletruimte is stijlvol afgewerkt met natuurstenen betegeling en voorzien van een wandcloset met inbouwreservoir, alsmede een fonteintje.

METERKAST
De meterkast beschikt over een geheel vernieuwde elektrische installatie, voorzien van een uitgebreide, moderne groepenkast met meerdere aardlekschakelaars.

WOONKAMER
De woonkamer vormt het hart van de woning en is georiënteerd op de achtertuin. De ruimte is onderverdeeld in meerdere compartimenten:

ZITKAMER
De uitermate royale en lichte zitkamer, met een afmeting van circa 9 bij 6 meter, grenst aan de tuin, welke u via twee schuifpuien rechtstreeks kan betreden. De woonkamer wordt gekenmerkt door een overvloed aan natuurlijk daglicht,
hetgeen een aangename en warme sfeer creëert.

Tussen de zit- en eetkamer is een sfeervolle open haard gesitueerd, welke beide vertrekken op harmonieuze wijze met elkaar verbindt.

EETKAMER
De eetkamer bevindt zich aan de zijkant van de woning, grenst aan de keuken en staat in directe verbinding met het terras en de tuin.

ZIJKAMER / ACHTERKAMER
Een afzonderlijke zitkamer, onder meer geschikt als werkkamer, televisiekamer of anderszins. Deze ruimte staat in verbinding met de gang, grenzend aan de hal/entree.
Deze kamer is uitgerust met airconditioning en afgewerkt met een duurzame PVC-vloer.

KEUKEN
De keuken is gesitueerd aan de voorzijde van de woning en is uitgevoerd met een praktische L-vormige opstelling.

Deze inrichting omvat o.a. een granieten werkblad met 1½ RVS spoelbak voorzien van een Quooker. Voorts zijn aanwezig een vaatwasmachine, inductiekookplaat, RVS afzuigkap, een koelkast, twee ovens en een espressomachine. Tevens is er een eetgedeelte ingericht, alsmede een wandmeubel met werkblad en royale kastruimte, welke het geheel completeren.

Vanuit de eerdergenoemde hal heeft u toegang tot de gang, waaraan de diverse vertrekken grenzen.

SLAAPKAMER I
Hoofdslaapkamer, voorzien van een op maat gemaakte garderobekast en een schuifpui die toegang verleent tot
een klein balkon. Vanuit deze kamer is tevens de badkamer direct bereikbaar.

BADKAMER (EN-SUITE)
De badkamer is uitgerust met een ligbad, een wandcloset met inbouwreservoir, een urinoir, een bidet, een inloopdouche, een designradiator en een dubbele wastafel, geïntegreerd in een meubel. De badkamer is ook rechtstreeks te betreden vanuit de gang.
SOUTERRAIN
ENTREE/HAL
Zelfstandige (overdekte) entree, vanwaar toegang wordt verkregen tot:

GARDEROBERUIMTE

TOILET
Toiletruimte voorzien van een wandcloset met inbouwreservoir en een fonteintje.

WOONKAMER / WERKKAMER
Prachtige woon- annex werkkamer met uitzicht op de tuin en terrassen. Deze lichte ruimte, voorzien van royale raampartijen, is gelegen aan de voorzijde van de woning. In een vaste kast bevindt zich de verdeelunit ten behoeve van de vloerverwarming.

SLAAPKAMER / WERKKAMER II
Vanuit deze kamer is er directe toegang tot de pantry/bijkeuken.

PORTAAL
Het portaal verschaft toegang tot de trap, badkamer, pantry, vaste kast en de slaap-/werkkamer.

PANTRY / BIJKEUKEN
Aan de ene zijde bevindt zich een op maat gemaakt wandmeubel. Aan de andere zijde treft u een werkblad met RVS spoelbak, voorzien van bovenkasten. Tevens zijn hier de aansluitingen voor wasapparatuur gesitueerd.

BADKAMER
De badkamer uitgerust met een inloopdouche, een wandcloset
met inbouwreservoir en een designradiator.

SLAAPKAMER / WERKKAMER III
Deze slaap-/werkkamer is eveneens voorzien van een kast waarin de unit voor de vloerverwarming

Deze verdieping is deels voorzien airconditioning.
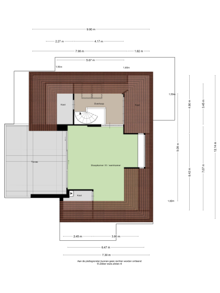
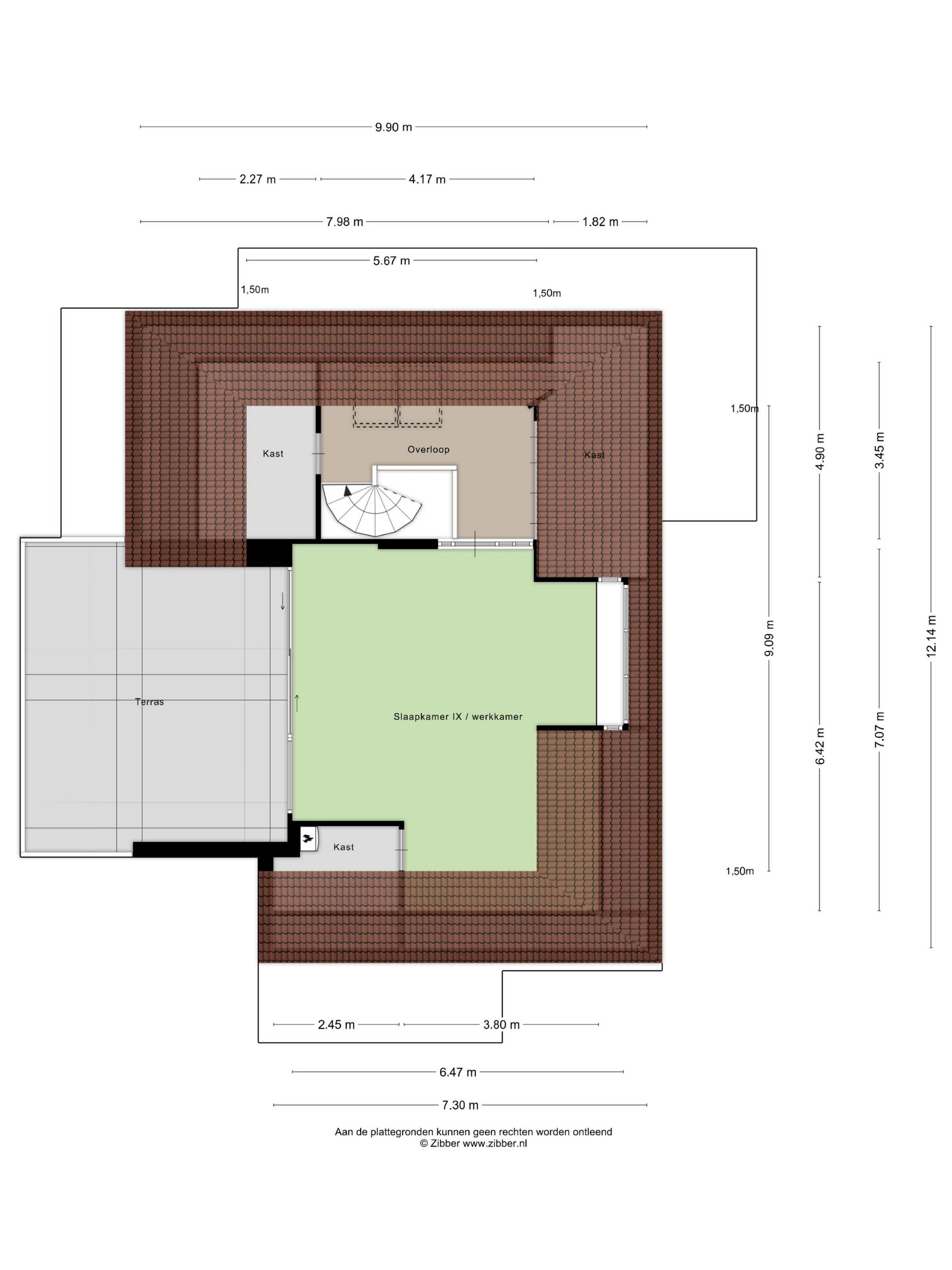
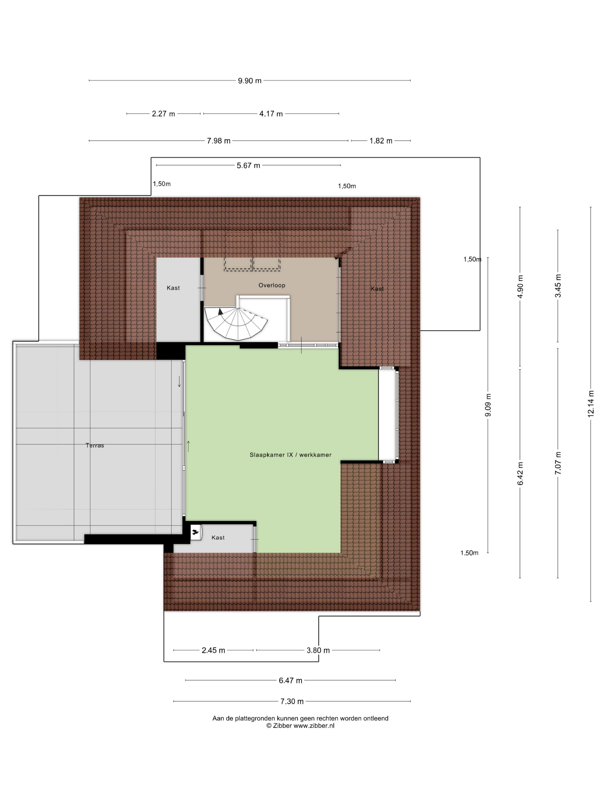
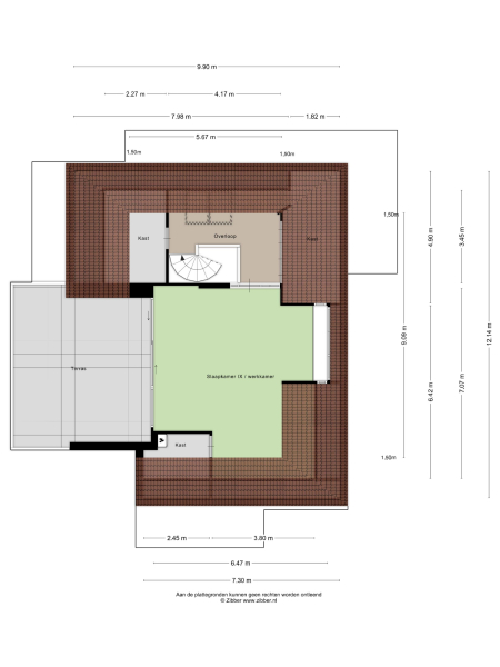
EERSTE VERDIEPING
Lichte overloop met dakvenster en wandkasten, voorts toegang tot:

VASTE KAST / BERGING

SLAAPKAMER/WERKKAMER
Een fantastische, lichte, multifunctionele ruimte. Deze kamer is te gebruiken als slaapkamer of, naar wens, te splitsen in twee aparte kamers. Ook leent zij zich uitstekend als living, werkkamer, atelier, etcetera. In deze kamer is aan de voorzijde een grote dakkapel aanwezig en aan de achterzijde een schuifpui, waardoor men een prachtig uitzicht geniet op de omliggende tuin en bossen. De schuifpui geeft toegang tot een riant platdak, dit biedt de mogelijkheid tot het creëren van een groot dakterras met fantastsich zicht op de tuin .

In de hoek van deze ruimte bevindt zich een inloopkast, waarin de cv-combiketel is geplaatst. Bovendien is ook deze ruimte voorzien van airconditioning.
TUIN
De prachtige, parkachtige (bos)tuin is rondom de woning gesitueerd en biedt ultieme privacy en het genot van het buitenleven. De ligging is uniek, een rustige, groene omgeving maar tevens nabij alle voorzieningen.

In de tuin vindt u diverse terrassen (waar u te allen tijde kan kiezen tussen zon of schaduw), een fraai gazon, sierbestrating, twee vijvers, alsmede een enorme variatie aan bomen, planten en struiken.

Het perceel is geheel omheind. Aan de voorzijde bevindt zich een ruime parkeerplaats, geschikt voor vijf tot zes auto’s. Tevens is daar een vijver gelegen, voorzien van een pomp, met daarbij een sfeervol terras vervaardigd uit hout. De tweede vijver treft u achter de woning.
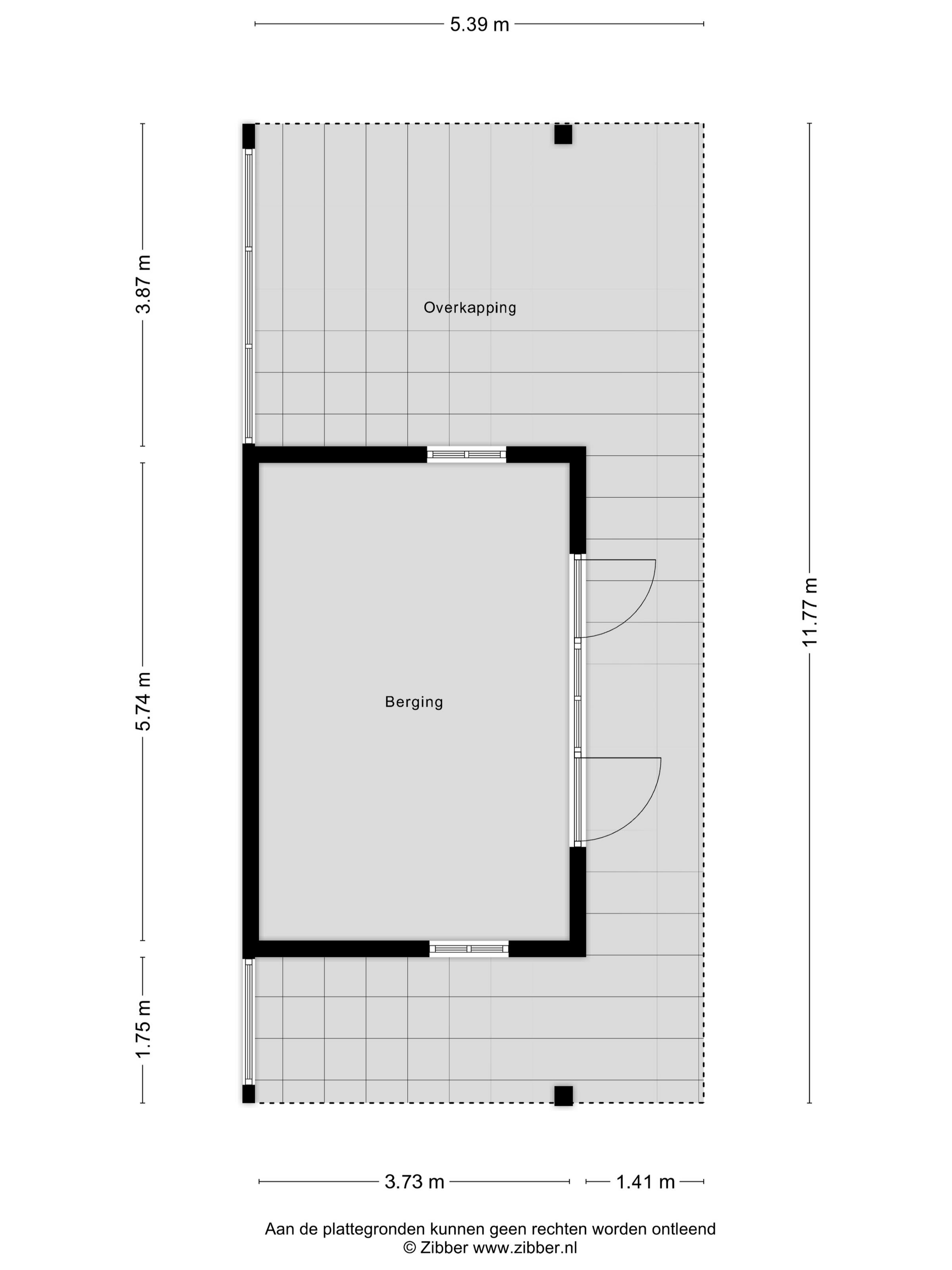
BIJGEBOUW
• BUITENKENNEL
Hondenverblijf, voorzien van water en elektra.

• BIJGEBOUW
Tuinhuis, voorzien van water, elektra en watertoevoer. Het gebouw is geïsoleerd en biedt een overkapping, geschikt voor bijvoorbeeld een buitenkeuken.

• TERRAS
Grenzend aan het huis en de woonkamer, deels overdekt en onder andere voorzien van een buitenhaard.
WAT U VERDER NOG MOET WETEN
• Zowel de tuin als de woning zijn onder architectuur gebouwd/aangelegd.
• De haard betreft een zogenoemde 'lift-deurhaard' met een (passief) systeem erin dat koude lucht van onderen aanzuigt en boven uitblaast.
• De vloeren in de hal, toilet I, de werkkamer, de zitkamer, de eetkamer, slaapkamer I en de bijkeuken zijn afgewerkt met Noorse leisteen 'Pillarguri'.
• Asbestartikel:
In het object kunnen asbesthoudende stoffen aanwezig zijn. Dit is gebruikelijk bij woningen van dit type of van dit bouwjaar. Bij eventuele verwijdering dienen op grond van de milieuwetgeving speciale voorzorgmaatregelen getroffen te worden. Koper verklaart hiermee bekend te zijn en vrijwaart verkoper voor eventuele aansprakelijkheid.
•Ouderdomsclausule:
Het is koper bekend dat de onroerende zaak meer dan 38 jaar oud is, wat betekent dat de eisen die aan de bouwkwaliteit gesteld mogen worden aanzienlijk lager liggen dan bij nieuwe woningen. In afwijking van artikel 6.3 van deze koopovereenkomst komt het geheel of ten dele ontbreken van één of meer eigenschappen van de onroerende zaak voor normaal gebruik als gevolg van de ouderdom voor rekening en risico van koper.

Ontdek Baarle-Nassau met Baerz, Uw Vertrouwde Personal Property Finder & Advisor

Het navigeren van het bijzondere vastgoedlandschap van Baarle-Nassau vereist diepgaande lokale kennis en een internationale blik. Door de grensoverschrijdende dynamiek en het beperkte aanbod zijn kansen vaak voorbehouden aan wie toegang heeft tot discrete off-market opties. Ervaren adviseurs bezitten geavanceerde onderhandelingsvaardigheden, zijn op de hoogte van Nederlandse én Belgische procedures en begeleiden cliënten om valkuilen te vermijden en privacy en waarde te waarborgen.

Speciale Kenmerken

Alarm system
Air conditioning

Kenmerken

Overdracht
Vraagprijs
€ 1.325.000 k.k.
Status
beschikbaar
Aanvaarding
in overleg
Bouw
Soort woonhuis
Villa
Soort bouw
vrijstaande woning
Bouwjaar
1987
Energieklasse
C
Soort dak
samengesteld dak
Slaapkamers
5
Badkamers
2
Oppervlakten en inhoud
Woonoppervlakte
290 m2
Overige inpandige ruimte
0 m2
Gebouwgebonden buitenruimte
38 m2
Externe bergruimte
21 m2
Inhoud
1077 m3
Perceeloppervlakte
4545 m2
faciliteiten
Mechanische ventilatie
Alarminstallatie
Tv kabel
Airconditioning
Frans balkon
Dakraam
Aan bosrand
Aan rustige weg
Beschutte ligging
In bosrijke omgeving
Baerz & Co Property Brochure

Brochure

Video’s

Plattegronden

Storimans en Partners

Ginnekenweg 161
4818 JD Breda

lvanoosterhout@storimansenpartners.nl
+31 76 522 60 90

www.storimansenpartners.nl

Informatie / bezichtigingsaanvraag

Lennart van Oosterhout profile image
Lennart van Oosterhout
Real Estate Agent