BERGEN (NH)
Kerkedijk 142 - 1862 BE
Nederland

Angeline Croonen profile image
Angeline Croonen
Real Estate Agent
€4.495.000 k.k.
Woonoppervlakte
456m2
Perceeloppervlakte
12125m2
Slaapkamers
3

Omschrijving

Droomt u van luxe en landelijk wonen op een unieke locatie? Deze prachtig gerenoveerde woonboerderij biedt het allemaal. Gelegen in een groene, rustige omgeving en voorzien van een royaal perceel met zwembad, een eigen weide, een multifunctioneel bijgebouw voor kantoor, atelier of mantelzorgwoning - au pair en een ruime garage. Dit is een woning die geen concessies doet aan luxe of leefruimte. Dit object is werkelijk uniek. Dit is wonen op hoog niveau, met alle voorzieningen gelijkvloers en volop mogelijkheden voor werk, ontspanning en ontvangst. De woning is voorzien van vloerverwarming voor extra comfort en heeft energielabel A.

Bij het betreden van deze woonboerderij komt u aan de voorzijde in een ruime hal die toegang biedt tot de eerste slaapkamer aan de linkerzijde en aan de rechterzijde een tweede slaap- of werkkamer met een naastgelegen badkamer. De kamer naast de badkamer biedt veel flexibiliteit en kan zowel als werkruimte of als slaapkamer worden gebruikt. De badkamer is voorzien van een ligbad, toilet, wastafel en een inloopdouche. In de hal bevindt zich verder de meterkast.

In de woonkamer valt de ruimte gelijk op. Het contrast van de kleuren in de woning versterken het stoere karakter van de woning. Deze zeer ruime living heeft een open haard en openslaande deuren naar de tuin. De moderne open keuken is uitgerust met diverse inbouwapparatuur, waaronder een Boretti 8-pits fornuis, een Amerikaanse koelkast met koffieapparaat en bordenwarmer, oven, en een ingebouwde koel- en vaatwasapparatuur. Er is tevens een vide aanwezig.

Alle faciliteiten bevinden zich op de begane grond, wat de woning extra toegankelijk maakt. De grote raampartijen zorgen voor veel lichtinval, waardoor de ruimtes ruimtelijk en uitnodigend aanvoelen. In de woonkamer is bovendien een trap naar de vide boven de kamers aan de voorzijde. Bij de foto’s zijn tekeningen toegevoegd die de mogelijkheid tonen om hier een verdieping met slaapkamers te creëren.

Vanuit de woonkamer heeft u toegang tot de serre, deze is uitgerust met een open haard, een pantry en een grote loungehoek. Vanuit de serre heeft u prachtig uitzicht over de ruim aangelegde tuin.

Ook vanuit de woonkamer zijn er doorgangen naar een separaat toilet, verschillende bergingen en de master bedroom in de aangrenzende vleugel. Deze slaapkamer beschikt over een ruime inloopkast en een open badkamer met dubbele wastafels. De badkamer is voorzien van een ruime douche met zitplaats en een toilet. Het uitzicht vanuit zowel de slaapkamer als de badkamer is gericht op het zwembad, wat de luxe van de woning nog eens extra benadrukt en een wellness beleving creëert.

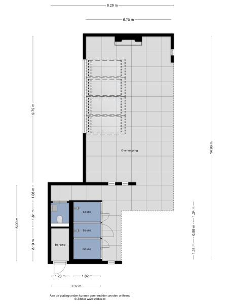
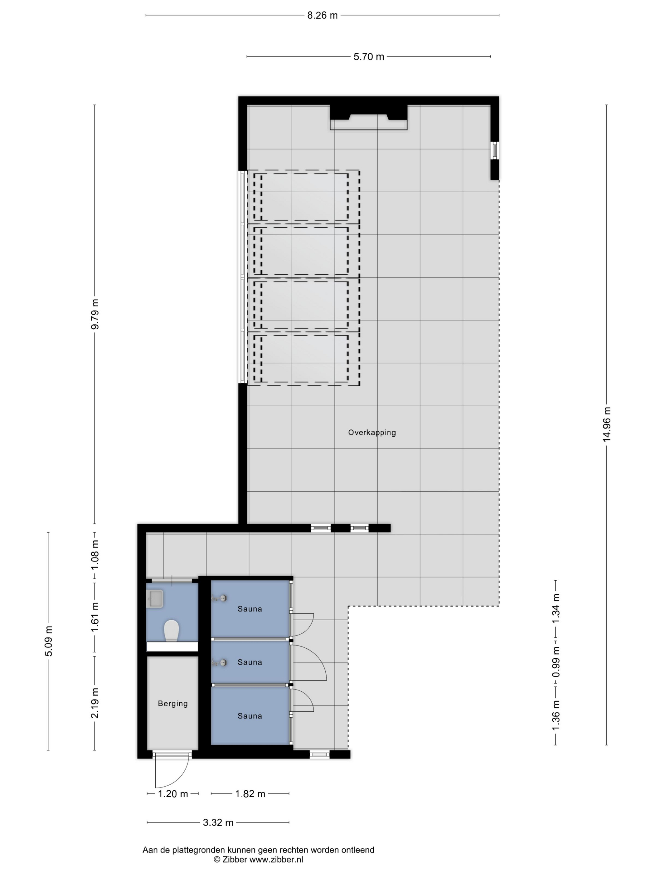
In de tuin bevindt zich een ruime oprijlaan die toegang biedt tot de garage, welke is voorzien van drie elektrische deuren voor het parkeren van auto's. Achter de parkeergelegenheid, in de garage, is er ruimte die de mogelijkheid biedt om een werkplaats te creëren. Een trap leidt naar de bergzolder.

Naast de garage bevindt zich een bijgebouw dat over verschillende faciliteiten beschikt en voor diverse doeleinden gebruikt kan worden. Dit huisje biedt tevens een prachtig uitzicht over de kavel en het zwembad.

Aan de achterzijde van deze ruime kavel een eigen grote weide met schuilstal. Ideaal om bijvoorbeeld paarden vrij te kunnen laten lopen.

De boerderij is aangewezen als Provinciaal monument en dient dus behouden te blijven.

Deze prachtige woonboerderij ligt op loopafstand van het gezellige centrum van Bergen met haar talrijke restaurantjes en winkels. Op het moment dat je het erf opkomt waant u zich in een eigen park van rust.

Bent u geïnteresseerd in dit unieke object, maak dan een afspraak met ons voor een bezichtiging, wij leiden u graag rond!

Kenmerken

Zwembad
Zonnepanelen
Overdracht
Vraagprijs
€ 4.495.000 k.k.
Status
beschikbaar
Aanvaarding
in overleg
Bouw
Soort woonhuis
Woonboerderij
Soort bouw
vrijstaande woning
Bouwjaar
1877
Energieklasse
A
Soort dak
tentdak
Slaapkamers
3
Badkamers
3
Oppervlakten en inhoud
Woonoppervlakte
456 m2
Overige inpandige ruimte
46 m2
Gebouwgebonden buitenruimte
45 m2
Externe bergruimte
147 m2
Inhoud
1862 m3
Perceeloppervlakte
12125 m2
faciliteiten
Mechanische ventilatie
Zwembad
Jacuzzi
Stoomcabine
Rookkanaal
Dakraam
Sauna
Zonnepanelen
Natuurlijke ventilatie
Aan rustige weg
Vrij uitzicht
Beschutte ligging
Landelijk gelegen
Baerz & Co Property Brochure

Brochure

Video’s

Plattegronden

Croon Makelaars

Breelaan 41
1861 GD Bergen

info@croonmakelaars.nl
+31 (0)72 743 32 44

www.croonmakelaars.nl

Informatie / bezichtigingsaanvraag

Angeline Croonen profile image
Angeline Croonen
Real Estate Agent

Een luxe woning kopen in Bergen (Noord-Holland)

Bergen biedt een verfijnde en gastvrije gemeenschap met natuurschoon en culturele diepgang. Bewoners genieten van uitstekende voorzieningen, maatwerkservice en een harmonieuze balans tussen privacy en betrokkenheid – een uitgelezen bestemming voor internationale huizenkopers met hoge verwachtingen.