NOORDWIJK
Hofvennepark 2 - 2201 PZ
Nederland

Frits Wilbrink profile image
Frits Wilbrink
Real estate agent
€2.495.000 k.k.
Woonoppervlakte
280m2
Perceeloppervlakte
1040m2
Slaapkamers
3

Omschrijving

Luxe moderne villa met verwarmd zwembad, inpandige garage voor 5 auto’s en een vrijstaande garage voor 2 (elektrische) auto’s, gelegen op één van de mooiste locaties van Noordwijk. Kernwoorden van deze bijzonder vormgegeven villa zijn; privacy, maatwerk en symmetrie.

Wat maakt deze woning bijzonder;
• Grote living met een overspanning van 18m
• Kantoorruimte op de begane grond
• 3 Slaapkamers
• Verwarmd zwembad
• Tuin op het zuidwesten
• Energielabel B

Bouwjaar 2002, woonoppervlakte 280m²/356m², inhoud 1.439m³, perceel 1.040m²

De inpandige garage van 76 m² is volledig geïsoleerd en ook hier is de terrazzo vloer voorzien van vloerverwarming. De glazen binnenwand is eenvoudig te verwijderen zodat de gehele begane grond één ruimte wordt. Het woonoppervlak komt hiermee op 356m² (€ 7.008,43 m²)  

Deze prachtige villa, ontworpen door Hans van Egmond Architecten, is zeer zorgvuldig tot stand gekomen waarbij veel maatwerk en uitsluitend topklasse materialen zijn gebruikt. De rode draad voor het gehele ontwerp en de bouw is dat er nergens concessies zijn gedaan en privacy voorop stond.

De buitenschil van de U-vormige woning heeft kleine ramen en zorgt hierdoor voor veel privacy, de schuifpuien aan de binnenzijde van de U-vorm zijn volledig voorzien van glas wat voor een overvloed aan lichtinval zorgt.

De woning;

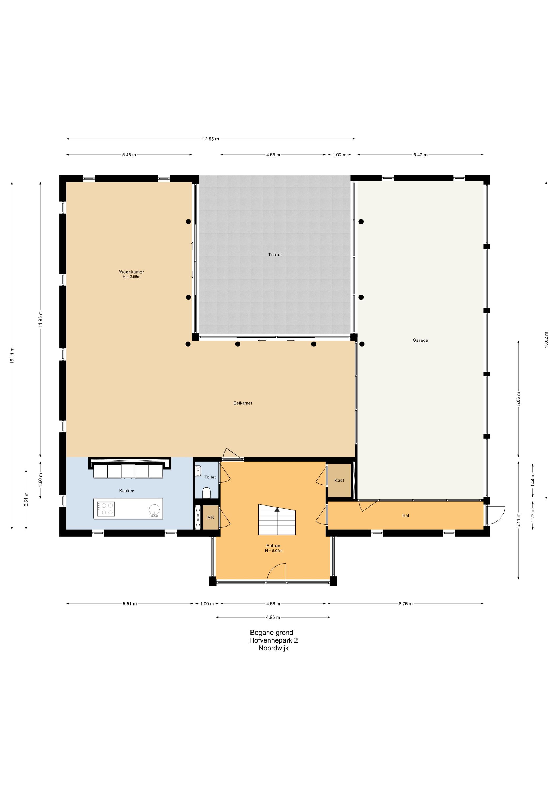
Begane grond
Grote lichte hal met vide en de indrukwekkende glazen trap naar boven. De hal is voorzien van getint glas waardoor er geen zicht van buiten naar binnen is.

De grote woonkamer heeft een overspanning van wel 18 meter. Genoeg ruimte voor een royale zithoek en een grote eettafel voor gezellige diners.

De keuken, waar de symmetrie ook terugkomt, is voorzien van luxe inbouwapparatuur en als roomdivider afgescheiden van de eetkamer.

Tevens is er een ruime kantoor/werkplek aanwezig.

De inpandige garage biedt plaats aan 5 auto’s. Heeft u niet zoveel auto’s, dan is dat geen probleem; voorzien van vloerverwarming is deze ruimte eenvoudig bij de woning te trekken en multifunctioneel bruikbaar.

De gehele begane grond is voorzien van een terrazzovloer met vloerverwarming. Om de binnen/buiten beleving te versterken geven grote schuifpuien toegang tot de tuin en is de Terrazzovloer naar buiten doorgetrokken.

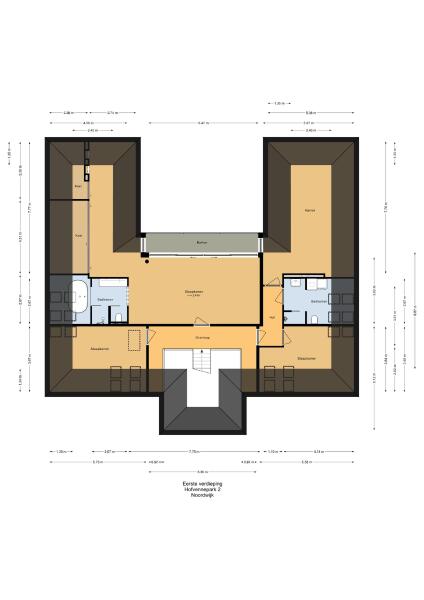
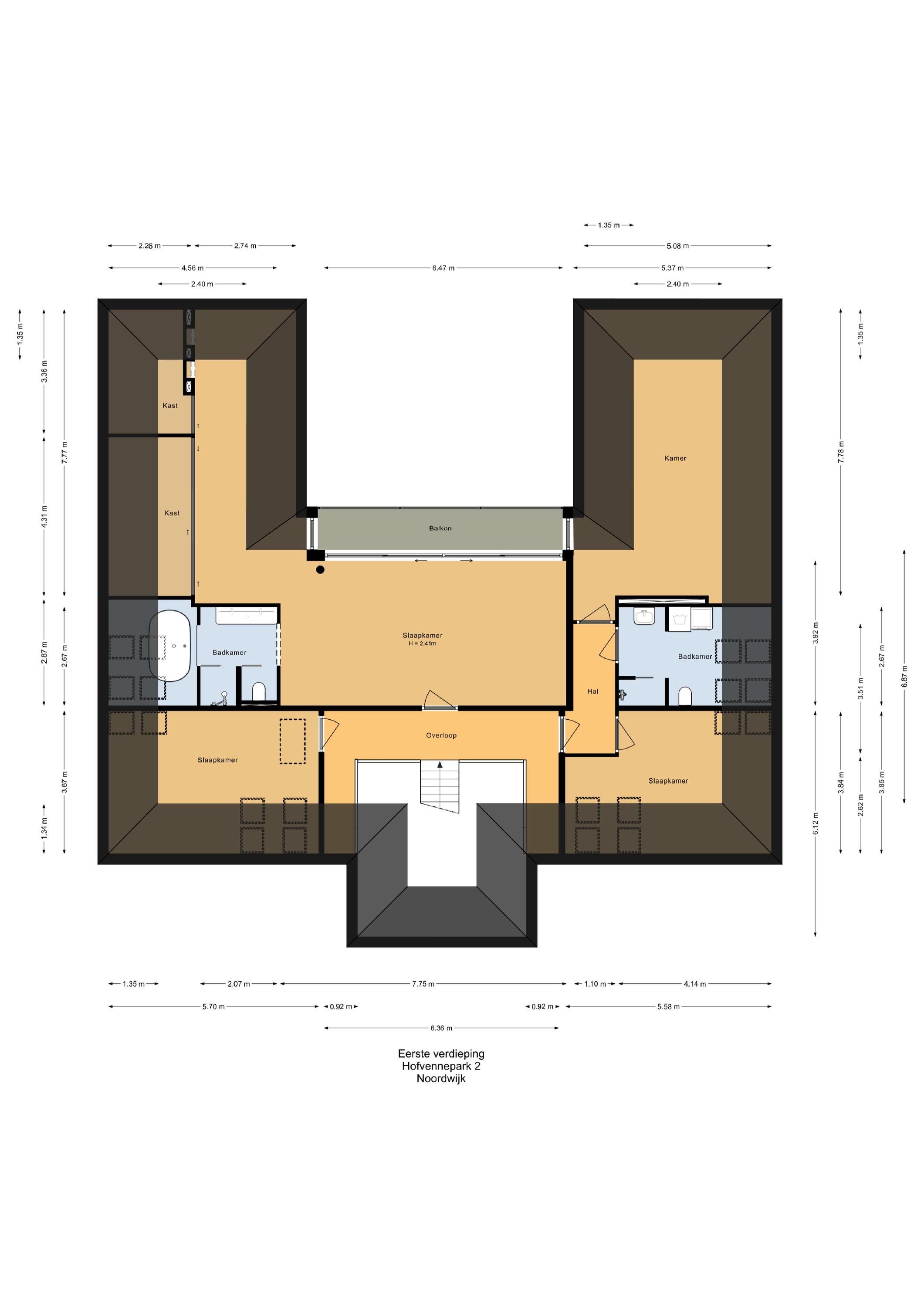
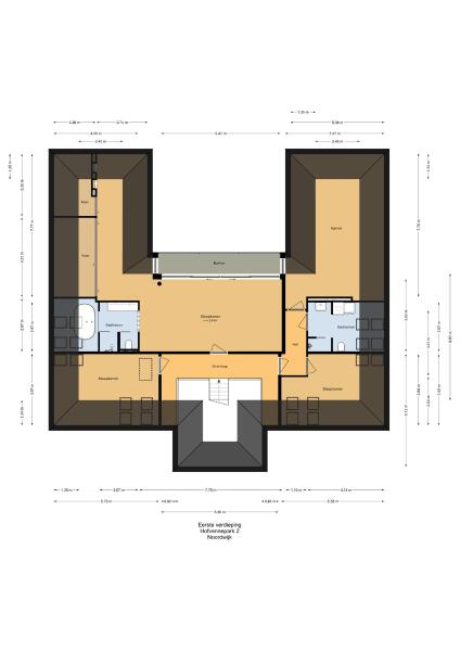
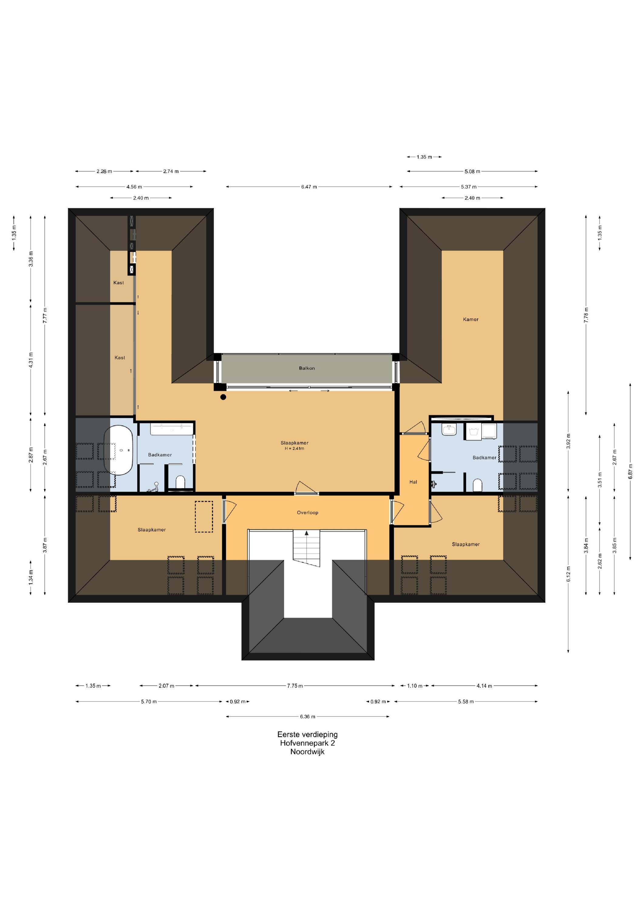
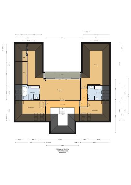
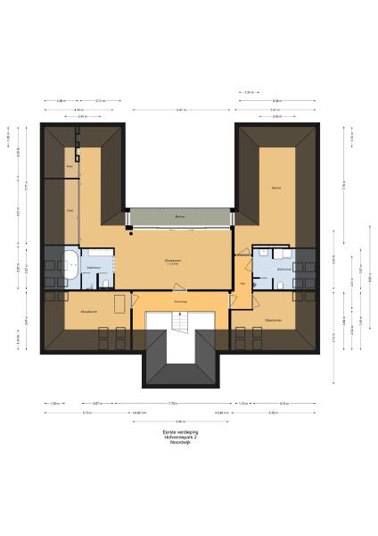
1e etage
Op deze etage zijn 3 slaapkamers, 2 badkamers en een grote bergruimte. De zeer royale hoofdslaapkamer heeft een eigen luxe badkamer en een ruime kleedkamer. Het balkon is alleen vanuit deze kamer toegankelijk. 20 Dakramen zorgen voor extra lichtinval en ook hierin is de symmetrie doorgetrokken.

Bergzolder
De bergzolder is bereikbaar met een Vlizotrap en hier staan de cv-ketel en de WTW installaties opgesteld.

Tuin
De tuin is een oase van rust en gelegen aan het water.
Er is een groot terras aan het huis en een zwembad. De grote groene haag zorgt voor rust en volledige privacy. Op het terrein is ruim parkeergelegenheid en het sierhek zorgt voor extra veiligheid.

Duurzaamheid
Met bouwjaar 2002 is deze woning vanuit de bouw al volledig geïsoleerd. Verdere verduurzamingsmaatregelen zijn;
• 12 zonnepanelen
• 2x WamteTerugWin unit
• Warmtepomp voor de verwarming van het zwembad
• Solardek op het zwembad
Het energielabel van de woning is B

Ligging
Gelegen in een rustige wijk met alleen bestemmingsverkeer maar wel nabij het gezellige centrum van Noordwijk-Binnen met zijn sfeervolle winkels en restaurants. Noordwijk aan Zee met het strand, zee, de gezellige boulevard en uitgaansgelegenheden voor jong en oud liggen op fietsafstand. Ook ligt deze wijk nabij uitvalswegen naar de N206 en A44 waardoor Leiden en Haarlem met 15 minuten en Den Haag, Amsterdam /Schiphol binnen 30 minuten zijn te bereiken.

Bijzonderheden
• Plafondhoogte 2.70m
• 12 Zonnepanelen
• Vloerverwarming begane grond, incl. garage
• Warmtepomp tbv het zwembad
• 2x WTW installatie
• Alarminstallatie klasse 3
• Camera’s rondom de woning met beeldscherm
• Grote inpandige garage voor 5 auto’s, eenvoudig bij de woning te trekken
• Oplaadpunt voor de elektrische auto('s) in de vrijstaande garage
• Zinken regenpijpen en goten
Makelaar Frits Wilbrink leidt je graag rond.
Bel ons kantoor voor een afspraak!

Ontdek Noordwijk met Baerz, Uw Vertrouwde Personal Property Finder & Advisor

Met een ervaren makelaar in Noordwijk krijgt u toegang tot exclusief aanbod en wordt u deskundig door het regelgevend landschap geleid. Uw adviseur behartigt uw belangen van zoekopdracht tot afronding en maakt hiervoor gebruik van netwerken met architecten, ontwerpers en lokale instanties. Discretie, marktkennis en onderhandelingskracht zijn cruciaal voor een zorgeloos en succesvol aankooptraject.

Speciale Kenmerken

Zwembad
Zonnepanelen
Alarm system

Kenmerken

Overdracht
Vraagprijs
€ 2.495.000 k.k.
Status
beschikbaar
Aanvaarding
in overleg
Bouw
Soort woonhuis
Landhuis
Soort bouw
vrijstaande woning
Bouwjaar
2002
Energieklasse
B
Soort dak
zadeldak
Slaapkamers
3
Badkamers
2
Oppervlakten en inhoud
Woonoppervlakte
280 m2
Overige inpandige ruimte
91 m2
Gebouwgebonden buitenruimte
8 m2
Externe bergruimte
47 m2
Inhoud
1439 m3
Perceeloppervlakte
1040 m2
faciliteiten
Mechanische ventilatie
Alarminstallatie
Buitenzonwering
Zwembad
Schuifpui
Dakraam
Glasvezel kabel
Zonnepanelen
Balansventilatie
Aan bosrand
Aan water
Aan rustige weg
In woonwijk
Beschutte ligging
In bosrijke omgeving
Baerz & Co Property Brochure

Brochure

Video’s

Plattegronden

Wilbrink & v.d. Vlugt Makelaars

Heereweg 231
2161 BG Lisse

info@wilbrinkvandervlugt.nl
+31 252 41 90 49

www.onsaanbod.nl

Informatie / bezichtigingsaanvraag

Frits Wilbrink profile image
Frits Wilbrink
Real estate agent