ROTTERDAM
Straatweg 20 - 3051 BE
Nederland

Joris van Oosten profile image
Joris van Oosten
Real estate agent
€1.295.000 k.k.
Woonoppervlakte
232m2
Perceeloppervlakte
413m2
Slaapkamers
6

Omschrijving

Charmant herenhuis met stijlvolle afwerking, diepe tuin en verrassend veel leefruimte.

Aan het begin van de statige Straatweg in Hillegersberg staat dit karaktervolle herenhuis dat alles heeft wat je van een woning in dit segment mag verwachten: sfeer, comfort en ruimte. Achter de klassieke gevel schuilt een eigentijds en hoogwaardig afgewerkt interieur met oog voor detail. De combinatie van authentieke elementen, modern wooncomfort en een diepe, groene achtertuin maakt dit een bijzonder fijn familiehuis. Een plek waar stijl en warmte samenkomen, ideaal voor wie royaal en sfeervol wil wonen in een van de mooiste straten van Hillegersberg.

Locatie:
De Straatweg is één van de meest karakteristieke straten van Hillegersberg. Hier woon je rustig, met alles binnen handbereik: winkels en horeca aan de Bergse Dorpsstraat en de Kleiweg, goede scholen, sportverenigingen en de Bergse Plassen om de hoek. De binnenstad van Rotterdam en uitvalswegen zijn snel bereikbaar.

Indeling:
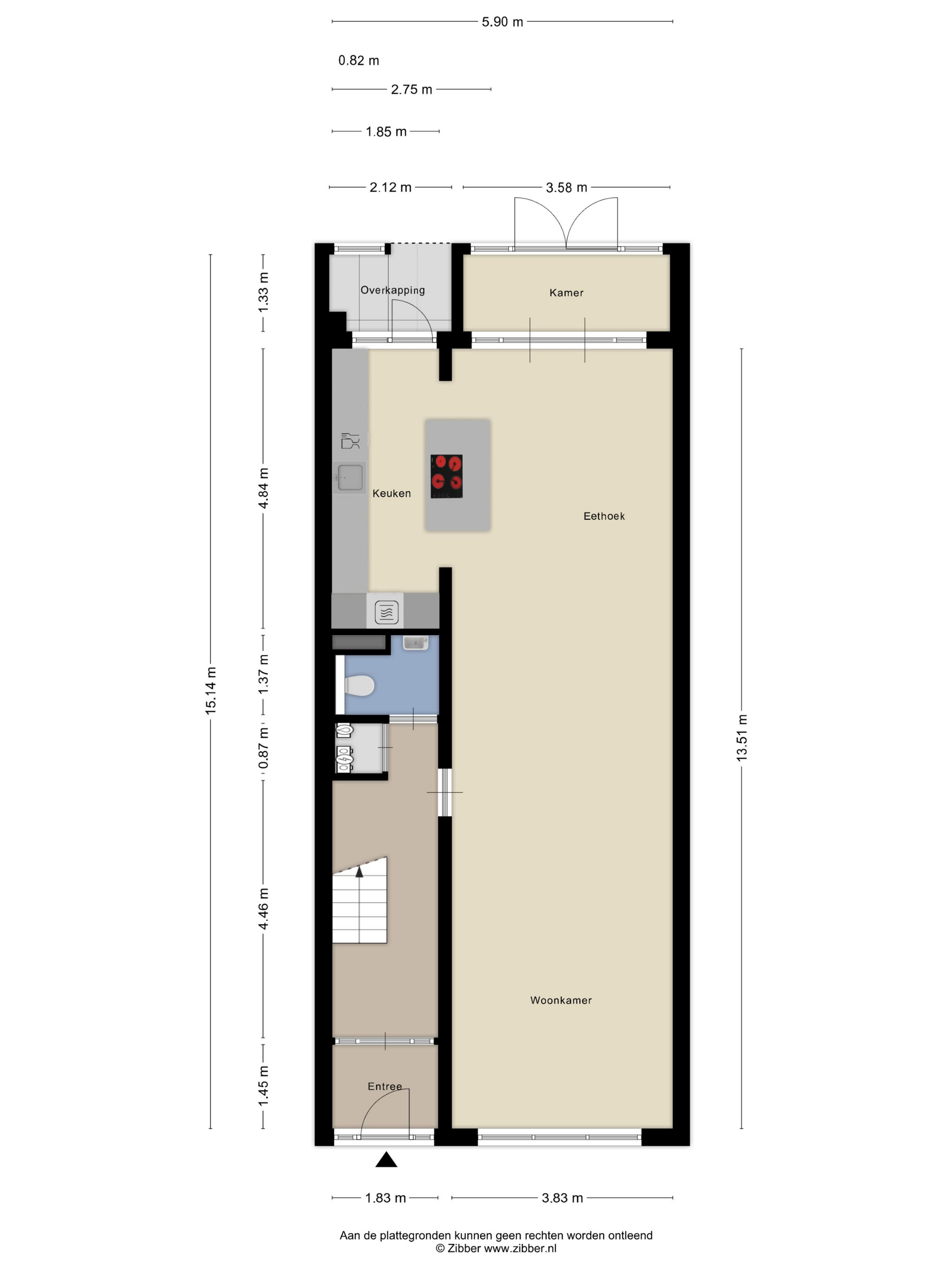
Begane grond:
Representatieve entree met hoge plafonds en originele details. Vanuit de hal toegang tot het moderne toilet en de royale leefruimte met prachtige eikenhouten vloer. De open keuken (vernieuwd in 2022) vormt het hart van het huis, uitgevoerd met een groot kookeiland, hoogwaardige inbouwapparatuur waaronder ook een stoomoven en een (wijn-)klimaatkast. Aansluitend de lichte serre met openslaande deuren naar de zonnige achtertuin, waar binnen en buiten naadloos in elkaar overgaan.

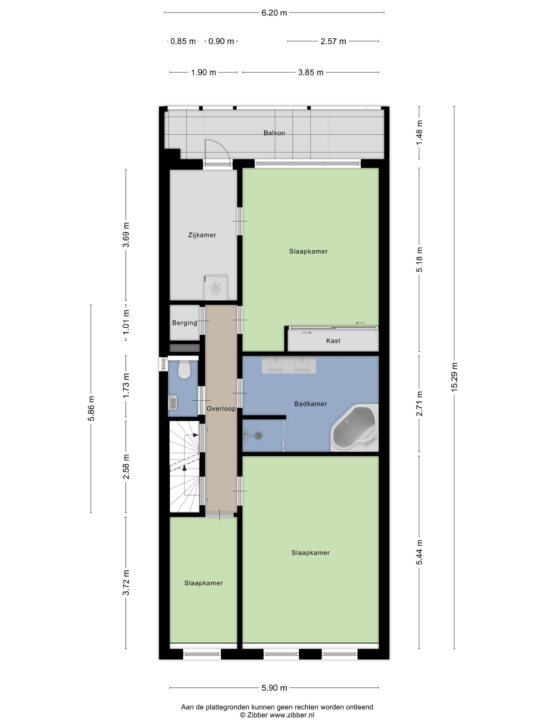
Eerste verdieping:
Ruime overloop met vaste kast en separaat toilet. Aan de voorzijde bevinden zich twee sfeervolle kamers, ideaal als werkkamer of kinderkamer.
De moderne badkamer is voorzien van een hoekligbad, inloopdouche en dubbel wastafelmeubel. De ruime hoofdslaapkamer aan de achterzijde beschikt over een vaste schuifkast en openslaande deuren naar het brede balkon met uitzicht op de tuin.

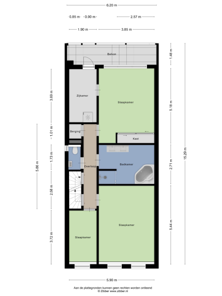
Tweede verdieping:
De zolderverdieping is verrassend ruim en biedt momenteel één slaapkamer aan de achterzijde. De royale kamer aan de voorzijde is ingericht als een grote walk-in closet, maar is uiteraard eenvoudig om te vormen tot een zeer ruime tweede slaapkamer. De slaapkamer aan de achterzijde biedt een fraai vrij uitzicht over de tuin. Daarnaast een tweede moderne badkamer met inloopdouche en wastafel, en een praktische wasruimte met opstelling voor wasmachine en droger.

Een tuin met ruimte, rust en privacy. De voortuin is fraai aangelegd en biedt voldoende plek om de dagelijkse fietsen gemakkelijk te parkeren, praktisch én verzorgd tegelijk.

De achtertuin is werkelijk een verrassing: zo royaal dat het voelt als een privépark, met volop zon, groen en rust. Een plek waar kinderen kunnen spelen, waar je gasten ontvangt en waar je zelf tot laat in de avond geniet van de buitenlucht. Achterin de tuin staat een imposante berging van maar liefst ca. 18 m², ideaal voor tuingereedschap, hobby’s of extra opslagruimte.

Bijzonderheden:
- bouwjaar ca. 1903
- gelegen op eigen grond met een totale perceeloppervlakte van 413m2
- energielabel B
- gebruiksoppervlakte wonen ca. 232 m² (conform BBMI / NEN 2580)
- gebouw gebonden buitenruimte ca. 12,2 m² (conform BBMI / NEN2580)
- externe bergruimte ca. 18 m² (conform BBMI / NEN2580)
- 6 slaapkamers en 2 badkamers
- volledig voorzien van kunststof en houten kozijnen met HR++ glas
- buitenschilderwerk volledig uitgevoerd in 2022 en na plaatsing van HR++ glas in 2025.
- centrale verwarming en warm water middels c.v.-ketel (HR) uit 2019
- een zeer ruime tuin dat aanvoelt als een privé park
- fundering hersteld
- alarminstallatie aanwezig
- airconditioning op de tweede verdieping
- betaald parkeren en bewoners kunnen een parkeervergunning aanvragen

Oplevering in overleg.

Voor aanvullende informatie over deze woning kunt u de eigen website (adres+huisnummer) bezoeken.

J.J. van Oosten Makelaardij is de NVM-makelaar van de verkoper. Wij adviseren u uw eigen NVM-makelaar in te schakelen om uw belangen te behartigen bij de aankoop van dit object.

Aan deze aanbiedingstekst kunnen geen rechten worden ontleend.

De gebruiksoppervlakte van de woning is opgemeten conform de branchebrede meetinstructie (BBMI). De BBMI is gebaseerd op de NEN2580. De BBMI is bedoeld om een meer eenduidige manier van meten toe te passen voor het geven van een indicatie van de gebruiksoppervlakte. De meetinstructie sluit verschillen in meetuitkomsten niet volledig uit, door bijvoorbeeld interpretatieverschillen, afrondingen of beperkingen bij het uitvoeren van de meting.

Kenmerken

Alarm system
Air conditioning
Overdracht
Vraagprijs
€ 1.295.000 k.k.
Status
beschikbaar
Aanvaarding
in overleg
Bouw
Soort woonhuis
Herenhuis
Soort bouw
tussenwoning
Bouwjaar
1903
Energieklasse
B
Soort dak
zadeldak
Slaapkamers
6
Badkamers
2
Oppervlakten en inhoud
Woonoppervlakte
232 m2
Overige inpandige ruimte
0 m2
Gebouwgebonden buitenruimte
12 m2
Externe bergruimte
18 m2
Inhoud
821 m3
Perceeloppervlakte
413 m2
faciliteiten
Alarminstallatie
Tv kabel
Airconditioning
Dakraam
Domotica
Natuurlijke ventilatie
In woonwijk
Baerz & Co Property Brochure

Brochure

Video’s

Plattegronden

J.J. Van Oosten Makelaardij BV

Straatweg 225
3054 AG Rotterdam

info@vanoostenmakelaardij.nl
+31 10 422 11 00

www.vanoostenmakelaardij.nl

Informatie / bezichtigingsaanvraag

Joris van Oosten profile image
Joris van Oosten
Real estate agent

Een luxe woning kopen in Rotterdam

Rotterdam biedt verfijnd stedelijk wonen voor een internationale doelgroep, met uitzonderlijke mogelijkheden op cultureel, zakelijk en maatschappelijk vlak. Inwoners profiteren van eersteklas service, kenmerkende woningen en een wereldwijd verbonden stedelijk leefklimaat.