SCHOONHOVEN
Lopikerweg 1 b - 2871 AT
Nederland

Xandra Bek profile image
Xandra Bek
Register makelaar - taxateur
€935.000 k.k.
Woonoppervlakte
128m2
Perceeloppervlakte
490m2
Slaapkamers
3

Omschrijving

LOPIKERWEG 1B, SCHOONHOVEN
Vrijstaande villa met uitzicht, sfeer en topcomfort

VERKOPER AAN HET WOORD
Tijdens de eerste bezichtiging van ons huis aan de Lopikerweg kregen we direct een ultiem vakantiegevoel. Bij binnenkomst beleefden we het licht, de ontspannen sfeer en het prachtige uitzicht. Hoewel we er na tien jaar nog steeds met veel plezier wonen, kwam er onverwachts een ander bijzonder huis op ons pad. Dit heeft ons toch doen besluiten ons fijne huis te verkopen.

De afgelopen jaren hebben we onze tuin op het zonnige zuiden volledig vernieuwd en hebben we schuren laten bouwen. De overkapping aan het water is wat ons betreft het pareltje van de tuin geworden. Hier kun je in de zomer heerlijk koel onder het sedumdak zitten en ’s avonds de kachel aansteken voor juist wat extra warmte.
Twee jaar geleden hebben we de bovenverdieping verbouwd en met maatwerk alle ruimtes optimaal benut. Onze slaapkamers zijn daardoor heel praktisch en gezellig geworden.

Het wonen aan de Lopikerweg was voor ons ideaal. Fijne buren, vrij wonen en toch dicht bij alle voorzieningen. Onze kinderen konden zelfs al op jonge leeftijd, via het aangrenzende fietspad, op een veilige en snelle manier zelfstandig naar de basisschool fietsen.

Wij hopen dat de nieuwe bewoners net zo zullen genieten van het huis als wij!

VRIJSTAAND WONEN MET UITZICHT EN RUIMTE
Lopikerweg 1b is een ideale combinatie van landelijk en comfortabel wonen. Aan de voorzijde kijk je weids uit over de polder, aan de achterzijde grenst de zonnige tuin op het zuiden aan het water en een boomgaard. De woning ligt aan een rustige landweg met voornamelijk bestemmingsverkeer: een oase van rust, op korte afstand van scholen, winkels en het gezellige centrum van Schoonhoven.

De tuin is in 2021 compleet opnieuw ingericht en ademt een permanent vakantiegevoel. Met een onderheid terras, houten schuren, een luxe buitenkeuken en een sfeervolle overkapping met sedumdak en houtkachel is het hier ieder seizoen genieten. De tuinverlichting is voorbereid en de kantschoeiing is vervangen voor een hardhouten damwand. Alles klopt.

LICHT, LUXE EN PRAKTISCH INGEDEELD
De woning is met zorg onderhouden en smaakvol afgewerkt. Op de begane grond vind je in de hal een plavuizen vloer en een modern toilet, de woonkamer is voorzien van een eikenhouten vloer met vloerverwarming, gestuukte wanden en plafonds met sierlijsten en inbouwspots.

De woonkeuken is een blikvanger en handgemaakt van hout, compleet met quooker, hoge druk stoomoven, combi-oven, Borreti-gaskookplaat, afzuigschouw, koelkast, vriezer en vaatwasser. Ook hier ligt een plavuizen vloer met vloerverwarming. Vanuit de keuken is er toegang tot het terras en de geïsoleerde en verwarmde garage (21 m²) met elektrische deur, vloerverwarming en toegang tot de kelder (13 m², stahoogte).

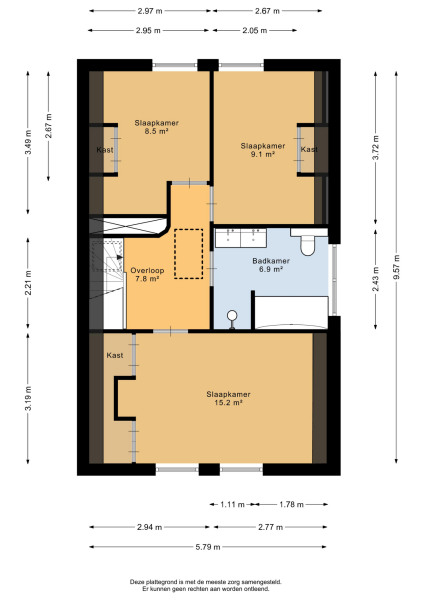
Op de eerste verdieping is in 2023 alles vernieuwd: drie slaapkamers met maatwerkkasten, strakke wanden, nieuwe vloeren, airco’s en een moderne afwerking. De luxe badkamer (uit 2015) heeft een ligbad, inloopdouche, zwevend toilet, wastafelmeubel, inbouwverlichting en vloerverwarming. De overloop is voorzien van een Velux dakraam en slimme opbergoplossingen.

Via een vlizotrap is er nog een praktische bergzolder bereikbaar over de gehele bovenverdieping.

TOT IN DE PUNTJES VERZORGD EN DUURZAAM
Deze woning is instapklaar, toekomstbestendig én energiezuinig. Energielabel A+, 24 zonnepanelen (geplaatst in 2023), een laadpaal voor de elektrische auto en vloerverwarming op de begane grond (pomp en verdeler vernieuwd in 2022).

Het platte dak van de woning is voorzien van nieuwe dakbedekking in 2023. De goten en regenpijpen zijn uitgevoerd in koper en de garage is eenvoudig te transformeren naar werkruimte of een extra slaapkamer met badkamer op de begane grond. Deze woning biedt volop ruimte voor verschillende gezinssituaties – of je nu een gezin hebt met opgroeiende kinderen, kinderen het huis uit zijn, of thuis wilt werken in alle rust.

SFEERVOLLE EN PRAKTISCHE LIGGING IN SCHOONHOVEN
Schoonhoven is een charmante stad aan de Lek, bekend om haar historische kern en zilvertraditie. Lopikerweg 1b ligt aan de rand van deze fijne stad: vrijstaand wonen met uitzicht en rust, maar alles binnen handbereik. Gezinnen profiteren van veilige fietsverbindingen naar basisscholen en sportclubs. Binnen een paar minuten ben je in het centrum voor boodschappen of een terrasje aan het water.

Ook de bereikbaarheid is uitstekend. Via de N210 en N216 rijd je zo richting Gouda, Rotterdam of Utrecht. Schoonhoven ligt midden in het Groene Hart en heeft bovendien een rijk verenigingsleven, wat het extra aantrekkelijk maakt voor gezinnen en actieve 50-plussers.

KENMERKEN:
-Bouwjaar: 2004
-Woonoppervlakte: 128 m² (exclusief garage van 21m2 en kelder van 13m2)
-Overige inpandige ruimte: 50m2 (inclusief garage)
-Perceeloppervlakte: 490 m² eigen grond
-Inhoud: ca. 682 m³
-Aantal verdiepingen: 2 + bergzolder + kelder
-Energielabel: A+
-Zonnepanelen: 24 (geplaatst in 2023)
-Laadpaal voor elektrische auto
-Vloerverwarming begane grond en badkamer (pomp en verdeler vernieuwd in 2022)
-Tuinligging: zuiden, aan water met vrij uitzicht
-Oriëntatie: voorzijde vrij uitzicht over water en weilanden, achterzijde vrij uitzicht water en boomgaard

Oplevering: in overleg
TOELICHTINGSCLAUSULE NEN2580
De Meetinstructie is gebaseerd op de NEN2580. De Meetinstructie is bedoeld om een meer eenduidige manier van meten toe te passen voor het geven van een indicatie van de gebruiksoppervlakte. De Meetinstructie sluit verschillen in meetuitkomsten niet volledig uit, door bijvoorbeeld interpretatieverschillen, afrondingen of beperkingen bij het uitvoeren van de meting.

KOOPOVEREENKOMST PAS RECHTSGELDIG NA ONDERTEKENING
Een mondelinge overeenstemming tussen de particuliere verkoper en de particuliere koper is niet rechtsgeldig. Met andere woorden: er is geen koop. Er is pas sprake van een rechtsgeldige koop als de particuliere verkoper en de particuliere koper de koopovereenkomst hebben ondertekend. Dit vloeit voort uit artikel 7:2 Burgerlijk Wetboek. Een bevestiging van de mondelinge overeenstemming per e-mail of een toegestuurd concept van de koopovereenkomst wordt overigens niet gezien als een 'ondertekende koopovereenkomst'

“Deze informatie is door ons met de nodige zorgvuldigheid samengesteld. Onzerzijds wordt echter geen enkele aansprakelijkheid aanvaard voor enige onvolledigheid, onjuistheid of anderszins, dan wel de gevolgen daarvan. Alle opgegeven maten en oppervlakten zijn indicatief.”

Ontdek Schoonhoven met Baerz, Uw Vertrouwde Personal Property Finder & Advisor

De genuanceerde vastgoedmarkt in Schoonhoven vraagt om lokale kennis en ervaring. Voor het navigeren van monumentale eisen, toegang tot off-market woningen en kennis van lokale bijzonderheden is een specialist onmisbaar. Adviseurs bieden toegang tot exclusieve kansen, begeleiden bij onderhandelingen en zorgen voor een soepel verloop. Hun inzicht in waarde, restauratiepotentieel en vertrouwelijkheid maakt het verschil.

Speciale Kenmerken

Zonnepanelen
Alarm system
Air conditioning

Kenmerken

Overdracht
Vraagprijs
€ 935.000 k.k.
Status
verkocht onder voorbehoud
Aanvaarding
in overleg
Bouw
Soort woonhuis
Villa
Soort bouw
vrijstaande woning
Bouwjaar
2004
Energieklasse
A+
Soort dak
zadeldak
Slaapkamers
3
Badkamers
1
Oppervlakten en inhoud
Woonoppervlakte
128 m2
Overige inpandige ruimte
50 m2
Inhoud
682 m3
Perceeloppervlakte
490 m2
faciliteiten
Mechanische ventilatie
Alarminstallatie
Airconditioning
Dakraam
Zonnepanelen
Aan water
Aan rustige weg
Vrij uitzicht
Landelijk gelegen
Baerz & Co Property Brochure

Brochure

Video’s

Van Herk Makelaars Excellent

Oudehoofdplein 4
3011 TM Rotterdam

xbek@vanherk.nl
+31 102581855

www.vanherk.nl/excellent/

Informatie / bezichtigingsaanvraag

Xandra Bek profile image
Xandra Bek
Register makelaar - taxateur