VEENENDAAL
Zandstraat 35 - 3901 CJ
Nederland

Wistik Zonnenberg profile image
Wistik Zonnenberg
Register Makelaar Taxateur/ Eigenaar
€849.500 k.k.
Woonoppervlakte
180m2
Perceeloppervlakte
340m2
Slaapkamers
4

Omschrijving

DEELNEMER OPEN HUIZEN DAG zaterdag 28 maart a.s. 11:00 - 15:00 uur.

Wonen aan de Zandstraat – karakter, comfort en een ideale combinatie van het levendige centrum en woning in complete rust.

Ontdek de veelzijdige mogelijkheden van dit aantrekkelijk gelegen pand met Gemengde bestemming! Dit object biedt een unieke kans voor zowel wonen als ondernemen. De begane grond leent zich namelijk naast wonen ook perfect voor lichte bedrijfsactiviteiten (categorie 1 en 2), detailhandel tot 250 m², dienstverlening, maatschappelijke functies, kantoren en horeca (categorie 1 t/m 3). Hierdoor kan werken en wonen moeiteloos gecombineerd worden. Dankzij de flexibele invulling en strategische ligging is dit pand een uitstekende keuze.

Soms loopt u een woning binnen en voelt het alsof alles klopt. De sfeer, de afwerking, de rust die over u heen valt. Aan de Zandstraat 35 in Veenendaal vindt u zo’n plek: een statig monumentaal vrijstaand herenhuis met een rijke geschiedenis en een afwerkingsniveau waar je u tegen zegt. Alles aan deze woning straalt zorg, liefde en aandacht uit. Karakter en authentieke details geven elke ruimte iets bijzonders. Van de op maat gemaakte kastjes tot de met stijl afgewerkte aanbouw; van de warme houten vloeren tot de hoge plafonds met sierlijsten. Hier komen sfeer en functionaliteit samen in een woning die u niet alleen ziet, maar écht beleeft. En dan hebben we het nog niet eens gehad over de heerlijke, ruime en zonnige tuin, de moderne keuken, de twee luxe badkamers of de unieke combinatie van oude details met hedendaagse woonwensen. Of u nu op zoek bent naar een warme gezinswoning, een sfeervolle werkplek aan huis, een unieke kantoorruimte of een droomplek voor binnen- én buitenleven: dit huis vinkt alles af. Met een perceel van ruim 340 m², een verrassend ruime indeling en een topligging aan de rand van het centrum, beschikt de woning over het beste van twee werelden namelijk een rustige woonomgeving maar toch in het levendige centrum van Veenendaal. Klaar om u te laten verrassen?

De buurt
De Zandstraat is een rustige straat aan de rand van het centrum van Veenendaal, waar karakteristieke bebouwing en groen elkaar afwisselen. U woont hier in een prettige en kindvriendelijke omgeving, met winkels, horeca, het stadsstrand , scholen en het station allemaal op loop- of fietsafstand. De straat ademt historie en authenticiteit, maar biedt tegelijk de gemakken van de stad. Parkeren doet u op eigen terrein (minimaal 2 auto’s) of in de directe omgeving. Zoekt u de natuur op? Binnen enkele minuten fietst u naar de bossen van de Utrechtse Heuvelrug of de uitgestrekte landerijen in de omgeving. Kortom: een plek waar rust, bereikbaarheid en sfeer samenkomen.

Indeling begane grond
De royale hal geeft meteen de toon aan: hoog plafond, een combinatie van klassieke tegeltjes en strak afgewerkte wanden, stijlvolle trapopgang, paneeldeuren en een authentieke sfeer. Vanuit hier loopt u door naar diverse ruimtes, waaronder de woonkamer, eetkamer, het toilet met fonteintje en de keuken.

De royale woonkamer, waar de prachtige massief eiken Hongaarse punt vloer, hoge raampartijen met authentieke luiken , maatwerk design radiatoren en het hoge balkenplafond direct de aandacht trekken, is een perfecte combinatie tussen modern en klassiek. De zitkamer aan de voorzijde is sfeervol en licht, terwijl de eetkamer tuingericht is en, evenals het zitgedeelte, beschikt over een authentieke schouw. Via de lichte doorloop loopt u, langs het toilet en een bergkast met witgoedaansluitingen, richting de keuken. De keuken zelf is klassiek, modern en volledig uitgerust met inbouwapparatuur, waaronder een inductiekookplaat, schouwafzuigkap, oven en vaatwasser. Achter de keuken vindt u een praktische berging met de koel-/vriescombinatie en cv-installatie, verborgen achter prachtige maatwerk loftdeuren. Een vlizotrap verleent toegang tot de bergzolder, waar u geniet van veel extra opbergruimte. De gehele benedenverdieping is perfect onderhouden, tot in de kleinste details afgewerkt en klaar voor jarenlang woon- en/of werkplezier.

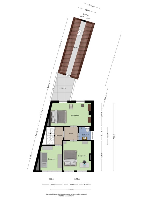
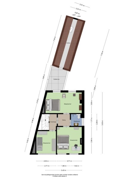
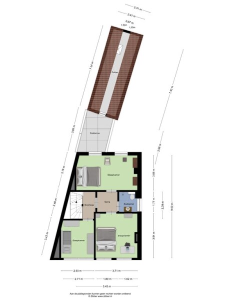
Eerste verdieping
Op de eerste verdieping bevinden zich drie (mogelijkheid tot vier) ruime sfeervolle slaapkamers en een moderne badkamer. De overloop is mooi afgewerkt en geeft toegang tot alle vertrekken. De master bedroom is zeer ruim en voorzien van grote raampartijen, vanwaar u zicht hebt op de tuin en het knusse dakterras waar u kunt genieten van een ontbijtje in de ochtendzon, en een heerlijk drankje kunt nuttigen op een mooie zomeravond.
De kamer heeft een rustige uitstraling, perfect om u terug te trekken na een lange dag. Ook de andere kamers worden heerlijk verlicht door de grote raampartijen en hebben nog de prachtige originele houten vloer. De badkamer is stijlvol betegeld en uitgerust met een regendouche, een robuust eiken meubel met waskom, geïntegreerde kraan en een tweede toilet. Alles is in lichte, natuurlijke tinten uitgevoerd, wat zorgt voor een frisse en luxe uitstraling.

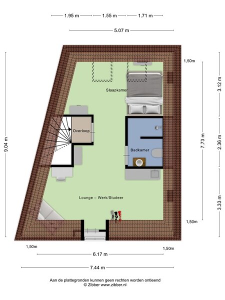
Tweede verdieping
Op de tweede verdieping wordt u verrast door een royale, open ruimte met een bijzondere indeling. Meteen valt de warme uitstraling op dankzij de fraaie vloer en de zichtbare houten spanten die deze etage een bijzonder karakter en aangename sfeer geven. De verdieping is zo ingedeeld dat het slaapgedeelte, de loungehoek en werk/studeerplek met elkaar in verbinding staan. Deze verdieping beschikt tevens over een eigen pantry met origineel granito aanrechtblad , een eigen badkamer, stijlvol afgewerkt met houtlook tegelwerk, witte wandtegels en zwarte balkdetails. De badkamer is uitgerust met een inloop regendouche, een wandcloset en ook hier vindt u een waskom op een robuust eiken blad en geïntegreerde kraan. Een heerlijke luxe toevoeging, waardoor deze verdieping uitstekend kan functioneren als thuiskantoor, zelfstandig (gasten)verblijf , loft voor één van uw kinderen, of uw royale master suite!

Buitenruimte
De splitlevel achtertuin met leilindes en klassieke walnootboom is een absolute troef. Breed, diep en lekker besloten. U geniet hier van volledige privacy, zon én schaduw. Een heerlijke tuin om in te vertoeven: zomeravonden, een kop koffie in de ochtendzon (met vers gebakken taart van uw eigen walnootboom) of borrels met vrienden – dit is jouw buitenkamer. Achter in de tuin is er ook nog een berging voor fietsen en tuingereedschap, en een dubbele poort voor makkelijke toegang met een auto. Hier kunt u gemakkelijk meerdere auto’s parkeren.

Bent u op zoek naar een karakteristieke woning met moderne afwerking, veel ruimte en een fantastische tuin? Dan is Zandstraat 35 in Veenendaal absoluut een bezichtiging waard. Neem contact op voor meer informatie en plan direct een bezichtiging in. Wie weet woont u binnenkort in dit prachtige, monumentale herenhuis – waar klassiek en modern hand in hand gaan.

Algemene gegevens
- Type woning: vrijstaande woning (herenhuis)
- Bouwjaar: 1908
- Aantal kamers: 6
- Aantal slaapkamers: 4 (mogelijkheid tot een 5de slaapkamer)
- Aantal badkamers: 2
- Parkeerruimte: Op eigen terrein en in de directe omgeving (parkeervergunning, betaald en openbaar parkeren)
- Aanwezig: aanbouw, dakterras, berging en meerdere parkeerplaatsen op eigen terrein
- Ligging tuin: zuid
- Tuin bereik: via de woning en een achterom

Technische gegevens
- Warmwatervoorziening: HR cv-ketel, Nefit, bouwjaar 2024
- Verwarmvoorziening: HR cv-ketel, Nefit, bouwjaar 2024
- Zonnepanelen: niet aanwezig
- Voorzieningen: vliering aanwezig
- Mechanische ventilatie: aanwezig
- Isolatie: vloerisolatie deels aanwezig
- Dubbel glas: niet aanwezig
- Glasvezel kabel aanwezig
- Kozijnen: hout

WILT U EVEN BINNEN KIJKEN?

Voor meer informatie omtrent deze woning, kunt u contact opnemen met ons kantoor in Veenendaal.

U bent van harte welkom! De beste indruk van deze woning krijgt u natuurlijk tijdens een bezichtiging. Wij proberen onze bezichtigingen altijd in samenspraak met verkoper en koper te plannen en nemen ruim de tijd, zodat u op uw gemak de woning kan bekijken en ervaren.
N.B. Aan de samenstelling van deze gegevens is maximale zorg besteed. Aan onvolkomenheden in de vermelde gegevens en tekeningen kunnen geen rechten en aanspraken worden ontleend.

Kenmerken

Overdracht
Vraagprijs
€ 849.500 k.k.
Status
Available
Aanvaarding
In Concert
Referentie
08214
Bouw
Soort woonhuis
Mansion
Soort bouw
Detached House
Bouwjaar
1908
Soort dak
composite
Slaapkamers
4
Badkamers
2
Oppervlakten en inhoud
Woonoppervlakte
180 m2
Overige inpandige ruimte
5 m2
Gebouwgebonden buitenruimte
10 m2
Externe bergruimte
5 m2
Inhoud
654 m3
Perceeloppervlakte
340 m2
faciliteiten
Cable Tv
Fluetube
Fibreopticcable
Not Furnished
Garden
Internetconnection
Phoneline
Skylight
Storageroom
Not Upholstered
Ventilation
Baerz & Co Property Brochure

Brochure

Video’s

Plattegronden

Zonnenberg Makelaardij

Kerkewijk 108
3904 JG Veenendaal

info@zonnenbergmakelaardij.nl
+31 318 559600

www.zonnenbergmakelaardij.nl

Informatie / bezichtigingsaanvraag

Wistik Zonnenberg profile image
Wistik Zonnenberg
Register Makelaar Taxateur/ Eigenaar

Een luxe woning kopen in Veenendaal

Veenendaal biedt een perfecte balans tussen rust, stedelijke elegantie en veelzijdige voorzieningen. Privacy, groen wonen en internationale connecties staan centraal, ondersteund door hoogstaande vastgoedservices voor een wereldwijde, veeleisende clientèle.