AMSTERDAM
Prinsengracht 845 - 1017 KB
Holandia

Sander Bovenkerk profile image
Sander Bovenkerk
Real estate agent
€3,950,000 k.k.
Powierzchnia mieszkalna
287m2
Wielkość działki
156m2
Sypialnie
4

Opis

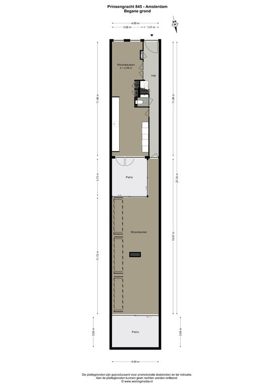
Amsterdamska kamienica nad kanałem znajduje swój wzór przy Prinsengracht, gdzie ta w pełni odrestaurowana rezydencja rozciąga się na około 287 m², ustanawiając rzadko spotykany standard miejskiego życia. Rozplanowana na pięciu starannie zaprojektowanych kondygnacjach, oferuje cztery sypialnie i trzy łazienki, dwa zaciszne patia oraz doświadczenie mieszkania zdefiniowane przez światło, proporcje i autentyczność.

Wejście historycznym portalem znad kanału prowadzi do marmurowego holu, z którego trafiamy do jasnej kuchni z częścią dzienną, wyposażonej w sprzęt Gaggenau i przestronną jadalnię z wielkoformatowymi oknami na kanał. Przeszklone stalowe drzwi, zachowane zabytkowe kafle oraz niemal 30-metrowa przestrzeń parteru zapewniają ciągłość przestrzeni rzadko spotykaną nawet wśród znamienitych amsterdamskich kamienic nad kanałem. Mikrocementowa podłoga salonu, gazowy kominek tunelowy i obszerne świetliki nadają wnętrzom wyrafinowanego spokoju, a patia i oryginalna terakota płynnie łączą wnętrze z ogrodem.

Każde piętro wykończono francuskim dębem – od pierwszego poziomu idealnego na biuro domowe lub salon, po master suite zajmujący całą drugą kondygnację z widokiem na kanał, odsłoniętymi belkami i luksusową łazienką. Dodatkowe sypialnie, łazienki z mikrocementu najwyższej klasy oraz apartament na ostatniej kondygnacji zapewniają wygodne warunki dla rodziny, całość jest klimatyzowana i obsługiwana przez zaawansowany system inteligentnego domu.

Położona w centrum Amsterdamu między Nieuwe Spiegelstraat a Vijzelstraat nieruchomość zapewnia natychmiastowy dostęp do muzeów, ekskluzywnych sklepów, wyśmienitych restauracji oraz dystyngowanej atmosfery Amstelveld. Tramwaj, metro i główne arterie komunikacyjne pozwalają sprawnie dotrzeć zarówno do centrum, jak i na lotnisko. Ta posesja własnościowa wyznacza międzynarodowy punkt odniesienia dla życia w mieście, łącząc historię, tempo i dyskrecję. Dla osób poszukujących luksusowej kamienicy nad kanałem na sprzedaż w Amsterdamie, ten adres stanowi wyjątkowe połączenie dziedzictwa z nowoczesnym wyrafinowaniem.

Odkryj Amsterdam z Baerz, Twoim Zaufanym Osobistym Doradcą i Znajdźcą Nieruchomości

Poruszanie się po rynku nieruchomości luksusowych w Amsterdamie wymaga głębokiej znajomości lokalnej specyfiki, dyskrecji oraz umiejętnych negocjacji. Najlepsi doradcy zapewniają dostęp do prywatnych ofert, wyjaśniają zawiłości prawa własności i pomagają znaleźć wartość w segmencie, gdzie okazje rzadko trafiają do publicznej oferty. Doświadczone zespoły doradców przeprowadzają wnikliwy audyt aktywów, reprezentują klienta w negocjacjach, zapewniają płynność transakcji i chronią prywatność na każdym etapie procesu.

Unikaj powszechnych pułapek

Międzynarodowi kupujący często marnują cenny czas na zduplikowane, nieaktualne lub wprowadzające w błąd oferty online, zwłaszcza że prawie 30% luksusowych domów nigdy nie pojawia się na rynku publicznym. Agenci sprzedających reprezentują interesy sprzedającego, a nie kupującego. Nawet prośba o informacje o nieruchomości może skutkować zarejestrowaniem Cię jako „klienta” agenta sprzedającego bez Twojej zgody.
Z Baerz Property Finders & Advisors unikasz wszystkich tych pułapek całkowicie. Działamy wyłącznie na Twoją rzecz, oferując niezależną reprezentację, jasne doradztwo i dostęp do wszystkich dostępnych nieruchomości, w tym do ofert poza rynkiem, które inni nigdy nie zobaczą.

Zainteresowany Osobowym Doradcą Nieruchomości?

Pokazujemy Ci wszystkie dostępne domy w jednym miejscu. Skontaktuj się z nami, aby dowiedzieć się, jak możemy spełnić Twoje potrzeby i chronić Twoje interesy wyłącznie.

Cechy

Klimatyzacja
Przeniesienie własności
Cena wywoławcza
€ 3.950.000 k.k.
Status
verkocht onder voorbehoud
Akceptacja
in overleg
Konstrukcja
Rodzaj domu
Grachtenpand
Typ budynku
tussenwoning
Okres budowy
1710
Sypialnie
4
Łazienki
3
Powierzchnie i objętość
Powierzchnia mieszkalna
287 m2
Inna przestrzeń wewnętrzna
0 m2
Przestrzeń zewnętrzna przylegająca do budynku
27 m2
Objętość w metrach sześciennych
992 m3
Wielkość działki
156 m2
Udogodnienia
Mechanische ventilatie
Tv kabel
Airconditioning
Domotica
Aan water
In centrum
Baerz & Co Property Brochure

Broszura

Filmy

Video Prinsengracht 845

Heeren Makelaars

Stadionweg 75
1077 SE Amsterdam

info@heerenmakelaars.nl
+31 204702255

www.heerenmakelaars.nl

Informacja / Prośba o oględziny

Sander Bovenkerk profile image
Sander Bovenkerk
Real estate agent

Zakup luksusowej nieruchomości w Amsterdam

Amsterdam oferuje kosmopolityczny styl życia zdefiniowany przez dziedzictwo, doskonałą komunikację i dyskretny luksus. Mieszkańcy korzystają z rozbudowanej społeczności międzynarodowej, starannie dobranych usług i tętniącej życiem kultury. Trwała atrakcyjność miasta wynika z harmonii historii, wyrafinowania i postępowego ducha.