STAVOREN
Koeweg 42 - 8715 EN
Holandia

Ellen Schoneveld profile image
Ellen Schoneveld
Real Estate Agent
€875,000 k.k.
Powierzchnia mieszkalna
245m2
Wielkość działki
3265m2
Sypialnie
5

Opis

Villa Stavoren oferuje intrygującą perspektywę życia w północnej Holandii. Położona na ogrodzonej działce o powierzchni 3 265 m² w pobliżu IJsselmeer i tuż przy marinie, łączy prywatność, zieleń oraz łatwy dostęp do otwartych szlaków wodnych Fryzji. W pełni odnowione wnętrze o powierzchni 245 m² urządzono z myślą o ponadczasowej jakości. Na mieszkańców czekają cztery sypialnie, dwie łazienki oraz luksusowa kuchnia z pomieszczeniem gospodarczym. Każdy zakątek domu, doświetlony szerokimi przeszkleniami i antresolą, harmonijnie współgra ze spokojnym rytmem otoczenia i zmieniającymi się fryzyjskimi niebiosami. Piece na drewno, ciepła drewniana podłoga z ogrzewaniem podłogowym oraz płynne przejście na werandę i taras budują poczucie komfortu oraz intymności.

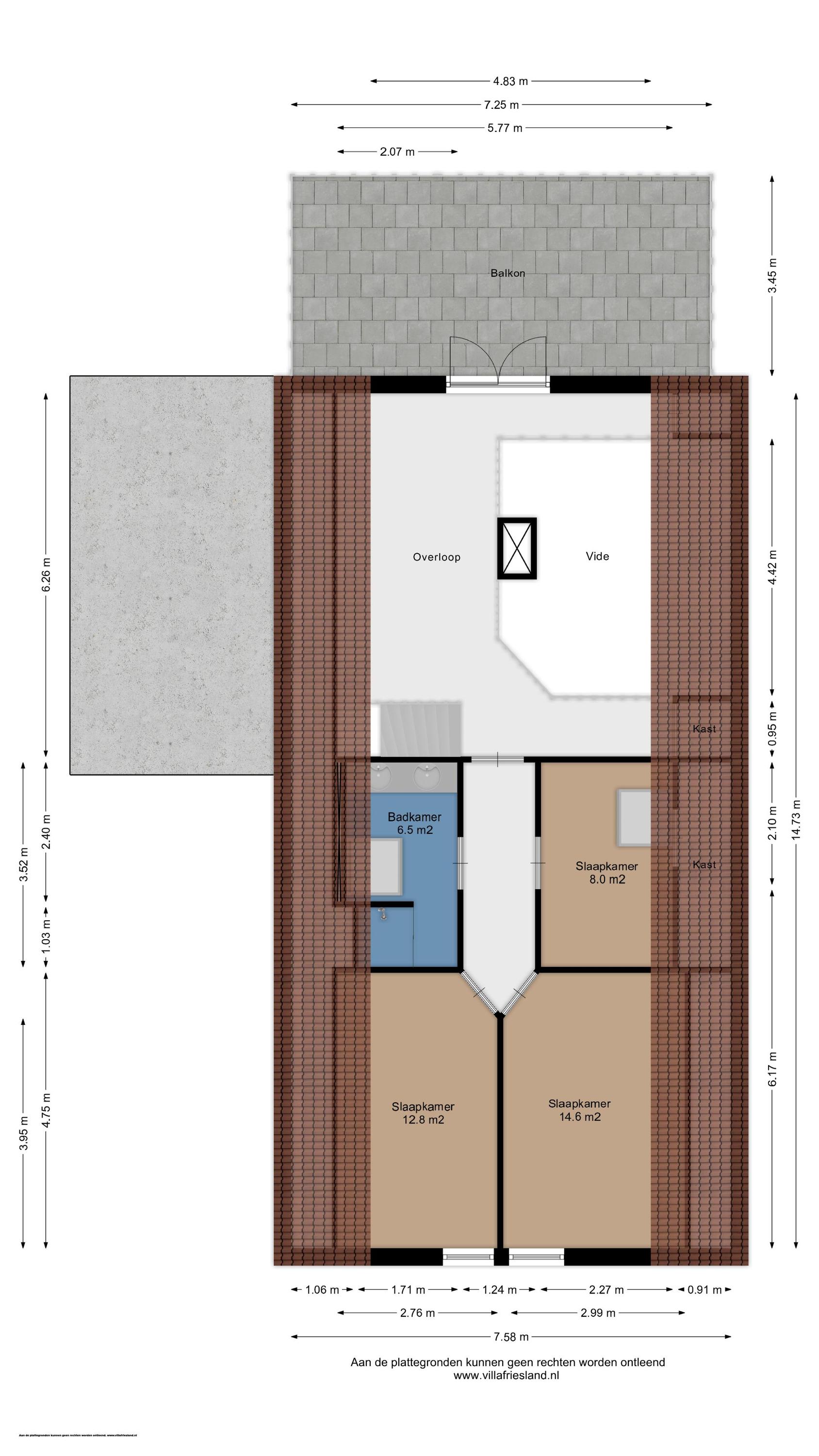
Wille zaprojektowano z myślą o rodzinach wielopokoleniowych – na parterze znajduje się przestronna główna sypialnia z garderobą i łazienką ensuite. Piętro oferuje trzy dodatkowe sypialnie, dużą łazienkę i taras słoneczny, z którego prywatnie można podziwiać wschody i zachody słońca nad trzcinowymi wodami.

Niedawno wybudowany, w pełni ocieplony domek gościnny sprawdzi się jako studio lub domowe biuro. Wyposażono go w aneks kuchenny, łazienkę oraz szerokie okna wychodzące na południowy zachód, oferujące panoramiczne widoki na naturę. Podwójny garaż obejmuje warsztat, pomieszczenia techniczne oraz piętro do elastycznego przechowywania lub kreatywnych działań; parking przewidziano dla około dziewięciu samochodów.

Starannie zaprojektowany ogród, zadbany dzięki robotowi koszącego, oferuje swobodnie rozmieszczoną roślinność, w tym drzewa owocowe, żywopłoty i kanały wodne. Wybrukowany podjazd i brama wjazdowa podkreślają dyskretną elegancję posiadłości. Zarówno w domu głównym, jak i gościnnym znajdziemy tarasy skierowane na słońce, które pozwalają cieszyć się życiem na zewnątrz od wiosny do wieczoru. Willa wyposażona jest w ramy okienne z PCV z moskitierami, szybki internet światłowodowy oraz położona jest tuż przy historycznym miasteczku Stavoren i słynnej trasie Elfstedentocht. Lokalna infrastruktura, liczne tereny zielone i bezpośrednie połączenia z regionem pozwalają delektować się spokojnym, a zarazem aktywnym stylem życia nad wodą.

Dla poszukujących luksusowej willi na sprzedaż w Stavoren, która łączy prywatność, panoramiczne widoki i ponadczasową, architektoniczną formę, ta nieruchomość gwarantuje trwałą wartość oraz autentyczne poczucie miejsca.

Odkryj Stavoren z Baerz, Twoim Zaufanym Osobistym Doradcą i Znajdźcą Nieruchomości

Przewaga dyskretnych transakcjiRynek definiuje ograniczona podaż i przewaga transakcji niepublicznych. Doświadczeni doradcy otwierają dostęp do wyjątkowych ofert i prowadzą negocjacje dzięki lokalnym relacjom, dbając o dyskrecję, płynność i wartość kapitału.

Unikaj powszechnych pułapek

Międzynarodowi kupujący często marnują cenny czas na zduplikowane, nieaktualne lub wprowadzające w błąd oferty online, zwłaszcza że prawie 30% luksusowych domów nigdy nie pojawia się na rynku publicznym. Agenci sprzedających reprezentują interesy sprzedającego, a nie kupującego. Nawet prośba o informacje o nieruchomości może skutkować zarejestrowaniem Cię jako „klienta” agenta sprzedającego bez Twojej zgody.
Z Baerz Property Finders & Advisors unikasz wszystkich tych pułapek całkowicie. Działamy wyłącznie na Twoją rzecz, oferując niezależną reprezentację, jasne doradztwo i dostęp do wszystkich dostępnych nieruchomości, w tym do ofert poza rynkiem, które inni nigdy nie zobaczą.

Zainteresowany Osobowym Doradcą Nieruchomości?

Pokazujemy Ci wszystkie dostępne domy w jednym miejscu. Skontaktuj się z nami, aby dowiedzieć się, jak możemy spełnić Twoje potrzeby i chronić Twoje interesy wyłącznie.

Cechy

Przeniesienie własności
Cena wywoławcza
€ 875.000 k.k.
Status
verkocht onder voorbehoud
Akceptacja
in overleg
Konstrukcja
Rodzaj domu
Villa
Typ budynku
vrijstaande woning
Okres budowy
1978
Ocena energetyczna
C
Typ dachu
zadeldak
Sypialnie
5
Łazienki
3
Powierzchnie i objętość
Powierzchnia mieszkalna
245 m2
Inna przestrzeń wewnętrzna
0 m2
Przestrzeń zewnętrzna przylegająca do budynku
66 m2
Zewnętrzna przestrzeń magazynowa
73 m2
Objętość w metrach sześciennych
1011 m3
Wielkość działki
3265 m2
Udogodnienia
Tv kabel
Rookkanaal
Dakraam
Glasvezel kabel
Natuurlijke ventilatie
Aan water
Aan rustige weg
Vrij uitzicht
Beschutte ligging
Buiten bebouwde kom
Aan vaarwater
In bosrijke omgeving
Landelijk gelegen
Baerz & Co Property Brochure

Broszura

Filmy

Plany pięter

Villa Friesland Makelaardij

Lange Marktstraat 1
8911 AD Leeuwarden

info@villafriesland.nl
+31 (0)58 - 23 006 23

www.villafriesland.nl

Informacja / Prośba o oględziny

Ellen Schoneveld profile image
Ellen Schoneveld
Real Estate Agent

Zakup luksusowej nieruchomości w Stavoren

Stavoren łączy bogate dziedzictwo żeglarskie z nowoczesnym komfortem, przyciągając osoby ceniące dyskrecję, kulturę i wysokiej klasy udogodnienia. Styl życia, szeroki wybór nieruchomości i przyjazna społeczność przemawiają do zagranicznych nabywców oraz rodzin poszukujących spokoju i autentyczności.