ENSCHEDE
Heeckerenlaan 6 - 7531 HX
هولندا

Bert Kock profile image
Bert Kock
Real Estate Agent
€1,350,000 k.k.
مساحة المعيشة
354m2
حجم الأرض
2603m2
غرف نوم
5

الوصف

A Unique Living Experience on a Generous 2,603 m² Prime Location!
What a fantastic setting! This spacious villa, located on the edge of a quiet, green, and charming residential area in Enschede, offers a perfect blend of luxury and comfort. The home stands out with its distinctive architecture and warm, inviting atmosphere. With no fewer than three bathrooms, the option for ground-floor living (bedroom and bathroom), and a generous garage, this property is perfectly suited for both families and multigenerational living. Enjoy stunning open views, lush surroundings, and maximum privacy—this is truly a dream location where every day feels like a retreat.

The villa is centrally located, making cities such as Oldenzaal, Hengelo, and Enschede easily accessible. The vibrant city center of Enschede is just a stone’s throw away, offering a wide range of amenities, dining, culture, and entertainment. Additionally, several schools, sports clubs, and shopping centers are nearby, and beautiful walking routes through the countryside begin just outside your front door.

Layout
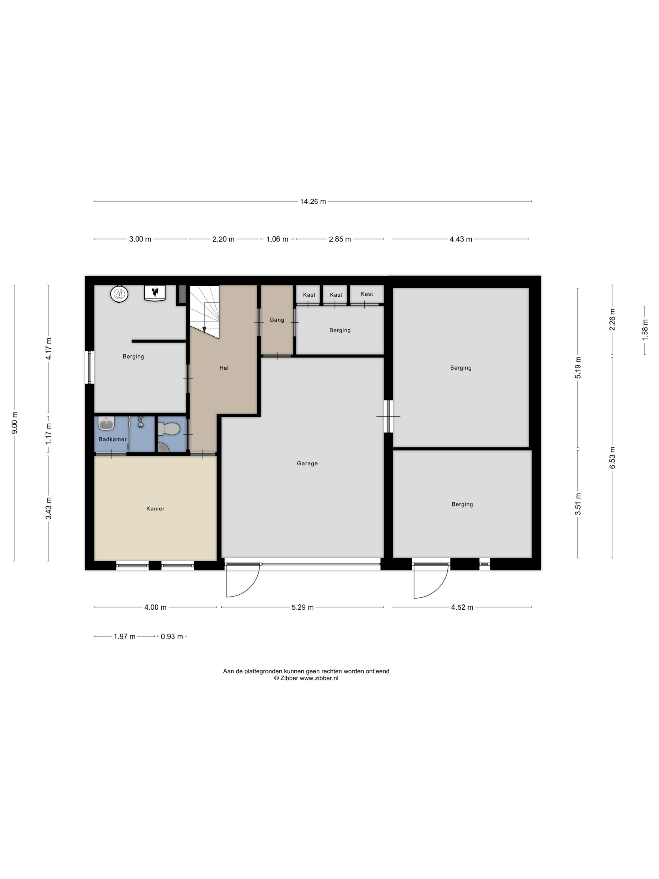
Basement:
Accessible from the ground floor, the basement features a hallway leading to two teenage bedrooms and an adjacent bathroom equipped with a shower and washbasin. The spacious garage is also located here and can be accessed via a rear entrance, offering ample room for one vehicle. Next to the garage is a charming wine cellar. Additional rooms on this level include a laundry area and two technical spaces housing the boiler and central heating system.

Ground Floor:
Covered entrance into a hallway with a striking double staircase and access to the guest toilet. From here, step into the L-shaped living and dining room with a cozy fireplace and classic mantel. The separate kitchen is fully equipped with built-in appliances, including a refrigerator, oven, microwave, dishwasher, and 4-zone induction hob with extractor. Three versatile rooms—currently used as bedrooms—are also accessible from the hall, two of which feature fitted wardrobes and en-suite bathrooms. Two of the bedrooms offer direct access to the beautifully landscaped rear garden, complete with a large partially covered terrace, lily pond, and lush greenery including rare and exotic plants.

First Floor (Attic):
Landing with access to walk-in closets and two additional rooms. One is currently used as a bedroom, and the other as a storage space, though it offers great potential to be converted into an extra bedroom.

Highlights
* Built in 1967 and extended around 2003 with a new roof
* Plot size: 2,603 m²
* Living area: 354 m²
* Spacious villa in a prime location between Lonneker and Enschede
* Unique architectural design
* Surrounded by nature and greenery
* Three full bathrooms
* Potential for up to six bedrooms
* A 10% deposit or bank guarantee is required upon purchase

Interested in this property?
We strongly recommend enlisting your own NVM purchasing agent to represent your interests. An experienced agent can save you time, money, and stress. You can find NVM agents in the Twente region via Funda or the official NVM Twente website.

Disclaimer
The information provided has been compiled with care; however, no rights may be derived from its contents. All listed measurements and surface areas are indicative, may differ from actual conditions, and are intended solely to give a general impression of the layout. We accept no liability for any inaccuracies or omissions.

الميزات

نظام إنذار
نقل الملكية
السعر المطلوب
€ 1.350.000 k.k.
الحالة
beschikbaar
القبول
in overleg
البناء
نوع المنزل
Villa
نوع المبنى
vrijstaande woning
فترة البناء
1967
تصنيف الطاقة
D
نوع السقف
schilddak
غرف نوم
5
حمامات
3
المساحات السطحية والحجم
مساحة المعيشة
354 m2
مساحة داخلية أخرى
73 m2
المساحة الخارجية الملحقة بالمبنى
82 m2
الحجم بالمتر المكعب
1587 m3
حجم الأرض
2603 m2
المرافق
Alarminstallatie
Baerz & Co Property Brochure

كتيب

فيديوهات

مخططات الطوابق

KockvanBenthem Makelaars

Bisschopstraat 18
7571 CZ Oldenzaal

bk@kvbm.nl
+31 541 52 20 22

www.kvbm.nl

طلب معلومات / مشاهدة

Bert Kock profile image
Bert Kock
Real Estate Agent