ENSCHEDE
Heeckerenlaan 6 - 7531 HX
Holandia

Bert Kock profile image
Bert Kock
Real Estate Agent
€1,350,000 k.k.
Powierzchnia mieszkalna
354m2
Wielkość działki
2603m2
Sypialnie
5

Opis

Villa Enschede to wyrafinowane życie na działce o powierzchni 2 603 m², położonej na skraju spokojnej, zadrzewionej dzielnicy. Ten dom w Enschede starannie łączy architektoniczną wyjątkowość z codziennym komfortem, oferując 354 m² przestrzeni mieszkalnej zaprojektowanej z myślą o poczuciu prywatności i możliwości wspólnego spędzania czasu. Villa Enschede rozwija się z gracją, zapewniając pięć sypialni i trzy pełne łazienki, co czyni ją idealną dla rodzin lub wielopokoleniowych gospodarstw domowych potrzebujących elastycznego układu pomieszczeń oraz możliwości zamieszkania na parterze.

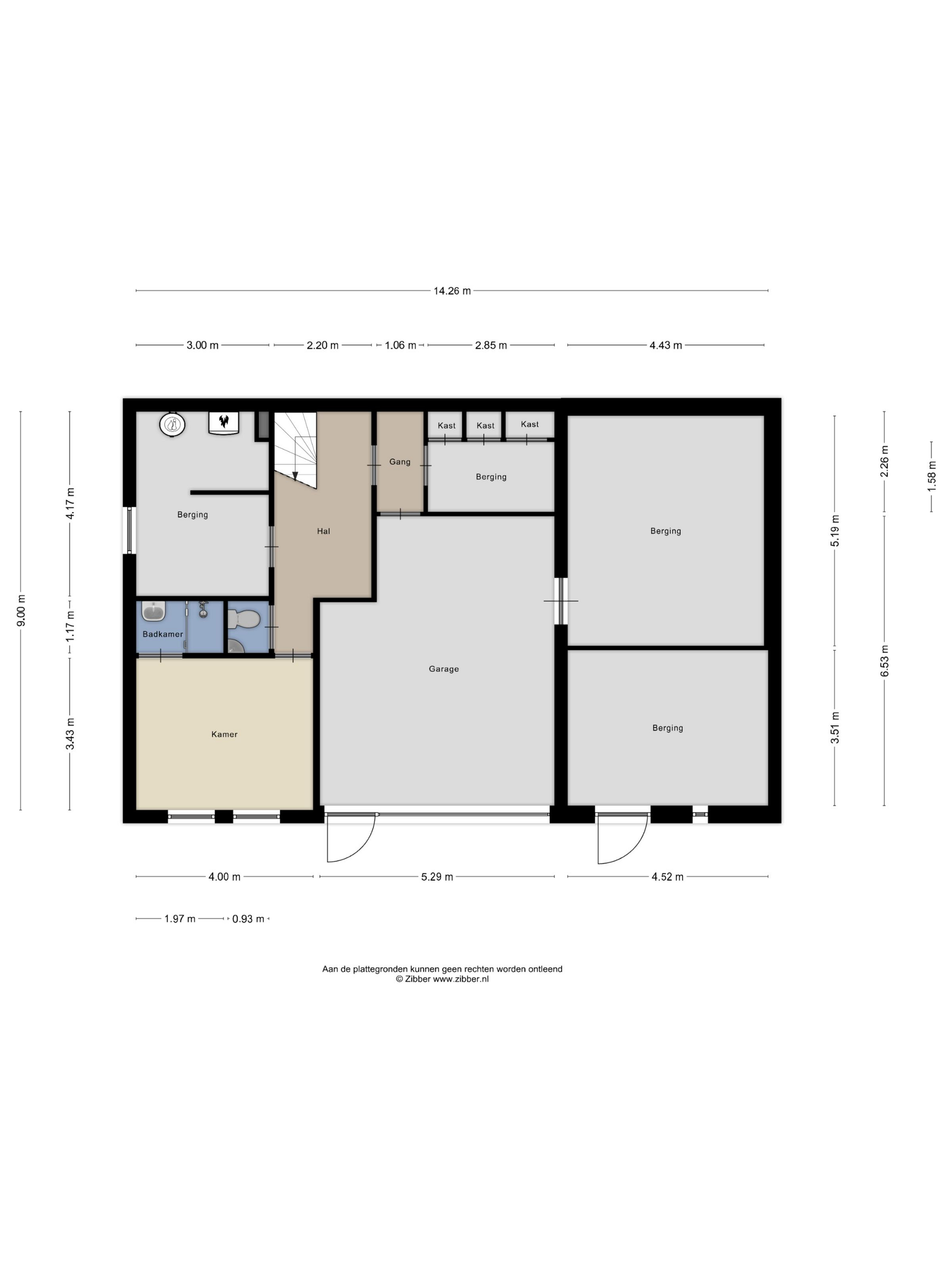
Przestronny salon i jadalnia w kształcie litery L posiadają kominek z klasycznym portalem i przechodzą w w pełni wyposażoną kuchnię. Sypialnie typu suite łączą się bezpośrednio z zagospodarowanym ogrodem, gdzie zadaszony taras i oczko wodne zapraszają do chwil spokoju. W piwnicy znajdują się sypialnie, łazienka, piwniczka na wino i pralnia, a przestronny garaż jest dostępny od tyłu. Pokoje na piętrze oferują dodatkowe możliwości aranżacji sypialni lub indywidualnych przestrzeni wypoczynkowych.

Położona pomiędzy Lonneker i Enschede, willa zapewnia szybki dostęp do Oldenzaal, Hengelo, najlepszych szkół, klubów sportowych i tras spacerowych. Zaawansowana izolacja, system alarmowy oraz klasa energetyczna D gwarantują komfort i spokój. Villa Enschede to prywatność, spokój i dostępność w unikalnej, doskonałej lokalizacji.

Odkryj Enschede z Baerz, Twoim Zaufanym Osobistym Doradcą i Znajdźcą Nieruchomości



Unikaj powszechnych pułapek

Międzynarodowi kupujący często marnują cenny czas na zduplikowane, nieaktualne lub wprowadzające w błąd oferty online, zwłaszcza że prawie 30% luksusowych domów nigdy nie pojawia się na rynku publicznym. Agenci sprzedających reprezentują interesy sprzedającego, a nie kupującego. Nawet prośba o informacje o nieruchomości może skutkować zarejestrowaniem Cię jako „klienta” agenta sprzedającego bez Twojej zgody.
Z Baerz Property Finders & Advisors unikasz wszystkich tych pułapek całkowicie. Działamy wyłącznie na Twoją rzecz, oferując niezależną reprezentację, jasne doradztwo i dostęp do wszystkich dostępnych nieruchomości, w tym do ofert poza rynkiem, które inni nigdy nie zobaczą.

Zainteresowany Osobowym Doradcą Nieruchomości?

Pokazujemy Ci wszystkie dostępne domy w jednym miejscu. Skontaktuj się z nami, aby dowiedzieć się, jak możemy spełnić Twoje potrzeby i chronić Twoje interesy wyłącznie.

Cechy

System alarmowy
Przeniesienie własności
Cena wywoławcza
€ 1.350.000 k.k.
Status
beschikbaar
Akceptacja
in overleg
Konstrukcja
Rodzaj domu
Villa
Typ budynku
vrijstaande woning
Okres budowy
1967
Ocena energetyczna
D
Typ dachu
schilddak
Sypialnie
5
Łazienki
3
Powierzchnie i objętość
Powierzchnia mieszkalna
354 m2
Inna przestrzeń wewnętrzna
73 m2
Przestrzeń zewnętrzna przylegająca do budynku
82 m2
Objętość w metrach sześciennych
1587 m3
Wielkość działki
2603 m2
Udogodnienia
Alarminstallatie
Baerz & Co Property Brochure

Broszura

Filmy

Plany pięter

KockvanBenthem Makelaars

Bisschopstraat 18
7571 CZ Oldenzaal

bk@kvbm.nl
+31 541 52 20 22

www.kvbm.nl

Informacja / Prośba o oględziny

Bert Kock profile image
Bert Kock
Real Estate Agent

Zakup luksusowej nieruchomości w Enschede

Enschede zaprasza obywateli świata do dynamicznej, kulturalnej społeczności. Zróżnicowana oferta mieszkaniowa łączy prywatność, design i ofertę usług, wspierane przez międzynarodowe połączenia i kreatywnego ducha.