SCHOORL
Duinweg 65 - 1871 AD
Ολλανδία

Angeline Croonen profile image
Angeline Croonen
Real Estate Agent
€2,500,000 k.k.
Χώρος διαβίωσης
273m2
Μέγεθος οικοπέδου
7454m2
Υπνοδωμάτια
4

Περιγραφή

Η αγροτική κατοικία Schoorl βρίσκεται κρυμμένη στο τέλος ενός μακρινού δασικού μονοπατιού, προσφέροντας μια ήρεμη απόδραση σε απόσταση αναπνοής από τις ολλανδικές ακτές. Αυτή η ξεχωριστή κατοικία, σχεδιασμένη από τον αρχιτέκτονα Royaards το 1935, υφαίνει την αρμονία, τη φύση και την ιστορία, καθιστώντας την μια ιδιοκτησία country house Schoorl που δεν μοιάζει με καμία άλλη.

Κατασκευασμένη με υλικά του 17ου αιώνα, η κύρια οικία φέρει έντονα στοιχεία της κληρονομιάς της με στιβαρά τζάκια, εμφανή δοκάρια βελανιδιάς, τοίχους επενδυμένους με πηλό και δάπεδα από μασίφ βελανιδιάς. Ο γενναιόδωρος χώρος διαβίωσης των 273 m² ξεδιπλώνεται σε ήσυχες γωνιές και φωτεινά δωμάτια, συμπεριλαμβανομένου ενός σαλονιού με θέα στον κήπο και τζάκι, ενός φιλόξενου καθιστικού με υπερυψωμένο πατάρι, καθώς και ενός προσαρτημένου γραφείου που εμπνέει συγκέντρωση με θέα στο τοπίο. Οι σύγχρονες ανέσεις συνυπάρχουν με την ιστορία, όπως το μπάνιο με επένδυση tadelakt και η παροχή ενέργειας μέσω κεντρικής θέρμανσης.

Η ψυχή αυτής της οικίας συνεχίζεται υπαίθρια, σε μια ιδιωτική, πλήρως περιφραγμένη έκταση 7.454 m² με τάφρο και διασχιζόμενη από ρυάκια αμμοθινών, όπου το τραγούδι των πουλιών συντροφεύει διαρκώς. Στο κτήμα φιλοξενείται ανεξάρτητος ξενώνας, καθώς και βοηθητικά κτίσματα, ένα ήσυχο περίπτερο τσαγιού και φούρνος αργής καύσης από πηλό, προσκαλώντας ιδιωτικές στιγμές αλλά και ευχάριστες συναθροίσεις.

Με τέσσερα υπνοδωμάτια, δύο μπάνια, ανανεωμένη στέγη από καλάμι και εγκαταστάσεις καλωδιακής τηλεόρασης, αυτή είναι μια κατοικία όπου ο χρόνος ακολουθεί τον ρυθμό της φύσης. Αποκλειστική και διακριτική, η κατοικία προσφέρει αξεπέραστη ιδιωτικότητα, άνεση και σύνδεση με τη γη. Η σπάνια πολυτέλεια της ησυχίας και της άπλας σας περιμένει στη Duinweg στο Schoorl.

Εξερευνήστε Schoorl με την Baerz, τον Αξιόπιστο Προσωπικό σας Σύμβουλο Ακινήτων

Εξειδίκευση & ΔιακριτικότηταΗ αγορά πολυτελείας στη Schoorl απαιτεί τοπική γνώση και δικτυωμένη προσέγγιση. Οι σύμβουλοι κινούνται διακριτικά ανάμεσα στον περιορισμένο αριθμό ακινήτων, εξασφαλίζοντας πρόσβαση σε ευκαιρίες που σπανίως δημοσιεύονται. Η στρατηγική διαπραγμάτευση και βαθιά γνώση των αρχιτεκτονικών, οικολογικών και αγοραστικών δεδομένων εξασφαλίζουν βέλτιστα αποτελέσματα με σεβασμό στην ιδιωτικότητα.

Αποφύγετε τα κοινά λάθη

Οι διεθνείς αγοραστές συχνά σπαταλούν πολύτιμο χρόνο σε διπλές, παρωχημένες ή παραπλανητικές διαδικτυακές καταχωρίσεις, ειδικά αφού σχεδόν 30% των πολυτελών κατοικιών δεν εμφανίζονται ποτέ στη δημόσια αγορά. Οι μεσίτες πωλητών εκπροσωπούν τα συμφέροντα του πωλητή, όχι του αγοραστή. Ακόμη και η αίτηση πληροφοριών για ένα ακίνητο μπορεί να οδηγήσει σε έναν μεσίτη πωλητή να σας καταγράψει ως «πελάτη» τους χωρίς τη συγκατάθεσή σας.
Με τους Baerz Property Finders & Advisors, αποφεύγετε εντελώς όλες αυτές τις παγίδες. Εργαζόμαστε αποκλειστικά για λογαριασμό σας, προσφέροντας ανεξάρτητη εκπροσώπηση, σαφή καθοδήγηση και πρόσβαση σε όλα τα διαθέσιμα ακίνητα, συμπεριλαμβανομένων ευκαιριών εκτός αγοράς που άλλοι δεν βλέπουν ποτέ.

Ενδιαφέρεστε για έναν Προσωπικό Σύμβουλο Ακινήτων;

Σας δείχνουμε όλα τα διαθέσιμα σπίτια σε ένα μέρος. Μη διστάσετε να επικοινωνήσετε μαζί μας για να μάθετε πώς μπορούμε να καλύψουμε τις ανάγκες σας και να προστατεύσουμε τα συμφέροντά σας αποκλειστικά.

Χαρακτηριστικά

Μεταβίβαση ιδιοκτησίας
Τιμή ζήτησης
€ 2.500.000 k.k.
Κατάσταση
beschikbaar
Αποδοχή
in overleg
Κατασκευή
Είδος σπιτιού
Villa
Τύπος κτιρίου
vrijstaande woning
Περίοδος κατασκευής
1935
Ενεργειακή απόδοση
D
Τύπος στέγης
schilddak
Υπνοδωμάτια
4
Μπάνια
2
Επιφάνειες και Όγκος
Χώρος διαβίωσης
273 m2
Άλλος εσωτερικός χώρος
17 m2
Εξωτερικός αποθηκευτικός χώρος
94 m2
Όγκος σε κυβικά μέτρα
660 m3
Μέγεθος οικοπέδου
7454 m2
Εγκαταστάσεις
Tv kabel
Rookkanaal
Dakraam
Vrij uitzicht
Beschutte ligging
In bosrijke omgeving
Baerz & Co Property Brochure

Μπροσούρα

Βίντεο

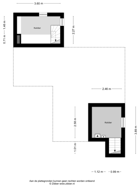
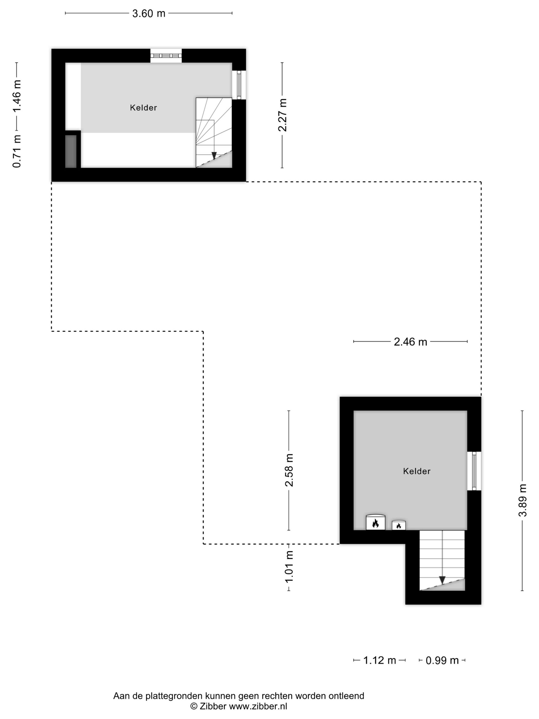
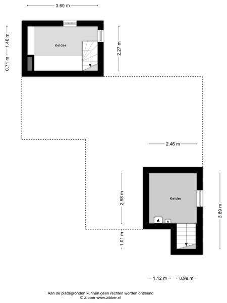
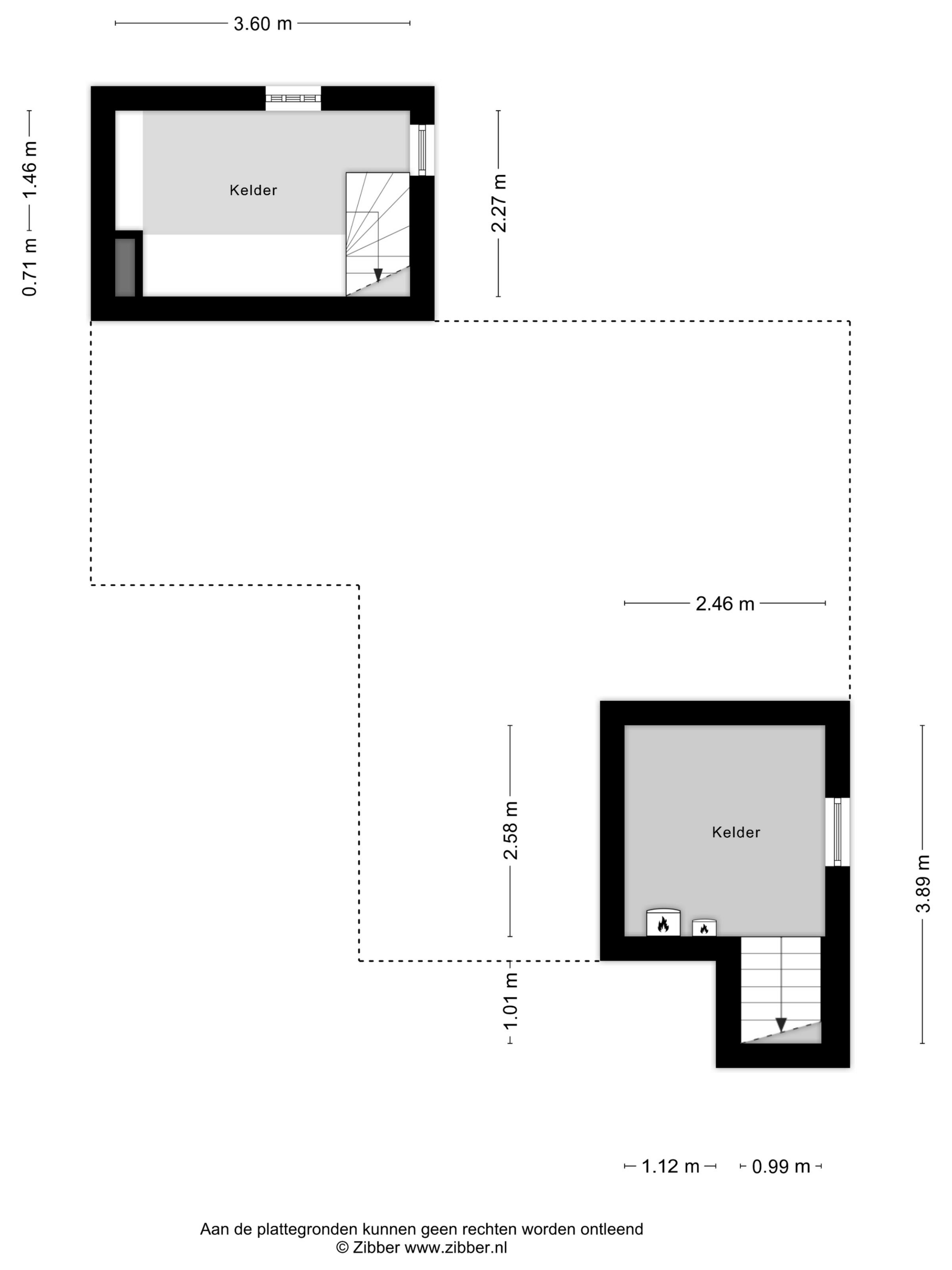
Κατόψεις

Croon Makelaars

Breelaan 41
1861 GD Bergen

info@croonmakelaars.nl
+31 (0)72 743 32 44

www.croonmakelaars.nl

Αίτηση πληροφοριών / προβολής

Angeline Croonen profile image
Angeline Croonen
Real Estate Agent

Αγορά πολυτελούς ακινήτου στο Schoorl

Η Schoorl προσελκύει όσους αναζητούν εκλεπτυσμένη διαβίωση μέσα στη φύση. Αυτός ο προνομιούχος προορισμός προσφέρει άρτιες υπηρεσίες, διακριτική κοινότητα και άμεση πρόσβαση στον παραλιακό πλούτο, καθιστώντας τον ιδανική επιλογή για διεθνείς αγοραστές που επιθυμούν γαλήνη και χαρακτήρα.