Single Family House for sale in Rhenen

Rhenen Cuneraweg 350 - 3911 RV The Netherlands


Wistik Zonnenberg profile image
Wistik Zonnenberg
Real Estate Agent
+31 318 559600
info@zonnenbergmakelaardij.nl

Zonnenberg Makelaardij
Kerkewijk 108
3904 JG Veenendaal
NETHERLANDS
+31 318 559600
www.zonnenbergmakelaardij.nl
info@zonnenbergmakelaardij.nl

Living area
174m2
Plot size
549m2
Bedrooms
6

Description

Aan de Cuneraweg 350 in Rhenen staat een schitterende, vrijstaande woning die ruimte, stijl en comfort moeiteloos met elkaar combineert. Deze moderne en uitstekend onderhouden woning biedt maar liefst 174m² aan woonoppervlakte, verdeeld over zes slaapkamers, twee strak afgewerkte badkamers en een royale open leefruimte met een luxe keuken. De aanwezigheid van een multifunctionele garage en een zonnige tuin zorgen voor optimaal woongenot. Slechts vijf jaar jong en gebouwd met oog voor duurzaamheid en comfort, waaronder vloerverwarming en energielabel A+++. De woning beschikt bovendien over een souterrain met extra slaapkamers en een technische ruimte, ideaal voor zelfstandig wonen of werken aan huis. Op het perceel van 549m² geniet u in alle rust van een fraai aangelegde tuin met meerdere terrassen, een zitkuil en volop privacy. Een woning met karakter én klasse.

In een geliefd en groen deel van Rhenen, op de grens met Veenendaal, ligt deze woning op een locatie die perfect aansluit op een actief gezinsleven. Binnen enkele minuten bereikt u diverse basisscholen en middelbare scholen, terwijl sportclubs en recreatiemogelijkheden zich op korte afstand bevinden in zowel Rhenen als Veenendaal, denk aan Kwintelooijen of het Prattenburgse Bos. Supermarkten, winkels en andere dagelijkse voorzieningen zijn in de directe omgeving te vinden, wat het gemak van wonen aan de Cuneraweg versterkt. De nabijheid van openbaar vervoer, waaronder een treinstation en meerdere bushaltes, maakt reizen naar andere steden eenvoudig en snel. Uitvalswegen zoals de A12 en de A15 zijn vlot bereikbaar, waardoor u een uitstekende verbinding heeft met onder meer Utrecht, Arnhem en Wageningen.

Entree:
Via de royale oprit betreedt u het perceel. Hier is voldoende parkeergelegenheid voor meerdere auto’s, mede dankzij de vrijstaande garage en carport. Eenmaal binnen komt u in de ruime hal, een prettig welkom met ruimte voor een garderobe of een stijlvol opbergmeubel. Vanuit deze hal heeft u toegang tot de eerste verdieping, de toiletruimte en de leefruimtes op de begane grond.

Woonkamer:
Een aangename verrassing is de royale woonkamer, die dankzij grote raampartijen baadt in natuurlijk daglicht. De open indeling geeft u alle vrijheid om een comfortabele zithoek én een uitnodigende ontvangstplek te creëren. Openslaande deuren verbinden binnen moeiteloos met buiten, waardoor de tuin als vanzelf een verlengstuk van uw leefruimte wordt.

Keuken:
Deze moderne leefkeuken vormt het kloppend hart van de woning. Dankzij het lange aanrechtblad en het kookeiland is koken hier een waar genoegen. De keuken is volledig uitgerust met een inductiekookplaat inclusief geïntegreerde afzuiging, een oven, een vaatwasmachine, een ruime koelkast, een aparte vriezer en een spoelbak. De hoogwaardige afwerking, gecombineerd met praktische opbergruimte in lades en kastjes, geeft de keuken een luxe uitstraling.

1e verdieping:
Een vaste trap brengt u naar de eerste verdieping, waar u toegang heeft tot drie ruime slaapkamers en de eerste badkamer. De overloop is licht en overzichtelijk.
Een vlizotrap biedt toegang naar de vliering met extra opbergruimte.

Slaapkamers:
Elke kamer op deze verdieping is slim ingedeeld en biedt voldoende ruimte voor een bed, een kast of een werkplek. Grote ramen zorgen voor een prettige lichtinval, terwijl de karakteristieke schuine wanden extra sfeer geven. De kamers zijn ideaal als slaapvertrek, maar ook inzetbaar als werk-, studeer- of hobbykamer.

Sanitair:
Aan de overloop grenst de modern afgewerkte badkamer. Deze is volledig betegeld en voorzien van een ligbad een ruime inloopdouche met glazen deur, een zwevend toilet en een stijlvol wastafelmeubel. De strakke afwerking draagt bij aan een luxe en verzorgde uitstraling.

Souterrain:
Een vaste trap in de hal leidt u naar het souterrain, een verrassend ruime verdieping met talloze mogelijkheden. Hier bevinden zich nog eens twee slaapkamers, een tweede badkamer, een extra multifunctionele kamer en een aparte berging. Dankzij de volwaardige indeling is deze verdieping uitstekend geschikt voor zelfstandig wonen, een praktijk aan huis of het creëren van een gastenverblijf.

Slaapkamers:
Beide slaapkamers in het souterrain zijn goed onderhouden en voorzien van voldoende lichtinval. De ruimtes bieden genoeg plaats voor een tweepersoonsbed, bureau en kast, en zijn netjes afgewerkt.

Sanitair:
De tweede badkamer sluit naadloos aan op de stijl van de eerste: volledig betegeld, modern en praktisch ingedeeld. U treft hier een royale inloopdouche, een zwevend toilet en een fraai wastafelmeubel met opbergmogelijkheid.

Extra kamer:
Deze multifunctionele ruimte is geschikt als extra woon- of werkkamer, maar kan desgewenst ook worden ingericht als inloopkast of chillruimte. De aanwezigheid van een directe toegang tot de patio geeft deze kamer een aantrekkelijke meerwaarde.

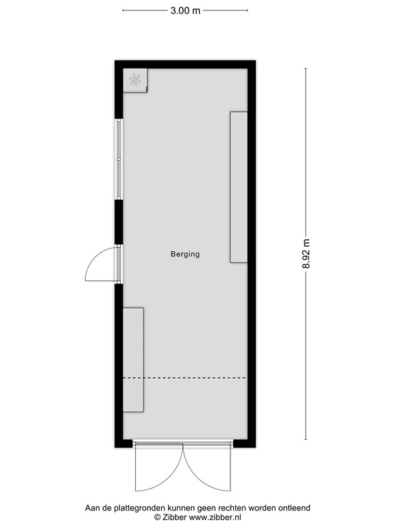
Berging:
Een praktische ruimte in het souterrain biedt volop opbergmogelijkheden. Hier zijn tevens de witgoedaansluitingen en de cv-installatie ondergebracht, wat het geheel tot een functioneel geheel maakt.

Garage:
Aangrenzend aan de woning bevindt zich de vrijstaande geïsoleerde garage. Deze is geschikt voor het stallen van een auto, fietsen of gereedschap, maar leent zich ook uitstekend als hobbyruimte of werkplaats. Dankzij de riante afmetingen en goede staat van onderhoud is dit een waardevolle toevoeging aan het geheel.

Buitenruimte:
Rondom de woning ligt een fraai aangelegde L-vormige tuin, die maximale privacy en rust biedt. Vanuit de woonkamer en de eetkamer loopt u zo naar buiten, waar u op diverse terrassen geniet van de zon. Een sfeervolle zitkuil en de slimme indeling zorgen ervoor dat u op elk moment van de dag een perfecte plek vindt om te ontspannen. De tuin is met zorg onderhouden en vormt een waar verlengstuk van het woonplezier dat deze woning biedt.

Algemene gegevens
- Type woning: Geschakelde vrijstaande woning
- Bouwjaar: 2020
- Aantal kamers: 7
- Aantal slaapkamers: 6
- Aantal badkamers: 2
- Parkeerruimte: op eigen terrein
- Aanwezig: dakkapel/berging/laadpaal/carport
- Ligging tuin: rondom
- Tuin bereik: rondom/ via openslaande deuren woning

Technische gegevens
- Warmwatervoorziening: Buva WTW luchtwarmtepomp
- Verwarmvoorziening: Buva WTW luchtwarmtepomp
- Vloerverwarming/koeling: aanwezig op begane grond, souterrain en eerste verdieping
- Zonnepanelen: 22 stuks
- Voorzieningen: domotica van Gira / Grondwaterpomp met automatisch sproeisysteem
- Mechanische ventilatie: aanwezig
- Isolatie: dak/spouw/vloer geheel
- Triple glas: geheel
- Glasvezel kabel, TV kabel
- Kozijnen: aluminium

WILT U EVEN BINNEN KIJKEN?

Voor meer informatie omtrent deze woning, kunt u contact opnemen met ons kantoor in Veenendaal.

U bent van harte welkom! De beste indruk van deze woning krijgt u natuurlijk tijdens een bezichtiging. Wij proberen onze bezichtigingen altijd in samenspraak met verkoper en koper te plannen en nemen ruim de tijd, zodat u op uw gemak de woning kan bekijken en ervaren.
N.B. Aan de samenstelling van deze gegevens is maximale zorg besteed. Aan onvolkomenheden in de vermelde gegevens en tekeningen kunnen geen rechten en aanspraken worden ontleend.

Features

Transfer of ownership
price
€ 1.050.000 k.k.
Status
Available
Acceptance
In Concert
Construction
Kind of house
Single Family House
Building type
Detached House
Construction period
2020
Energy rating
APLUSPLUS
Roof type
composite
Bedrooms
6
Bathrooms
2
Surface Areas And Volume
Living area
174 m2
External storage space
27 m2
Volume in cubic meters
646 m3
Plot size
549 m2
facilities
Fibreopticcable
Garden
Solarpanels
Ventilation
Baerz & Co Property Brochure

Brochure

Information / Viewing request

Videos

Video Cuneraweg 350

Photos

Floor Plans