AMSTELVEEN
Burgemeester Rijnderslaan 260 - 1185 MC
Países Bajos

Sander Bovenkerk profile image
Sander Bovenkerk
Real estate agent
€1,350,000 k.k.
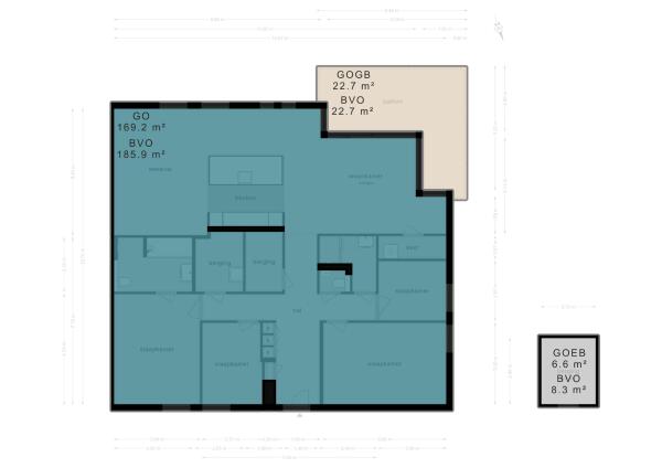
Superficie habitable
169m2
Tamaño del terreno
N/A
Dormitorios
4

Descripción

Apartamento Amstelveen ofrece una excepcional armonía entre arquitectura sostenible y confort sin concesiones. Esta obra nueva abarca aproximadamente 169 m², distribuidos en cuatro dormitorios y dos baños, con acceso a una terraza orientada al suroeste. La entrada privada conduce a un amplio vestíbulo con armarios empotrados, desvelando interiores marcados por suelos en espiga, calefacción y refrigeración por suelo radiante. La zona principal de estar recibe abundante luz natural, protagonizada por una isla de cocina Siematic con electrodomésticos integrados y salida a un balcón soleado con vistas despejadas.

La suite principal, de unos 17,5 m², cuenta con baño en suite equipado con bañera, ducha a ras de suelo, doble lavabo y toallero calefactado. El despacho, de 18,5 m², dispone de su propio sistema de aire acondicionado. Cada estancia ha sido diseñada para maximizar privacidad y fluidez, incluyendo espacios adicionales como despensa, cuarto de servicio y trasteros. Dos plazas de aparcamiento seguras, cada una con estación de carga, y un trastero en el garaje están accesibles por ascensor.

La ubicación en The Mayor destaca por su atractivo internacional, con arquitectura de MVDS y paisajismo de Lodewijk Baljon. Los residentes disfrutan de la cercanía al Amsterdamse Bos, los Heemparken y las boutiques y vida cultural de Stadshart. El rápido acceso a la A9 garantiza desplazamientos ágiles. Entre las comodidades, destacan conserje, gimnasio y una zona de cafetería en la planta baja, reflejando un estilo de vida orientado a la discreción y al bienestar. Este apartamento de lujo en venta en Amstelveen es la máxima expresión de vida refinada, pensada para quienes valoran la tranquilidad y la conexión en la dirección más accesible de la ciudad.

Explora Amstelveen con Baerz, Tu Buscador y Asesor Personal de Propiedades de Confianza

Navegar el discreto y competitivo mercado de Amstelveen requiere conocimiento más allá de las ofertas públicas. Los asesores cualificados brindan acceso a ventas privadas, comprensión de la dinámica vecinal y experiencia en operaciones a medida. Su especialización garantiza diligencia exhaustiva, negociaciones optimizadas y transacciones internacionales fluidas, protegiendo los intereses de los clientes en cada fase.

Evita los errores comunes

Los compradores internacionales a menudo pierden tiempo valioso en listados en línea duplicados, desactualizados o engañosos, especialmente porque casi el 30% de las casas de lujo nunca aparecen en el mercado público. Los agentes del vendedor representan los intereses del vendedor, no los del comprador. Incluso solicitar información sobre una propiedad puede resultar en que un agente del vendedor te registre como su “cliente” sin tu consentimiento.
Con Baerz Property Finders & Advisors, evitas por completo todos estos errores. Trabajamos únicamente en tu nombre, ofreciendo representación independiente, orientación clara y acceso a todas las propiedades disponibles, incluidas oportunidades fuera del mercado que otros nunca llegan a ver.

¿Interesado en un Asesor Personal de Propiedades?

Te mostramos todas las casas disponibles en un solo lugar. No dudes en contactarnos para saber cómo podemos satisfacer tus necesidades y proteger tus intereses exclusivamente.

Características

Transferencia de propiedad
Precio solicitado
€ 1.350.000 k.k.
Estado
verkocht onder voorbehoud
Aceptación
in overleg
Construcción
Tipo de casa
Bovenwoning
Periodo de construcción
2021
Calificación energética
A+
Tipo de tejado
plat dak
Dormitorios
4
Baños
2
Superficies y Volumen
Superficie habitable
169 m2
Otro espacio interior
0 m2
Espacio exterior adjunto al edificio
23 m2
Espacio de almacenamiento externo
7 m2
Volumen en metros cúbicos
576 m3
Instalaciones
Mechanische ventilatie
Tv kabel
Lift
Baerz & Co Property Brochure

Folleto

Vídeos

Planos

Heeren Makelaars

Stadionweg 75
1077 SE Amsterdam

info@heerenmakelaars.nl
+31 204702255

www.heerenmakelaars.nl

Solicitud de información / Visita

Sander Bovenkerk profile image
Sander Bovenkerk
Real estate agent

Comprar una propiedad de lujo en Amstelveen

Amstelveen ofrece residencias refinadas, ambiente cosmopolita y excelente conectividad. Su mezcla de zonas verdes, servicios internacionales y sofisticación atrae a compradores globales y familias que buscan privacidad y conexiones urbanas vivas.