BERGEN (NH)
Groene Hof 3 - 1861 PK
Países Bajos

Angeline Croonen profile image
Angeline Croonen
Real Estate Agent
€2,250,000 k.k.
Superficie habitable
202m2
Tamaño del terreno
2847m2
Dormitorios
2

Descripción

Barn Villa Bergen NH se encuentra entre los encantadores prados de Bergen, Países Bajos, donde la arquitectura y el paisaje conviven en serena armonía. La vivienda ocupa 202 m² de diseño cuidado, situada en una parcela de 2.847 m² que se despliega en jardines de cuento, verdes luminosos y vistas apacibles. En el interior de esta villa de autor, los ventanales de suelo a techo integran el exterior en el hogar, permitiendo amplias vistas sobre prados y jardines, además de crear una atmósfera de luz y calma.

La entrada conduce a una sala de estar de concepto abierto y una cocina totalmente equipada, pensadas para quienes disfrutan tanto de la cocina como de los encuentros sociales. El ritmo espacial de la casa se define por una llamativa escalera que lleva a la primera planta, donde dos tranquilos dormitorios y dos refinados baños han sido diseñados para el confort diario. Armarios a medida y una zona de trabajo completan la distribución diáfana de tipo loft, manteniendo un flujo de espacio continuo.

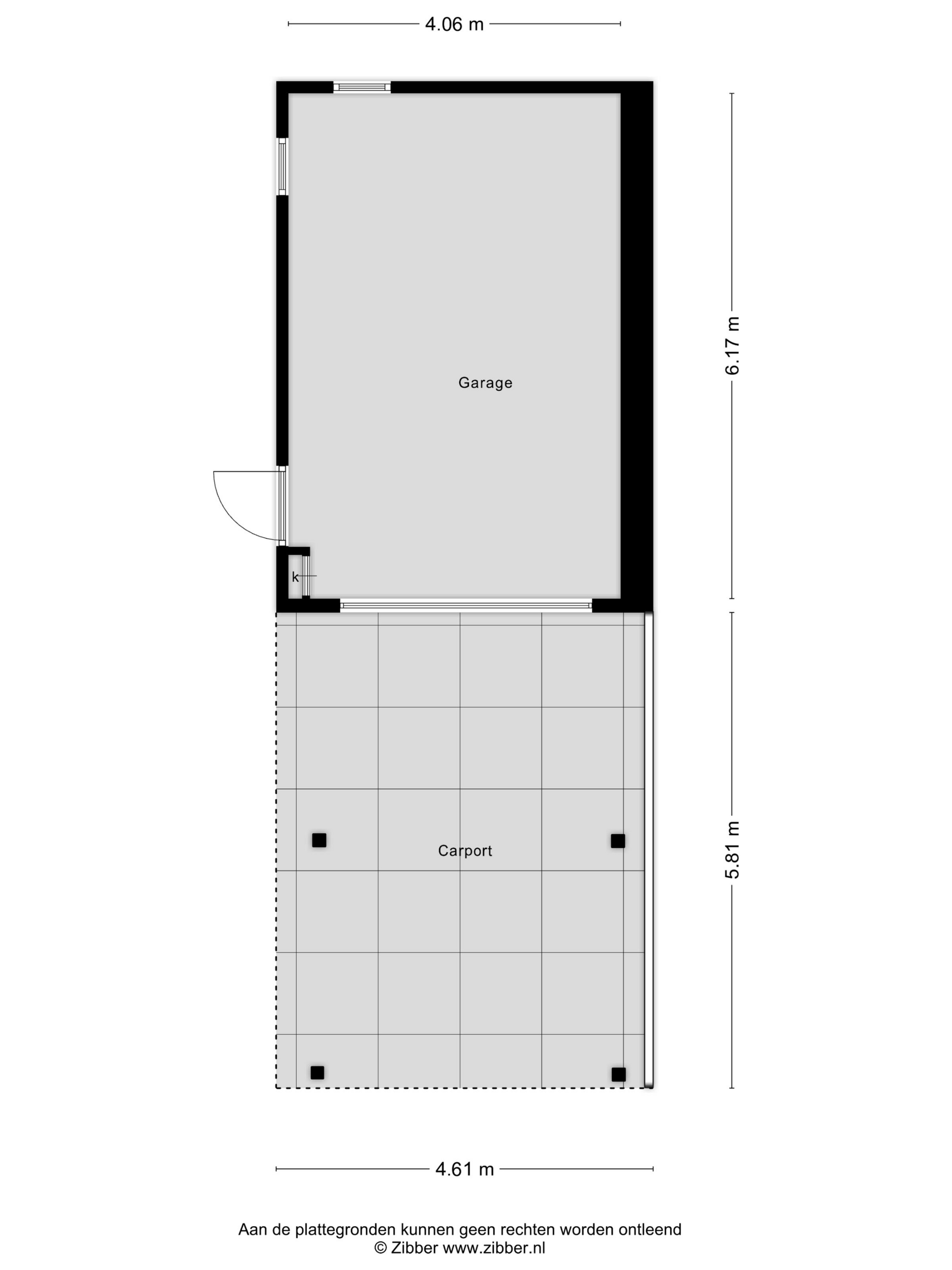
Un anexo multifuncional se adapta a múltiples necesidades—como estudio, habitación de invitados o espacio deportivo—mientras que el garaje independiente y la cochera cubierta ofrecen amplio espacio para aparcamiento y taller. La propiedad es avanzada en sostenibilidad con etiqueta energética A++++, bomba de calor, 62 paneles solares, triple acristalamiento y calefacción por suelo radiante, garantizando costes de energía casi nulos y confort óptimo durante todo el año.

Los jardines paisajísticos proporcionan distintos espacios para el descanso o la inspiración—un invernadero, huerto, gallinero y una espaciosa terraza diseñada para la vida exterior. Desde aquí, el horizonte es verde y sin interrupciones, transmitiendo paz y belleza contemplativa.

El entorno invita a paseos frecuentes al animado centro de Bergen, con sus cafés, boutiques, escuelas y facilidades deportivas. Naturaleza, arte y cultura confluyen aquí en una expresión única de vida rural neerlandesa. Para quienes buscan una barn villa extraordinaria en venta en Bergen NH, esta propiedad ofrece privacidad, origen y serenidad duradera.

Explora Bergen (Holanda del Norte) con Baerz, Tu Buscador y Asesor Personal de Propiedades de Confianza

El mercado inmobiliario de Bergen se caracteriza por su privacidad, reglamentos locales específicos y oportunidades discretas fuera de mercado. Un asesor personal aporta acceso a propiedades poco publicitadas, negociación experta y profundo conocimiento de los requisitos patrimoniales. Su red facilita el contacto con arquitectos, abogados y proveedores de servicios de confianza, garantizando gestión y confidencialidad en cada etapa de la adquisición y la propiedad.

Evita los errores comunes

Los compradores internacionales a menudo pierden tiempo valioso en listados en línea duplicados, desactualizados o engañosos, especialmente porque casi el 30% de las casas de lujo nunca aparecen en el mercado público. Los agentes del vendedor representan los intereses del vendedor, no los del comprador. Incluso solicitar información sobre una propiedad puede resultar en que un agente del vendedor te registre como su “cliente” sin tu consentimiento.
Con Baerz Property Finders & Advisors, evitas por completo todos estos errores. Trabajamos únicamente en tu nombre, ofreciendo representación independiente, orientación clara y acceso a todas las propiedades disponibles, incluidas oportunidades fuera del mercado que otros nunca llegan a ver.

¿Interesado en un Asesor Personal de Propiedades?

Te mostramos todas las casas disponibles en un solo lugar. No dudes en contactarnos para saber cómo podemos satisfacer tus necesidades y proteger tus intereses exclusivamente.

Características

Paneles solares
Sistema de alarma
Transferencia de propiedad
Precio solicitado
€ 2.250.000 k.k.
Estado
beschikbaar
Aceptación
in overleg
Construcción
Tipo de casa
Villa
Tipo de edificio
vrijstaande woning
Periodo de construcción
2018
Calificación energética
A++++
Tipo de tejado
zadeldak
Dormitorios
2
Baños
2
Superficies y Volumen
Superficie habitable
202 m2
Otro espacio interior
0 m2
Espacio exterior adjunto al edificio
58 m2
Espacio de almacenamiento externo
59 m2
Volumen en metros cúbicos
749 m3
Tamaño del terreno
2847 m2
Instalaciones
Mechanische ventilatie
Alarminstallatie
Tv kabel
Rookkanaal
Schuifpui
Dakraam
Zonnepanelen
Aan water
Aan rustige weg
Vrij uitzicht
Buiten bebouwde kom
In bosrijke omgeving
Landelijk gelegen
Baerz & Co Property Brochure

Folleto

Vídeos

Croon Makelaars

Breelaan 41
1861 GD Bergen

info@croonmakelaars.nl
+31 (0)72 743 32 44

www.croonmakelaars.nl

Solicitud de información / Visita

Angeline Croonen profile image
Angeline Croonen
Real Estate Agent

Comprar una propiedad de lujo en Bergen (Holanda del Norte)

Bergen ofrece una comunidad sofisticada y acogedora enmarcada por la belleza natural y la riqueza cultural. Los residentes disfrutan de comodidades excepcionales, servicios exclusivos y un equilibrio armonioso entre privacidad y vida social, convirtiendo Bergen en un destino distinguido para los compradores internacionales más exigentes.