LAGE VUURSCHE
Karnemelksweg 2 - 3749 AH
Paesi Bassi

Marquiette Schaap profile image
Marquiette Schaap
Real estate agent
€2,750,000 k.k.
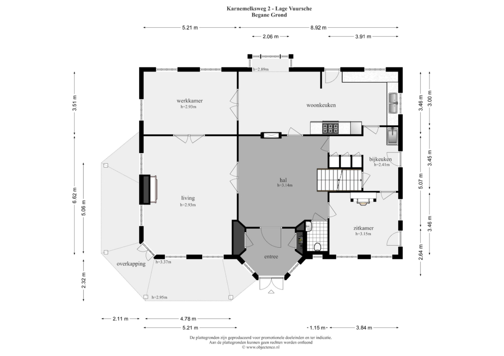
Superficie abitabile
350m2
Dimensione del lotto
2095m2
Camere da letto
4

Descrizione

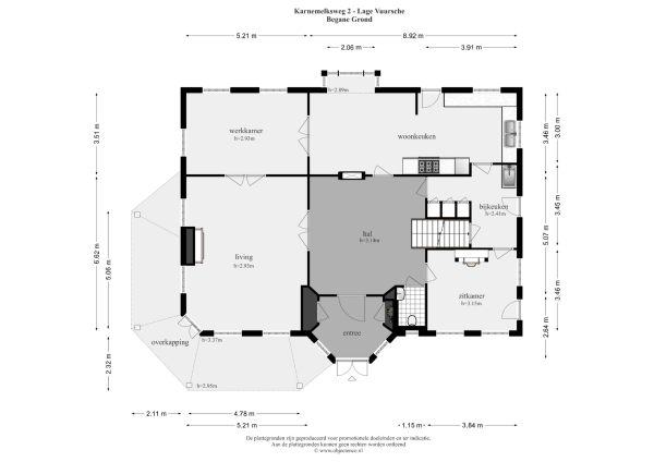
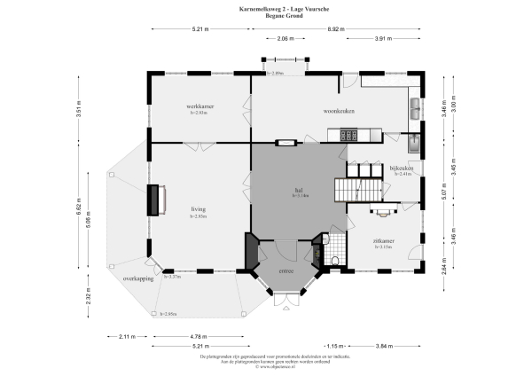
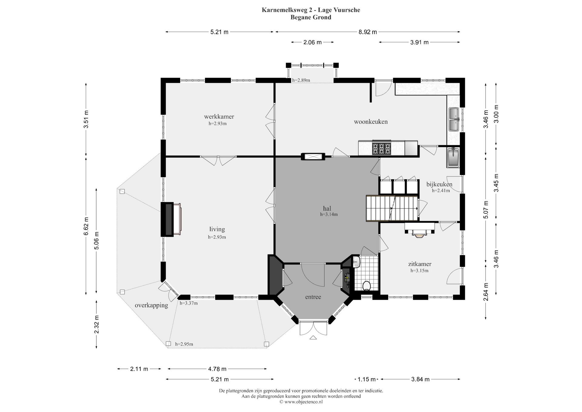
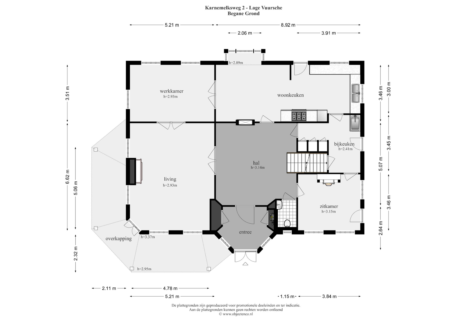
Villa Lage Vuursche è un indirizzo che bilancia storia e comfort in un raro e tranquillo contesto boschivo. Questa villa, immersa in 2.095 m² di giardini privati a Lage Vuursche, offre circa 350 m² di superficie abitabile e ulteriori 150 m² di seminterrato, regalando una sensazione di ampio relax che appartiene sia alla proprietà sia a questo borgo ricco di storia. Accedendo tramite un cancello privato si viene accolti da alberi da frutto e un orto aromatico che incorniciano la casa, dove il fascino discreto si rivela in ogni dettaglio architettonico.

Progettata dall’architetto Van Asbeck nel 2012, la villa è stata concepita con una rara attenzione alla tradizione. Parquet recuperato, antiche piastrelle olandesi, porte cariche di storia e tegole provenienti da una storica caserma di Utrecht si intrecciano con la maestria artigianale contemporanea. Una credenza tipica delle case sui canali di Amsterdam diventa protagonista della cucina-pranzo, conferendo anima e autenticità al cuore dell’abitazione. I soffitti del piano terra, alti quasi tre metri, conferiscono eccezionale luminosità e grande respiro agli ambienti. L’ingresso signorile svela un camino e una scala elaborata, circondato da ambienti come uno studio, un atelier e un salotto con camino.

La suite padronale domina il primo piano, affiancata da un’area spogliatoio e un bagno lussuoso, con altre due camere da letto -ognuna con il proprio bagno- e una quarta suite mansardata al livello superiore. Nel grande seminterrato attendono spazi perfetti per una palestra, una sala vini o un’area giochi. Classe energetica A, riscaldamento a pavimento parziale, ventilazione meccanica, sistema d’allarme e dotazioni tecnologiche moderne garantiscono comfort e riservatezza. Il garage e l’ingresso automatizzato sottolineano la privacy, mentre la vicinanza a Baarn, Hilversum e ai principali collegamenti assicura accesso strategico. Villa Lage Vuursche si distingue come una dimora autentica e narrativa, pensata per chi dà valore alla provenienza dei materiali, agli spazi generosi e alla profonda quiete.

Esplora Lage Vuursche con Baerz, il tuo fidato consulente e cercatore di proprietà personali

Il mercato di Lage Vuursche è complesso, con disponibilità limitata, tutela del territorio e trattative riservate; per questo serve affidarsi a consulenti esperti. I professionisti locali accedono a immobili non pubblicizzati, negoziano con riservatezza e gestiscono gli aspetti legali. La loro esperienza integra obiettivi patrimoniali e stile di vita, rendendo il supporto essenziale a ogni passo.

Evita gli errori comuni

Gli acquirenti internazionali spesso perdono tempo prezioso su inserzioni online duplicate, obsolete o fuorvianti, soprattutto poiché quasi il 30% delle case di lusso non appare mai sul mercato pubblico. Gli agenti del venditore rappresentano gli interessi del venditore, non quelli dell'acquirente. Anche solo richiedere informazioni su una proprietà può comportare che un agente del venditore ti registri come loro “cliente” senza il tuo consenso.
Con Baerz Property Finders & Advisors, eviti completamente tutti questi errori. Lavoriamo esclusivamente per tuo conto, offrendo rappresentanza indipendente, guida chiara e accesso a tutte le proprietà disponibili, comprese le opportunità fuori mercato che altri non riescono mai a vedere.

Interessato a un Consulente Immobiliare Personale?

Ti mostriamo tutte le case disponibili in un unico posto. Sentiti libero di contattarci per scoprire come possiamo soddisfare le tue esigenze e proteggere i tuoi interessi in modo esclusivo.

Caratteristiche

Sistema di allarme
Trasferimento di proprietà
Prezzo richiesto
€ 2.750.000 k.k.
Stato
beschikbaar
Accettazione
in overleg
Costruzione
Tipo di casa
Villa
Tipo di edificio
vrijstaande woning
Periodo di costruzione
2012
Classe energetica
A++
Tipo di tetto
samengesteld dak
Camere da letto
4
Bagni
3
Superfici e Volume
Superficie abitabile
350 m2
Altri spazi interni
150 m2
Spazio esterno collegato all'edificio
29 m2
Volume in metri cubi
1740 m3
Dimensione del lotto
2095 m2
Servizi
Mechanische ventilatie
Alarminstallatie
Tv kabel
Rookkanaal
Aan rustige weg
Vrij uitzicht
Beschutte ligging
In bosrijke omgeving
Baerz & Co Property Brochure

Brochure

Video

Planimetrie

Art of Living by Marquiette & Partners

Meentweg 4
1261 XT Blaricum

hello@artoflivingbymar.com
+31 35 763 54 24

www.artoflivingbymarquiette.com

Richiesta di informazioni / Visita

Marquiette Schaap profile image
Marquiette Schaap
Real estate agent

Acquistare una proprietà di lusso a Lage Vuursche

Lage Vuursche offre agli acquirenti più esigenti armonia tra comunità, tranquillità e un’elevata qualità della vita. Il patrimonio storico, i servizi di livello e i collegamenti internazionali rendono la zona riservata ma accogliente per chi cerca unicità.