RIETHOVEN
Kapelstraat 7 - 5561 TW
Nederland

Dirk van Santvoort profile image
Dirk van Santvoort
Dirk van Santvoort
€2.750.000 k.k.
Woonoppervlakte
484m2
Perceeloppervlakte
6755m2
Slaapkamers
4

Omschrijving

In een rustige straat aan de rand van Riethoven op een magnifiek perceel van 6.755 m² gelegen prachtige in oude stijl gerenoveerde woonboerderij met rieten kap. De woning is smaakvol verbouwd en beschikt over een groot, vrijstaand gastenverblijf, een royaal bijgebouw met ontspanningsruimte en fitnessruimte/gym, een ruime carport voor meerdere auto's en een prachtig aangelegde parkachtige tuin op het westen.

De geheel gerenoveerde woonboerderij is onder meer voorzien van een sfeervolle woonkamer, een stijlvolle eetkamer, een ruime en luxe woonkeuken, een grote (wijn)kelder, twee badkamers en vier comfortabele slaap-kamers. Het gastenverblijf beschikt ook nog eens over twee slaapkamers en twee badkamers.

De ligging is perfect: rustig en landelijk, maar toch aan de rand van het gewilde Riethoven. In de directe omgeving bevinden zich diverse natuurgebieden met uitgestrekte wandel- en fietspaden. Het levendige centrum van Eersel, met een grote variëteit aan winkels, voorzieningen en horeca, ligt op fietsafstand.
De A67 ligt in de directe nabijheid en ook het centrum van Eindhoven, de High Tech Campus en ASML
zijn snel bereikbaar.

WOONBOERDERIJ
Begane grond:
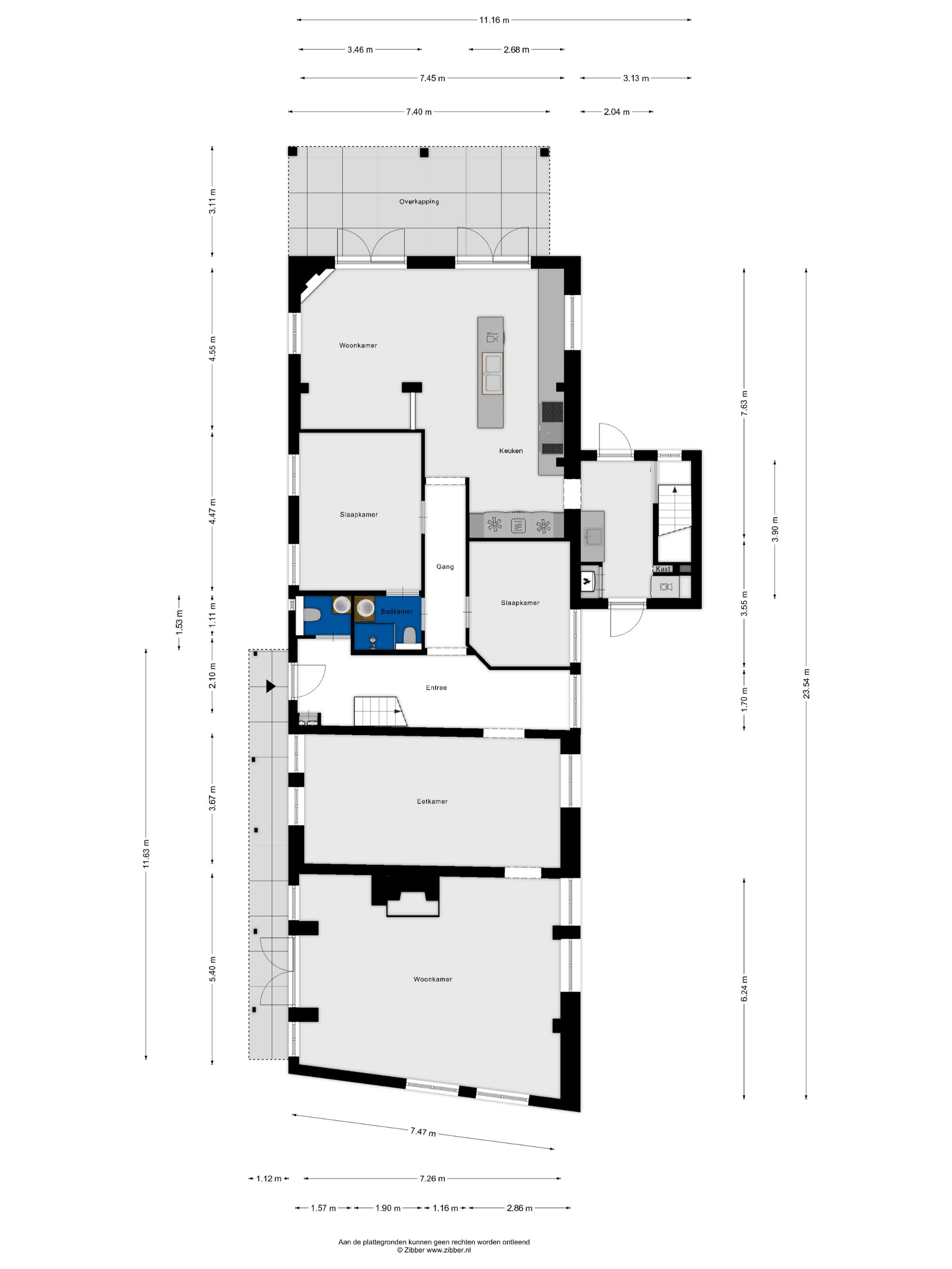
Royale entree met marmeren vloer, toiletruimte, meterkast en fraaie hardhouten trapopgang naar de eerste verdieping. De hal biedt toegang tot de eetkamer en tot een gang die leidt naar de woonkeuken, slaapkamers en badkamer. Toiletruimte met marmeren vloer- en wandbetegeling, vrij hangend closet en fonteintje. Royale, sfeervolle eetkamer met marmeren vloer, balkenplafond en volop ruimte voor een grote eettafel. Vanuit de eetkamer is er toegang tot de woonkamer. Ruime, stijlvolle woonkamer met houten vloer, grote openhaardpartij (hout), een zeer hoog plafond met een unieke balkenconstructie en een prachtige vide die toegang biedt tot een van de slaapkamers. De grote en sfeervolle woonkeuken is voorzien van een marmeren vloer, balkenplafond met inbouwspots en twee dubbele openslaande deuren naar het overdekte terras. De woonkeuken beschikt aan de tuinzijde over een ruime en gezellige zithoek met open haardpartij (gas). De keuken bestaat uit een wandopstelling met een aanrechtblad met kookgedeelte, een grote kastenwand en een spoeleiland met bargedeelte. De keukeninrichting bestaat uit een marmeren aanrechtblad met diverse kasten en lades, een groot AGA fornuis met diverse soorten ovens, een gasfornuis, twee kookplaten en een afzuigkap. De ‘kastenwand’ bestaat uit een grote koelkast, vriezer met ijsblokjesfunctie, koffiemachine, combi-oven/magnetron, stoomoven en diverse kasten. Het spoeleiland, voorzien van een marmeren blad met dubbele spoelbak en een bar met maar liefst negen zitplaatsen, vormt de centrale plek in de woonkeuken. Het eiland beschikt verder over een vaatwasmachine en diverse kasten.
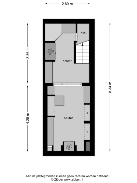
Royale bijkeuken met marmeren vloer, aanrechtblad met spoelbak en diverse kasten, meterkast, aansluitingen voor de wasapparatuur, deur naar de tuin en een trap naar de grote manshoge kelder. De kelder is verdeeld in een grote wijnkelder en een ruimte met een hardstenen blad met daaronder volop kastruimte. Vanuit de hal leidt een gang naar de twee slaapkamers en de badkamer. Slaapkamer 1 is ruim en voorzien van een marmeren vloer, inbouwspots en biedt direct toegang tot de badkamer. Slaapkamer 2 is voorzien van een marmeren vloer en inbouwspots. De sfeervolle badkamer 1 is voorzien van een marmeren vloer, wandbetegeling, inbouwspots, vrij hangend toilet, inloopdouche, designradiator en wastafel in meubel.

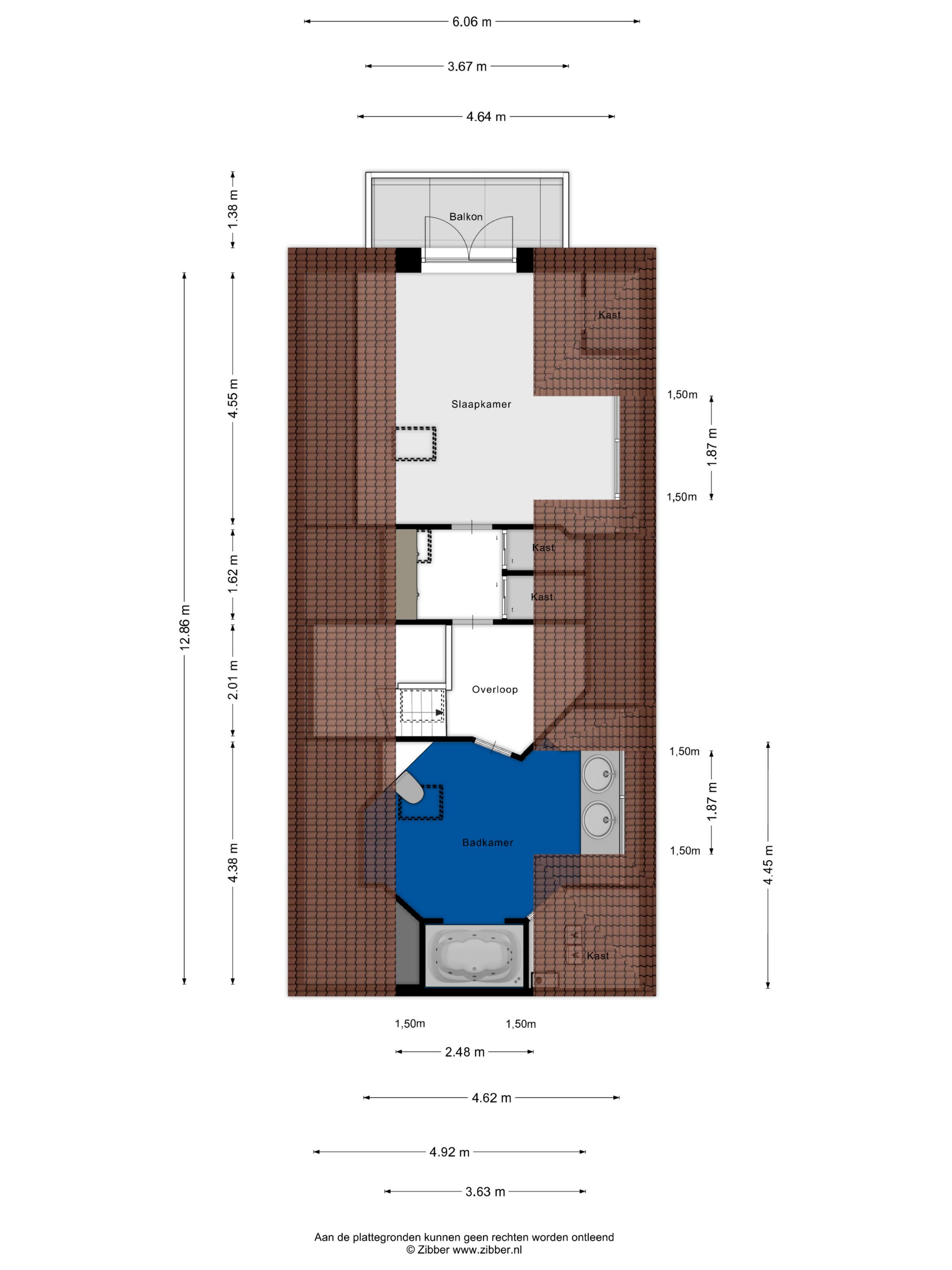
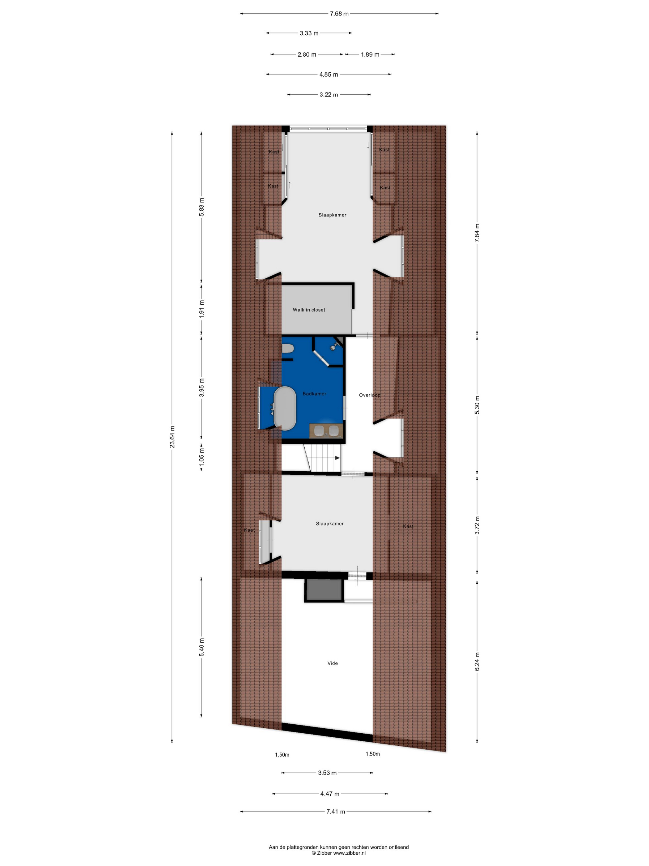
Eerste verdieping:
Royale overloop voorzien van een houten vloer en dakkapel. Vanuit de overloop zijn de beide slaapkamers en de badkamer bereikbaar. De ruime slaapkamer 3 is voorzien van een houten vloer, een plafond met een karakteristieke balken-constructie, een dakkapel en toegang tot de vide. De grote vide biedt een prachtig uitzicht op de stijlvolle woonkamer.
De zeer ruime slaapkamer 4 is voorzien van een houten vloer, een plafond met een zeer bijzondere balkenconstructie, twee dakkapellen en een grote walk in closet. Een grote karakteristieke raampartij biedt een prachtig uitzicht over de parkachtige tuin. Badkamer 2 is voorzien van marmeren vloer- en wandbetegeling, een dakkapel, sierradiator, wandcloset, ligbad, douche en dubbele wastafel in meubel.

GASTENVERBLIJF
Begane grond:
Het vrijstaande, royale gastenverblijf is voorzien van een rieten kap en een eigen privacy biedend zonneterras. De entree bevindt zich aan de zijkant van de woning. De hal is voorzien van natuurstenen vloerbetegeling en een grote kast met daarin de aansluitingen voor de wasapparatuur. In de hal bevinden zich ook de toiletruimte en een fraaie hardhouten trapopgang naar de eerste verdieping. Vanuit de hal is er toegang de woon-/eetkamer, slaapkamer 1 en badkamer 1.
Toiletruimte met marmeren vloer- en wandbetegeling, vrij hangend closet en fonteintje. Royale, sfeervolle woon-/eetkamer met natuurstenen vloerbetegeling, karakteristiek balkenplafond met inbouwspots, open keuken, open haardpartij (gas) en drie dubbele openslaande deuren naar de terrassen. De grote open keuken heeft een U-vormige keukeninrichting. De keukeninrichting is voorzien van een marmeren aanrechtblad met anderhalve gootsteen, vaatwasmachine, koelkast, vriezer met ijsblokjesfunctie, koffiemachine, combi-oven/magnetron, gasfornuis (Boretti) met grillplaat en afzuigkap, servieskast en diverse andere kasten en lades. De royale slaapkamer 1 is voorzien van een houten vloer, karakteristiek balkenplafond met inbouwspots, grote ingebouwde kast, deur naar badkamer 1 en dubbele openslaande deuren naar het terras.
Ruime badkamer 1 met natuurstenen vloerbetegeling en wandbetegeling, balkenplafond met inbouwspots, douchecabine en een dubbele wastafel in meubel.

Eerste verdieping:
Royale overloop voorzien van een houten vloer en dakraam. Vanuit de overloop is badkamer 2 en de hal naar slaapkamer 2 bereikbaar. Deze hal is voorzien van twee grote inbouwkasten. De ruime slaapkamer 2 is voorzien van een houten vloer, een plafond met een karakteristieke balkenconstructie en inbouwspots, dakraam en dakkapel. Vanuit deze slaapkamer bieden openslaande deuren toegang tot een groot balkon dat een prachtig uitzicht biedt op de parkachtige tuin. De riante badkamer 2 heeft een houten vloer, wandbetegeling, een plafond met karakteristieke balkenconstructie en inbouwspots, dakraam en dakkapel. De badkamer is verder voorzien van een groot badkamermeubel met marmeren blad en dubbele wastafel, sierradiator, wandcloset en ligbad met douche functie. Vanuit de badkamer is de ruimte bereikbaar waarin zich de opstelling van de CV-combiketel bevindt.

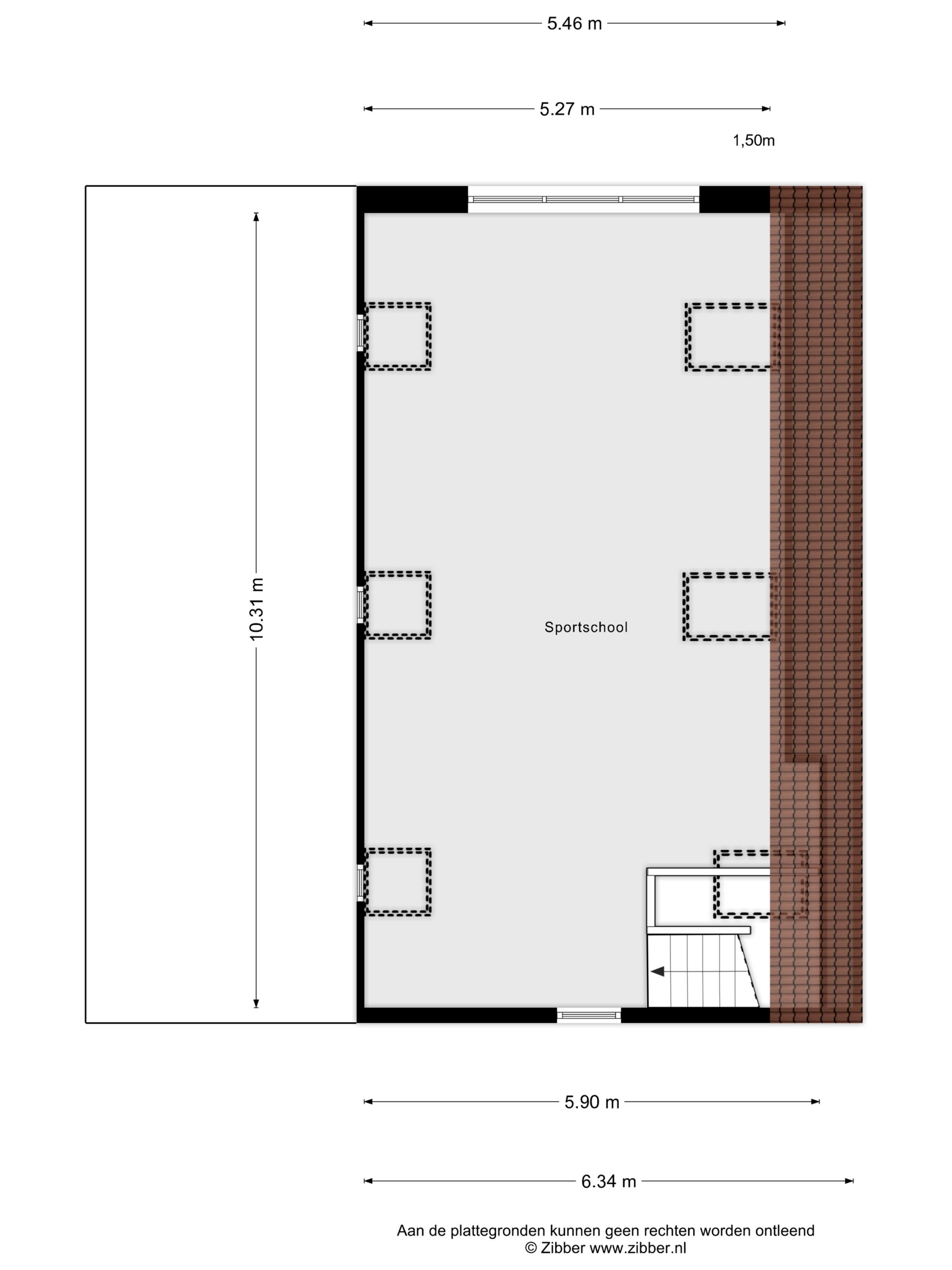
BIJGEBOUW
Begane grond:
De voormalige garage is volledig verbouwd en voorzien van een rieten dak. Een deel van dit 'gepotdekselde' bijgebouw is in gebruik als berging. Deze is toegankelijk via een deur bij de carport. Op de begane grond bevindt zich verder een grote ontspanningsruimte. De hal is voorzien van natuurstenen vloerbetegeling, een grote kast met daarin de meterkast, de toiletruimte en een fraaie hardhouten trapopgang naar de eerste verdieping. Vanuit de hal is ook de ontspanningsruimte bereikbaar. Toiletruimte met natuurstenen vloerbetegeling, vrij hangend closet, urinoir en een designmeubel met fonteintje. Grote, sfeervolle ontspanningsruimte met natuurstenen vloerbetegeling, balkenplafond met inbouwspots en een glazen doorkijkje naar de erboven gelegen fitnessruimte/gym. Deze ontspanningsruimte is voorzien van een grote stijlvolle bar met ‘drankkast’, gezellige zithoek en een ingebouwd geluidssysteem. Op dit moment is deze ruimte deels in gebruik als ‘biljartkamer’. De toegangsdeur van de berging bevindt zich bij de carport. De berging biedt volop ruimte en is voorzien van een ingebouwde kastenwand. In de berging bevinden zich ook de installatie van de vloerverwarming en de aansluitingen voor de CV- en beregeningsinstallatie.

Eerste verdieping:
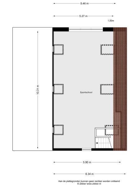
Over de gehele eerste verdieping gelegen grote, sfeervolle ruimte met houten vloer, balkenplafond met inbouwspots, diverse dakramen, grote raampartijen, spiegelwanden en een glazen doorkijkje naar de ontspanningsruimte op de begane grond. Deze zeer royale ruimte is momenteel in gebruik als gym/fitnessruimte.

EXTERIEUR
Binnenplaats
De woonboerderij, het gastenverblijf en het bijgebouw liggen aan een binnenplaats op een zeer ruim perceel van ca. 6.755 m². De binnenplaats is toegankelijk via een grote elektrisch poort met openslaande deuren en via een poort aan de zijkant van de woonboerderij. De royale binnenplaats is voorzien van sierbestrating, een groot gazon en diverse volwassen beplanting. De gebouwen zijn alle voorzien van buitenverlichting.

Carport
De carport bevindt zich aan de zijkant van het bijgebouw en biedt plaats aan meerdere auto’s. Hier bevindt zich ook een elektrisch oplaadpunt. Naast de carport is een door heggen afgeschermd basketbalveld.

Tuin
De fraai aangelegde zeer royale tuin ligt op het oosten en beschikt over meerdere grote zonneterrassen. De terrassen zijn dusdanig gesitueerd dat zowel de woonboerderij als het gastenverblijf kunnen rekenen op voldoende privacy en een prachtig uitzicht bieden op de parkachtige achtertuin. Het terras grenzend aan de woonboerderij is voorzien van een grote glazen overkapping en een fraaie pergola.
De magnifieke achtertuin is voorzien van een zeer groot gazon, volwassen bomen en borders met diverse beplanting. Vanuit het gazon leidt een natuurlijke doorgang naar een tweede perfect onderhouden gazon. Aan de achterzijde grenst de tuin aan het groen zodat rust en privacy gegarandeerd zijn. De tuin is verder voorzien van een beregeningsinstallatie en diverse elektrapunten.

Straatbeeld/omgeving
De woonboerderij met bijgebouwen ligt in een rustige straat aan de rand van Riethoven op een uniek perceel van maar liefst 6.755 m². De ligging is perfect: rustig en landelijk, maar toch aan de rand van het gewilde Riethoven. In de directe omgeving bevinden zich diverse natuurgebieden met uitgestrekte wandel- en fietspaden. Het levendige centrum van Eersel, met een grote variëteit aan winkels, voorzieningen en horeca, ligt op fietsafstand. In Eersel bevinden zich ook scholen, sportverenigingen en medische voorzieningen. De A67 ligt in de directe nabijheid en ook het centrum van Eindhoven, het ziekenhuis, High Tech Campus en ASML zijn snel bereikbaar.

BIJZONDERHEDEN
- De woonboerderij en bijgebouw beschikken over hoge plafonds met prachtige balkenconstructie en karakteristieke
'boogramen'.
- De woonboerderij, het gastenverblijf en bijgebouw zijn in 2025 voorzien van een nieuwe rieten kap.
- Woonboerderij, gastenverblijf en bijgebouw zijn voorzien van een alarminstallatie, vloerverwarming (begane grond) en
airconditioning.
- Het sfeervolle gastenverblijf is een volwaardige woning met 2 slaapkamers en 2 badkamers.
- De parkachtige tuin ligt op het oosten en biedt optimale privacy.

Ontdek Riethoven met Baerz, Uw Vertrouwde Personal Property Finder & Advisor

De nuances van de Riethovense markt vereisen specialistische kennis en een discreet netwerk. Veel exclusieve woningen komen nooit openbaar; een vertrouwde adviseur biedt toegang tot unieke off-market kansen, navigeert complexe onderhandelingen en kent lokale gebruiken en regelgeving. Uw belangen zijn beschermd en u geniet van een vertrouwelijk, persoonlijk traject in deze relatiegerichte markt.

Speciale Kenmerken

Alarm system

Kenmerken

Overdracht
Vraagprijs
€ 2.750.000 k.k.
Status
beschikbaar
Aanvaarding
in overleg
Bouw
Soort woonhuis
Woonboerderij
Soort bouw
vrijstaande woning
Bouwjaar
1910
Energieklasse
D
Soort dak
schilddak
Slaapkamers
4
Badkamers
2
Oppervlakten en inhoud
Woonoppervlakte
484 m2
Overige inpandige ruimte
60 m2
Gebouwgebonden buitenruimte
41 m2
Inhoud
2016 m3
Perceeloppervlakte
6755 m2
faciliteiten
Alarminstallatie
Aan rustige weg
Landelijk gelegen
Baerz & Co Property Brochure

Brochure

Plattegronden

Van Santvoort Makelaars

Torenallee 65
5617 BB Eindhoven

dirk@vansantvoort.nl
+31 40 269 25 30

www.vansantvoort.nl

Informatie / bezichtigingsaanvraag

Dirk van Santvoort profile image
Dirk van Santvoort
Dirk van Santvoort