NOORDWIJK
Hofvennepark 2 - 2201 PZ
Holandia

Frits Wilbrink profile image
Frits Wilbrink
Real estate agent
€2,495,000 k.k.
Powierzchnia mieszkalna
280m2
Wielkość działki
1040m2
Sypialnie
3

Opis

Luxury modern villa with heated pool, indoor garage for 5 cars and a detached garage for 2 (electric) cars , located on one of the most beautiful locations of Noordwijk. Keywords of this particularly designed villa are; privacy, customization and symmetry.

What makes this home special;
• Large living room with a span of 18m
• Office space on the first floor
• 3 Bedrooms
• Heated pool
• Southwest facing garden
• Energy label B

Built in 2002, living area 280m2/356m2, content 1.439m3, plot 1.040m2

The indoor garage of 76 m2 is fully insulated and also here the terrazzo floor has floor heating. The glass inner wall is easily removed so that the entire first floor becomes one space. The living area thus comes to 356m2 (€ 7.008,43 m2)

This beautiful villa, designed by Hans van Egmond Architects, was very carefully created with a lot of customization and only top class materials were used. The common thread throughout the design and construction is that no concessions were made anywhere and privacy was paramount.

The outer shell of the U-shaped house has small windows and therefore provides a lot of privacy, the sliding doors on the inside of the U-shape are fully glazed which provides an abundance of light.

The property;

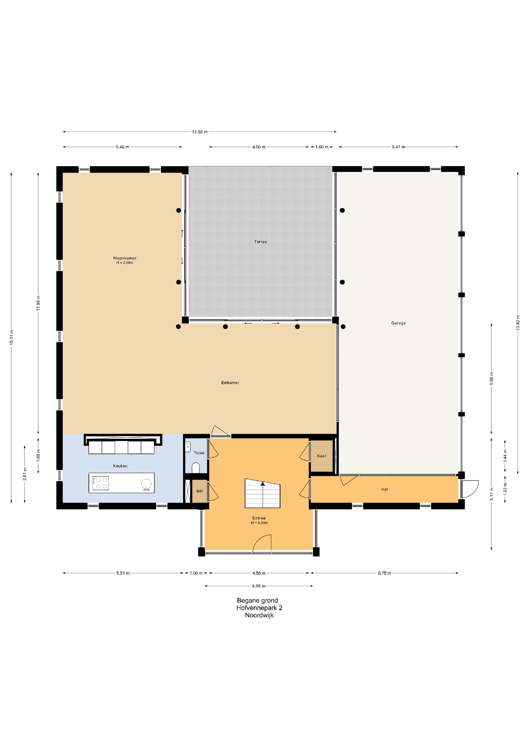
Ground Floor
Large bright hall with loft and the impressive glass staircase to the top. The hall has tinted glass so there is no view from outside to the inside.

The large living room has a span of up to 18 meters. Enough space for a generous sitting area and a large dining table for cozy dinners.

The kitchen, where the symmetry is also reflected, is equipped with luxury appliances and separated from the dining room as a room divider.

There is also a spacious office/work area.

The indoor garage can accommodate 5 cars. If you do not have so many cars, then that is not a problem; equipped with underfloor heating, this space can easily be added to the house and is multifunctional in use.

The entire ground floor has a terrazzo floor with underfloor heating. To enhance the indoor/outdoor experience, large sliding doors give access to the garden and the terrazzo floor has been extended to the outside.

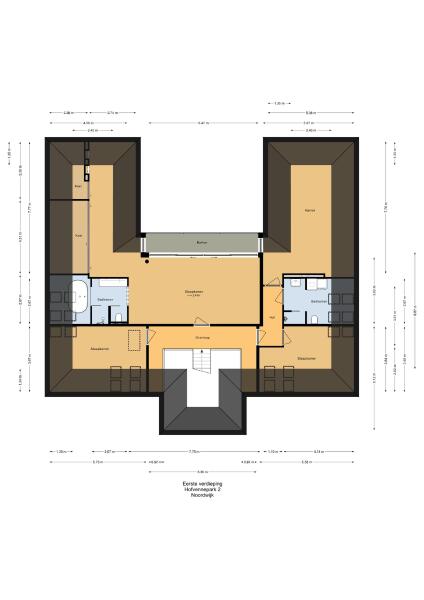
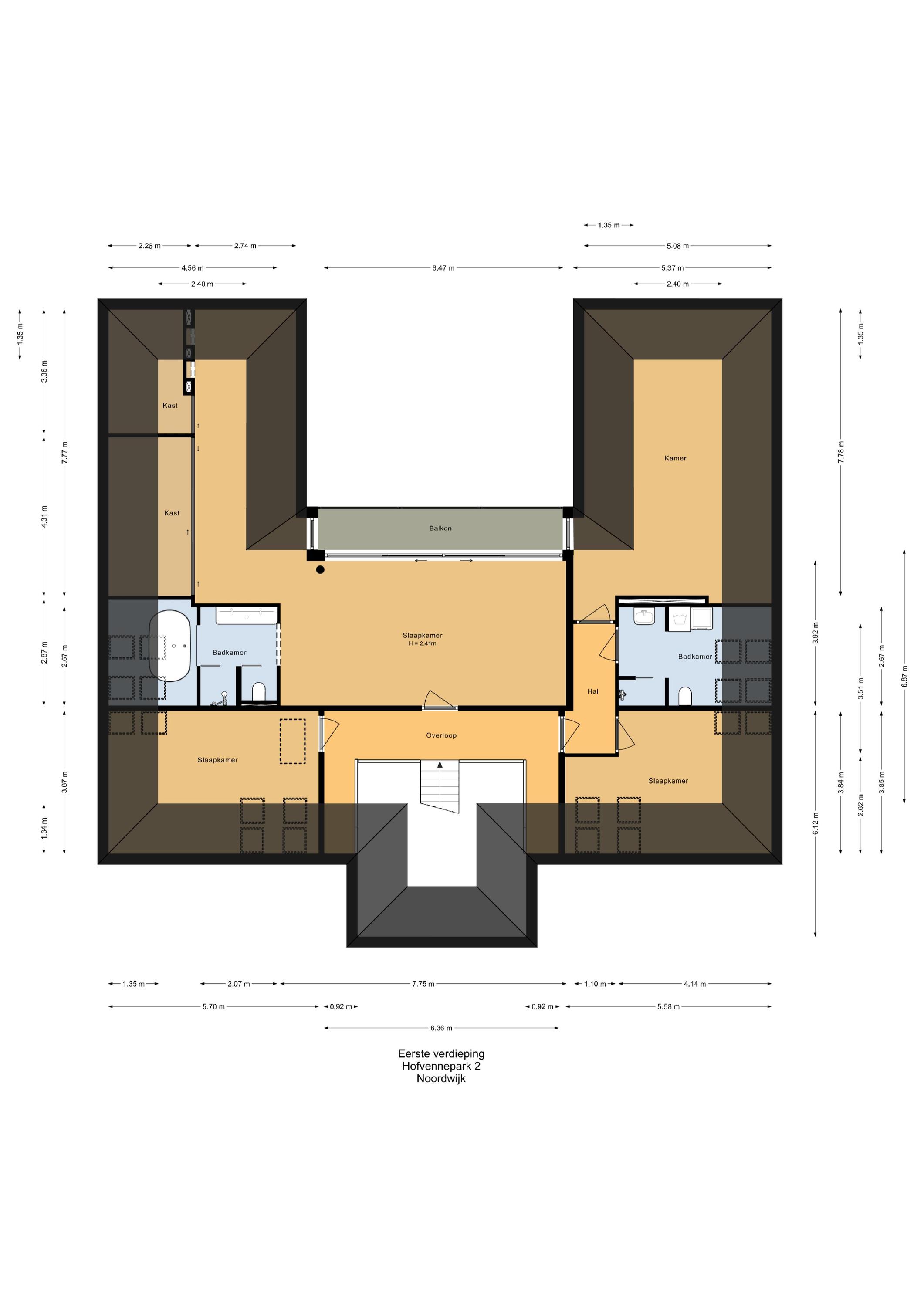
2nd floor
On this floor are 3 bedrooms, 2 bathrooms and a large storage room. The very generous master bedroom has its own luxurious bathroom and a spacious dressing room. The balcony can only be accessed from this room. 20 Skylights provide extra light and also here the symmetry is continued.

Storage attic
The attic is accessible by a loft ladder and here are the central heating boiler and WTW systems installed.

Garden
The garden is an oasis of tranquility and located on the water.
There is a large terrace at the house and a swimming pool. The large green hedge ensures tranquility and complete privacy. There is ample parking on the property and the ornamental fence provides extra security.

Sustainability
Built in 2002, this house is already fully insulated. Further sustainability measures are;
• 12 solar panels
• 2x Heat Recovery Unit
• Heat pump for heating the pool
• Solar roof on the pool

The energy label of the house is B

Location
Located in a quiet neighborhood with only local traffic but near the center of Noordwijk-Binnen with its charming stores and restaurants. Noordwijk aan Zee with its beach, sea, boulevard and entertainment venues for young and old are within cycling distance. This area is also near roads to the N206 and A44 which makes Leiden and Haarlem with 15 minutes and The Hague, Amsterdam /Schiphol within 30 minutes.

Details
• Ceiling height 2.70m
• 12 solar panels
• Ground floor heating, including garage
• Heat pump for the pool
• 2x WTW installation
• Alarm system class 3
• Cameras around the house with monitor
• Large indoor garage for 5 cars, easy to add to the house
• Charging point for electric car(s) in the detached garage
• Zinc downspouts and gutters
Agent Frits Wilbrink is happy to show you around.
Call our office for an appointment!

Specjalne funkcje

Basen
Panele słoneczne
Alarm system

Cechy

Przeniesienie własności
Cena wywoławcza
€ 2.495.000 k.k.
Status
beschikbaar
Akceptacja
in overleg
Budowa
Rodzaj domu
Landhuis
Typ budynku
vrijstaande woning
Okres budowy
2002
Ocena energetyczna
B
Typ dachu
zadeldak
Sypialnie
3
Łazienki
2
Powierzchnie i objętość
Powierzchnia mieszkalna
280 m2
Inne pomieszczenia wewnętrzne
91 m2
Przestrzeń zewnętrzna przylegająca do budynku
8 m2
Zewnętrzna przestrzeń magazynowa
47 m2
Objętość w metrach sześciennych
1439 m3
Wielkość działki
1040 m2
Udogodnienia
Mechanische ventilatie
Alarminstallatie
Buitenzonwering
Zwembad
Schuifpui
Dakraam
Glasvezel kabel
Zonnepanelen
Balansventilatie
Aan bosrand
Aan water
Aan rustige weg
In woonwijk
Beschutte ligging
In bosrijke omgeving
Baerz & Co Property Brochure

Broszura

Filmy

Plany pięter

Wilbrink & v.d. Vlugt Makelaars

Heereweg 231
2161 BG Lisse

info@wilbrinkvandervlugt.nl
+31 252 41 90 49

www.onsaanbod.nl

Informacja / Prośba o oględziny

Frits Wilbrink profile image
Frits Wilbrink
Real estate agent