BLOEMENDAAL
Midden Duin En Daalseweg 30 - 2061 AS
Нидерланды

€3,500,000
Жилая площадь
221m2
Размер участка
4420m2
Спальни
5

Описание

Одиноко стоящая вилла Bloemendaal привлекает утончённым архитектурным обликом в престижном вилл-парке Duin en Daal. По проекту H.W. van Kempen данная резиденция наполнена средиземноморской лёгкостью, подчёркнутой изысканными синими ставнями в стиле «Жалюзи», вальмовой крышей и аутентичной французской плиткой в холле. Дом расположен на простором частном участке площадью 4 420 м², окружён зрелыми деревьями и слегка возвышен относительно дороги, что обеспечивает полную приватность.

Широкая подъездная дорога ведёт к двойному навесу для автомобилей с круговым разъездом и обилием парковочных мест, которые дополняются внутренним гаражом. Жилая площадь составляет 221 м², размещённая как в оригинальном доме 1953 года, так и в расширении 2001 года, что подчёркивает архитектурную целостность. Интерьеры проектировались для максимального комфорта: просторные светлые комнаты объединены французскими дверями с необычайно разнообразным и солнечным садом. Основные жилые зоны сочетают паркет и терраццо, открытые камины и индивидуальные встроенные элементы, формируя атмосферу сдержанного уюта.

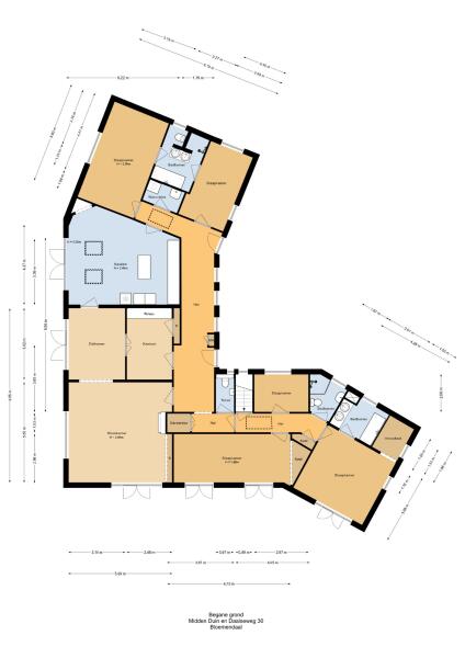
Пять просторных спален и три ванные комнаты позволяют организовать пространство максимально гибко. Кухня Bulthaup оснащена паровой духовкой Gaggenau и спланирована вокруг гостеприимного острова. Важные зоны оборудованы системой тёплых полов для дополнительного уюта. В цокольном этаже находятся винный погреб и технические помещения, а просторные открытые чердаки предоставляют место для хранения или творческих решений.

Безопасность обеспечивается системой сигнализации. Участок позволяет расширить объект согласно действующим градостроительным нормам. В шаговой доступности находятся инфраструктура посёлка, школы, спортивные площадки и железнодорожная станция, что ещё больше усиливает вне­вре­менно привлекательность данной резиденции.

Исследуйте Bloemendaal с Baerz, вашим надежным личным консультантом по недвижимости

Покупка или продажа элитной недвижимости в Блумендале требует глубокого знания локального рынка и доступа к закрытым предложениям. Местные специалисты дадут совет по оценке, историческим аспектам и переговорам, а их проверенные связи необходимы для эксклюзивного доступа и уверенного ведения сложных сделок.

Избегайте распространенных ошибок

Международные покупатели часто тратят драгоценное время на дублирующиеся, устаревшие или вводящие в заблуждение онлайн-объявления, особенно учитывая, что почти 30% роскошных домов никогда не появляются на открытом рынке. Агенты продавца представляют интересы продавца, а не покупателя. Даже запрос информации о недвижимости может привести к тому, что агент продавца зарегистрирует вас как своего «клиента» без вашего согласия.
С Baerz Property Finders & Advisors вы полностью избегаете всех этих ошибок. Мы работаем исключительно в ваших интересах, предлагая независимое представительство, четкое руководство и доступ ко всем доступным объектам, включая возможности вне рынка, которые другие никогда не увидят.

Интересует Личный Консультант по Недвижимости?

Мы показываем вам все доступные дома в одном месте. Не стесняйтесь связаться с нами, чтобы узнать, как мы можем удовлетворить ваши потребности и защитить ваши интересы исключительно.

Особенности

Сигнализация
Передача права собственности
Запрашиваемая цена
€ 3.500.000
Статус
beschikbaar
Принятие
in overleg
Строительство
Тип дома
Villa
Тип здания
vrijstaande woning
Период строительства
1953
Энергетический рейтинг
F
Тип крыши
schilddak
Спальни
5
Ванные комнаты
3
Площадь и объем
Жилая площадь
221 m2
Другое внутреннее пространство
81 m2
Объем в кубических метрах
1112 m3
Размер участка
4420 m2
Удобства
Alarminstallatie
Tv kabel
Rookkanaal
Aan rustige weg
In woonwijk
Beschutte ligging
Baerz & Co Property Brochure

Брошюра

Видео

360 Панорамы

360°
360 Panorama - Midden Duin en Daalseweg 30
360°
360 Panorama - Midden Duin en Daalseweg 30
360°
360 Panorama - Midden Duin en Daalseweg 30
360°
360 Panorama - Midden Duin en Daalseweg 30
360°
360 Panorama - Midden Duin en Daalseweg 30
360°
360 Panorama - Midden Duin en Daalseweg 30
360°
360 Panorama - Midden Duin en Daalseweg 30
360°
360 Panorama - Midden Duin en Daalseweg 30
360°
360 Panorama - Midden Duin en Daalseweg 30
360°
360 Panorama - Midden Duin en Daalseweg 30
360°
360 Panorama - Midden Duin en Daalseweg 30
360°
360 Panorama - Midden Duin en Daalseweg 30

Планы этажей

Strumphler Makelaars

Oscar Mendliklaan 9
2111 AS Aerdenhout

henriette@strumphlermakelaars.nl
+31 23 524 34 24

www.strumphlermakelaars.nl

Запрос информации / просмотра

Henriette van Keulen-Strumphler profile image
Henriette van Keulen-Strumphler
NVM Real estate agent-valuer/partner

Покупка элитной недвижимости в Bloemendaal

Блумендаль предлагает сочетание приватности, утонченного стиля жизни и прямого доступа к культуру и бизнесу. Обстановка и сервис привлекают состоятельных клиентов со всего мира.