'S-HERTOGENBOSCH
Kruisstraat 16 - 5211 DV
Nederländerna

Eric Tiebosch profile image
Eric Tiebosch
Owner / Real Estate Agent
€1,650,000
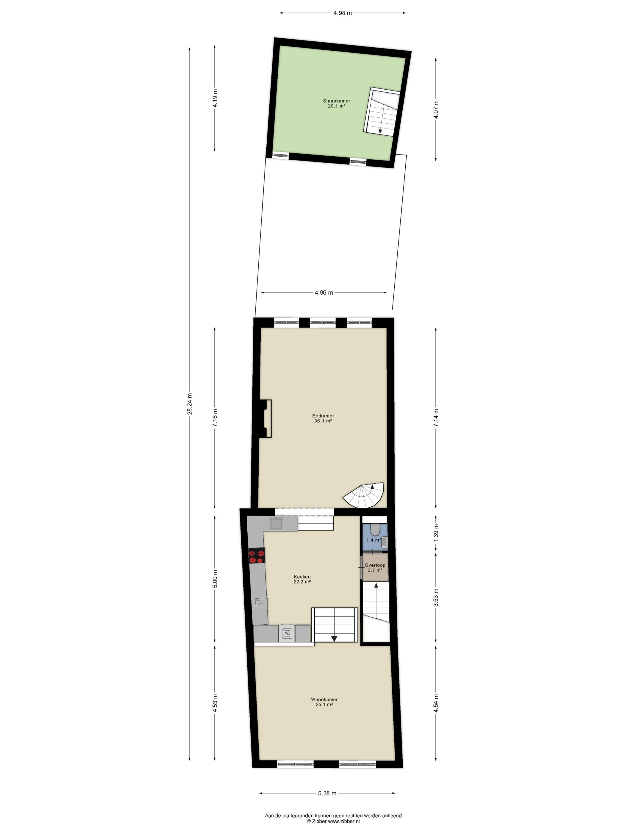
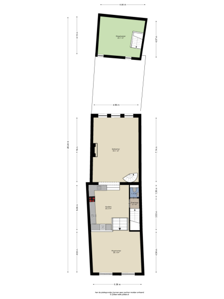
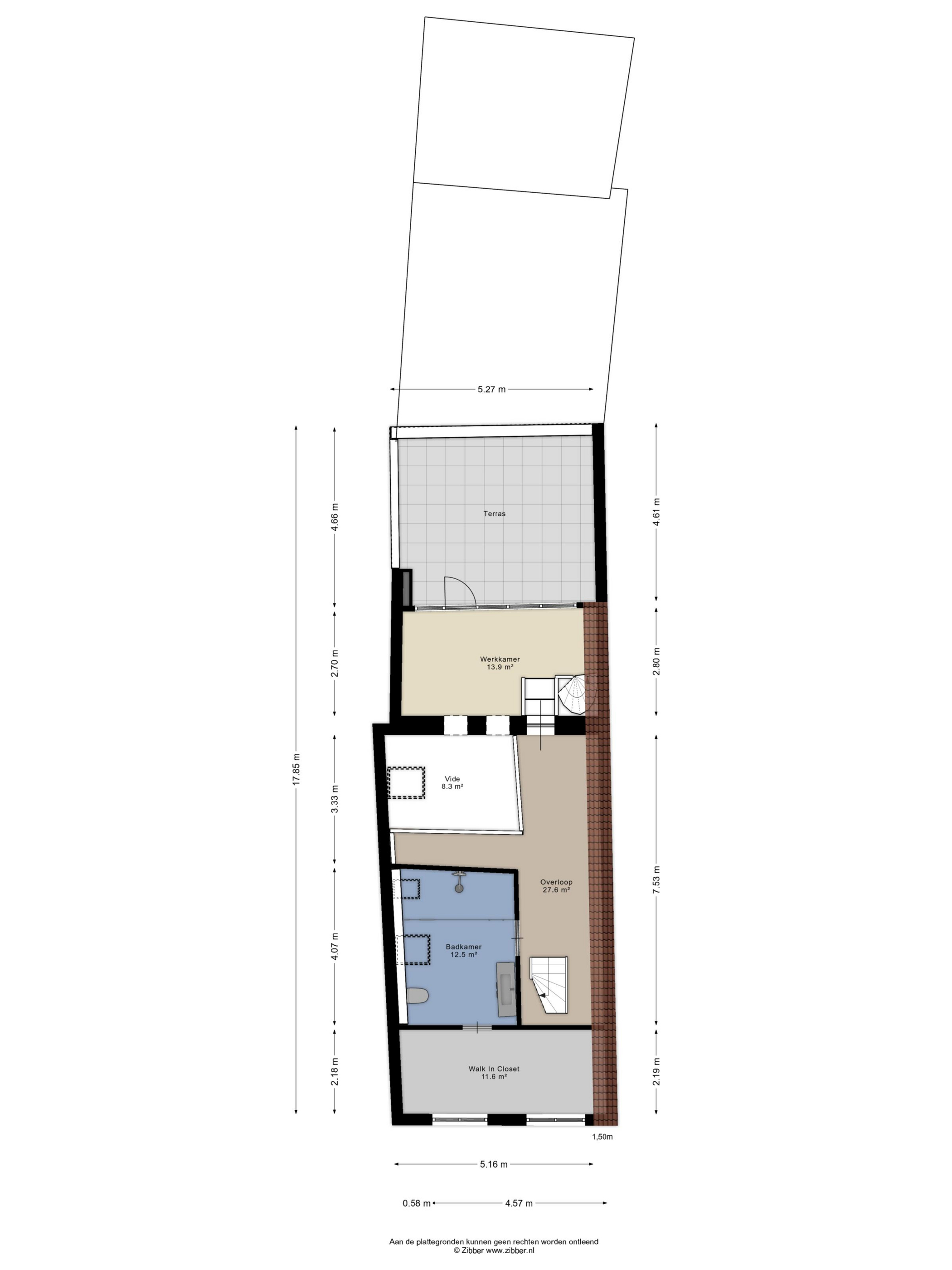
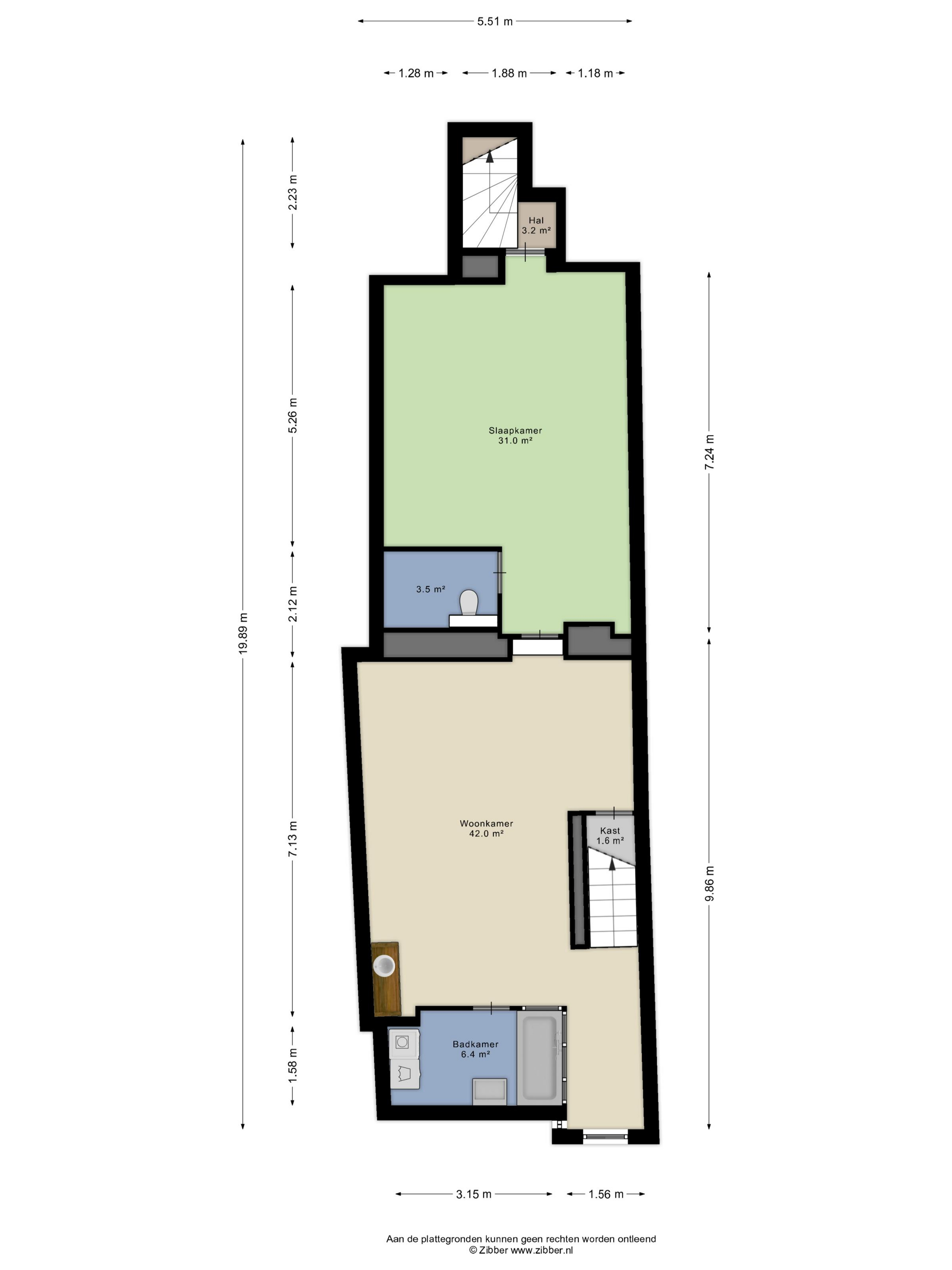
Bostadsyta
350m2
Tomtstorlek
171m2
Sovrum
4

Beskrivning

Townhouse 's-Hertogenbosch erbjuder en lockande kombination av bostads- och kommersiell potential i hjärtat av Uilenburg, ett av stadens mest inbjudande områden. Fastigheten utmärker sig med två separata ingångar, vilket möjliggör en tydlig avgränsning mellan butikslokal och huvudentré till bostaden. Möjligheten till stabila hyresintäkter från den kommersiella ytan stärker den ekonomiska attraktiviteten och stödjer en livsstil där komfort och inkomstgenerering går hand i hand.

Med en boyta om 350 m² erbjuder fastigheten fyra sovrum samt tre badrum. Ett tunnvalvsformat källarutrymme skänker karaktär och praktisk användbarhet. En innergård inspirerad av Ibiza, en bakbyggnad och en takterrass i eftermiddags- och kvällssol ger naturliga övergångar mellan arbete, avkoppling och familjeliv. Moderniseringar såsom mekanisk ventilation, takisolering, delvis isolerglas och centralvärme tillför energieffektivitet, och tomten om 171 m² ger ett genomtänkt utrymme mitt i stadskärnan.

Denna townhouse i 's-Hertogenbosch bjuder in till ett flexibelt boende med utrymme för såväl arbete som umgänge. Oavsett om man ser den som en generös stadsbostad, B&B eller investering erbjuder den en sällsynt arkitektonisk och atmosfärisk upplevelse i centrum.

Funktioner

Ägaröverföring
Begärt pris
€ 1.650.000
Status
beschikbaar
Acceptans
in overleg
Konstruktion
Typ av hus
Herenhuis
Byggnadstyp
tussenwoning
Byggnadsperiod
1606
Taktyp
zadeldak
Sovrum
4
Badrum
3
Ytor och volym
Bostadsyta
350 m2
Annat inomhusutrymme
0 m2
Externt utrymme anslutet till byggnaden
22 m2
Volym i kubikmeter
1461 m3
Tomtstorlek
171 m2
Faciliteter
Mechanische ventilatie
In centrum
Baerz & Co Property Brochure

Broschyr

Planritningar

De Huyzerij Makelaardij

Kruisstraat 2
5211 DV 's-Hertogenbosch

info@dehuyzerij.nl
+31 736122225

www.dehuyzerij.nl

Information / Visningsförfrågan

Eric Tiebosch profile image
Eric Tiebosch
Owner / Real Estate Agent