BERGEN (NH)
Noordlaan 27 - 1861 GM
Nederländerna

Angeline Croonen profile image
Angeline Croonen
Real Estate Agent
€1,250,000 k.k.
Vardagsrum
131m2
Tomtstorlek
1976m2
Sovrum
2

Beskrivning

An architectural gem in the heart of Bergen.

Tucked away on one of Bergen's most beautiful avenues, this unique detached bungalow on a plot of almost 2000 m2 is a paragon of New Objectivity. Designed by renowned architect Leon Waterman, this home exudes the essence of functionality and aesthetics. The property offers a lot of potential.

Light, air and space are the watchwords of this home, built in the 1950s and meticulously maintained ever since. The principles of New Objectivity are reflected in the flat roofs, clean lines and the seamless connection between inside and outside. The large sliding doors in the living room blur the boundary between interior and exterior, while the loggia offers a perfect transition to the surrounding nature. You need to add contemporary living pleasure and some luxury, but you will get something out of it.

The entrance is at the rear and you are welcomed into a spacious hallway with cloakroom. The property features a bright living room with cosy fireplace, a generous bedroom with garden door and a second bedroom/study. There are two complete bathrooms, one with bath and bidet. The closed kitchen with adjoining functional utility room, including space for the central heating boiler, is also still in its original state and is ready for your personal touch. A mezzanine with study offers the perfect place to work from home or use as a practice room, this room has its own entrance.

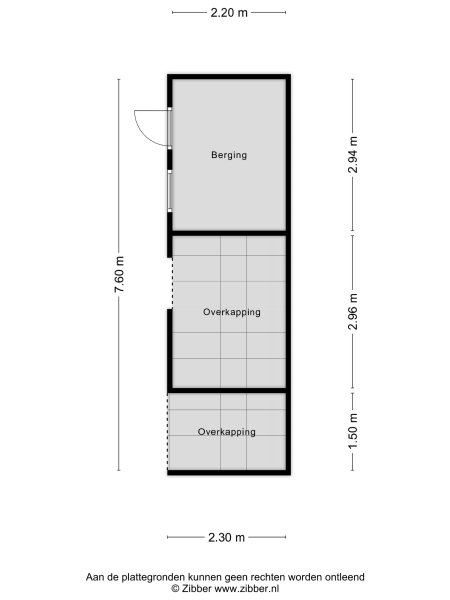
The property offers extras such as a large attached storage room/utility room including washing machine connection and a double garage. There is also a wooden shed in the lush garden for extra storage space. The driveway can easily accommodate several cars.

Enjoy the best of both worlds, with the tranquillity of a leafy avenue and the vibrancy of the city centre within walking distance. The forest is nearby for an invigorating walk, but arterial roads to Alkmaar and Amsterdam are also quickly accessible.

Experience for yourself how form and function merge in this unique piece of Bergen. Are you a lover of this architecture and think you can create your dream home here? Make an appointment, we will be happy to show you this property.

Funktioner

Överlåtelse
Begärt pris
€ 1.250.000 k.k.
Status
verkocht onder voorbehoud
Acceptans
in overleg
Byggnation
Typ av hus
Bungalow
Byggnadstyp
vrijstaande woning
Energiklass
G
Taktyp
lessenaardak
Sovrum
2
Badrum
2
Ytor och volym
Vardagsrum
131 m2
Annat inomhusutrymme
60 m2
Externt utrymme anslutet till byggnaden
14 m2
Externt förrådsutrymme
7 m2
Volym i kubikmeter
705 m3
Tomtstorlek
1976 m2
Faciliteter
Tv kabel
Rookkanaal
Schuifpui
Natuurlijke ventilatie
Aan water
Beschutte ligging
In bosrijke omgeving
Baerz & Co Property Brochure

Broschyr

Videor

Planritningar

Croon Makelaars

Breelaan 41
1861 GD Bergen

info@croonmakelaars.nl
+31 (0)72 743 32 44

www.croonmakelaars.nl

Information / Visningsförfrågan

Angeline Croonen profile image
Angeline Croonen
Real Estate Agent