HARLINGEN
Noorderhaven 102 - 8861 AR
Nederländerna

Ellen Schoneveld profile image
Ellen Schoneveld
Real Estate Agent
€1,150,000 k.k.
Bostadsyta
208m2
Tomtstorlek
148m2
Sovrum
5

Beskrivning

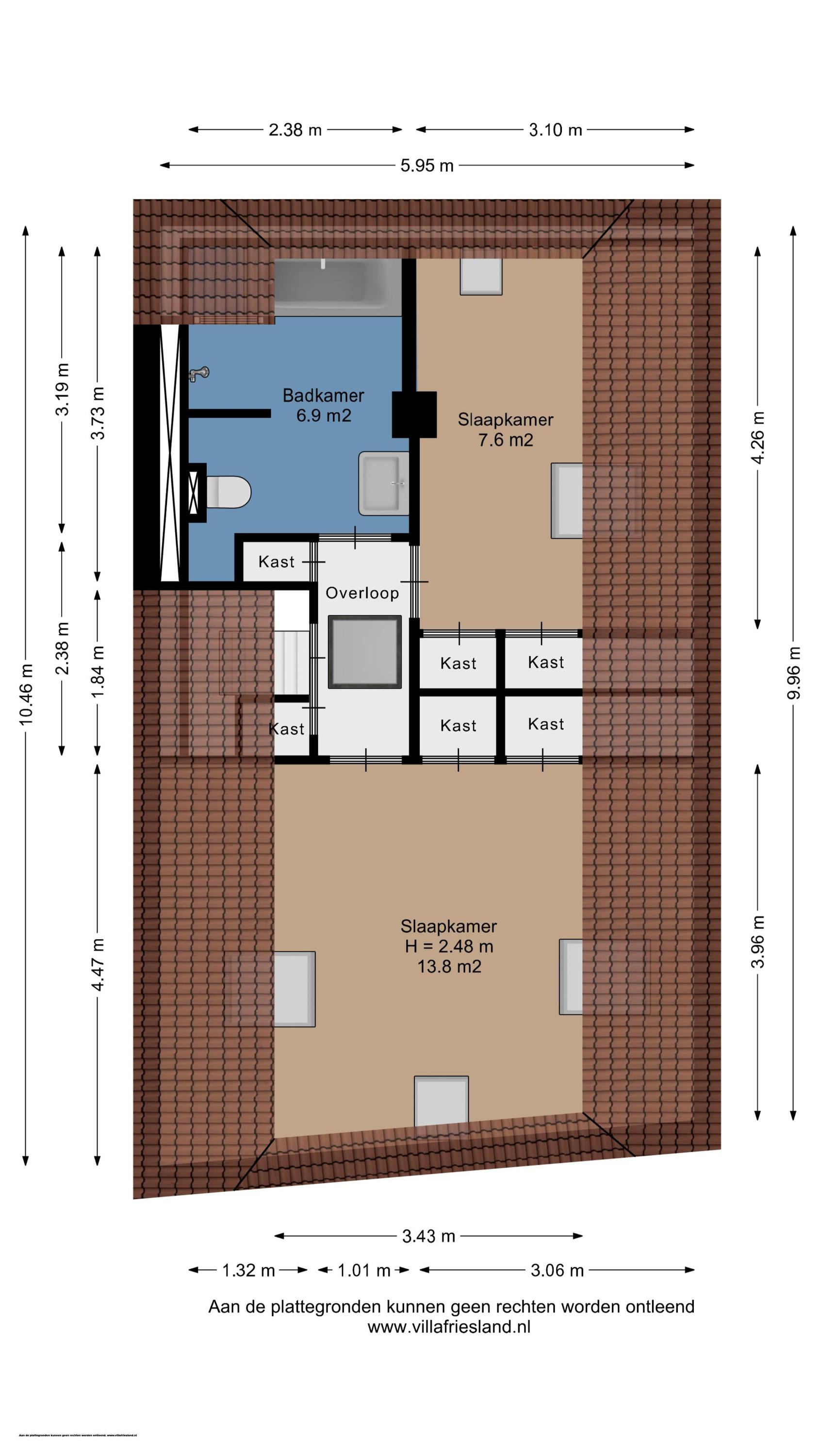
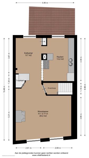
Canal House Harlingen är en sällsynt sammansmältning av kulturarv och diskret lyx, med 208 m² boyta i hjärtat av Frieslands mest historiska hamnstad. Detta nationella monument från 1639 utmärker sig vid Noorderhaven, där den karakteristiska fasaden leder in till interiörer där tidstypiskt hantverk och generösa ytor sätter prägeln. Fem sovrum och tre badrum är fördelade över fyra eleganta våningsplan, alla genomströmmade av ljus från de ursprungliga fönstren och med utsikt över stad och tidvattenhamn.

Beletagen bjuder på ett sofistikerat kontor med utsikt över vattnet och en rymlig trädgårdssvit som öppnar upp mot en privat stadsträdgård i söderläge. Sällskaps- och matsalsutrymmen har anlagts med vördnad för historiska detaljer—ornamenttak, antika trägolv, öppna spisar i marmor och ett autentiskt kök med traditionella frisiska kakelplattor. Taket, isolerat och förnyat 2015, förenar komfort med förankrad historia.

Stadslivet väntar bara ett stenkast från boutique-restauranger, bekvämligheter och tågstation, medan Amsterdam ligger knappt en timme bort via Afsluitdijk. Moderna förbättringar såsom dubbelglas, mekanisk och naturlig ventilation, fiberoptik och effektiv uppvärmning adderar till byggnadens autenticitet. I Canal House Harlingen möts historiens vingslag med vardagens lugn, vilket gör detta till ett unikt tillfälle att bo där berättelse och plats är oskiljaktiga. För den som söker ett exklusivt kanalhus till salu i Harlingen erbjuder denna fastighet urban avskildhet med fri utsikt över hamnen.

Utforska Harlingen med Baerz, Din Betrodda Personliga Fastighetsfinnare & Rådgivare

Lyxsegmentet präglas av diskreta affärer, regleringsdetaljer och ett känsligt kulturmiljöklimat. Professionella rådgivare ger tillgång till off-market-objekt och hjälper genom förhandlingar och avtal. Deras insikt garanterar god marknadsvärdering och smidig hantering av unika historiska och juridiska aspekter.

Undvik vanliga fallgropar

Internationella köpare slösar ofta bort värdefull tid på dubbletter, inaktuella eller vilseledande online-listor, särskilt eftersom nästan 30% av lyxhem aldrig dyker upp på den offentliga marknaden. Säljarens agenter representerar säljarens intressen, inte köparens. Även att begära information om en fastighet kan resultera i att en säljarens agent registrerar dig som deras "kund" utan ditt samtycke.
Med Baerz Property Finders & Advisors undviker du alla dessa fallgropar helt. Vi arbetar enbart på dina vägnar, erbjuder oberoende representation, tydlig vägledning och tillgång till alla tillgängliga fastigheter, inklusive off-market-möjligheter som andra aldrig får se.

Intresserad av en personlig fastighetsrådgivare?

Vi visar dig alla tillgängliga hem på ett ställe. Tveka inte att kontakta oss för att lära dig hur vi kan möta dina behov och skydda dina intressen exklusivt.

Funktioner

Ägaröverföring
Begärt pris
€ 1.150.000 k.k.
Status
beschikbaar
Acceptans
in overleg
Konstruktion
Typ av hus
Grachtenpand
Byggnadstyp
tussenwoning
Taktyp
samengesteld dak
Sovrum
5
Badrum
3
Ytor och volym
Bostadsyta
208 m2
Annat inomhusutrymme
0 m2
Volym i kubikmeter
762 m3
Tomtstorlek
148 m2
Faciliteter
Mechanische ventilatie
Tv kabel
Rookkanaal
Dakraam
Glasvezel kabel
Natuurlijke ventilatie
Aan water
In centrum
Vrij uitzicht
Aan vaarwater
Baerz & Co Property Brochure

Broschyr

Videor

Planritningar

Villa Friesland Makelaardij

Lange Marktstraat 1
8911 AD Leeuwarden

info@villafriesland.nl
+31 (0)58 - 23 006 23

www.villafriesland.nl

Information / Visningsförfrågan

Ellen Schoneveld profile image
Ellen Schoneveld
Real Estate Agent

Köpa en lyxfastighet i Harlingen

Harlingen ger köpare en harmonisk kombination av kulturarv, charm och exklusivt sjönära boende. Gemenskapen värdesätter diskretion med internationell dragningskraft, autenticitet och sofistikerade livsstilsmöjligheter.