Villa for sale in DORDRECHT

DORDRECHT Laan van Braets 94 - 3328 LK The Netherlands


Johan Oosterlee profile image
Johan Oosterlee
Real Estate Agent
+31 653723724
oosterlee@ozp-makelaars.nl

OZP Makelaars
Vissersdijk Beneden 25
3319 GW Dordrecht
NETHERLANDS
+31 786351753
www.ozp-makelaars.nl
info@ozp-makelaars.nl

Living area
158m2
Plot size
460m2
Bedrooms
4

Description

Located in a beautiful and lush residential area within the highly desirable Wilgenwende district, you’ll find this impressive detached villa, featuring a private driveway and integrated garage. The property is situated on a generously sized plot of 460 m² and boasts a striking exterior, high-quality materials, and a spacious interior of approximately 596 m³.

This luxurious home offers a spacious living room, a fully equipped and high-end kitchen, a ground-floor bedroom and bathroom, a large garage, and a utility room. On the first floor, you’ll find three spacious bedrooms and a second full bathroom. The entire home is surrounded by a beautifully landscaped garden. Additionally, the property benefits from underfloor heating throughout.

Of course, sustainability was a key consideration in the construction of this home. Heating is provided via a (ground source) heat pump, which supplies both hot water and underfloor heating across all rooms. This system also allows for cooling. Naturally, the home is optimally insulated, contributing to an outstanding Energy Label A++++.

If you're looking for a peaceful living environment that’s still close to all amenities, and provides a safe and enjoyable neighborhood for both adults and children, this property is an excellent choice.

In short: a true paradise, located just 10 minutes from the heart of the city! You’ll quickly feel at home at Laan van Braets 94.

General Information:
* Cadastral designation: Municipality of Dordrecht, section V, number 2808, total 460 m²
* Living area: approx. 158 m² (Volume: approx. 596 m³); other indoor space: approx. 35 m²; attached outdoor space: approx. 28 m²
* Type: Detached villa
* Year built: 2020
* Energy label: A++++
* The entire home is finished in a neutral style, with great attention to detail
* Exceptionally well insulated, with triple-glazed plastic window frames
* The property features 26(!) solar panels
* Heating via (ground source) heat pump and underfloor heating in every room (also capable of cooling)
* Two private parking spaces at the front of the home
* Windows on the east and south sides are equipped with electric sunscreens
* Located in a quiet cul-de-sac, with a potential connection to Smitsweg via a bike bridge
* Ideal for a home office or workspace
* The garage, with a ceiling height of 2.75 m (clearance height of 2.62 m), may accommodate a caravan
* All operable windows are fitted with insect screens
* Part of the flat roof is covered with sedum vegetation
* EV charging point pre-installed in the garage
* Prime location at the edge of the sought-after Wilgenwende neighborhood
* Expected availability: in consultation
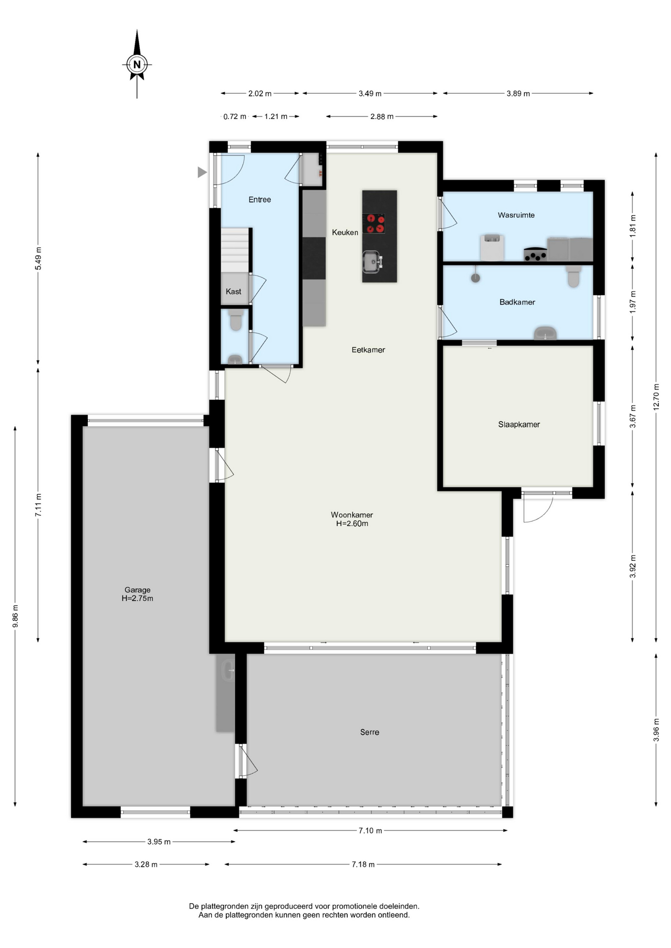
Ground Floor:

Entrance Hall
Spacious hallway with staircase to the first floor, under-stair storage, toilet, utility meter cabinet (12 circuits, circuit for stove, solar panels, heat pump, 3 RCDs, fiber optic), and access to the living room.

Toilet
Fully tiled and stylishly finished with a wall-hung toilet and hand basin.

Living Room (approx. 45 m²)
A wonderfully spacious and light-filled living room thanks to the large windows, with green views. The rear of the living room opens to a large conservatory via two sliding doors. The garage is also accessible from the living room. The space features a Carrara Italian marble-gravel floor and wallpapered walls.

Kitchen (approx. 5.49 x 3.49 m)
The open kitchen includes a straight-line setup and a central island with breakfast bar. High-end finishes include an induction hob, extraction system, sink with mixer tap, dishwasher, fridge, steam oven, combi microwave, warming drawer, and plenty of storage and drawers. The dropped ceiling features dimmable recessed lighting.

Utility/Technical/Laundry Room (approx. 1.81 x 3.89 m)
Accessible from the kitchen, this room houses the ground-source heat pump, underfloor heating distributor, mechanical ventilation for the ground floor, and washing machine connections.

Bathroom 1 (approx. 1.97 x 3.89 m)
Also accessed from the kitchen, this luxurious fully tiled bathroom features a walk-in shower with thermostat tap, wall-hung toilet, and washbasin unit. It connects to the adjacent bedroom via a sliding door.

Bedroom 1 (approx. 3.67 x 3.89 m)
Finished with carpet flooring and wallpaper. Offers access to the garden via a single door.
First Floor:

Landing
Bright and spacious landing with built-in storage housing the underfloor heating distributor for upstairs, the solar inverter, and mechanical ventilation unit for this floor. Provides access to 3 bedrooms and a second bathroom.

Bedroom 2 (approx. 4.34 x 2.64 m)
Located at the front of the house, this spacious room features carpet and wallpaper. Multiple windows provide plenty of natural light.

Bathroom 2 (approx. 3.17 x 1.98 m)
Fully tiled and elegantly finished with a walk-in shower, wall-hung toilet, washbasin unit, and recessed ceiling lights.

Bedroom 3 (approx. 4.06 x 2.64 m)
Located at the rear of the house, with carpet and wallpaper, and includes an electric sunscreen.

Bedroom 4 (approx. 2.91 x 3.02 m)
Also at the rear, finished similarly with carpet and wallpaper. Also equipped with an electric sunscreen.
Outdoor Areas:

Garage (approx. 9.86 x 3.95/3.28 m)
Spacious L-shaped garage with a ceiling height of 2.75 m (clearance 2.62 m), potentially suitable for caravan storage. Access via an electric roller door. Includes a kitchenette with cold water, separate tap, and a door to the conservatory.

Conservatory (approx. 3.96 x 7.10 m)
Accessible via two sliding doors from the living room and a single door from the garage. Fully enclosed with glass sliding panels, equipped with electric sunscreens above and electrical outlets.

Front Garden
Features a neatly landscaped area and multiple parking spaces in front of the garage on private property.

Back Garden (approx. 145 m²)
A beautifully landscaped south-facing garden, with sun and shade terraces, perfect for enjoying the outdoors and lush surroundings. Includes a garden pavilion (approx. 5.5 m²), several rain barrels, and a side entrance.

The specified floor areas (m²) and volume (m³) have been determined according to the industry-wide NVM measuring instructions based on NEN2580:2007 NL. While the information in this brochure has been compiled with care, no rights can be derived from it. OZP-makelaars accepts no liability. Subject to changes.

Features

Transfer of ownership
price
€ 945.000 k.k.
Status
beschikbaar
Acceptance
in overleg
Construction
Kind of house
Villa
Building type
vrijstaande woning
Construction period
2020
Energy rating
A_PPPP
Roof type
plat dak
Bedrooms
4
Bathrooms
2
Surface Areas And Volume
Living area
158 m2
Other indoor space
35 m2
Exterior space attached to the building
28 m2
Volume in cubic meters
596 m3
Plot size
460 m2
facilities
Mechanische ventilatie
Buitenzonwering
Schuifpui
Glasvezel kabel
Zonnepanelen
In woonwijk
Baerz & Co Property Brochure

Brochure

Information / Viewing request

Videos

Photos

Floor Plans