LAREN
Burgemeester Van Nispen Van Sevenaerstraat 5 a - 1251 KD
Netherlands

Marquiette Schaap profile image
Marquiette Schaap
Real estate agent
€1,495,000 k.k.
Living Area
197m2
Plot Size
N/A
Bedrooms
3

Description

Burgemeester van Nispen van Sevenaerstraat 5a te Laren

Een verborgen verrassing midden in Laren

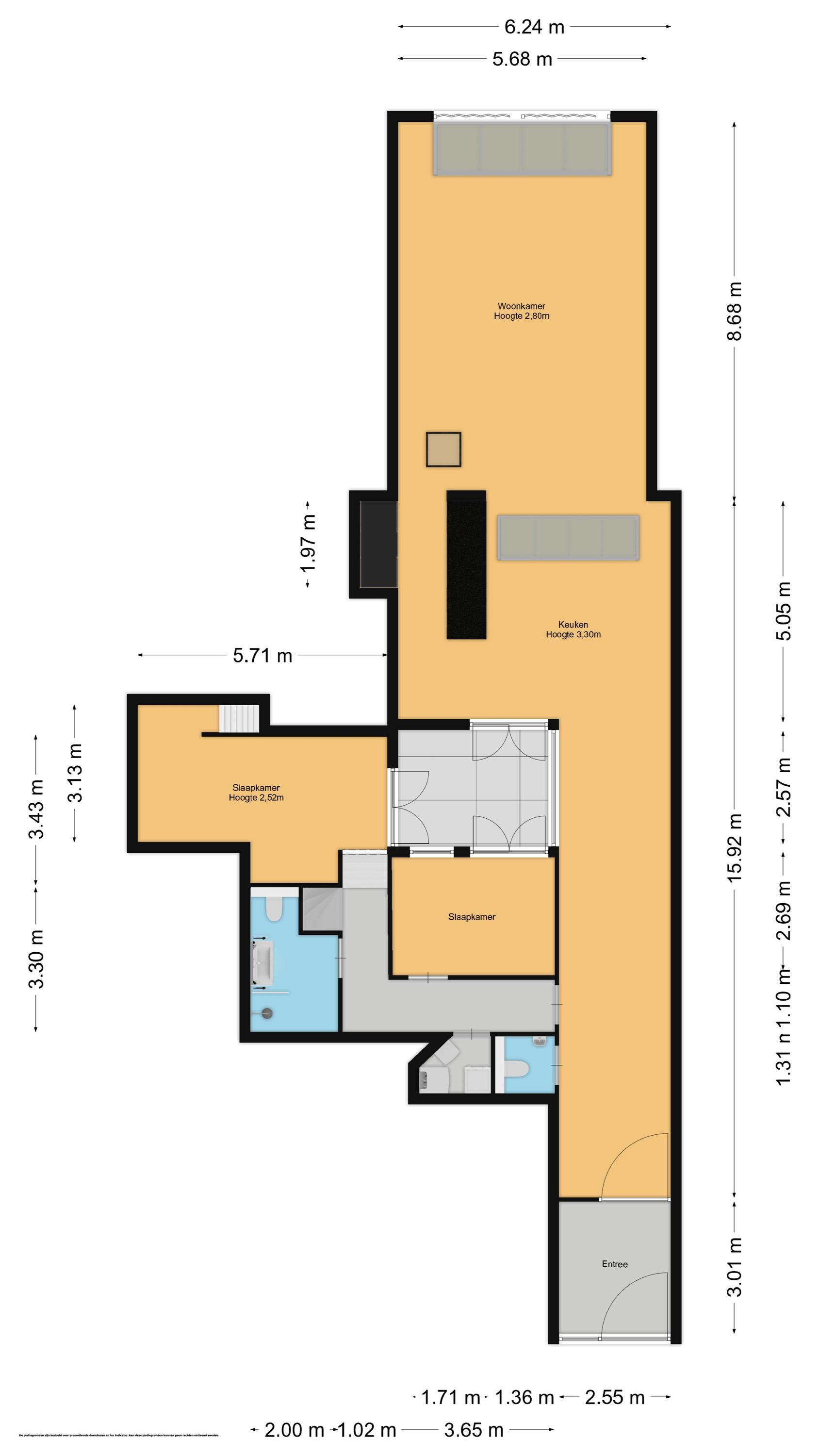
Wie nietsvermoedend langsloopt, heeft geen idee dat zich achter de elegante glazen entree een verborgen parel verschuilt. Maar zodra de deur opent, ontvouwt zich een indrukwekkend appartement van maar liefst ca. 200 m² – een ruimte die verrast door zijn hoogte, licht en allure.

De entree is een belevenis op zich: een lange, stijlvolle gang onder een glazen dak, die bijna voelt als een privé-galerij.
Hier is de perfecte plek om kunst uit te lichten en sfeer te creëren. De spanning bouwt zich op, en dan volgt het moment suprême: de living. Een zee van licht stroomt binnen via de fraaie lichtstraten en de royale plafondhoogte van 3,30 meter geeft de ruimte een grootstedelijke grandeur die je zelden in appartementen tegenkomt in het Gooi.

De moderne keuken met kookeiland vormt het hart van de woning – een uitnodigende plek voor borrels, diners en lange avonden met vrienden. Alles is tot in detail afgewerkt, waarbij comfort en stijl hand in hand gaan.
Naast de riante woonkamer biedt dit appartement drie volwaardige slaapkamers grenzend aan de patio. Twee moderne badkamers zorgen voor luxe en comfort, terwijl praktische ruimtes zoals de technische ruimte en de berging annex wasruimte bijdragen aan het dagelijkse gemak.

En dan is er nog de buitenruimte: een zonnige tuin van ca. 40 m², ideaal voor ontbijt in de ochtendzon of een ontspannen diner in de avond. Bovendien is er een intieme patio – de perfecte plek voor een bijzonder kunstwerk, prachtig uitgelicht dankzij de aanwezige elektra.

Dit appartement is niet alleen stijlvol, maar ook duurzaam met een sedumdak, zonnepanelen, warmtepomp, vloerverwarming en -koeling én een energielabel A+++ bent u klaar voor de toekomst.

Wonen hier betekent: de gezelligheid van het dorp Laren – met terrassen, winkels en delicatessenzaken letterlijk om de hoek – combineren met een woonbeleving die je eerder verwacht in een moderne loft of stadsappartement. Verborgen achter glas, maar zodra de deur opengaat, is het pure verrassing.

Ook aan praktische zaken is gedacht: er zijn parkeerplaatsen te huur in Hamdorf en daarnaast zijn er voldoende mogelijkheden om in de directe omgeving op het parkeerterein of om de hoek langs de openbare weg te parkeren.

Features

Solar panels
Transfer of ownership
Asking Price
€ 1.495.000 k.k.
Status
beschikbaar
Acceptance
in overleg
Construction
Kind of house
Benedenwoning
Building type
appartement
Energy rating
A+++
Roof type
samengesteld dak
Bedrooms
3
Bathrooms
2
Surface Areas And Volume
Living Area
197 m2
Other indoor space
0 m2
Volume in cubic meters
777 m3
Facilities
Mechanische ventilatie
Zonnepanelen
In centrum
Baerz & Co Property Brochure

Brochure

Videos

Art of Living by Marquiette & Partners

Meentweg 4
1261 XT Blaricum

hello@artoflivingbymar.com
+31 35 763 54 24

www.artoflivingbymarquiette.com

Information / Viewing request

Marquiette Schaap profile image
Marquiette Schaap
Real estate agent

Buying a Luxury Property in Laren

Laren offers an exceptional blend of privacy, cultural richness, and community. Residents benefit from refined amenities, discreet service, and an inviting, internationally respected lifestyle rooted in heritage and natural beauty.