OEGSTGEEST
President Kennedylaan 185 - 2343 GZ
Netherlands

Michiel de Jong RM profile image
Michiel de Jong RM
NVM Register Makelaar - Partner
€1,975,000 k.k.
Living Area
416m2
Plot Size
1580m2
Bedrooms
5

Description

Exclusive detached villa in American bungalow style, designed in modern chic, located on a spacious plot with a multi-functional outbuilding

This elegant villa with a bright white exterior, with a combined living area of no less than 416 m2, is situated on a beautiful plot of 1,580 m2. The house is ideally located on the edge of Oegstgeest, surrounded by streets on all sides, with no adjoining neighbours, providing a sense of space and privacy without isolation. It is close to the greenery of Poelgeest Castle and the Leidse Hout; the lakes, marinas, and golf course of Warmond; and the schools, sports clubs, and shops of Oegstgeest, including the International School Rijnlands Lyceum. Leiden CS and the centre of Leiden are also easily accessible by bike. The house is conveniently situated near major roads providing easy access to both The Hague and Amsterdam (A44/A4), as well as Delft/Rotterdam via the new N434.

In addition, there are many other features that make this house very attractive, such as:
- A beautiful garden surrounding the house with various terraces for sun and shade, 2 wooden sheds, plus an automatic sprinkler system;
- A detached outbuilding with garage and an independent living unit; ideal as a guest house, ‘kangaroo home’ or home office;
- Parking is possible in the garage or on the 2 private parking spaces as well as on the public road adjoining the property;
- Very solid construction quality and an excellent state of maintenance. The roofing has recently been completely renewed. An independent building inspection report is available;
- The house is secure and equipped with a high-end alarm system, giving you a safe feeling.

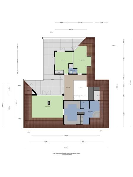
Layout: As you enter the villa, you are welcomed by a bright and spacious entrance hall with a double-height ceiling, highlighted by a grand staircase, where a luxurious high-pile carpet leads you into the living area. There is ample closet space available in the hallway. Walking straight ahead, you enter the living area consisting of a dining room, a living room, and a family room/TV room. The living room features a cosy fireplace. Together, these spaces cover more than 100 m2! Thanks to the large windows and good ceiling height, the rooms feel light and spacious. The house is surrounded by greenery, visible from the large windows in every room.
Sliding doors from each room give access to the terraces around the house.

The ground floor is equipped with a high-end Bang & Olufsen sound system, providing excellent sound quality throughout the living area.

The dining room is connected to the spacious kitchen, which is equipped with Miele appliances. Next to the kitchen is the utility room, which also serves as a 'back' entrance. Next to the main entrance is a hallway with the guest toilet and an indoor storage room housing the central heating system. Finally, on the ground floor, there is a spacious bedroom with fitted wardrobes and a private en-suite bathroom with bath and washbasin.

First floor: The landing gives access to 2 bedrooms with a shared bathroom, each with access to the roof terrace. On the other side of the landing is the very spacious master bedroom with fitted wardrobes and a spacious en-suite bathroom. The first part is a walk-in dressing room; in the second part, you will find the bath/jacuzzi, a double washbasin, toilet, and bidet as well as access to the additional dressing room/solarium. The master bedroom also has access to the large roof terrace.

The outbuilding has its own address: Mariahoevelaan 1. One part consists of a spacious garage with fitted wardrobes and the setup for central heating, washing machine, and dryer. The other part has its own entrance on the ground floor, with a living area, kitchen, and a bathroom with toilet, shower, and washbasin. On the first floor, you will find a spacious and bright living room and a bedroom.

All in all, a very special and representative detached villa in an excellent location; definitely worth a visit.

Features

Alarm system
Air conditioning
Transfer of ownership
Asking Price
€ 1.975.000 k.k.
Status
beschikbaar
Acceptance
in overleg
Construction
Kind of house
Villa
Building type
vrijstaande woning
Construction period
1978
Energy rating
C
Roof type
samengesteld dak
Bedrooms
5
Bathrooms
4
Surface Areas And Volume
Living Area
416 m2
Other indoor space
31 m2
Exterior space attached to the buildinge
81 m2
Volume in cubic meters
1658 m3
Plot Size
1580 m2
Facilities
Mechanische ventilatie
Alarminstallatie
Airconditioning
Schuifpui
Glasvezel kabel
Vrij uitzicht
Baerz & Co Property Brochure

Brochure

Videos

Floor Plans

Graal Makelaardij

Rapenburg 4
2311 EV Leiden

info@graalmakelaardij.nl
+31 (0)71 51 61 000

www.graalmakelaardij.nl

Information / Viewing request

Michiel de Jong RM profile image
Michiel de Jong RM
NVM Register Makelaar - Partner

Buying a Luxury Property in Oegstgeest

Oegstgeest cultivates a refined lifestyle defined by privacy, culture, and quality services. Its international community, rich traditions, and sophisticated amenities attract those seeking calm, elegance, and enduring value close to Dutch metropolitan hubs.