Landhuis price on application in OUD OOTMARSUM

OUD OOTMARSUM Laagsestraat 21 - 7637 PA The Netherlands


Harry Sentker profile image
Harry Sentker
Real Estate Agent
+31 852732800
info@kromhofpullen.nl

Landerijenbureau Kromhof-Pullen B.V.
Deldenerstraat 61
7551 AC Hengelo
NETHERLANDS
+31 852732800
www.kromhofpullen.nl
info@kromhofpullen.nl

Living area
325m2
Plot size
36499m2
Bedrooms
4

Description

Erve Scholte Splinterink, Een exclusief landhuis met parkachtig erf, paardenfaciliteiten en wellness.

Waar historie, luxe en natuur samenkomen
Aan de rand van het charmante kunststadje Ootmarsum, verscholen achter majestueuze bomen, ligt dit unieke buitengoed van circa 3,65 hectare. Een erf met meer dan 750 jaar historie, herbouwd en uitgebouwd tot een luxe woonomgeving waar kwaliteit, comfort en natuur in perfecte harmonie samenkomen.

Een erf met eeuwen geschiedenis
Dit bijzondere erf, van oudsher bekend als “Erve Scholte Splinterink”, kent een indrukwekkende historie. Al in 1272 wordt het erf genoemd als Splinterinckhof en behoorde het toe aan de Bisschoppen van Utrecht. Rond 1778 verschijnt het op kaarten als herkenbaar punt in het Twentse landschap en heeft voornamelijk dienst gedaan als boerenhoeve. De historie is uitvoerig beschreven door Herman Hagens in het boekje ’t Inschrien (1970), onder de titel “Splynterinck yn olde Oetmerssem”.

Klaar voor de toekomst
In 1969 is de voormalige hoeve vervangen door een landhuis van allure in de kenmerkende en gebiedseigen Saksische stijl, ontworpen door de Twentse architect W. Morsink. In de afgelopen jaren is het landhuis uitgebouwd met een serre, is het gemoderniseerd en verduurzaamd (isolatie, warmtepomp en 99 PV panelen tot label A++++)

Het landhuis
Het historische silhouet van de voormalige hoeve is behouden, terwijl het interieur met gevoel voor stijl en luxe is ingericht. Hier vindt u een royale moderne leefkeuken, sfeervolle woonvertrekken en meerdere slaapkamers en badkamers, afgewerkt met hoogwaardige materialen. Een huis dat warmte en grandeur combineert, waar zowel het dagelijks leven als het ontvangen van gasten een waar genoegen is.
De indeling:
Begane grond
- entree, riante hal, toilet en garderobe,
- living voorzien van een robuuste eikenparketvloer, schouw met kachel op een Bentheimerzandstenen voet, en een adembenemend zicht op het omliggende glooiende landschap;
- royale leefkeuken met o.a. modern kookeiland en inbouwkeuken voorzien van composiet en RVS werkblad en luxe inbouwapparatuur waaronder oven, stoomoven, magnetron, koelkast, vriezer, vaatwasser, Quooker, en wijnkast. Volop ruimte om samen met familie of vrienden gezellig te dineren.
- aansluitend een grote serre, uitgevoerd in stijlvolle antracietkleurige kozijnen die in zijn geheel op kunnen worden gezet. Het eikenhout en de gietvloer combineren fraai en maken dit tot een geliefde multifunctionele ruimte;
- masterbedroom voorzien van airco, diverse inbouwkasten en aansluitend een luxe badkamer met dubbele wastafel, bidet, toilet, en stoomdouchecabine.
- bijkeuken met ruimte voor witgoed.

Souterrain
Nagenoeg geheel betegelde ruimte met wasruimte, provisieruimte en technische ruimtes waarin boiler, waterontharder, omvormers voor de PV panelen en de warmtepomp zijn geïnstalleerd.

1e verdieping:
- overloop met vide en vaste kast
- royale slaapkamer met walk-in closet en badkamer met douche, dubbele wastafel, toilet en bidet
- slaapkamer met speelse via vaste trap te bereiken extra ruimte in de nok, badkamer met ligbad, douche, toilet en wastafel en designradiator
- slaapkamer eveneens voorzien van badkamer, uitgevoerd met hoekbad en douche, toilet, bidet en wastafel.
- de gehele bovenverdieping, met uitzondering van de badkamers, is voorzien van een massief eiken vloer.
Zolder
- via vlizotrap te bereiken royale bergruimte.

Privé wellness
Een karakteristiek bijgebouw vormt een oase van ontspanning. Hier treft u een royaal zwembad, luxe sauna, exclusieve douche- en kleedruimte. En als klap op de vuurpijl een jacuzzi op het aangrenzende buitenterras. De perfecte plek om in alle rust tot uzelf te komen of gasten op exclusieve wijze te ontvangen. De verdieping van dit gebouw leent zich er zelfs voor om een gastenverblijf te realiseren.

Parkachtig erf
Het erf is een lust voor het oog. Sluit u de poort achter u en vervolgt u de weg over de rustieke erfverharding dan ervaart u direct de intimiteit van dit bijzondere domein. Aan de ene zijde omgeven door volwassen bomen en een indrukwekkende overloopvijver, die op natuurlijke wijze in verbinding staat met de Moerbekkebeek en dus nooit droog valt. Met aan de waterkant een fijn terrasje: een idyllische plek om in alle privacy te genieten van het uitzicht en het spel van het licht op het water. Aan de andere zijde kunt u genieten van de glooiende weiden en akkers afgewisseld met houtwallen en bosschages.
Rondom het landhuis zijn grote gazons aangelegd met verschillende terrassen. Voor de tuinliefhebbers zijn een kas en moestuin op niveau aanwezig. Nagenoeg het gehele terrein kan worden beregend zodat ook in de steeds droger en warmer wordende zomers het hier altijd fraai en lentegroen oogt.

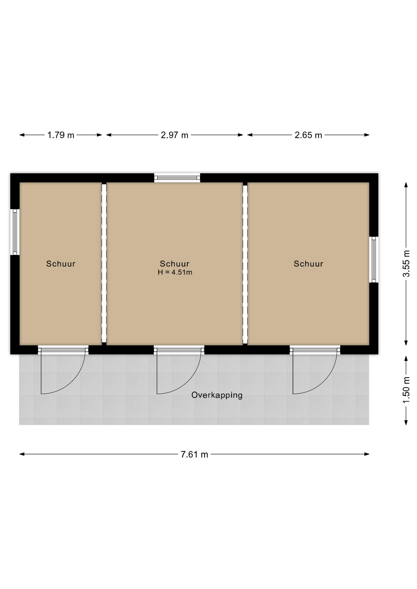
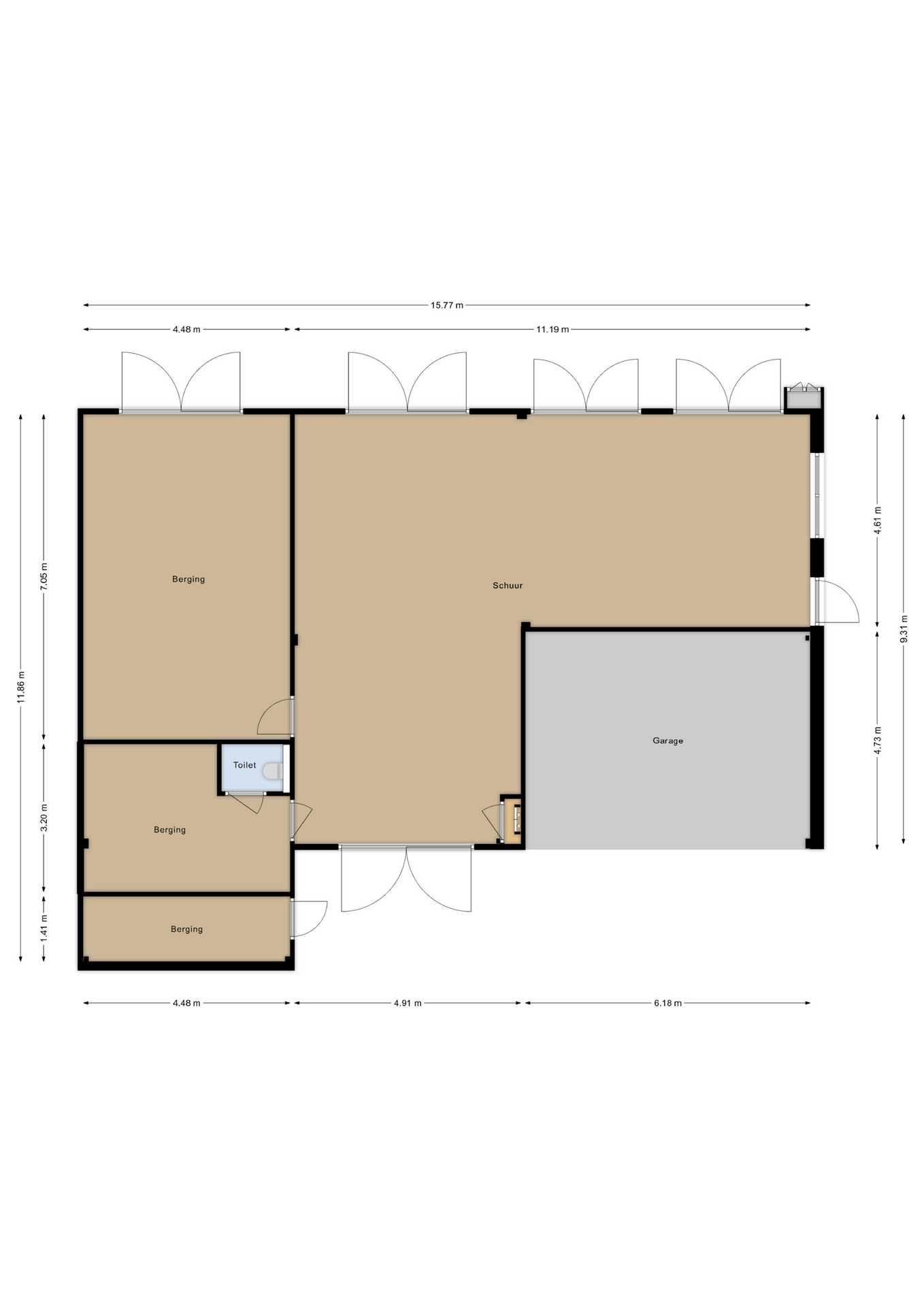
Luxe schuur
Enkele jaren geleden is een nieuwe multifunctionele schuur op het erf verrezen. Opgetrokken uit eikenhouten gebinten en wanden, sluit dit bouwwerk qua uiterlijk naadloos aan op het klassieke Twentse landschap en verbergt het de luxe en moderne voorzieningen die aanwezig zijn. Het gebouw is geheel onderkelderd en voorzien van een verwarmde hellingbaan, waardoor het geschikt is om werktuigen, groot of klein binnen te stallen. Bovendien is het volledig geïsoleerd zodat het dienst kan doen als atelier, stalling van oldtimers of andere ruimtevragende activiteiten. Maar ook een kantoor of stijlvolle herenkamer behoort tot de mogelijkheden.

Faciliteiten voor de paardenhouderij
Paardenliefhebbers komen hier voor hun hobby niets tekort. Verspreid over twee gebouwen zijn er 4 stallen met aanpalende ruimtes die geschikt zijn voor bijvoorbeeld solarium en ruwvoer- of strooiselopslag.
Aansluitend aan de gebouwen zijn er meerdere rijbakken gesitueerd, uitgevoerd in een HVL bodem en voorzien van eb- en vloedsysteem zodat er altijd gereden kan worden. De afmetingen zijn globaal 50 x 25 en 24 x 17. Ook is er een longeercirkel aanwezig met eveneens een HVL bodem voorzien van eb- en vloedsysteem. Uiteraard is er de nodige verlichting.
En dan zijn er nog de ruime weides. Keurig in het hout gezet, voorzien van robuuste hekken, zodat er ook eenvoudig groot materieel in en uit kan rijden. De paden er naar toe zijn semiverhard met puingranulaat zodat dit jaarrond zonder schade aan het terrein kan plaatsvinden.

Ligging
De locatie is zonder meer uniek. Op korte afstand bevindt zich het levendige Ootmarsum, bekend om zijn kunstgaleries, terrasjes en culinaire adressen. Direct ten noorden strekt zich het natuurgebied ’t Springendal uit, waar bronnen, beekdalen en houtwallen een schilderachtig decor vormen voor wandelingen, fiets- en paardrijtochten.

Historische achtergrond
Erve Scholte Splinterink
Het huidige erf aan de Laagsestraat 21 stond eeuwenlang bekend als “Erve Scholte Splinterink”. Het behoort tot de oudste erven in de omgeving van Ootmarsum en kent een lange en goed gedocumenteerde geschiedenis.
De oudste vermelding
Reeds in 1272 wordt het erf genoemd in archiefstukken. Daarmee behoort het tot de oudst bekende erven van Oud Ootmarsum. Eeuwenlang speelde het erf een rol in de lokale landbouw en gemeenschapsstructuur, waarbij de naam Scholte Splinterink generaties lang verbonden bleef aan dit stukje Twente.
De domeinkaart (ca. 1778)
Op een domeinkaart – een voorloper van het kadaster – uit circa 1778 is het erf al nauwkeurig weergegeven. Deze bijzondere kaart, bewaard in het Historisch Centrum Overijssel te Zwolle, toont de ligging van het erf in het Twentse coulisselandschap en vormt een tastbaar bewijs van de historische continuïteit van deze plek.
Literatuur
In 1970 beschreef Herman Hagens de geschiedenis van het erf in het boekje ’t Inschrien onder de titel “Splynterinck yn olde Oetmerssem”.

Van middeleeuws erf naar luxe landgoed – de rijke historie van Erve Scholte Splinterink vormt de basis voor het huidige landgoed. Eeuwenoude wortels die vandaag de dag in een nieuwe, luxueuze vorm tot bloei zijn gekomen.
Deze presentatie is informatief en geheel vrijblijvend. Tekeningen, maten, oppervlakte en inhoud zijn indicatief, hieraan kunnen geen rechten worden ontleend. De uitgebreide brochure is op aanvraag verkrijgbaar.

Features

Transfer of ownership
Price on application
Status
beschikbaar
Acceptance
in overleg
Construction
Kind of house
Landhuis
Building type
vrijstaande woning
Construction period
1969
Energy rating
A_PPPP
Bedrooms
4
Bathrooms
4
Surface Areas And Volume
Living area
325 m2
Other indoor space
0 m2
External storage space
380 m2
Volume in cubic meters
1449 m3
Plot size
36499 m2
facilities
Mechanische ventilatie
Zwembad
Zonnepanelen
Vrij uitzicht
Landelijk gelegen
Baerz & Co Property Brochure

Brochure

Information / Viewing request

Videos

Photos

Floor Plans