ST.-JACOBIPAROCHIE
Oosteinde 38 - 9079 LC
Netherlands

Ellen Schoneveld profile image
Ellen Schoneveld
Real Estate Agent
€850,000 k.k.
Living Area
473m2
Plot Size
1872m2
Bedrooms
10

Description

Elegant, Sustainable Doctor’s Villa with Coach House near the Wadden Sea!

Seulle State, a rare gem of a national heritage doctor’s villa with coach house, lovingly preserved and dating back to 1915. This stately residence, featuring a full basement, upper floor, and attic under a distinctive hipped roof, was built in the Transitional Style. An abundance of characteristic details has been meticulously maintained: rich mosaic floors, marble and oak wainscoting, stained glass windows, decorative panels, beamed ceilings, profiled doorframes, and ornate fireplaces. As a crowning architectural element, the restored rooftop turret with its hexagonal lantern adds charm and elegance.
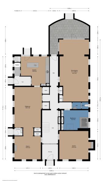
The villa is symmetrically laid out and offers on the ground floor a spacious kitchen with access to the generous cellar, a formal dining room, sitting room, impressive study, bathroom, and a grand garden room facing south.
Upstairs are six bedrooms and a second bathroom, all arranged around a central atrium with a loggia and rooftop terrace. The attic features a striking original stained-glass window beneath the lantern, casting beautiful light onto the first-floor atrium.
The expansive attic and detached coach house with an upper level offer ample storage and further potential. Recent sustainability upgrades include roof and floor insulation, restoration work, and fresh paint throughout.
Set on a spacious, approx. 2,000 m² plot**, Seulle State offers privacy through mature trees, sheltered terraces, and lush greenery. Living in Sint-Jacobiparochie, near the Wadden Sea, means enjoying peace and nature, with the warmth of a vibrant village community, all amenities nearby, and the Randstad within easy driving distance.

LAYOUT

GROUND FLOOR
Upon entering through the grand main entrance with its marble wainscoting, the original mosaic floor featuring the Rod of Asclepius immediately reveals the home’s medical heritage. The vestibule opens onto a hallway that divides the villa into two symmetrical wings. Under an elegant arch adorned with a marble floor hangs a striking Art Nouveau lantern.
To the right, the stately study features parquet flooring, oak paneling, an ornate fireplace, and built-in cabinetry. Remarkably, the stained-glass windows depict portraits of Rembrandt van Rijn and his wife Saskia Uylenburgh, honouring their nearby marriage in St.-Annaparochie.
Beyond the staircase and cloakroom lies the bathroom with separate toilet. Bright and located on the west side of the home, it features large windows, a jacuzzi, and a walk-in shower.
At the rear of the hallway, the garden room awaits. This serene, sun-filled space boasts a high beamed ceiling, large windows, and a marble floor. Sliding doors lead to a romantic terrace shaded by an ancient chestnut tree—a perfect retreat.
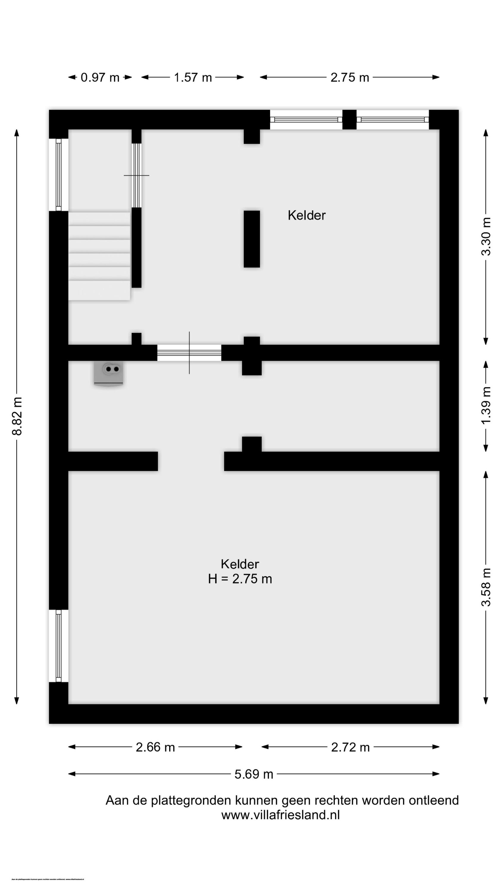
On the left side of the hallway is the inviting kitchen (2005) with a cooking island and built-in appliances. It features a beamed ceiling, marble flooring with underfloor heating, custom cabinetry, and stained-glass windows overlooking the lush rear garden. Doors lead to the terrace and adjacent utility room, which in turn gives access to the spacious cellar.
Next to the kitchen is the formal dining room—once the estate’s banquet hall. With a high beamed ceiling, marble floor, and side entrance, it is graced with tall windows framing views of the ancient chestnut trees.
En-suite to this room is the intimate sitting room, affectionately named the *Wilhelmina Room*, with parquet flooring and views over the villa’s front garden.
Heating on this floor is provided by radiators.

FIRST FLOOR
The impressive staircase leads to the first floor, illuminated by a stained-glass window above the landing.
Six bedrooms, each with its own character, surround the central atrium. Most include built-in wardrobes and washbasins. One room, currently used as a gym, includes a modern steam shower cabin.
The spacious family bathroom features a bath, shower, double sinks, and toilet. A separate laundry room and ample storage are also available.
A sunny rooftop terrace to the south and a covered loggia with original mosaic flooring on the west side offer sheltered outdoor spaces on this level.
Heating is provided by radiators.

SECOND FLOOR
Accessible via a fixed staircase next to the gym, the attic is a generous space with full head height, natural light, and recent insulation. Though currently unfinished, the attic retains its original wooden floorboards and is centered around a magnificent stained-glass window beneath the turret lantern, casting a play of colour and light into the atrium below.

COACH HOUSE
The brick-built coach house features double doors, a side entrance, and built-in cabinets on the ground floor. A fixed staircase leads to the upper level, which offers excellent potential thanks to its spacious layout beneath the roof trusses and dormer.

GARDEN
Surrounding the home are mature gardens accessible via paved walkways. The main garden lies to the south, offering multiple terraces for sun or shade. A charming terrace beside the kitchen is ideal for long family dinners and summer barbecues, while the elevated terrace adjoining the garden room captures both sunshine and cool shade.
Towering chestnut trees and manicured hedges frame the estate with elegance and privacy. The borders are filled with ornamental trees, shrubs, and perennials, creating a true oasis of tranquillity.

HIGHLIGHTS
* National Heritage Property (*Rijksmonument*) with tax advantages
* Two sitting rooms, spacious kitchen, 7 bedrooms, 2 bathrooms
* Ideal for family living, home office, multi-generational living, or B\&B
* Detached coach house with upper level
* Ample private parking
* Sheltered south-facing garden with multiple terraces
* Authentic details in excellent condition
* Rare blend of history, atmosphere, and peace
* Close to the Wadden Sea, a UNESCO World Heritage Site
* Near Harlingen, Franeker, Leeuwarden – excellent access to Randstad

SINT-JACOBIPAROCHIE
Known as the most famous Pilgrim Village on the Wadden Sea, Sint-Jacobiparochie is just 75 minutes from Amsterdam.
Here you’ll find the charm of village life with all daily amenities close by. A GP, physiotherapist, daycare, primary school, restaurant, and active sports clubs are present, while supermarkets and shops (like HEMA) are just minutes away in St.-Annaparochie.
The village’s landmark is *De Groate Kerk*, an architectural masterpiece built in 1844 by architect Romein. Now a cultural centre, the church hosts concerts and offers pilgrim lodging. The surrounding area features scenic walking and cycling routes along the Wadden Sea, through idyllic villages and unspoiled Frisian landscapes.
With excellent road access and public transport, nearby cities like Franeker (16 min), Harlingen (20 min), and Leeuwarden (20 min) are easily reached. The Afsluitdijk is also just 20 minutes away.

DISCLAIMER
All information has been compiled with great care. No rights can be derived from this presentation, and we cannot accept liability for any inaccuracies or omissions. This information is not a formal offer, but a general invitation to explore the property.

Features

Transfer of ownership
Asking Price
€ 850.000 k.k.
Status
beschikbaar
Acceptance
in overleg
Construction
Kind of house
Villa
Building type
vrijstaande woning
Construction period
1915
Roof type
schilddak
Bedrooms
10
Bathrooms
3
Surface Areas And Volume
Living Area
473 m2
Other indoor space
50 m2
Exterior space attached to the buildinge
23 m2
External storage space
58 m2
Volume in cubic meters
2320 m3
Plot Size
1872 m2
Facilities
Tv kabel
Jacuzzi
Schuifpui
Dakraam
Natuurlijke ventilatie
Aan rustige weg
In centrum
Vrij uitzicht
Beschutte ligging
Landelijk gelegen
Baerz & Co Property Brochure

Brochure

Videos

Floor Plans

Villa Friesland Makelaardij

Lange Marktstraat 1
8911 AD Leeuwarden

info@villafriesland.nl
+31 (0)58 - 23 006 23

www.villafriesland.nl

Information / Viewing request

Ellen Schoneveld profile image
Ellen Schoneveld
Real Estate Agent

Buying a Luxury Property in St.-Jacobiparochie

St.-Jacobiparochie offers discerning residents a preserved rural atmosphere, refined homes, and a close-knit community. Its understated luxury, privacy, and proximity to cultural hubs appeal to internationally minded buyers seeking comfort and authenticity.