Apartment for sale in Tivat

Tivat Montenegro


Peter Beerents profile image
Peter Beerents
Managing Director
Headquarters South Europe

Itana Lalović profile image
Itana Lalović
Personal Property Advisor
Baerz Property Finders & Advisors
itana@baerzproperty.com

Living area
152m2
Plot size
N/A
Bedrooms
3

Description

LOCATION

Apartment is located in 5 star Hotel in Central Tivat, that is in construction and will be finished by the end of 2025. Based near the waterfront of Tivat’s Seljanovo, the complex is strategically positioned in the hub of the Montenegrin coastline, serviced by three international airports, Tivat, Dubrovnik (CRO) and Podgorica, and easily accessed via the Adriatic Highway.

Encircled by nearby parks and greenery, the development forms a natural extension of the local area, merging seamlessly with the town’s smaller settlements and newest communities, with Donja Lastva to the north and Porto Montenegro to the south.

ABOUT THE PROJECT

The building has 4 floors, while the apartment is on the 4th floor. Apartments available in the Hotel will operate as serviced apartments. Future apartment owners will have the opportunity to rent apartment via Hotel management and get a return on their investment. With a grand total of 33 branded residences, the two residential blocks are serviced by joint amenities, a rooftop pool and bar, restaurant, health spa and fitness facilities. With centralised Hotel and Rental Management schemes in place, owners can leave their property in capable hands when not in use.

Open all year round, the complex comes complete with an on-site cafeteria, children’s playground and landscaped park, catering for all seasons, while beaches are the summer highlight.

Branded Residences

PRIVATE HOMES CURATED AND MAINTAINED BY DEVELOPER

A TOTAL OF 33 BRANDED RESIDENCES FOR SALE

STUDIO, ONE- AND TWO-BEDROOM APARTMENTS AVAILABLE

PARK, SEA AND MOUNTAIN VIEWS

READY-TO-MOVE IN PROPERTIES WITH FURNITURE PACKAGE OPTIONS

URBAN DESIGN WITH MEDITERRANEAN UNDERTONES

SECURE UNDERGROUND PARKING CONCIERGE AND 24-HOUR SECURITY

Amenities

ROOFTOP INFINITY POOL DECK

GATSBY STYLE ROOFTOP BAR AND TERRACE

LOBBY BAR AND SIGNATURE HOTEL RESTAURANT

HEALTH SPA AND FITNESS FACILITIES ONSITE BEAUTY SALON AND SHOP COMMUNAL CAFETERIA AND PARK CHILDREN’S PLAYGROUND

SECURE UNDERGROUND PARKING AND OUTDOOR PARKING

Parkside Apartments

Incorporated as part of the new neighbourhood these serviced luxury residences offer buyers property for sale, with access to the complex park, playground and cafeteria, as well the short 5 minute walk to the beach.

A TOTAL OF 44 SERVICED APARTMENTS FOR SALE

1-, 2- AND 3-BEDROOM CONFIGURATIONS

PREMIUM INTERIOR FINISHES WITH CLIMATE CONTROL

FURNITURE PACKAGES

AVAILABLE RESIDENTS-ONLY ROOFTOP POOL

EXCEPTIONAL VIEWS OF CITY, PARK AND WATERFRONT ACCESS TO COMMUNAL COMPLEX AMENITIES

DEDICATED PARKING

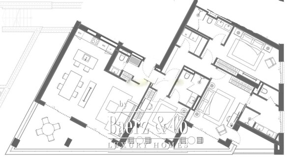
DESCRIPTION OF THE APARTMENT

Structure of the apartment: hallway, living room with kitchen and dining table, 3 bedrooms, 3 bathrooms, a toilet and 3 terraces. It has a sea view.

WHY CHOOSE THIS APARTMENT

This apartment is perfect for living, a summer home and for bot h long term and short term renting. Its proximity to restaurants, the beach, boutiques, grocery shops makes it a perfect short term and long term rental. This is a perfect opportunity for the buyer to acquire an apartment that can have a return on investment.

PAYMENT PLAN

Residence Reservation

Buyers may secure a residence upon signing a Reservation Agreement and providing a nonrefundable Reservation Deposit.

Upon receipt of the deposit, the residence will be marked reserved in the buyer’s name and the buyer will be sent a Sales and Purchase Agreement.

Sales and Purchase Agreement

Signature of the Sales and Purchase Agreement should be made at the notary’s office in Tivat, Montenegro, in person or via Power of Attorney.

On signature of the Sales and Purchase Agreement the Reservation Deposit will be contributed to the first of the stage payments.

€10,000 non-refundable reservation fee, which is included in the first installment of 50%, payable upon signing the preliminary sales agreement;
Second installment – 20%, no later than December 31, 2025;
Third installment – 20%, no later than June 1, 2026;

Fourth installment – 10%, upon handoverofthekeys.

DESCRIPTION OF THE REGION AND MUNICIPALITY

As the country’s principal investment and recreational coastal hub, Tivat is the perfect year-round destination for cultural, sporting and avantgarde coastal lifestyles – catering to fond families and friends, freelancers, entrepreneurs, grounded folk and freestylers alike.

With hot, Mediterranean summers and mild, sunny winters, Tivat residents enjoy just over 280 sunny days per year, leaving much time to explore the local environment, sea, mountains, historical towns and cultural heritage even off-season. Just a short drive away from the ski regions, the small coastal town is a prime base for exploring Montenegro’s wild beauty, in the aftermath of the summer hustle.

Located in the UNESCO-protected Boka Bay, often referred to as Europe’s southernmost fjord, Tivat is home to an outstanding natural environment, offering panoramic sea and mountain views, exceptional beauty and local charm.

The town’s cosmopolitan spirit and riviera chic is buttressed by nearby Porto Montenegro, the country’s leading luxury residential marina village, an open community offering a plethora of lifestyle amenities to Tivat’s newcomers.

Features

Transfer of ownership
price
€ 1.538.000
Reference
2411
LEO
Construction
Kind of house
Apartment
Rooms
N/A
Bedrooms
3
Bathrooms
3
Surface Areas And Volume
Living area
152 m2
Plot size
0 m2
Baerz & Co Property Brochure

Brochure

Information / Viewing request

Baerz Property Finders & Advisors
Dubovica Lux bb
85310 Budva, MONTENEGRO

Videos

Photos

Living in Tivat

Tivat, a picturesque coastal town in Montenegro, boasts a rich history dating back to the Illyrian period. Strategically located in the Bay of Kotor, Tivat is surrounded by stunning mountainous landscapes and azure waters of the Adriatic Sea. Historical sites such as the Renaissance Summer House Buca in the town ...