ZOETERMEER
Bellefleurhof 12 0 ong - 2728 KH
Paesi Bassi

Xandra Bek profile image
Xandra Bek
Register makelaar - taxateur
€1,345,000 k.k.
Superficie abitabile
382m2
Dimensione del lotto
N/A
Camere da letto
9

Descrizione

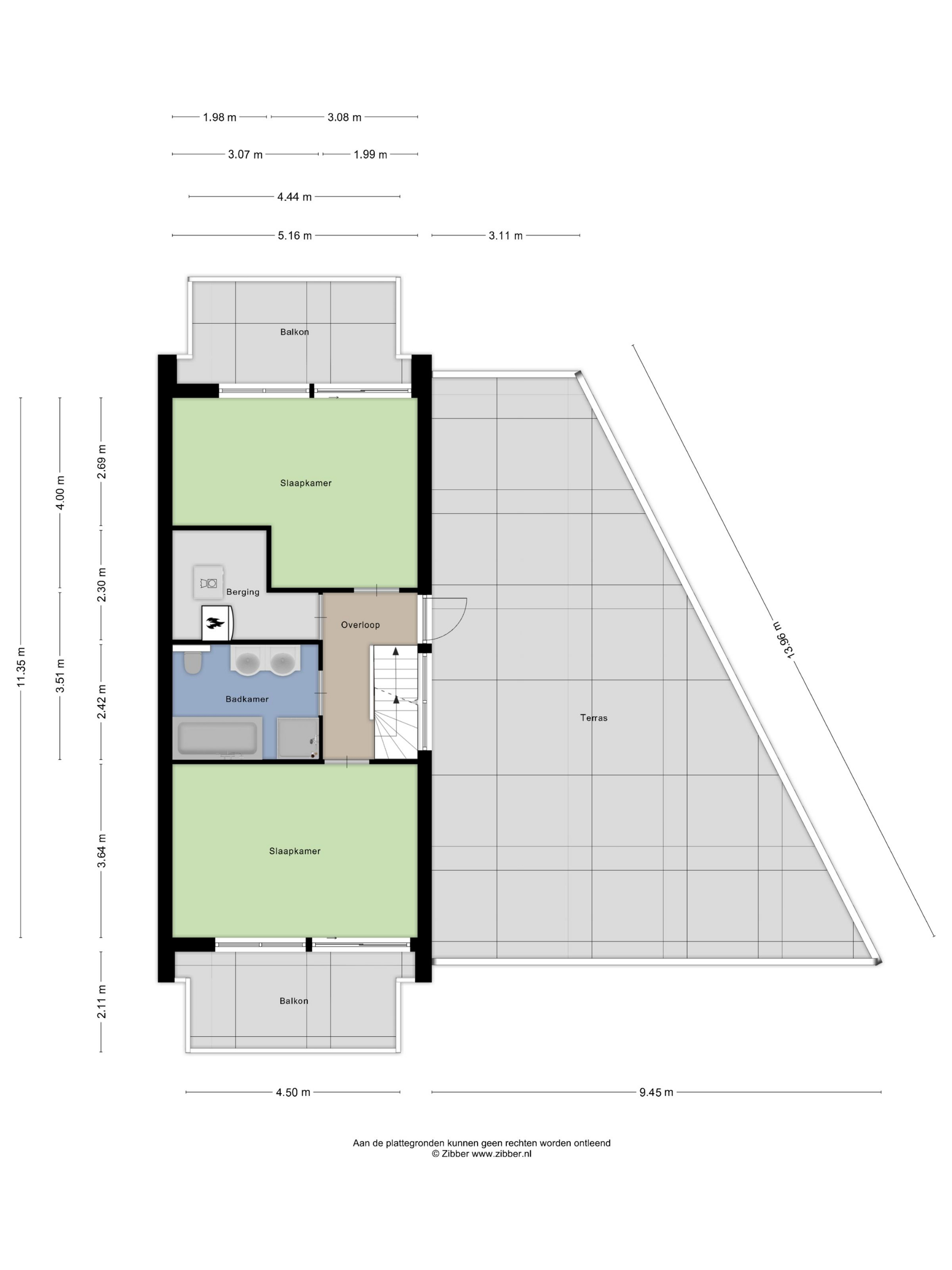
Questa villetta bifamiliare a Zoetermeer offre una proposta rara: due residenze completamente indipendenti sotto lo stesso tetto, progettate per andare incontro alle esigenze in evoluzione della convivenza tra più generazioni o al vivere insieme senza compromessi. Con una superficie interna di 382 m² distribuita su quattro livelli, la proprietà equilibra perfettamente la privacy con il piacere degli spazi condivisi, grazie a due soggiorni, due cucine e nove camere da letto, completate da tre bagni moderni.

La luce naturale inonda gli interni attraverso grandi finestre, valorizzando ambienti ampi caratterizzati da linee contemporanee e infissi in alluminio a bassa manutenzione. Ogni zona living offre una vista sul verde, trasmettendo un senso di calma in un quartiere residenziale definito da alberi maturi e viali ampi e silenziosi. La distribuzione delle camere da letto su tutti i livelli assicura massima flessibilità, ideale per famiglie numerose, ospiti o spazi lavoro privati.

Sono disponibili complessivamente 168 m² di spazi esterni tra giardino frontale, giardino sul retro, tre balconi e tre terrazzi sul tetto, per godere sia del sole che della totale privacy. L’abitazione è dotata di vetri HR++, isolamento avanzato, dodici pannelli solari e vanta la classe energetica A, a conferma di qualità e sostenibilità. I servizi pratici comprendono carport, parcheggio privato con stazione di ricarica e possibilità di ulteriore ampliamento. Il quartiere Noordhove deel II offre tranquillità e accesso diretto a scuole primarie, strutture sportive, aree naturali e comodi collegamenti con il centro di Zoetermeer e L’Aia. Una soluzione familiare versatile, elegante e riservata.

Esplora Zoetermeer con Baerz, il tuo fidato consulente e cercatore di proprietà personali

Il segmento del lusso trae grande vantaggio da una rappresentanza riservata e dalla profonda conoscenza locale. I consulenti privati forniscono accesso a immobili fuori mercato e guidano trattative complesse con esperienza. Le loro reti sono preziose nella gestione di acquisti importanti e trattative riservate, aiutando i clienti a trovare opportunità rare e il massimo vantaggio.

Evita gli errori comuni

Gli acquirenti internazionali spesso perdono tempo prezioso su inserzioni online duplicate, obsolete o fuorvianti, soprattutto poiché quasi il 30% delle case di lusso non appare mai sul mercato pubblico. Gli agenti del venditore rappresentano gli interessi del venditore, non quelli dell'acquirente. Anche solo richiedere informazioni su una proprietà può comportare che un agente del venditore ti registri come loro “cliente” senza il tuo consenso.
Con Baerz Property Finders & Advisors, eviti completamente tutti questi errori. Lavoriamo esclusivamente per tuo conto, offrendo rappresentanza indipendente, guida chiara e accesso a tutte le proprietà disponibili, comprese le opportunità fuori mercato che altri non riescono mai a vedere.

Interessato a un Consulente Immobiliare Personale?

Ti mostriamo tutte le case disponibili in un unico posto. Sentiti libero di contattarci per scoprire come possiamo soddisfare le tue esigenze e proteggere i tuoi interessi in modo esclusivo.

Caratteristiche

Pannelli solari
Aria condizionata
Trasferimento di proprietà
Prezzo richiesto
€ 1.345.000 k.k.
Stato
beschikbaar
Accettazione
in overleg
Costruzione
Tipo di casa
Herenhuis
Tipo di edificio
halfvrijstaande woning
Periodo di costruzione
2002
Classe energetica
A
Tipo di tetto
plat dak
Camere da letto
9
Bagni
3
Superfici e Volume
Superficie abitabile
382 m2
Altri spazi interni
0 m2
Spazio esterno collegato all'edificio
168 m2
Spazio di stoccaggio esterno
9 m2
Volume in metri cubi
1262 m3
Servizi
Airconditioning
Rookkanaal
Schuifpui
Frans balkon
Glasvezel kabel
Zonnepanelen
Aan park
In woonwijk
Vrij uitzicht
Baerz & Co Property Brochure

Brochure

Video

Planimetrie

Van Herk Makelaars Excellent

Oudehoofdplein 4
3011 TM Rotterdam

xbek@vanherk.nl
+31 102581855

www.vanherk.nl/excellent/

Richiesta di informazioni / Visita

Xandra Bek profile image
Xandra Bek
Register makelaar - taxateur

Acquistare una proprietà di lusso a Zoetermeer

Zoetermeer si distingue come comunità moderna e accogliente per chi ricerca eleganza, vitalità culturale e collegamenti efficienti. I residenti godono di servizi riservati, immobili di lusso e un orizzonte internazionale in un ambiente sereno e dinamico.