ZOETERMEER
Bellefleurhof 12 0 ong - 2728 KH
Países Baixos

Xandra Bek profile image
Xandra Bek
Register makelaar - taxateur
€1,345,000 k.k.
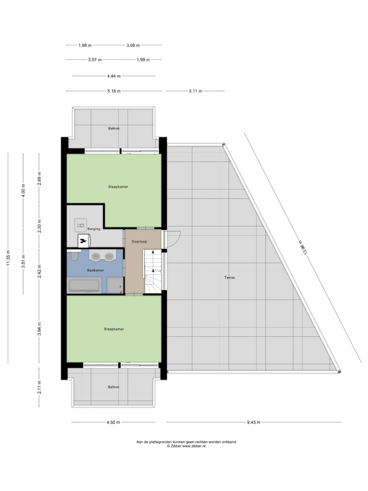
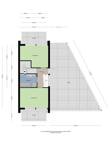
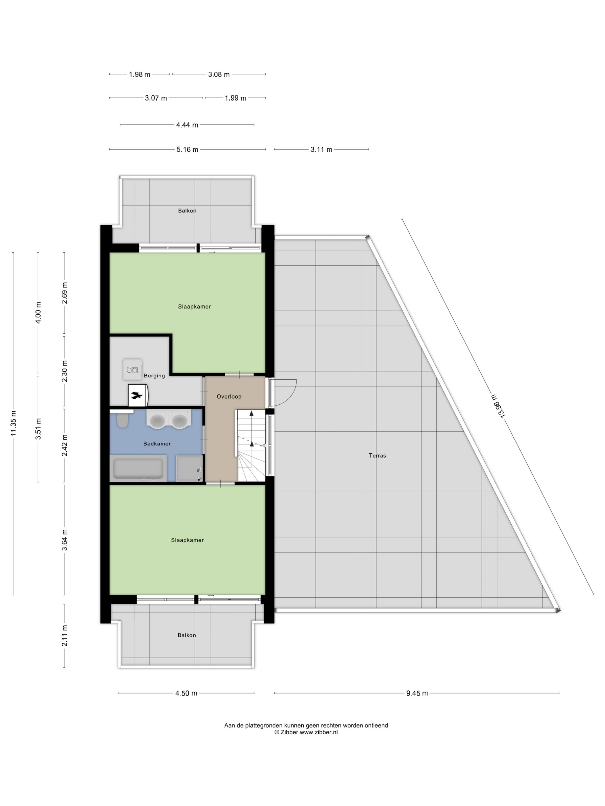
Área habitacional
382m2
Tamanho do terreno
N/A
Quartos de dormir
9

Descrição

Este moradia geminada em Zoetermeer apresenta uma oferta rara: duas residências totalmente independentes sob o mesmo teto, concebidas para atender às necessidades em constante evolução de famílias multigeracionais ou convivência descomplicada. Com 382 m² de área interna distribuídos por quatro pisos, a propriedade equilibra privacidade e possibilidades de partilha através de duas salas de estar, duas cozinhas e nove quartos, além de três casas de banho modernas.

Luz natural abunda através das amplas janelas, iluminando interiores generosos com linhas contemporâneas e caixilharias em alumínio de baixa manutenção. Cada área de convívio está voltada para vistas verdes, promovendo serenidade num bairro residencial marcado por árvores maduras e avenidas largas e tranquilas. A distribuição dos quartos por todos os níveis oferece flexibilidade, perfeita para famílias numerosas, hóspedes ou espaços de trabalho privados.

No exterior, 168 m² de espaços aguardam, incluindo jardim frontal, jardim nas traseiras, três varandas e três terraços na cobertura, que asseguram plena exposição solar e privacidade. A casa dispõe de vidro HR++, isolamento avançado, doze painéis solares e classificação energética A, reafirmando o compromisso com qualidade e sustentabilidade. Comodidades práticas incluem carport, estacionamento privativo com posto de carregamento e potencial para futura expansão. A zona Noordhove deel II oferece tranquilidade, acesso direto a escolas primárias, instalações desportivas, reservas naturais e ligações convenientes ao centro de Zoetermeer e Haia, tornando esta moradia uma verdadeira solução familiar versátil e discreta.

Explore Zoetermeer com a Baerz, o Seu Confiável Consultor e Descobridor de Propriedades Pessoais

O segmento de luxo de Zoetermeer valoriza a representação discreta e o conhecimento local aprofundado. Consultores privados dão acesso a imóveis exclusivos e auxiliam em negociações complexas. A rede de contatos deles é preciosa para negócios de alto valor e acordos confidenciais, ajudando clientes a identificar oportunidades e obter os melhores resultados.

Evite armadilhas comuns

Os compradores internacionais muitas vezes desperdiçam tempo valioso em listagens online duplicadas, desatualizadas ou enganosas, especialmente porque quase 30% das casas de luxo nunca aparecem no mercado público. Os agentes do vendedor representam os interesses do vendedor, não do comprador. Mesmo solicitar informações sobre uma propriedade pode resultar num agente do vendedor registá-lo como seu “cliente” sem o seu consentimento.
Com a Baerz Property Finders & Advisors, evita completamente todas estas armadilhas. Trabalhamos exclusivamente em seu nome, oferecendo representação independente, orientação clara e acesso a todas as propriedades disponíveis, incluindo oportunidades fora do mercado que outros nunca chegam a ver.

Interessado num Consultor Pessoal de Propriedades?

Mostramos-lhe todas as casas disponíveis num só lugar. Sinta-se à vontade para nos contactar para saber como podemos atender às suas necessidades e proteger exclusivamente os seus interesses.

Características

Painéis solares
Ar condicionado
Transferência de propriedade
Preço pedido
€ 1.345.000 k.k.
Estado
beschikbaar
Aceitação
in overleg
Construção
Tipo de casa
Herenhuis
Tipo de edifício
halfvrijstaande woning
Período de construção
2002
Classificação energética
A
Tipo de telhado
plat dak
Quartos de dormir
9
Casas de banho
3
Áreas de superfície e volume
Área habitacional
382 m2
Outro espaço interior
0 m2
Espaço exterior anexado ao edifício
168 m2
Espaço de armazenamento externo
9 m2
Volume em metros cúbicos
1262 m3
Instalações
Airconditioning
Rookkanaal
Schuifpui
Frans balkon
Glasvezel kabel
Zonnepanelen
Aan park
In woonwijk
Vrij uitzicht
Baerz & Co Property Brochure

Brochura

Vídeos

Van Herk Makelaars Excellent

Oudehoofdplein 4
3011 TM Rotterdam

xbek@vanherk.nl
+31 102581855

www.vanherk.nl/excellent/

Pedido de informação / visualização

Xandra Bek profile image
Xandra Bek
Register makelaar - taxateur

Comprar um imóvel de luxo em Zoetermeer

Zoetermeer é uma comunidade moderna e receptiva para quem busca sofisticação, cultura vibrante e conexões eficientes. Moradores aproveitam serviços exclusivos, propriedades de luxo e uma perspectiva global em um ambiente sereno e dinâmico.