VOORHOUT
Jacoba Van Beierenweg 136 a - 2215 KX
Países Baixos

Rick Broekhof profile image
Rick Broekhof
Real estate agent
€1,175,000 k.k.
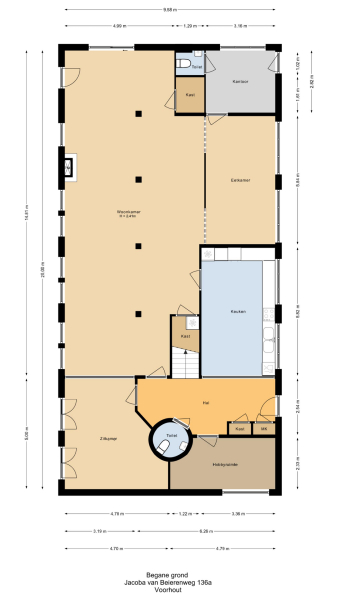
Área de Estar
422m2
Tamanho do Terreno
726m2
Quartos
5

Descrição

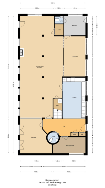
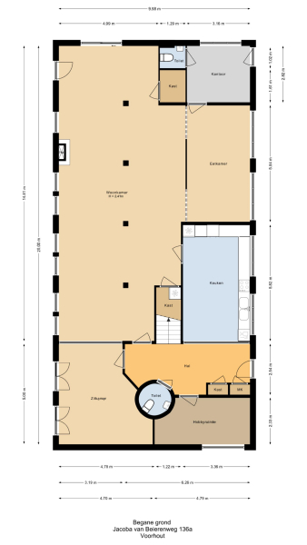
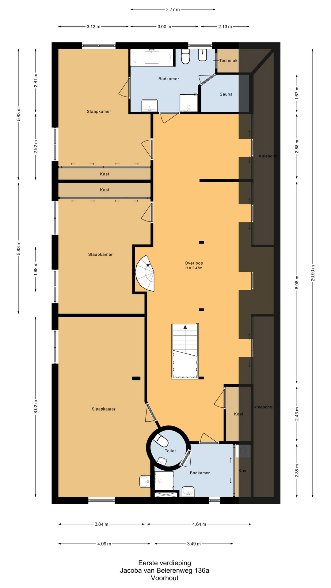
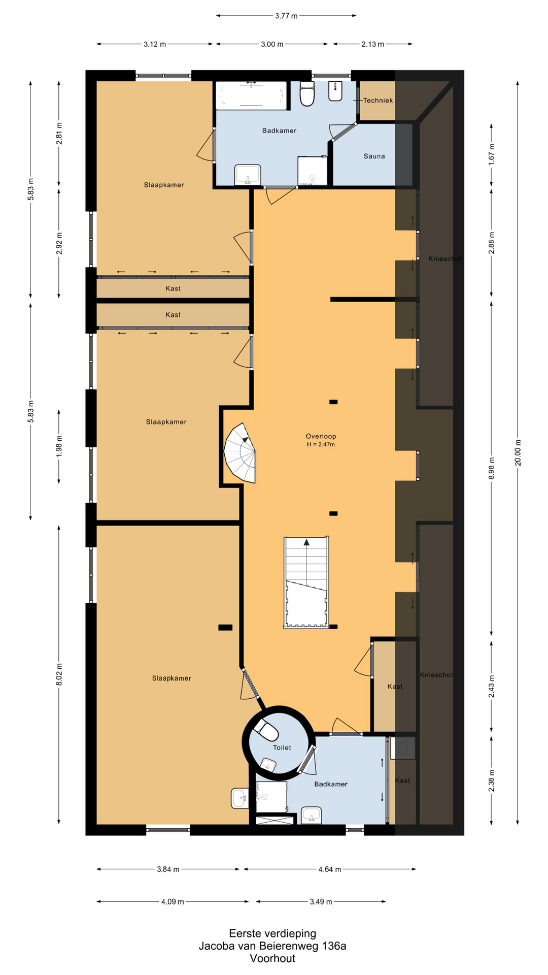
A Villa Voorhout traduz uma sensação de privacidade refinada em 422 m² de espaço habitacional, envolta por vistas desobstruídas e o cenário natural da região de Bollenstreek. Um amplo hall de entrada recebe você com linhas e superfícies tocadas pela luz suave proveniente das grandes janelas. Espaços de estar generosos, lareira e uma sala de jantar independente proporcionam um ritmo sutil de relaxamento e hospitalidade, enquanto o soalho em parquet e os autênticos azulejos de abadia ancoram os interiores em origens serenas. Cinco quartos, distribuídos por três pisos, oferecem flexibilidade — todos com luz natural abundante, alguns com vista para o jardim e ar condicionado. Duas casas de banho bem equipadas, sendo uma com sauna, complementam comodidades como quatro sanitários, amplo espaço de arrumação e conectividade de alto padrão, como fibra ótica. A cozinha abre-se tanto para o pátio como para os prados, integrando o quotidiano à paisagem exterior. Entradas distintas possibilitam dupla ocupação ou a integração harmoniosa entre trabalho e lar. O lote de 726 m² envolve a propriedade com jardins paisagísticos, churrasqueira em alvenaria e diversos recantos de privacidade. Um longo caminho de acesso e estacionamento privado conferem discrição e comodidade na chegada. A construção adapta-se facilmente, sendo adequada tanto para a vida familiar quanto para um negócio em casa. Aquecimento modernizado, ar condicionado desde abril de 2024 e predisposição para painéis solares realçam o compromisso com o conforto e o futuro. A partir desta villa, as comodidades da vila de Voorhout e a estação de comboios ficam facilmente acessíveis de bicicleta, garantindo ligação urbana sem comprometer a tranquilidade. Esta villa em Voorhout proporciona um raro equilíbrio entre privacidade, dimensão e acessibilidade, ideal para quem procura viver com essência e serenidade.

Explore Voorhout com a Baerz, o seu confiável consultor e pesquisador pessoal de imóveis

Negociações bem-sucedidas de imóveis premium em Voorhout dependem de inteligência de mercado, relacionamento sólido e técnicas sofisticadas de negociação. Consultores privados oferecem acesso a oportunidades fora do mercado, orientam sobre as regras locais e defendem interesses de forma sigilosa em todas as etapas. Seu olhar abrangente para patrimônios e projetos modernos viabiliza transações vantajosas e alinhadas ao perfil do cliente.

Evite erros comuns

Compradores internacionais frequentemente perdem tempo valioso navegando por anúncios duplicados, desatualizados ou enganosos, especialmente porque quase 30% das propriedades de luxo nunca chegam ao mercado.
Os agentes do vendedor representam os interesses do vendedor, não os seus, e simplesmente solicitar informações pode fazer com que agências o registrem como “cliente” sem o seu consentimento.
Com a Baerz Property Finders & Advisors, você evita completamente esses problemas.
Agimos exclusivamente em seu nome, oferecendo representação independente, orientação transparente e acesso a todas as propriedades disponíveis, incluindo oportunidades privadas e fora do mercado que outros nunca veem.

Curioso para saber como garantir o seu próprio Consultor Imobiliário Pessoal? Entre em contato para descobrir como podemos representar seus interesses e abrir todo o mercado para você.

Características

Ar condicionado
Transferência de propriedade
Preço Solicitado
€ 1.175.000 k.k.
Status
beschikbaar
Aceitação
in overleg
Construção
Tipo de casa
Villa
Tipo de edifício
vrijstaande woning
Período de construção
1975
Classificação energética
C
Tipo de telhado
zadeldak
Quartos
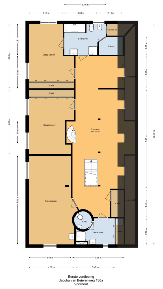
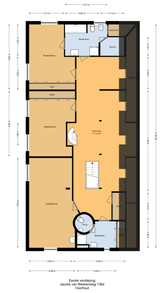
5
Banheiros
2
Áreas e Volume de Superfície
Área de Estar
422 m2
Outros espaços internos
0 m2
Espaço de armazenamento externo
7 m2
Volume em metros cúbicos
1387 m3
Tamanho do Terreno
726 m2
Instalações
Mechanische ventilatie
Tv kabel
Airconditioning
Rookkanaal
Sauna
Glasvezel kabel
Natuurlijke ventilatie
Vrij uitzicht
Beschutte ligging
Landelijk gelegen
Baerz & Co Property Brochure

Brochura

Vídeos

Plantas

Wilbrink & v.d. Vlugt Makelaars

Heereweg 231
2161 BG Lisse

info@wilbrinkvandervlugt.nl
+31 252 41 90 49

www.onsaanbod.nl

Informação / Pedido de visualização

Rick Broekhof profile image
Rick Broekhof
Real estate agent