'S-HERTOGENBOSCH
Kamperfoeliestraat 23 - 5213 HP
Niederlande

Eric Tiebosch profile image
Eric Tiebosch
Owner / Real Estate Agent
€2,350,000 k.k.
Wohnfläche
320m2
Grundstücksgröße
1336m2
Schlafzimmer
8

Beschreibung

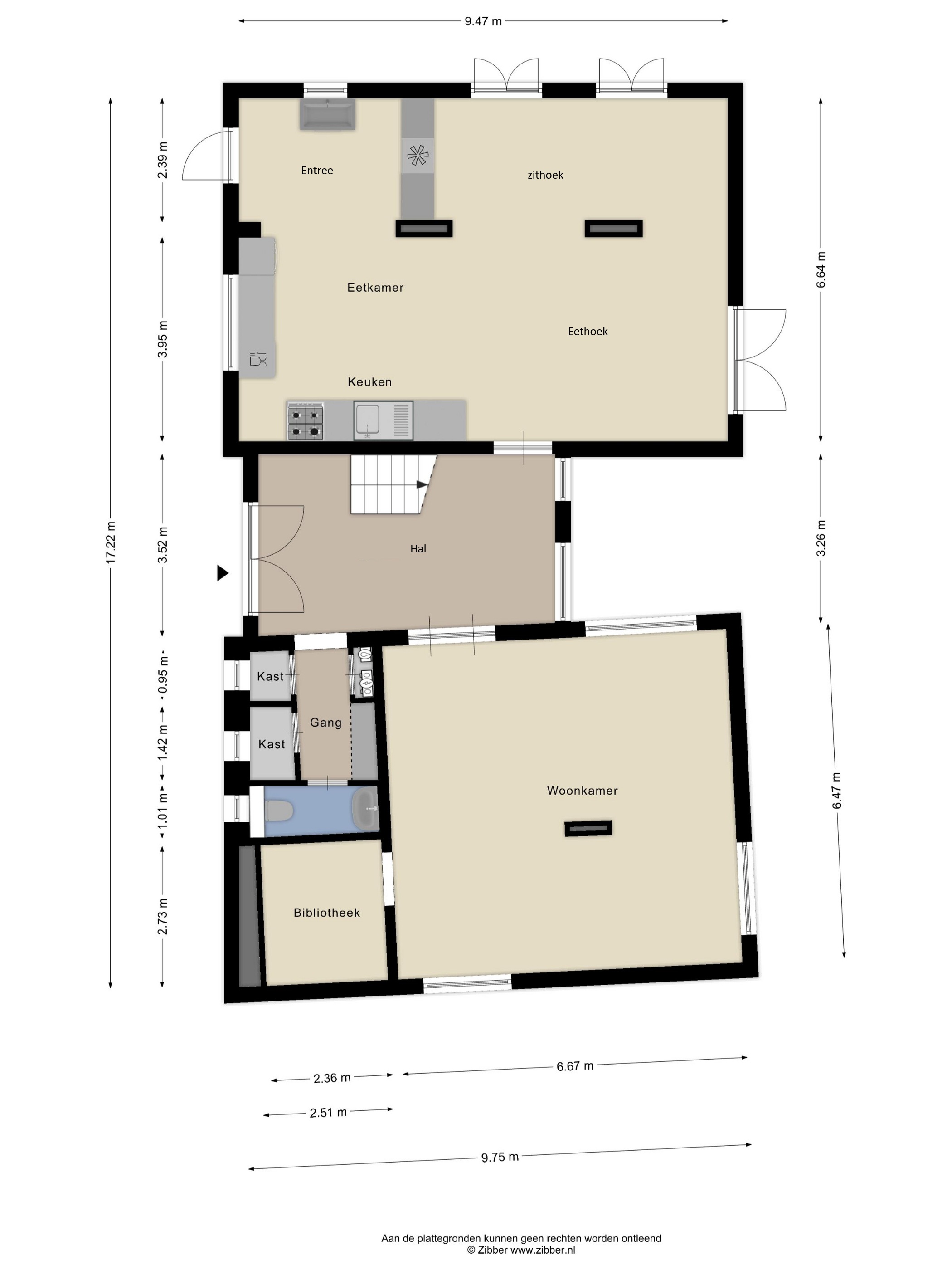
Die freistehende Villa S-Hertogenbosch verkörpert ein Großzügigkeitsgefühl, das im urbanen Leben nur selten zu finden ist. Diese Residenz mit 320 m² Wohnfläche, inspiriert von den ausgewogen proportionierten Formen der De Bossche School-Architektur, liegt dezent im Hinthamerpark auf einem 1.336 m² großen Grundstück. Harmonische Proportionen, natürliches Licht und ausgedehnte Ausblicke sind überall spürbar. Der Grundriss zeichnet sich durch eine durchdachte Abgrenzung zwischen dem vorderen und hinteren Bereich des Hauses aus, verbunden durch einen Flur und eine Treppe, die den Alltag strukturieren.

Acht Schlafzimmer und zwei Badezimmer bieten Komfort für große Familien oder Gäste, während die großzügigen Wohnbereiche fließend in den Garten übergehen. Mehrere Terrassen, ein Blumengarten beim Atelier und ein Spielplatz mit altem Baumbestand werten das Leben im Freien auf. Die Dämmung nach EU-Standards, mechanische und natürliche Lüftung sowie eine Zentralheizung sorgen für moderne Effizienz. Ergänzt wird das Grundstück durch eine Garage, die Sicherheit und Komfort bietet. Die architektonische Integrität und Ruhe dieser Villa machen sie zu einem außergewöhnlichen Angebot in S-Hertogenbosch.

Merkmale

Eigentumsübertragung
Angebotspreis
€ 2.350.000 k.k.
Status
beschikbaar
Annahme
in overleg
Bau
Art des Hauses
Villa
Gebäudetyp
vrijstaande woning
Bauzeitraum
1955
Dachtyp
dwarskap
Schlafzimmer
8
Badezimmer
2
Oberflächen und Volumen
Wohnfläche
320 m2
Anderer Innenbereich
18 m2
Externer Stauraum
39 m2
Volumen in Kubikmetern
1253 m3
Grundstücksgröße
1336 m2
Einrichtungen
Mechanische ventilatie
Natuurlijke ventilatie
Aan rustige weg
In woonwijk
Vrij uitzicht
Baerz & Co Property Brochure

Broschüre

Grundrisse

De Huyzerij Makelaardij

Kruisstraat 2
5211 DV 's-Hertogenbosch

info@dehuyzerij.nl
+31 736122225

www.dehuyzerij.nl

Information / Besichtigungsanfrage

Eric Tiebosch profile image
Eric Tiebosch
Owner / Real Estate Agent