'S-HERTOGENBOSCH
Kamperfoeliestraat 23 - 5213 HP
荷兰

Eric Tiebosch profile image
Eric Tiebosch
Owner / Real Estate Agent
€2,350,000 k.k.
居住面积
320m2
地块大小
1336m2
卧室
8

描述

Vrijstaande villa in het Hinthamerpark.

Deze woning is gebouwd in de architectuur van “De Bossche School”. Door deze architectuur, maar ook door de omvang van het pand en het perceel, laat het zich niet vergelijken met andere woningen in de wijk. De architectuur garandeert de bewoner ruimtes met de juiste verhoudingen en mooie doorkijken. Er is een voorhuis en een achterhuis welke verbonden zijn door een hal en trappenhuis. Niet alleen het aantal slaapkamer, maar ook de grote leefruimtes, zorgen ervoor dat je hier als gezin heel royaal en comfortabel leeft. De grote tuin rondom doet dit ook. Er zijn diverse terrassen, een speelveld met volwassen bomen en een bloementuin aan het atelier. Dít is het huis waarvan de buurt zich afvroeg wanneer het te koop zou komen. Nu is dus uw kans.

Download de brochure hier op Funda of vraag een bezichtiging aan. We zijn u graag van dienst.

特点

所有权转让
要价
€ 2.350.000 k.k.
状态
beschikbaar
接受
in overleg
建筑
房屋类型
Villa
建筑类型
vrijstaande woning
建造时期
1955
屋顶类型
dwarskap
卧室
8
浴室
2
表面积和体积
居住面积
320 m2
其他室内空间
18 m2
外部储存空间
39 m2
体积(立方米)
1253 m3
地块大小
1336 m2
设施
Mechanische ventilatie
Natuurlijke ventilatie
Aan rustige weg
In woonwijk
Vrij uitzicht
Baerz & Co Property Brochure

宣传册

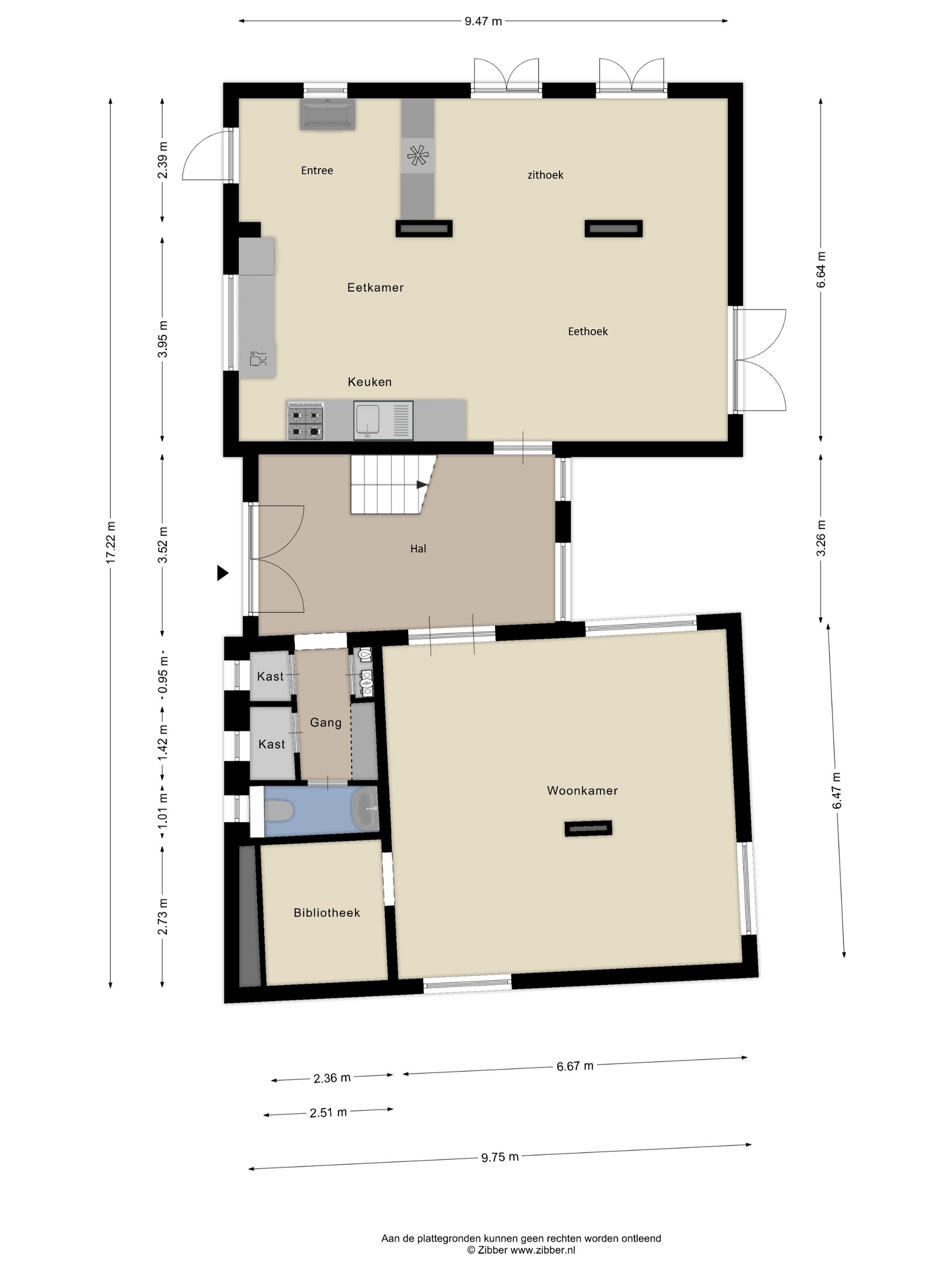
户型图

De Huyzerij Makelaardij

Kruisstraat 2
5211 DV 's-Hertogenbosch

eric@dehuyzerij.nl
+31 736122225

www.dehuyzerij.nl

信息/查看请求

Eric Tiebosch profile image
Eric Tiebosch
Owner / Real Estate Agent