LEIDEN
Dwars Koornbrugsteeg 8 - 2311 EL
Ολλανδία

Michiel de Jong RM profile image
Michiel de Jong RM
NVM Register Makelaar - Partner
€900,000 k.k.
Χώρος διαβίωσης
173m2
Μέγεθος οικοπέδου
204m2
Υπνοδωμάτια
4

Περιγραφή

Αυτό το μνημειακό σπίτι στο Leiden κατέχει μια εξαιρετική θέση στην ιστορική καρδιά της πόλης, με την πρόσοψή του να προσφέρει μαγευτική θέα στον Ρήνο. Το ακίνητο ενώνει δύο προσόψεις σπιτιών και μια ήσυχη πίσω κατοικία, που έχουν πλέον επαναδιαταχθεί αριστοτεχνικά σε μια ενιαία, πολύπλευρη και ευέλικτη οικία. Σε συνολική επιφάνεια 332 τ.μ., η κατοικία διαθέτει επτά υπνοδωμάτια, πέντε από τα οποία με ιδιωτικό μπάνιο, προσφέροντας ιδιωτικότητα και άνεση σε κάθε ένοικο και επισκέπτη. Άφθονο φυσικό φως διαχέεται σε κάθε ευρύχωρο δωμάτιο, ενώ τα ψηλά ταβάνια ενισχύουν την αίσθηση χώρου και ηρεμίας.

Τρεις ξεχωριστές ταράτσες, συμπεριλαμβανομένης μιας ευρύχωρης δίπλα στη κουζίνα και την τραπεζαρία, παρέχουν σπάνιους υπαίθριους χώρους για ζωή στην πόλη. Οι δύο κουζίνες της κατοικίας—η μία σχεδιασμένη ιδιαιτέρως για λάτρεις της γαστρονομίας—σας προσκαλούν να απολαύσετε την περίφημη αγορά του Leiden και τους ντόπιους προμηθευτές, που βρίσκονται μόλις λίγα βήματα από την είσοδο. Άφθονοι αποθηκευτικοί χώροι στην υπόγεια αποθήκη, το κελάρι και τη σοφίτα προσφέρουν ένα επίπεδο οργάνωσης και δυνατοτήτων που υπογραμμίζει την εκλεπτυσμένη διαβίωση.

Αρχιτεκτονικά σημαντικό, το ακίνητο είναι καταχωρημένο ως εθνικό μνημείο και βρίσκεται εντός προστατευόμενου αστικού τοπίου. Σύγχρονες παροχές όπως μηχανικός αερισμός, οπτική ίνα, τηλεόραση και μερική διπλή υάλωση αναδεικνύουν διακριτικά τα κλασικά χαρακτηριστικά του. Η πράξη διαίρεσης θα μετατρέψει την οικία σε ένα ενιαίο διαμέρισμα, ενώ διατίθεται ανεξάρτητος τεχνικός έλεγχος για τους ενδιαφερόμενους αγοραστές. Αυτό το σπίτι αποτελεί κάτι περισσότερο από κατοικία, αποτελεί μια δήλωση παρουσίας σε μία από τις πιο εμβληματικές συνοικίες του Leiden. Για όσους αναζητούν ένα πολυτελές σπίτι προς πώληση στο Leiden που συνδυάζει παράδοση και σύγχρονη ζωή, το ακίνητο αυτό προσφέρει μια μοναδική ευκαιρία.

Εξερευνήστε Leiden με την Baerz, τον Αξιόπιστο Προσωπικό σας Σύμβουλο Ακινήτων

Η πλοήγηση στην τοπική αγορά απαιτεί βάθος γνώσεων και κατανόηση των διαδικασιών, των κανονισμών και των διακριτικών off-market ακινήτων. Έμπειροι advisors διασφαλίζουν πρόσβαση σε εκλεκτά χαρτοφυλάκια, άρτια διαπραγμάτευση και ολοκληρωμένη υποστήριξη. Η ικανότητά τους να προβλέπουν τάσεις, να εντοπίζουν σπάνιες ευκαιρίες και να προστατεύουν τα συμφέροντα των πελατών προσφέρει στρατηγικό πλεονέκτημα και ηρεμία κατά τη διαδικασία απόκτησης.

Αποφύγετε τα κοινά λάθη

Οι διεθνείς αγοραστές συχνά σπαταλούν πολύτιμο χρόνο σε διπλές, παρωχημένες ή παραπλανητικές διαδικτυακές καταχωρίσεις, ειδικά αφού σχεδόν 30% των πολυτελών κατοικιών δεν εμφανίζονται ποτέ στη δημόσια αγορά. Οι μεσίτες πωλητών εκπροσωπούν τα συμφέροντα του πωλητή, όχι του αγοραστή. Ακόμη και η αίτηση πληροφοριών για ένα ακίνητο μπορεί να οδηγήσει σε έναν μεσίτη πωλητή να σας καταγράψει ως «πελάτη» τους χωρίς τη συγκατάθεσή σας.
Με τους Baerz Property Finders & Advisors, αποφεύγετε εντελώς όλες αυτές τις παγίδες. Εργαζόμαστε αποκλειστικά για λογαριασμό σας, προσφέροντας ανεξάρτητη εκπροσώπηση, σαφή καθοδήγηση και πρόσβαση σε όλα τα διαθέσιμα ακίνητα, συμπεριλαμβανομένων ευκαιριών εκτός αγοράς που άλλοι δεν βλέπουν ποτέ.

Ενδιαφέρεστε για έναν Προσωπικό Σύμβουλο Ακινήτων;

Σας δείχνουμε όλα τα διαθέσιμα σπίτια σε ένα μέρος. Μη διστάσετε να επικοινωνήσετε μαζί μας για να μάθετε πώς μπορούμε να καλύψουμε τις ανάγκες σας και να προστατεύσουμε τα συμφέροντά σας αποκλειστικά.

Χαρακτηριστικά

Μεταβίβαση ιδιοκτησίας
Τιμή ζήτησης
€ 900.000 k.k.
Κατάσταση
beschikbaar
Αποδοχή
in overleg
Κατασκευή
Είδος σπιτιού
Grachtenpand
Τύπος κτιρίου
tussenwoning
Περίοδος κατασκευής
1650
Τύπος στέγης
samengesteld dak
Υπνοδωμάτια
4
Μπάνια
3
Επιφάνειες και Όγκος
Χώρος διαβίωσης
173 m2
Άλλος εσωτερικός χώρος
35 m2
Εξωτερικός χώρος συνδεδεμένος με το κτίριο
12 m2
Όγκος σε κυβικά μέτρα
350 m3
Μέγεθος οικοπέδου
204 m2
Εγκαταστάσεις
Mechanische ventilatie
Tv kabel
Rookkanaal
Glasvezel kabel
Aan water
In centrum
In woonwijk
Vrij uitzicht
Baerz & Co Property Brochure

Μπροσούρα

Βίντεο

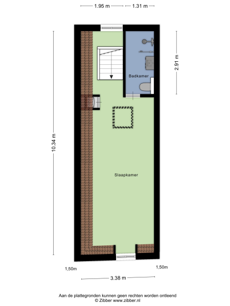
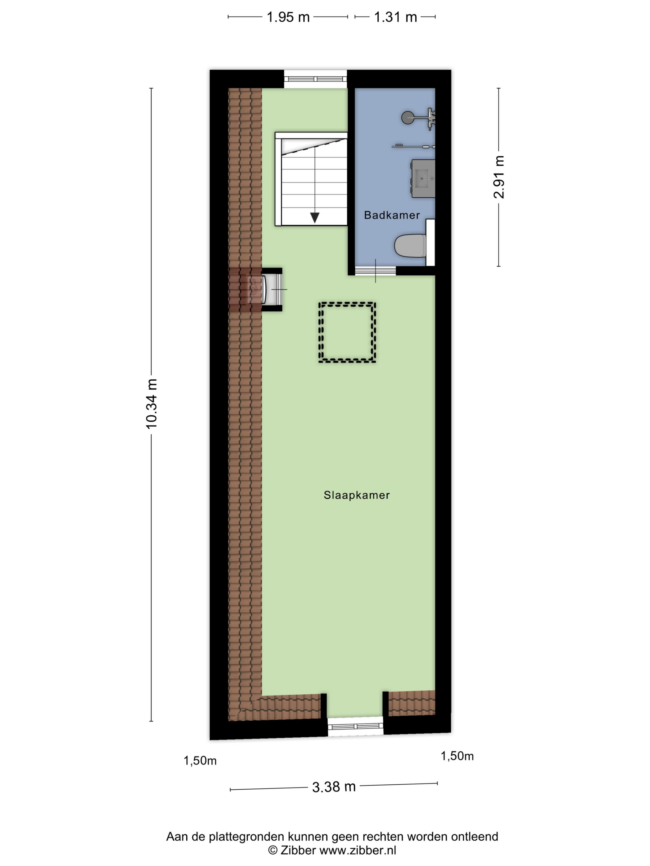
Κατόψεις

Graal Makelaardij

Rapenburg 4
2311 EV Leiden

info@graalmakelaardij.nl
+31 (0)71 51 61 000

www.graalmakelaardij.nl

Αίτηση πληροφοριών / προβολής

Michiel de Jong RM profile image
Michiel de Jong RM
NVM Register Makelaar - Partner

Αγορά πολυτελούς ακινήτου στο Leiden

Το Λάιντεν προσφέρει εξαιρετική πολιτιστική κληρονομιά, ζωντανή ακαδημαϊκή ζωή και επιλεγμένες υπηρεσίες, δημιουργώντας ιδανικό περιβάλλον για διεθνείς κατοίκους. Με εκλεπτυσμένες κατοικίες, πανεπιστημιακό κύρος και διακριτική πολυτέλεια, η πόλη αυτή προσφέρει έναν ιδιαίτερα ποιοτικό τρόπο ζωής για ένα απαιτητικό, διεθνές κοινό.