LEIDEN
Dwars Koornbrugsteeg 8 - 2311 EL
荷兰

Michiel de Jong RM profile image
Michiel de Jong RM
NVM Register Makelaar - Partner
€1,375,000 k.k.
生活区
332m2
地块大小
204m2
卧室
8

描述

A beautiful home in a prime location with a stunning view!

This beautiful monumental property is located in the heart of Leiden. Originally, the house consisted of two front houses overlooking the Rhine and a rear house with an alleyway entrance. The current owners have combined them into one, offering a wealth of possibilities. Not only in terms of living space, but also in terms of layout:

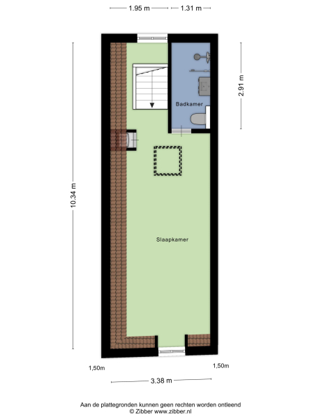
- There are no fewer than seven bedrooms, five of which each have their own bathroom. No queues for showers in the morning, and overnight guests can also enjoy their own time in the morning.

- Ample outdoor space, a rare commodity in the city center. In addition to the spacious roof terrace adjacent to the kitchen/diner, there are two more roof terraces.

- A paradise for food and cooking enthusiasts. Not only because of the very spacious kitchen/diner and the fully equipped second kitchen, but especially because of the location: a butcher, (French) baker, Asian grocery store, cheese shop, cooking shop, wine shops, and much more are within walking distance. And even more importantly: there's a market right outside on Wednesdays and Saturdays!

- (A great deal of) storage space. Not only is there a basement currently used as a workshop, but also a cellar. And then there's a very spacious attic. These add another dimension to the 332 m² of living space.

The house is large with spacious rooms, high ceilings, and plenty of natural light, yet it's laid out in such a way that every space feels homely. It takes a little getting used to, but that's precisely what makes the house so charming and more than worth discovering for yourself.
SPECIAL FEATURES

- National monument (subsidy options available!)
- Protected cityscape
- Ouderdomsclausule applies
- Independent technical inspection available
- The house will be converted into a single apartment by means of a Splitsingsakte

与 Baerz 一起探索 Leiden,您值得信赖的私人房产顾问和搜寻专家

莱顿市场需要准确理解本地传统、法律制度与私密房源。卓越顾问可带来独家房源、精湛谈判和全方位交易指导。他们预判趋势、发掘稀缺机会、全程保护客户利益,确保购置安全顺利。

特点

所有权转让
要价
€ 1.375.000 k.k.
状态
beschikbaar
接受
in overleg
建筑
房屋类型
Grachtenpand
建筑类型
tussenwoning
建筑时期
1650
屋顶类型
samengesteld dak
卧室
8
浴室
5
表面积和体积
生活区
332 m2
其他室内空间
49 m2
附属于建筑的外部空间
26 m2
体积(立方米)
1400 m3
地块大小
204 m2
设施
Mechanische ventilatie
Tv kabel
Rookkanaal
Glasvezel kabel
Aan water
In centrum
In woonwijk
Vrij uitzicht
Baerz & Co Property Brochure

宣传册

视频

户型图

Graal Makelaardij

Rapenburg 4
2311 EV Leiden

info@graalmakelaardij.nl
+31 (0)71 51 61 000

www.graalmakelaardij.nl

信息/查看请求

Michiel de Jong RM profile image
Michiel de Jong RM
NVM Register Makelaar - Partner