NISTELRODE
Wilhelminastraat 3 - 5388 EP
Netherlands

Bram Van der Wielen profile image
Bram Van der Wielen
Owner, MMCEPI register makelaar
€1,295,000 k.k.
Living Area
304m2
Plot Size
649m2
Bedrooms
4

Description

Exclusive and Luxurious Villa in Nistelrode

Located on Wilhelminastraat in Nistelrode, this recently built villa seamlessly combines luxury, space, and sustainability. This high-quality residence features distinctive architecture, an exceptional level of finish, and state-of-the-art energy-efficient installations. The property is situated in a quiet and desirable residential area of Nistelrode, with local amenities, natural surroundings, and major access roads in close proximity.

The home is fully prepared for comfortable and energy-efficient living and boasts an impressive energy rating of A+++. It is equipped with, among other features, a geothermal heat pump, solar panels, a heat recovery ventilation system (HRV), and superior insulation. These elements ensure low energy costs while providing optimal living comfort.

Key Features

- Impressive and spacious villa with refined appeal
- Meticulously finished with exceptional attention to detail
- Luxurious, expansive gourmet kitchen
- Stunning living room that can be closed off from the kitchen
- Energy rating A+++ featuring geothermal heat pump, solar panels, and HR++ glazing
- Four generously sized bedrooms, including a primary suite with walk-in closet
- Architecturally designed garden with jacuzzi and covered outdoor kitchen
- Fully insulated guesthouse with bar and restroom

Layout

The generous living spaces are finished to the highest standards, with a strong focus on detail and quality. The impressive gourmet kitchen forms the heart of the home and is fitted with premium materials and high-end built-in appliances. Featuring both a cooking and prep island, the kitchen offers an exceptional environment for culinary enjoyment.

Adjacent to the kitchen is the spacious and inviting living room, characterized by abundant natural light. The ground floor further includes a home office, a separate laundry room, and a seamless connection to the garden. Throughout the main level, underfloor heating is installed beneath an extremely durable, scratch-resistant seamless floor finish. The interior is enhanced by sleek wall and ceiling finishes and interior doors with magnetic closures, contributing to a clean and modern aesthetic.

The residence offers four comfortable and generously proportioned bedrooms, all finished to a high standard. The primary bedroom features a spacious walk-in closet. The luxurious bathroom is equipped with a soaking tub, walk-in shower, vanity with custom cabinetry, and a laundry chute. The expansive second floor provides excellent potential for the creation of up to two additional bedrooms if desired.

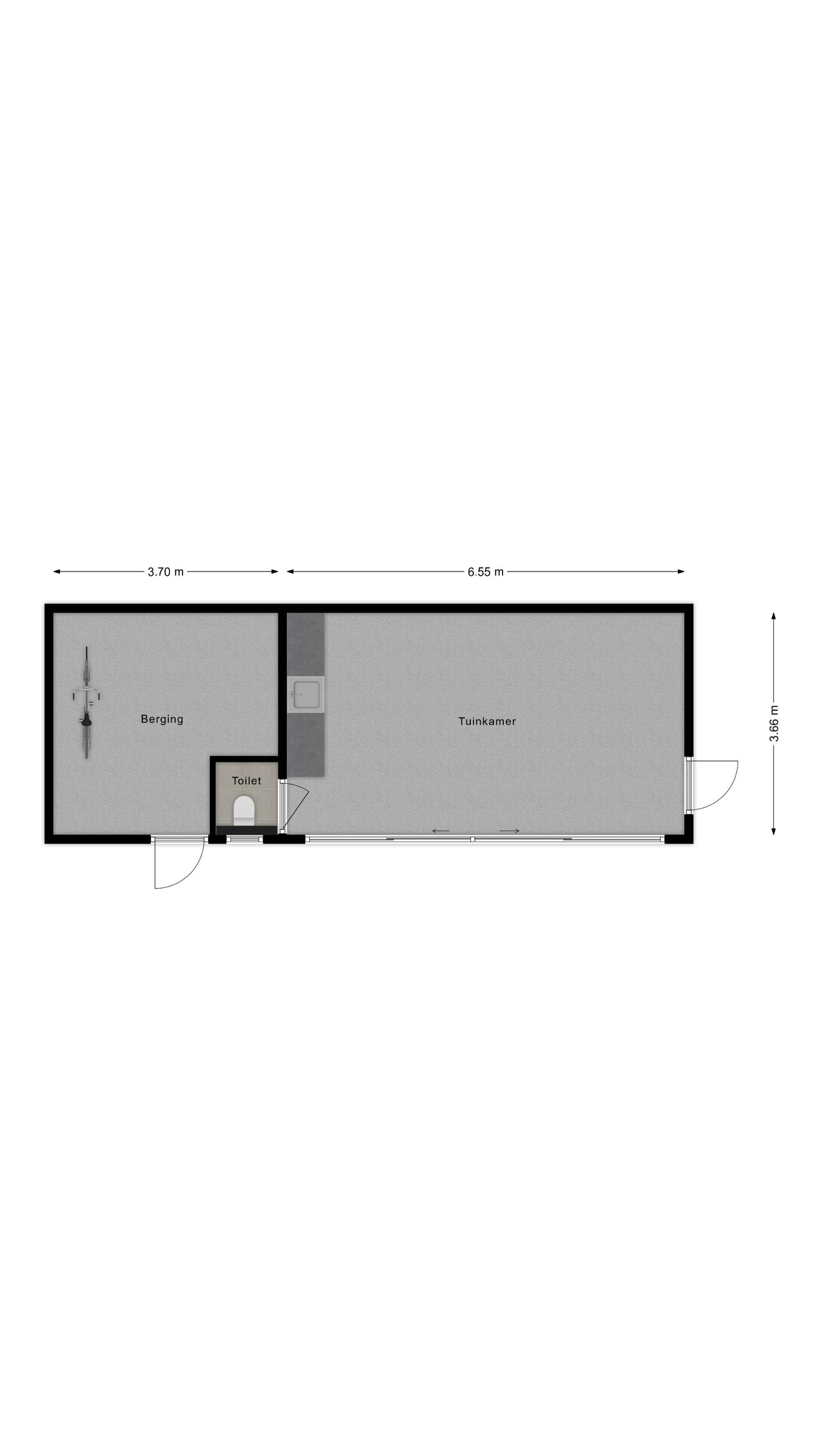
Guesthouse

Situated in the garden is a fully insulated guesthouse, complete with a bar and restroom. This versatile space is ideal for use as guest accommodations, a home office, or a recreational area.

Garden

The garden has been professionally designed by an architect and offers a high degree of privacy. It includes a jacuzzi and a covered outdoor kitchen, allowing residents to fully enjoy outdoor living throughout the seasons.

Location

A truly unique villa for those seeking space, comfort, and luxury within a sustainable and future-oriented living environment.

Features

Solar panels
Alarm system
Transfer of ownership
Asking Price
€ 1.295.000 k.k.
Status
beschikbaar
Acceptance
in overleg
Construction
Kind of house
Villa
Building type
vrijstaande woning
Construction period
2019
Energy rating
A+++
Roof type
zadeldak
Bedrooms
4
Bathrooms
1
Surface Areas And Volume
Living Area
304 m2
Other indoor space
0 m2
External storage space
38 m2
Volume in cubic meters
1076 m3
Plot Size
649 m2
Facilities
Alarminstallatie
Buitenzonwering
Jacuzzi
Glasvezel kabel
Zonnepanelen
Aan rustige weg
In woonwijk
Baerz & Co Property Brochure

Brochure

Videos

Floor Plans

Kordaat Makelaars

Liessentstraat 9 a
5405 AH Uden

bram@kordaatmakelaars.nl
+31 623454361

www.kordaatmakelaars.nl

Information / Viewing request

Bram Van der Wielen profile image
Bram Van der Wielen
Owner, MMCEPI register makelaar

Buying a Luxury Property in Nistelrode

Nistelrode offers discerning residents a harmonious blend of luxury living, privacy, and community. With exceptional service, vibrant local culture, and international connectivity, the village quietly attracts those seeking distinction and lasting value.