Single Family House for sale in Rhenen

Rhenen Utrechtsestraatweg 31 - 3911 TR The Netherlands


Wistik Zonnenberg profile image
Wistik Zonnenberg
Real Estate Agent
+31 318 559600
info@zonnenbergmakelaardij.nl

Zonnenberg Makelaardij
Kerkewijk 108
3904 JG Veenendaal
NETHERLANDS
+31 318 559600
www.zonnenbergmakelaardij.nl
info@zonnenbergmakelaardij.nl

Living area
128m2
Plot size
815m2
Bedrooms
4

Description

Energielabel volgt nog

Schitterend gelegen aan de rand van het karakteristieke centrum van Rhenen en uitkijkend over het natuurgebied Palmerswaard en de Nederrijn. Dit is een van de mooiste plekjes van de Utrechtse heuvelrug. Op deze unieke locatie heeft u nu de kans om al uw woonwensen te verwezenlijken. Op deze droomlocatie staat deze authentieke jaren 30 vrijstaande woning met eigen oprit, carport en riant perceel te koop.

Een sfeervolle vrijstaande woning met veel ruimte en potentie staat aan de Utrechtsestraatweg 31 in Rhenen. Hier komen ruimte en karakter op een prachtige manier samen. Met een lichte woonkamer en open keuken, een praktische bijkeuken en een slaap- en badkamer op de begane grond biedt deze woning alles voor comfortabel en veelzijdig wonen. De verdiepingen voegen hier 3 slaapkamers, een tweede badkamer en een ruime zolderruimte aan toe. In totaal beschikt de woning over een woonoppervlakte van ca. 127 m2 die gemakkelijk is uit te breiden middels een aan- en eventueel een opbouw. De ruime en zonnige tuin met schitterend vergezicht over de groene omgeving en de Nederrijn maken het plaatje compleet. Daarbij zorgen de aanwezige zonnepanelen voor extra duurzaamheid. Dit is een huis dat direct prettig aanvoelt en waar u tegelijkertijd nog uw eigen ideeën in kwijt kunt – een zeldzame kans op een fantastische plek.

Een bijzondere locatie aan de rand van Rhenen maakt dit tot een fijne woonomgeving. Op korte afstand vindt u basisscholen, middelbare scholen en sportverenigingen, terwijl ook supermarkten en winkels goed bereikbaar zijn. De ligging vlakbij openbaar vervoer en uitvalswegen zorgt ervoor dat u binnen korte tijd andere delen van de stad en omliggende plaatsen bereikt. Natuur en recreatie zijn in de directe omgeving volop aanwezig, wat deze omgeving niet alleen praktisch, maar ook zeer aantrekkelijk maakt.

Entree:
Een oprit die ruimte biedt voor meerdere auto’s en een verzorgd aangelegde voortuin geven direct een uitnodigende indruk. Via de entree komt u in de hal, waar u toegang vindt tot de toiletruimte, de trap naar de eerste verdieping, de kelder en de woonkamer. Hier is bovendien voldoende plek voor een kapstok of opbergmeubel.

Woonkamer:
De woonkamer vormt het hart van het huis en ademt een warme sfeer dankzij de combinatie van grote raampartijen, een sfeervolle haard en karaktervolle houten draagbalken. De open indeling geeft volop mogelijkheden voor het inrichten van een zithoek en eetgedeelte, terwijl de schuifdeur naar de tuin zorgt voor een directe verbinding met buiten. Dankzij de airco is het hier in elk seizoen prettig verblijven.

Keuken:
De open keuken grenst direct aan de woonkamer en beschikt over een L-vormig aanrechtblad met een kookplaat, afzuigkap, vaatwasser en spoelbak. Ook zijn er een ovencombinatie, een koelkast en voldoende opbergruimte aanwezig. Hoewel de keuken functioneel en ruim is, kan deze naar wens gemoderniseerd worden om aan te sluiten bij persoonlijke smaak.

Bijkeuken:
Een bijkeuken grenst aan de keuken en biedt praktische opbergruimte voor voorraad of huishoudelijke spullen – een fijne toevoeging voor dagelijks gemak.

Badkamer:
Uniek op de begane grond is de aanwezigheid van een badkamer, wat gelijkvloers wonen mogelijk maakt. Deze ruimte is geheel betegeld en voorzien van een douche met glazen wand, toilet, wastafel en opbergmeubel, wat zorgt voor extra comfort en gebruiksgemak.

Extra kamer:
Een extra kamer, grenzend aan de badkamer, geeft de woning nog meer flexibiliteit. Of u hier nu een werkruimte, leeskamer of slaapkamer van maakt: dankzij het uitzicht en de directe toegang tot de tuin, gecombineerd met de aanwezige airco, is dit een veelzijdige en prettige plek.

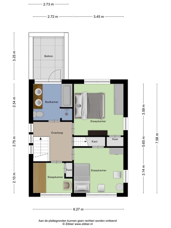
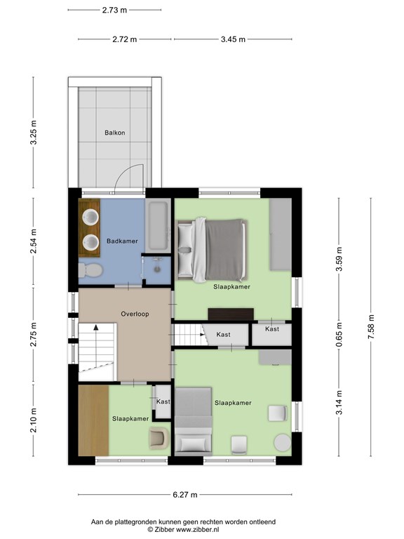
1e verdieping:
Een vaste trap leidt naar de eerste verdieping, waar drie slaapkamers en een tweede badkamer te vinden zijn. De indeling maakt dit een fijne verdieping voor gezinnen of voor wie ruimte zoekt om wonen en werken te combineren.

Slaapkamers:
De slaapkamers op deze verdieping zijn praktisch van formaat en beschikken over ingebouwde kastruimte. Daarmee zijn ze goed geschikt als slaap-, werk- of hobbykamer. De ruimtes zijn netjes onderhouden, maar kunnen desgewenst gemoderniseerd worden.

Sanitair:
Een badkamer op de eerste verdieping is ruim opgezet en voorzien van een douche, ligbad, toilet en dubbele wastafel met opbergmeubel. Vanuit deze ruimte is er bovendien toegang tot het dakterras – een uniek extraatje voor wie wil genieten van buitenlucht en privacy.

2e verdieping:
Een vaste trap brengt u naar de tweede verdieping, waar zich een ruime zolder bevindt in de punt van het dak. Hier is de cv-ketel gesitueerd en is er volop ruimte voor opslag of het realiseren van een extra kamer.

Kelderruimtes:
Twee kelderruimtes zorgen voor praktische extra opbergruimte. Ze zijn ideaal voor provisie, seizoensspullen of hobby’s die wat extra plek vragen. Een van de twee ruimtes is via de achtertuin te bereiken en wordt gebruikt als berging.

Buitenruimte:
Een achtertuin met zonnige ligging en een schitterend vergezicht over natuur en water vormt het hoogtepunt van deze woning. Met een bestraat terras is er alle ruimte voor een lounge set of buitentafel, terwijl het groene karakter van de tuin rust en privacy biedt.

Algemene gegevens
- Type woning: Vrijstaand
- Bouwjaar: 1932
- Verbouwjaar:
- Aantal kamers: 5
- Aantal slaapkamers: 4
- Aantal badkamers: 2
- Parkeerruimte: 4 op eigen oprit
- Aanwezig: berging/carport
- Ligging tuin: zuidwest
- Tuin bereik: voor/achter/opzij en via de woning

Technische gegevens
- Warmwatervoorziening: Bosch HRVW65 70L boiler (2012)
- Verwarmvoorziening: Bosch 30 HRC (2012)
- Zonnepanelen: 21 stuks
- gashaard
- Voorzieningen: airco/buitenzonwering/kelder/
- Mechanische ventilatie: nee
- Dubbel glas: geheel
- Glasvezel kabel, TV kabel
- Kozijnen: hout/kunststof

WILT U EVEN BINNEN KIJKEN?

Voor meer informatie omtrent deze woning, kunt u contact opnemen met ons kantoor in Rhenen.

U bent van harte welkom! De beste indruk van deze woning krijgt u natuurlijk tijdens een bezichtiging. Wij proberen onze bezichtigingen altijd in samenspraak met verkoper en koper te plannen en nemen ruim de tijd, zodat u op uw gemak de woning kan bekijken en ervaren.
N.B. Aan de samenstelling van deze gegevens is maximale zorg besteed. Aan onvolkomenheden in de vermelde gegevens en tekeningen kunnen geen rechten en aanspraken worden ontleend.

Features

Transfer of ownership
price
€ 1.350.000 k.k.
Status
Available
Acceptance
In Concert
Reference
08052
Construction
Kind of house
Single Family House
Building type
Detached House
Construction period
1932
Energy rating
F
Roof type
pyramid hip
Bedrooms
4
Bathrooms
2
Surface Areas And Volume
Living area
128 m2
Other indoor space
34 m2
Exterior space attached to the building
24 m2
Volume in cubic meters
598 m3
Plot size
815 m2
facilities
Airco
Balcony
Garden
Internetconnection
Outdoorawnings
Phoneline
Rollerblinds
Skylight
Slidingdoors
Storageroom
Baerz & Co Property Brochure

Brochure

Information / Viewing request

Photos

Floor Plans