ROERMOND
Tintelberg 3 - 6041 PT
Netherlands

Price on application
Living Area
248m2
Plot Size
1105m2
Bedrooms
3

Description

Tintelberg 3 – Roermond
Exclusive living in one of Roermond’s most desirable locations

Situated in one of the most sought-after and tranquil areas of Roermond, this exceptionally beautiful, modernized split-level villa offers a unique combination of luxury, comfort, and architectural playfulness. Since 2021, the property has been carefully renovated and made more sustainable with great attention to detail and quality, resulting in a move-in-ready home with a high-end finish and energy label A.

Living with character and light
Upon entering, you are welcomed into a bright and stylish entrance hall featuring a wardrobe area and a modern guest toilet. The living room forms the heart of the home and is characterized by its playful layout with a mezzanine, a beautiful walkway, and an inviting fireplace feature. Large windows and a sliding door provide an abundance of natural light and a direct connection to the garden. The architectural room divider adds both character and functionality to the space.

Luxury kitchen and optimal living comfort
The spacious kitchen-diner is a true eye-catcher and fully equipped with all modern conveniences. The cooking island and sleek wall of built-in appliances not only provide comfort but also create a contemporary look. Thanks to the large sliding doors, the garden is easily accessible, allowing indoor and outdoor living to blend seamlessly.

High-quality sanitary facilities
The bathrooms were completely renovated in 2021 and designed in a luxurious, contemporary style. The main bathroom features electric underfloor heating, built-in taps, and a generous walk-in shower with a sunshower – the perfect place to relax. In addition, there is a second bathroom with a walk-in shower and washbasin, also finished to a high standard.

Bedrooms with a playful layout
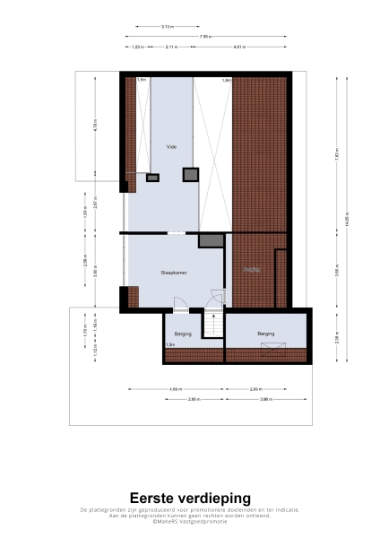
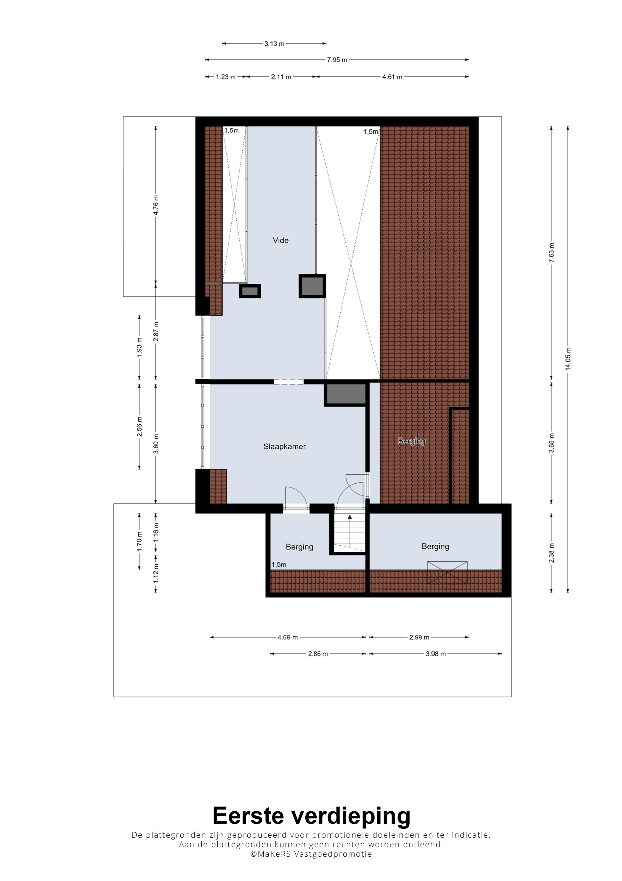
The property offers several comfortable bedrooms. The master bedroom includes an en-suite bathroom, providing privacy and luxury. A second bedroom with access to a storage loft creates a playful and spacious feel. Additionally, there is a bedroom with a dormer window and access to the walkway, ideal as a workspace overlooking the living area.

Multifunctional spaces
This villa offers ample possibilities for working, relaxing, and hobbies. The gym/hobby room is accessible via both the driveway and a side path. The spacious utility room provides additional practical space. In the basement, there is a multifunctional area of no less than 44 m², currently used as an office, but also perfectly suited as a home cinema, game room, or additional living space. The utility room and storage area were recently renovated (2025).

Outdoor living in complete privacy
The beautifully landscaped garden is fully enclosed and offers optimal privacy. Here, you can enjoy outdoor living in peace, surrounded by greenery and space.

Sustainable and future-proof
This home is not only stylish but also fully prepared for the future:

Heating via a new hot air system (with cooling option) and a heat pump (2021) connected to underfloor heating
(living room, dining room, kitchen, hallway, and toilet)
41 solar panels (2023)
Upgraded meter cupboard and electrical system with intelligent lighting modules for various lighting scenes
SKG 3-star certified locks for optimal security
Exterior woodwork painted in 2022

Tintelberg 3 is a unique villa where architecture, luxury, and sustainability come together. A home for those seeking space, comfort, and a high-quality finish in a prime location.

A viewing is highly recommended to fully experience the atmosphere and quality of this exceptional property.

Features

Transfer of ownership
Price on application
Reference
RD24175
Construction
Kind of house
Villa
Construction period
1978
Energy rating
A
Bedrooms
3
Bathrooms
2
Surface Areas And Volume
Living Area
248 m2
Other indoor space
67 m2
Exterior space attached to the buildinge
22 m2
External storage space
0 m2
Volume in cubic meters
1180 m3
Plot Size
1105 m2
Baerz & Co Property Brochure

Brochure

Floor Plans

Jack Frenken Makelaars & adviseurs

Graaf Reinaldstraat 1
6041 XB Roermond

p.donkers@jackfrenken.nl
+31 475335225

www.jackfrenken.nl/

Information / Viewing request

Peet Donkers profile image
Peet Donkers
Directeur

Buying a Luxury Property in Roermond

Roermond balances cultural refinement, international connectivity, and exceptional property services. Its vibrant community and lakeside lifestyle attract global residents, ensuring enduring appeal and opportunities for discerning property stakeholders.