AMSTERDAM
Singel 104 A - 1015 AD
Netherlands

Sander Bovenkerk profile image
Sander Bovenkerk
Real estate agent
€3,250,000 k.k.
Living Area
521m2
Plot Size
111m2
Bedrooms
7

Description

Singel 104, 1015 AD AMSTERDAM

Unique Canal House (approx. 521 m²) with Historic Charm and Endless Possibilities on the Singel! This monumental property seamlessly combines the grandeur of the Golden Age with modern flexibility. Featuring multiple floors, high ceilings, spacious rooms, and a rooftop terrace, it offers countless possibilities. The property is ideal for transformation into a luxurious family home or a combination of living and working spaces. Situated on freehold land, right in the heart of Amsterdam, it provides all amenities and excellent accessibility within easy reach. A unique opportunity to create your dream home or business location entirely to your taste!

Accessibility
This canal house is situated in a prime location in the heart of Amsterdam, between the Herengracht and the Singel. All amenities are within immediate reach, including supermarkets, boutiques, and specialty shops on Haarlemmerstraat and Haarlemmerdijk. The area also boasts a wide selection of excellent restaurants, coffee bars, and terraces. For sports and recreation, the nearby Westerpark offers plenty of options. Accessibility is exceptional: Amsterdam Central Station, with its metro, tram, train, ferry, and bus connections in all directions, is just a five-minute walk away. The A10 ring road is easily accessible via Haarlemmerweg.

History
The Singel is one of Amsterdam's oldest canals and originally served as a defensive moat around the city during the Middle Ages. In the Golden Age, it became a prestigious location where wealthy merchants built majestic canal houses that still exude historical charm. Today, the Singel offers a unique blend of history, a vibrant atmosphere, and central living in the heart of the city.

Layout
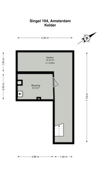
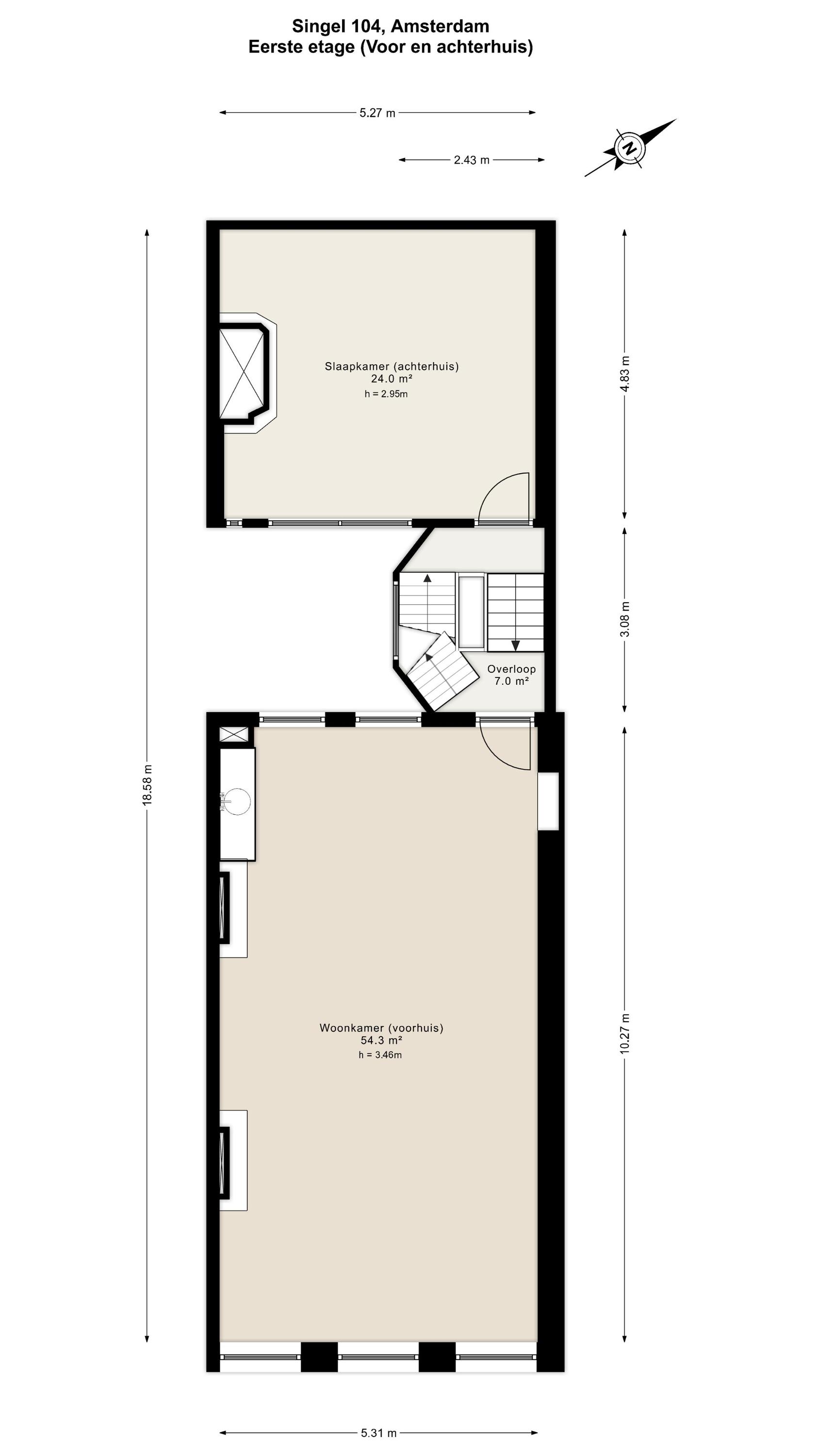
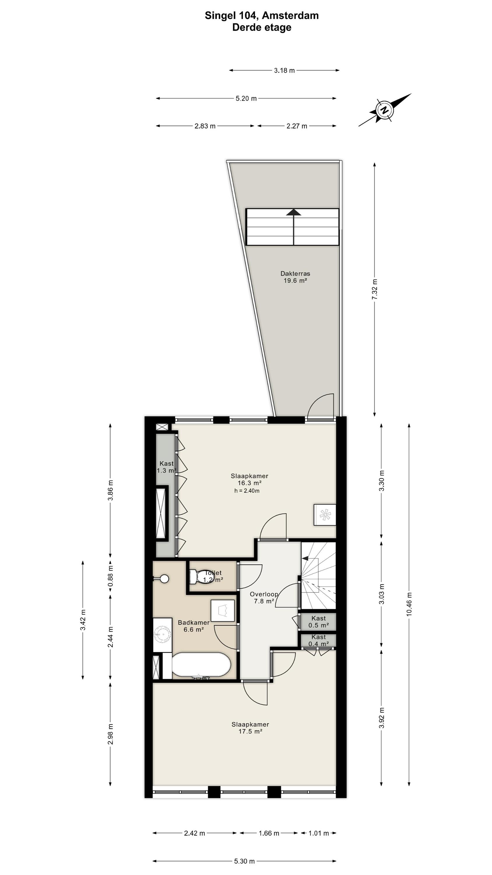
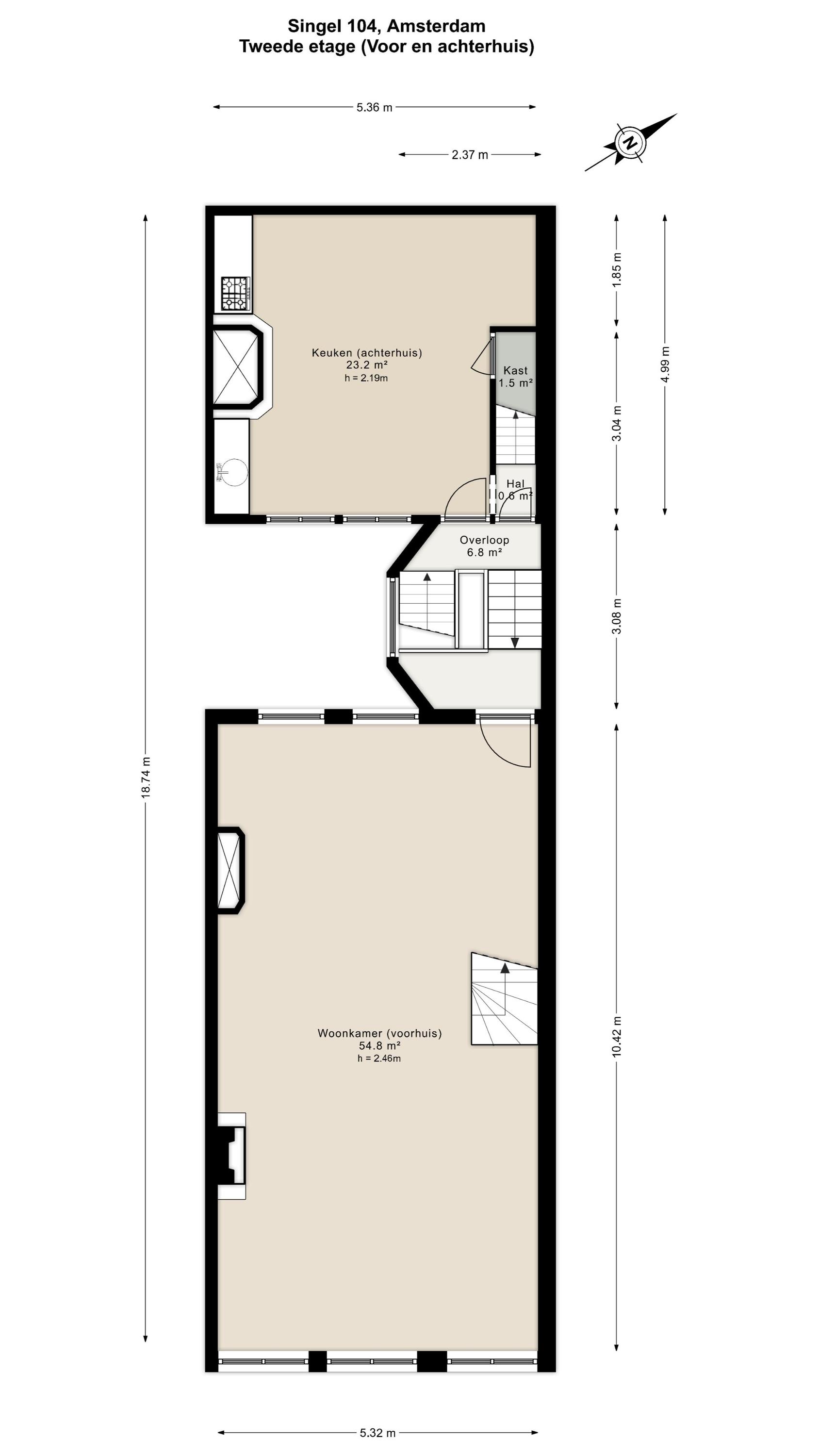
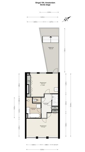
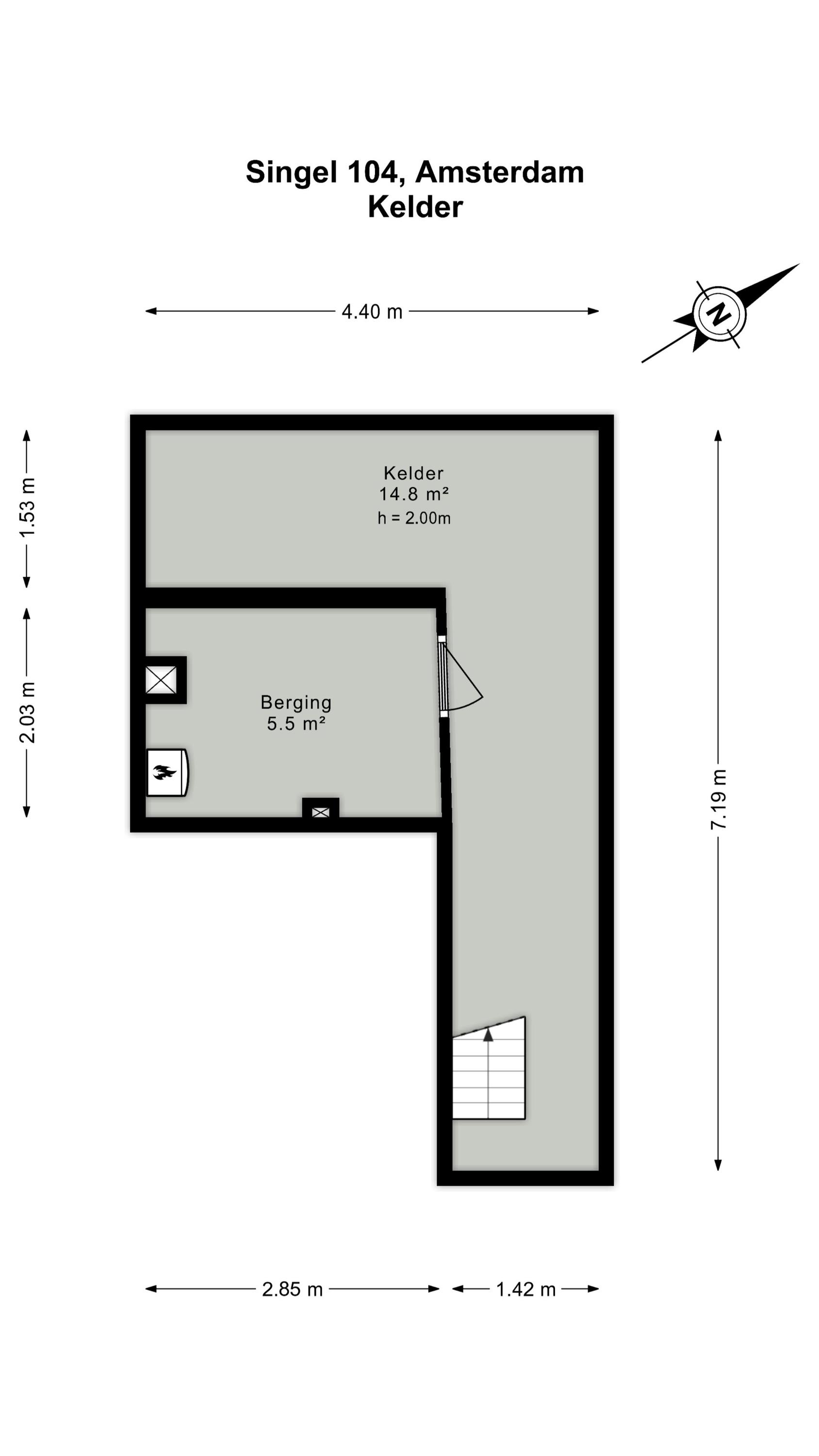
This unique canal house on the Singel offers a total living space of approximately 521 m² and features eight floors with flexible possibilities. The basement, ground floor, and first floor have been used as office spaces, while the second, third, attic, and rear house serve as residential areas. The generous rooms with high ceilings and large windows allow for ample natural light, creating an inviting atmosphere. With stunning views of the Singel and the historical charm of the canals, this property presents a unique opportunity to create a dream home or business location entirely to your taste. It is the perfect blend of history, space, and flexibility in the heart of Amsterdam.

Details
- Usable area of 521 m² (NEN2580 report available)
- BAG: 104 A - Office
- BAG: 104 B - Residential
- Unique canal house
- Fully customizable to your preferences
- Suitable for both residential and commercial use
- Monumental property
- Located on freehold land, NO ground lease
- Delivery in consultation, quick transfer possible

This information has been compiled by us with the utmost care. However, no liability is accepted for any incompleteness, inaccuracies, or otherwise, nor for the consequences thereof. All stated measurements and surfaces are indicative. The buyer has a duty to conduct their own investigation into all matters that are important to them. With regard to this property, the real estate agent acts as an advisor to the seller. We strongly recommend that you engage a professional (NVM) real estate agent to guide you through the purchase process. If you have specific wishes concerning the property, we advise you to communicate them to your purchasing agent in a timely manner and to conduct (or have conducted) independent research. If you do not engage a professional representative, you declare yourself, according to the law, sufficiently expert to oversee all matters of importance. The NVM terms and conditions apply.

Features

Solar panels
Transfer of ownership
Asking Price
€ 3.250.000 k.k.
Status
verkocht onder voorbehoud
Acceptance
in overleg
Construction
Kind of house
Grachtenpand
Building type
tussenwoning
Construction period
1740
Roof type
zadeldak
Bedrooms
7
Bathrooms
2
Surface Areas And Volume
Living Area
521 m2
Other indoor space
0 m2
Exterior space attached to the buildinge
20 m2
Volume in cubic meters
1889 m3
Plot Size
111 m2
Facilities
Zonnepanelen
Natuurlijke ventilatie
Aan water
In centrum
Baerz & Co Property Brochure

Brochure

Videos

Heeren Makelaars

Stadionweg 75
1077 SE Amsterdam

info@heerenmakelaars.nl
+31 204702255

www.heerenmakelaars.nl

Information / Viewing request

Sander Bovenkerk profile image
Sander Bovenkerk
Real estate agent

Buying a Luxury Property in Amsterdam

Amsterdam offers a cosmopolitan lifestyle defined by heritage, connectivity, and discreet luxury. Residents benefit from a robust international community, curated services, and vibrant culture. The city’s enduring appeal lies in its blend of history, sophistication, and progressive spirit.