ROTTERDAM
Plasoord 13 - 3054 LJ
Países Bajos

Joris van Oosten profile image
Joris van Oosten
Real estate agent
€1,250,000 k.k.
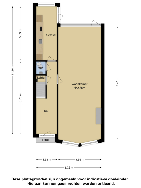
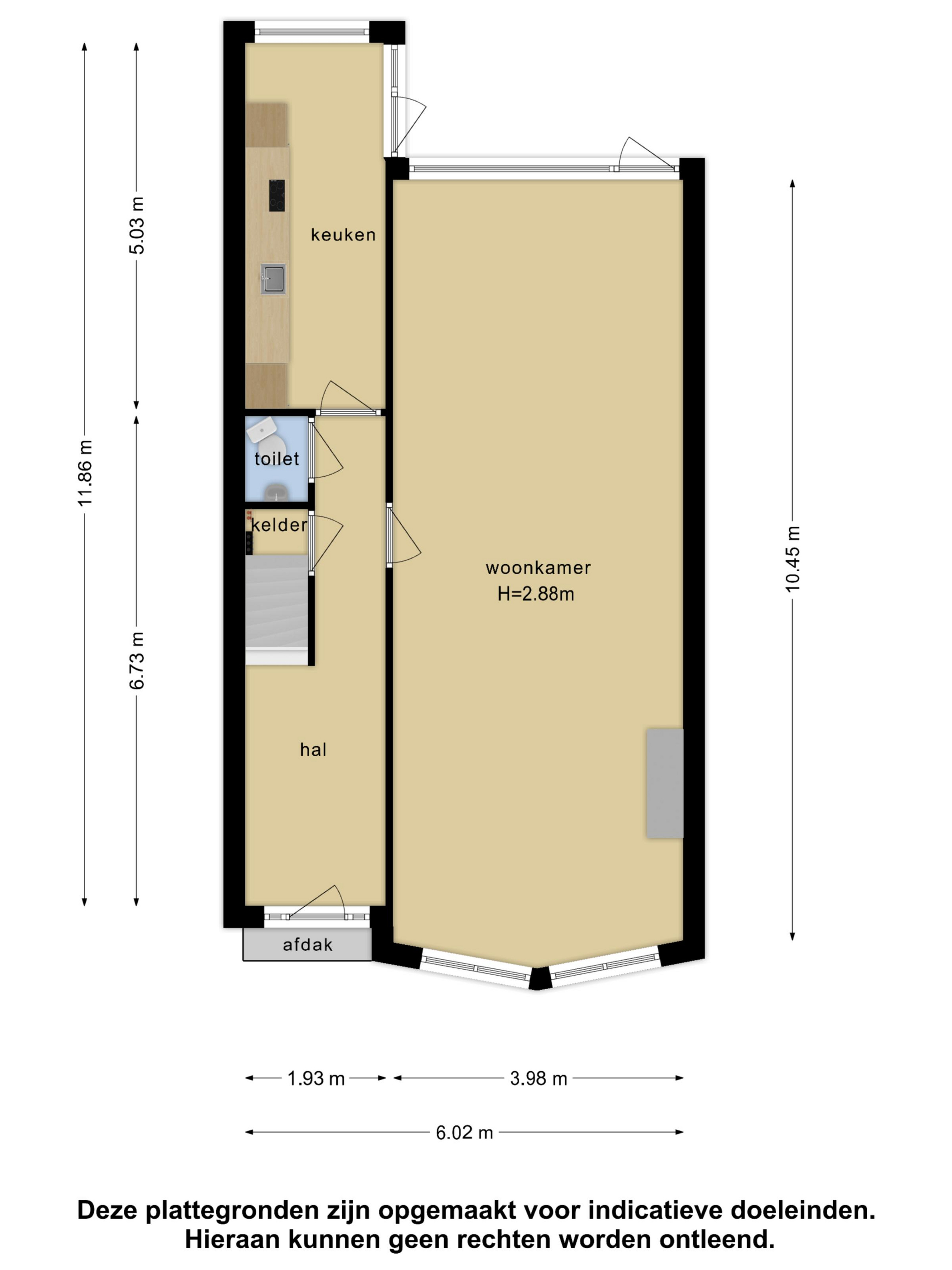
Área de estar
119m2
Tamaño del terreno
226m2
Dormitorios
4

Descripción

Esta casa familiar en Róterdam aúna la herencia arquitectónica con el privilegio poco común de acceso directo al agua, situada en una parcela privada de 226 m². Construida en 1927, mantiene su integridad original y ofrece aproximadamente 119 m² de superficie habitable según medición NEN-2580. Las líneas clásicas de la propiedad han sido actualizadas, incluyendo acristalamiento doble parcial y una caldera mixta de calefacción central instalada en 2021.

Cuatro dormitorios y un baño permiten una distribución equilibrada para el descanso y la actividad. La posibilidad de atracar una embarcación ligera en el jardín trasero distingue esta dirección, promoviendo un estilo de vida estrechamente vinculado al agua. Los 29 m² adicionales de espacio interior, distribuidos entre el sótano y la segunda planta, ofrecen margen para futuras adaptaciones; con pequeñas mejoras en las ventanas abuhardilladas, se podría añadir superficie habitable útil. Un espacio exterior vinculado a la vivienda, de unos 10 m², amplía la zona habitable hacia un refugio de tranquilidad.

Entre sus prestaciones destacan la conexión para TV, persianas exteriores, etiqueta energética D y la discreción y seguridad de la titularidad privada. Una propiedad definida por el legado y el potencial, diseñada para quienes valoran la autenticidad y el ritmo de vida junto a los canales de Róterdam.

Explora Róterdam con Baerz, tu asesor y buscador personal de propiedades de confianza

Navegar el dinámico mercado inmobiliario de Róterdam requiere asesores experimentados que combinen inteligencia local con un servicio internacional. El acceso discreto a propiedades fuera de mercado, estrategias de negociación a medida y un profundo conocimiento normativo permiten a compradores y vendedores sofisticados tomar decisiones precisas. Esta experiencia optimiza la inversión y protege los intereses en cada etapa del proceso.

Características

Transferencia de propiedad
Precio de Venta
€ 1.250.000 k.k.
Estado
beschikbaar
Aceptación
in overleg
Construcción
Tipo de casa
Eengezinswoning
Tipo de edificio
tussenwoning
Período de construcción
1927
Calificación energética
D
Tipo de techo
zadeldak
Dormitorios
4
Baños
1
Superficies y Volumen
Área de estar
119 m2
Otro espacio interior
29 m2
Espacio exterior adjunto al edificio
10 m2
Volumen en metros cúbicos
522 m3
Tamaño del terreno
226 m2
Instalaciones
Tv kabel
Buitenzonwering
Aan water
In woonwijk
Vrij uitzicht
Aan vaarwater
Baerz & Co Property Brochure

Folleto

Vídeos

J.J. Van Oosten Makelaardij BV

Straatweg 225
3054 AG Rotterdam

info@vanoostenmakelaardij.nl
+31 10 422 11 00

www.vanoostenmakelaardij.nl

Solicitud de información / Visita

Joris van Oosten profile image
Joris van Oosten
Real estate agent