VALKENBURG
Voorschoterweg 71 B - 2235 SG
Países Baixos

Frits Wilbrink profile image
Frits Wilbrink
Real estate agent
€1,175,000 k.k.
Área habitacional
162m2
Tamanho do terreno
655m2
Quartos de dormir
3

Descrição

Esta moradia geminada em Valkenburg ergue-se diretamente sobre a água, proporcionando uma experiência habitacional tranquila à beira-rio no coração da Randstad. A propriedade oferece 162 m² de áreas interiores requintadas num lote de 655 m², unificados por um jardim de design arquitetónico e um cais privado de dez metros no Velho Reno, oferecendo acesso facilitado em direção a Leiden e aos lagos Kagerplassen. A partir do jardim ensolarado pode aceder diretamente à água, tornando a navegação parte do quotidiano e ficando o Lago Valkenburg a curta distância a pé.

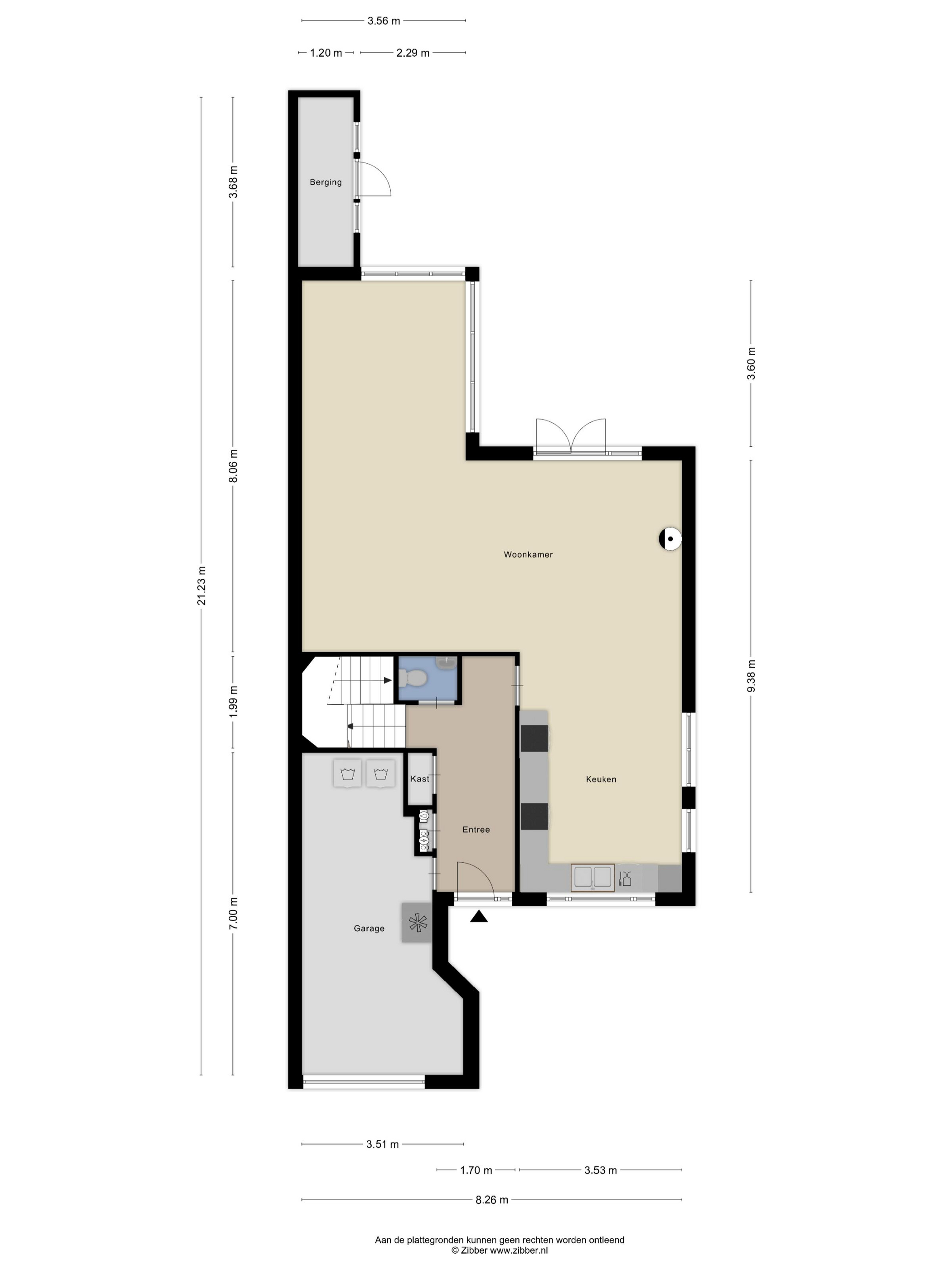
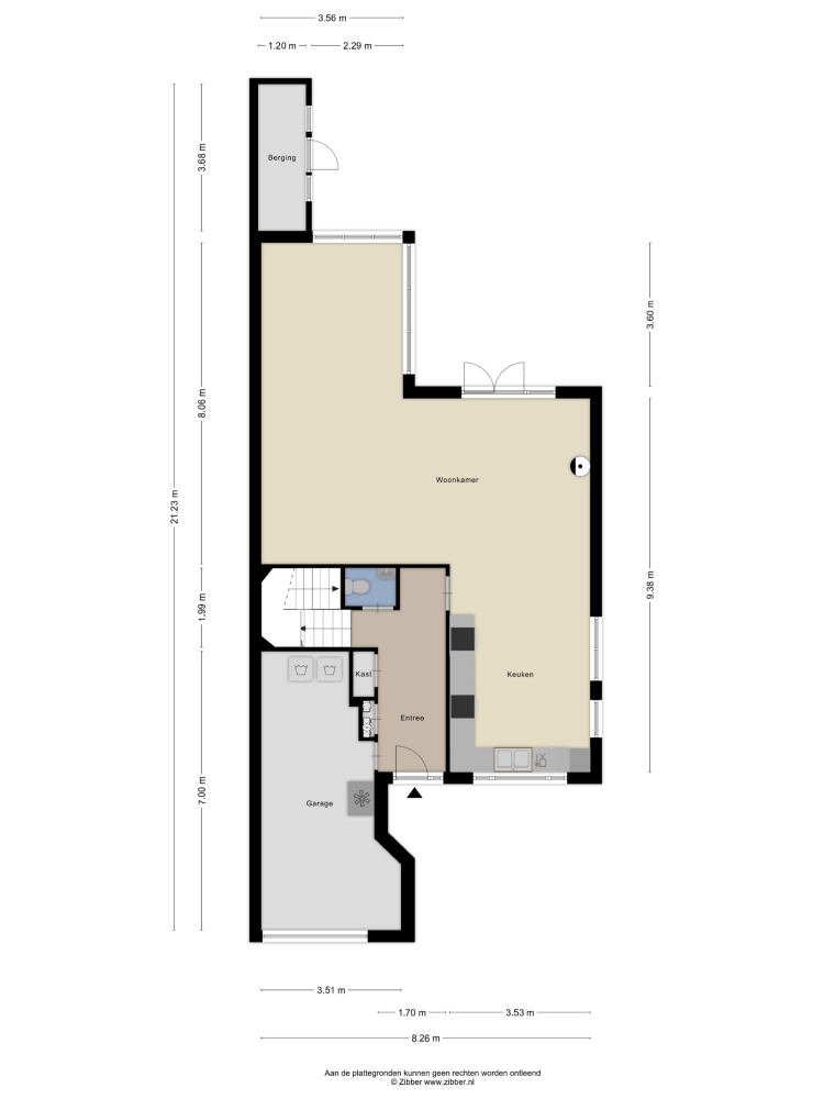
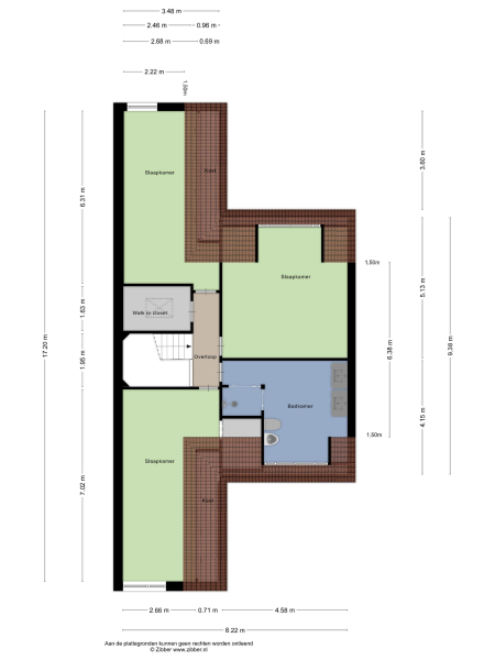
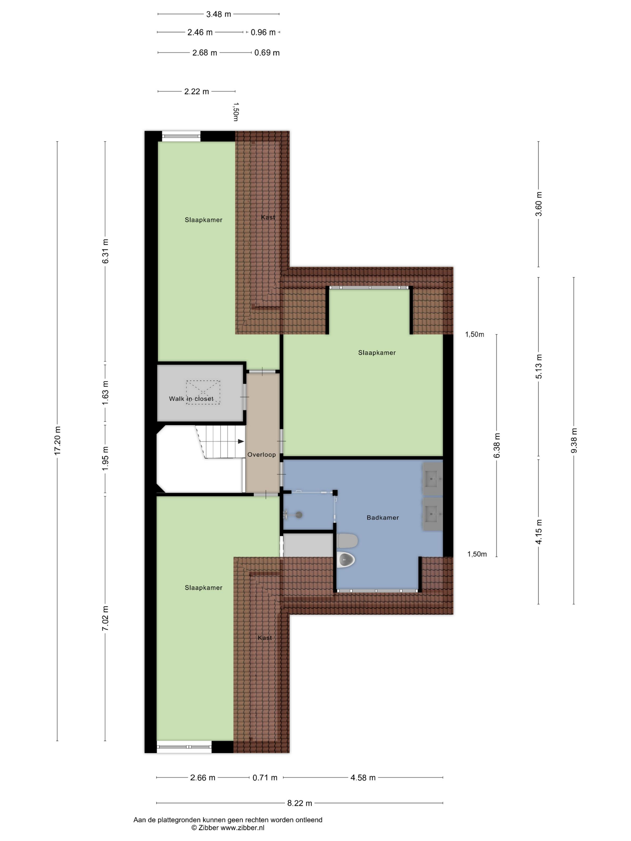
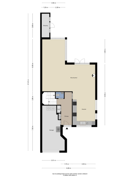
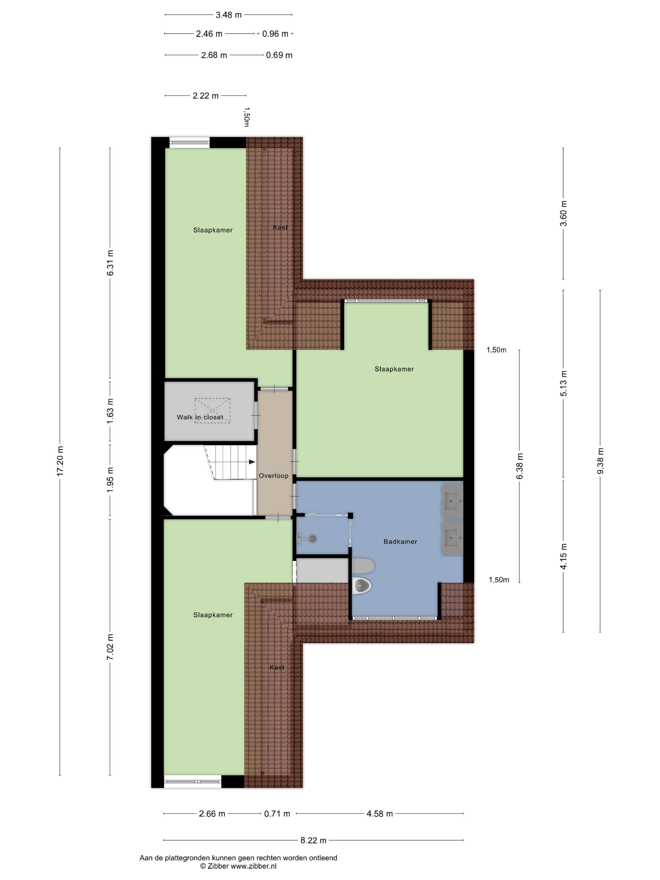
No interior, a moradia revela-se com um amplo hall de entrada que conduz a uma sala de estar luminosa. Grandes janelas e portas francesas destacam vistas para o jardim e para a água, complementadas por uma lareira a gás e aquecimento por piso radiante em todo o rés-do-chão. A cozinha oferece simultaneamente espaço funcional e um ponto de convívio, enquanto a garagem anexa dispõe de porta elétrica e ligações de utilidades dedicadas. No piso superior, três quartos e uma casa de banho de luxo de 2022 com aquecimento por piso radiante e duche ao nível do chão definem a zona privada. Um closet e um sótão de arrumação espaçoso acrescentam versatilidade, sendo possível criar facilmente um quarto adicional no futuro.

Os jardins paisagísticos da frente e das traseiras proporcionam espaços de sombra e sol, enriquecidos por um sistema automático de rega, uma arrecadação junto à água e estacionamento privativo para três carros. Com Certificação Energética B, vidro HR++ e acabamentos seguros, esta casa conjuga conforto e tranquilidade. Esta moradia de luxo à venda em Valkenburg está a poucos minutos do centro de Leiden, perto de escolas internacionais e a vinte minutos de Amesterdão, Schiphol e Haia, desfrutando de ligações perfeitas tanto para a vida familiar como profissional. Aqui, o quotidiano é definido pelo espaço, pela luz e pela presença subtil da água.

Explore Valkenburg com a Baerz, o Seu Confiável Consultor e Descobridor de Propriedades Pessoais

Consultores locais experientes são essenciais devido à diversidade arquitetónica e regulamentos patrimoniais da região, além de oportunidades exclusivas fora do mercado. Estes profissionais conhecem a história dos bairros, facilitam acesso privilegiado a imóveis e, com competências de negociação e rede de especialistas, proporcionam vantagens únicas em cada transação.

Evite armadilhas comuns

Os compradores internacionais muitas vezes desperdiçam tempo valioso em listagens online duplicadas, desatualizadas ou enganosas, especialmente porque quase 30% das casas de luxo nunca aparecem no mercado público. Os agentes do vendedor representam os interesses do vendedor, não do comprador. Mesmo solicitar informações sobre uma propriedade pode resultar num agente do vendedor registá-lo como seu “cliente” sem o seu consentimento.
Com a Baerz Property Finders & Advisors, evita completamente todas estas armadilhas. Trabalhamos exclusivamente em seu nome, oferecendo representação independente, orientação clara e acesso a todas as propriedades disponíveis, incluindo oportunidades fora do mercado que outros nunca chegam a ver.

Interessado num Consultor Pessoal de Propriedades?

Mostramos-lhe todas as casas disponíveis num só lugar. Sinta-se à vontade para nos contactar para saber como podemos atender às suas necessidades e proteger exclusivamente os seus interesses.

Características

Sistema de alarme
Transferência de propriedade
Preço pedido
€ 1.175.000 k.k.
Estado
beschikbaar
Aceitação
in overleg
Construção
Tipo de casa
Villa
Tipo de edifício
halfvrijstaande woning
Período de construção
1992
Classificação energética
B
Tipo de telhado
samengesteld dak
Quartos de dormir
3
Casas de banho
1
Áreas de superfície e volume
Área habitacional
162 m2
Outro espaço interior
43 m2
Volume em metros cúbicos
760 m3
Tamanho do terreno
655 m2
Instalações
Mechanische ventilatie
Alarminstallatie
Tv kabel
Buitenzonwering
Rookkanaal
Aan water
Beschutte ligging
Buiten bebouwde kom
Aan vaarwater
Baerz & Co Property Brochure

Brochura

Vídeos

Plantas

Wilbrink & v.d. Vlugt Makelaars

Heereweg 231
2161 BG Lisse

info@wilbrinkvandervlugt.nl
+31 252 41 90 49

www.onsaanbod.nl

Pedido de informação / visualização

Frits Wilbrink profile image
Frits Wilbrink
Real estate agent

Comprar um imóvel de luxo em Valkenburg

Valkenburg destaca-se pelo seu património, instalações sofisticadas e sentido de comunidade. Residentes e investidores beneficiam de serviços personalizados, ambiente cultural ativo e uma atmosfera internacional num destino holandês incomparável.