VALKENBURG
Voorschoterweg 71 B - 2235 SG
Ολλανδία

Frits Wilbrink profile image
Frits Wilbrink
Real estate agent
€1,175,000 k.k.
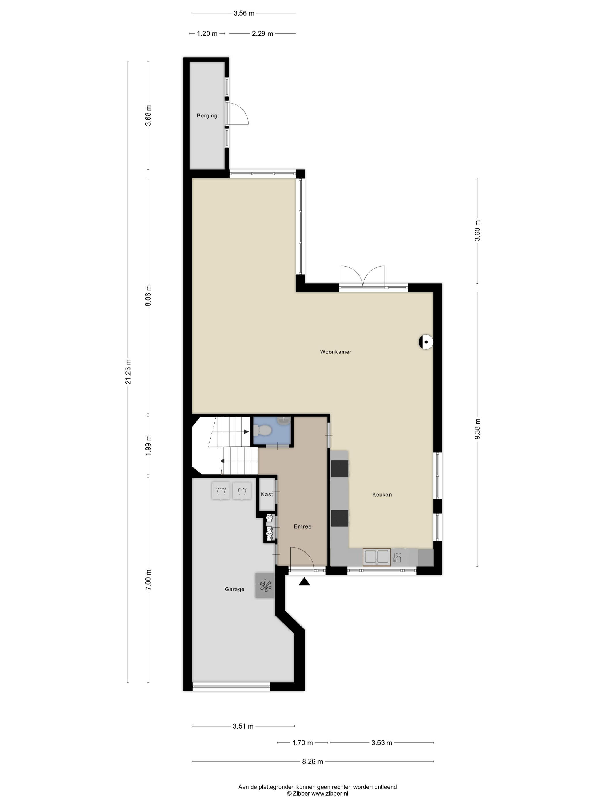
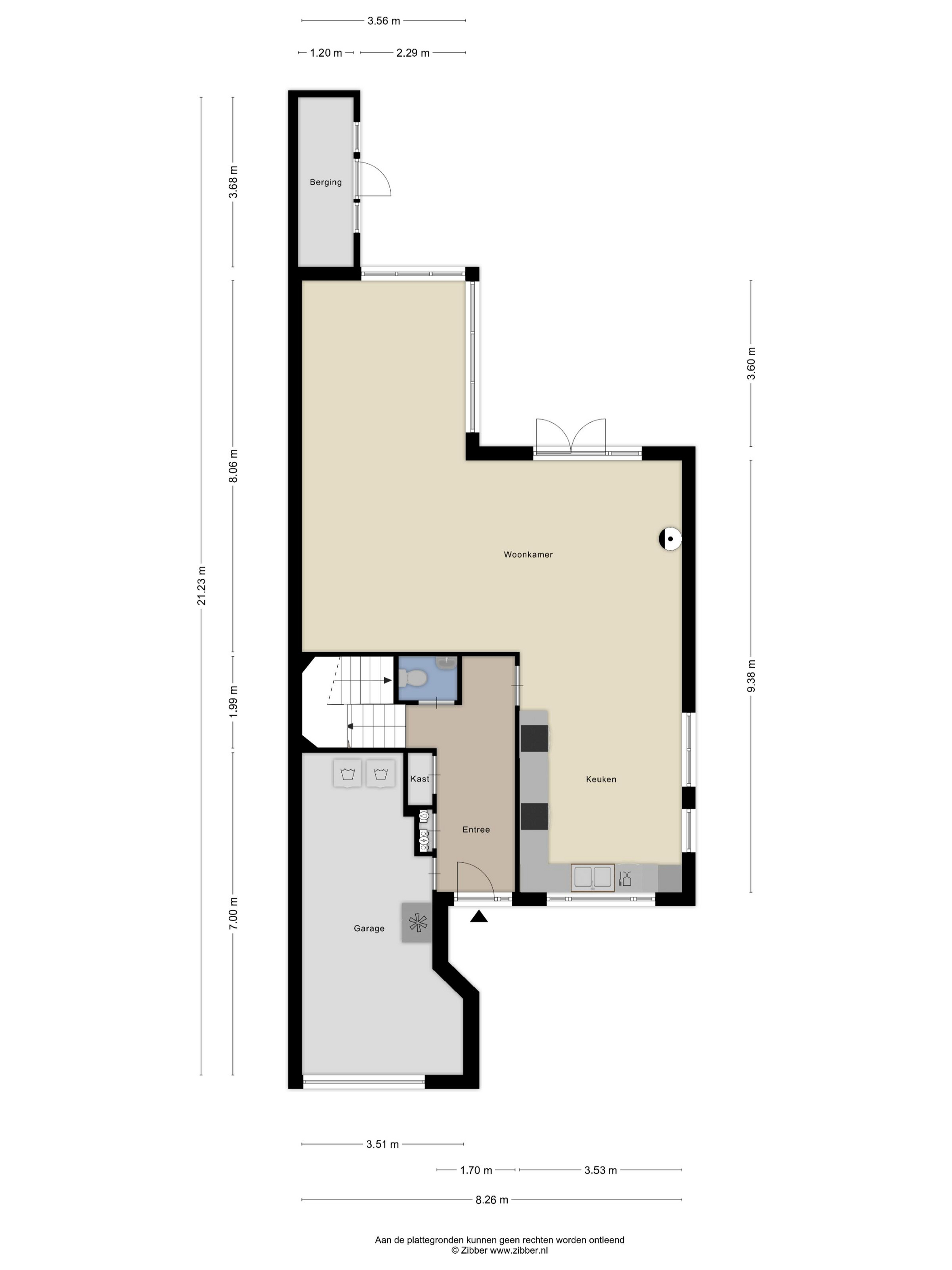
Χώρος διαβίωσης
162m2
Μέγεθος οικοπέδου
655m2
Υπνοδωμάτια
3

Περιγραφή

Αυτή η μεζονέτα στο Valkenburg βρίσκεται ακριβώς πάνω στο νερό, προσφέροντας ήρεμη διαβίωση δίπλα στη λίμνη στην καρδιά της Randstad. Το ακίνητο διαθέτει 162 τ.μ. εκλεπτυσμένων εσωτερικών χώρων σε οικόπεδο 655 τ.μ., ενοποιημένο με κήπο σχεδιασμένο από αρχιτέκτονα και ιδιωτική αποβάθρα δέκα μέτρων στον Oude Rijn, παρέχοντας αβίαστη πρόσβαση προς το Leiden και τις Kagerplassen. Μεταβείτε από την ηλιόλουστη αυλή κατευθείαν στο νερό, όπου η βαρκάδα γίνεται μέρος της καθημερινότητας και η λίμνη Valkenburg βρίσκεται σε κοντινή απόσταση με τα πόδια.

Στο εσωτερικό, το σπίτι υποδέχεται με ευρύχωρη είσοδο που οδηγεί στο φωτεινό σαλόνι. Μεγάλα παράθυρα και γαλλικές πόρτες φέρνουν τον κήπο και τη θέα στο νερό στο επίκεντρο, πλαισιωμένα από τζάκι υγραερίου και ενδοδαπέδια θέρμανση σε όλο το ισόγειο. Η κουζίνα αποτελεί ταυτόχρονα χώρο εργασίας και σημείο κοινωνικής συνεύρεσης, ενώ το ενσωματωμένο γκαράζ διαθέτει ηλεκτρική πόρτα και ειδικές συνδέσεις χρηστικών αναγκών. Στον επάνω όροφο, τρία υπνοδωμάτια και ένα πολυτελές μπάνιο του 2022 με ενδοδαπέδια θέρμανση και ντους με πρόσβαση χωρίς σκαλοπάτια συνθέτουν τον ιδιωτικό τομέα. Χώρος ενδυματολογίου και ευρύχωρη σοφίτα προσφέρουν ευελιξία, ενώ ένα μελλοντικό τέταρτο υπνοδωμάτιο μπορεί να διαμορφωθεί εύκολα.

Ο διαμορφωμένος μπροστινός και πίσω κήπος προσφέρουν ήλιο και σκιά, ενισχυμένοι με αυτόματο σύστημα ποτίσματος, αποθήκη δίπλα στο νερό και ιδιωτικότητα με χώρο στάθμευσης για τρία αυτοκίνητα εντός οικοπέδου. Με Ενεργειακή Ετικέτα B, τζάμια HR++ και αξιόπιστες λεπτομέρειες ασφαλείας, το σπίτι συνδυάζει άνεση και σιγουριά. Αυτή η πολυτελής βίλα προς πώληση στο Valkenburg απέχει λίγα λεπτά από το κέντρο του Leiden, κοντά σε διεθνή σχολεία και μέσα σε είκοσι λεπτά από το Άμστερνταμ, το Schiphol και τη Χάγη, προσφέροντας άμεση σύνδεση για οικογενειακή και επαγγελματική ζωή. Εδώ, η καθημερινότητα ορίζεται από τον χώρο, το φως και τη διακριτική παρουσία του νερού.

Εξερευνήστε Valkenburg με την Baerz, τον Αξιόπιστο Προσωπικό σας Σύμβουλο Ακινήτων

Η συνεργασία με έμπειρους τοπικούς συμβούλους είναι ανεκτίμητη λόγω της ποικιλίας αρχιτεκτονικής, των περιορισμών διατήρησης και των ευκαιριών off-market. Οι ειδικοί προσφέρουν γνώση της ιστορίας κάθε γειτονιάς και πρόσβαση σε αποκλειστικό χαρτοφυλάκιο. Οι διαπραγματευτικές τους δεξιότητες και οι σχέσεις με ειδικούς (π.χ. αρχιτέκτονες κληρονομίας) παρέχουν ουσιαστικό πλεονέκτημα, διασφαλίζοντας άψογη και στρατηγικά κατευθυνόμενη συναλλαγή.

Αποφύγετε τα κοινά λάθη

Οι διεθνείς αγοραστές συχνά σπαταλούν πολύτιμο χρόνο σε διπλές, παρωχημένες ή παραπλανητικές διαδικτυακές καταχωρίσεις, ειδικά αφού σχεδόν 30% των πολυτελών κατοικιών δεν εμφανίζονται ποτέ στη δημόσια αγορά. Οι μεσίτες πωλητών εκπροσωπούν τα συμφέροντα του πωλητή, όχι του αγοραστή. Ακόμη και η αίτηση πληροφοριών για ένα ακίνητο μπορεί να οδηγήσει σε έναν μεσίτη πωλητή να σας καταγράψει ως «πελάτη» τους χωρίς τη συγκατάθεσή σας.
Με τους Baerz Property Finders & Advisors, αποφεύγετε εντελώς όλες αυτές τις παγίδες. Εργαζόμαστε αποκλειστικά για λογαριασμό σας, προσφέροντας ανεξάρτητη εκπροσώπηση, σαφή καθοδήγηση και πρόσβαση σε όλα τα διαθέσιμα ακίνητα, συμπεριλαμβανομένων ευκαιριών εκτός αγοράς που άλλοι δεν βλέπουν ποτέ.

Ενδιαφέρεστε για έναν Προσωπικό Σύμβουλο Ακινήτων;

Σας δείχνουμε όλα τα διαθέσιμα σπίτια σε ένα μέρος. Μη διστάσετε να επικοινωνήσετε μαζί μας για να μάθετε πώς μπορούμε να καλύψουμε τις ανάγκες σας και να προστατεύσουμε τα συμφέροντά σας αποκλειστικά.

Χαρακτηριστικά

Σύστημα συναγερμού
Μεταβίβαση ιδιοκτησίας
Τιμή ζήτησης
€ 1.175.000 k.k.
Κατάσταση
beschikbaar
Αποδοχή
in overleg
Κατασκευή
Είδος σπιτιού
Villa
Τύπος κτιρίου
halfvrijstaande woning
Περίοδος κατασκευής
1992
Ενεργειακή απόδοση
B
Τύπος στέγης
samengesteld dak
Υπνοδωμάτια
3
Μπάνια
1
Επιφάνειες και Όγκος
Χώρος διαβίωσης
162 m2
Άλλος εσωτερικός χώρος
43 m2
Όγκος σε κυβικά μέτρα
760 m3
Μέγεθος οικοπέδου
655 m2
Εγκαταστάσεις
Mechanische ventilatie
Alarminstallatie
Tv kabel
Buitenzonwering
Rookkanaal
Aan water
Beschutte ligging
Buiten bebouwde kom
Aan vaarwater
Baerz & Co Property Brochure

Μπροσούρα

Βίντεο

Κατόψεις

Wilbrink & v.d. Vlugt Makelaars

Heereweg 231
2161 BG Lisse

info@wilbrinkvandervlugt.nl
+31 252 41 90 49

www.onsaanbod.nl

Αίτηση πληροφοριών / προβολής

Frits Wilbrink profile image
Frits Wilbrink
Real estate agent

Αγορά πολυτελούς ακινήτου στο Valkenburg

Η Φάλκενμπουργκ ξεχωρίζει για την πλούσια κληρονομιά, τις εκλεπτυσμένες παροχές και τη συνοχή της κοινότητας. Κάτοικοι και επενδυτές απολαμβάνουν εξατομικευμένες υπηρεσίες, ζωντανό πολιτιστικό περιβάλλον και διεθνή ατμόσφαιρα στη μοναδική αυτή ολλανδική πόλη.