VALKENBURG
Voorschoterweg 71 B - 2235 SG
Niederlande

Frits Wilbrink profile image
Frits Wilbrink
Real estate agent
€1,175,000 k.k.
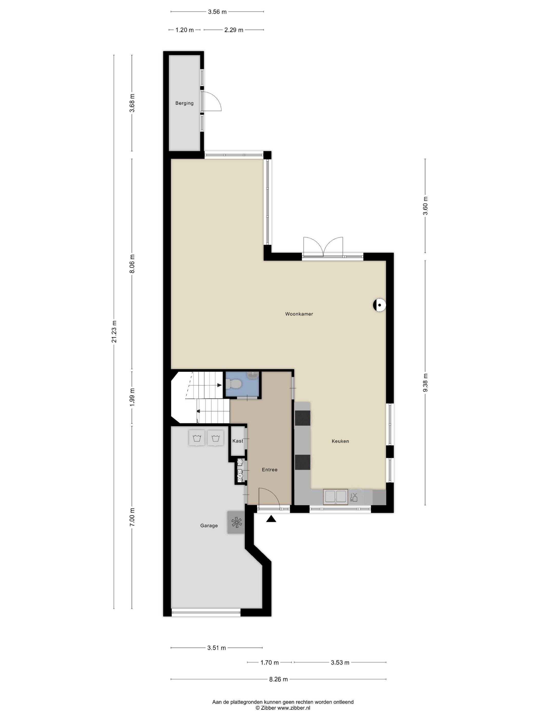
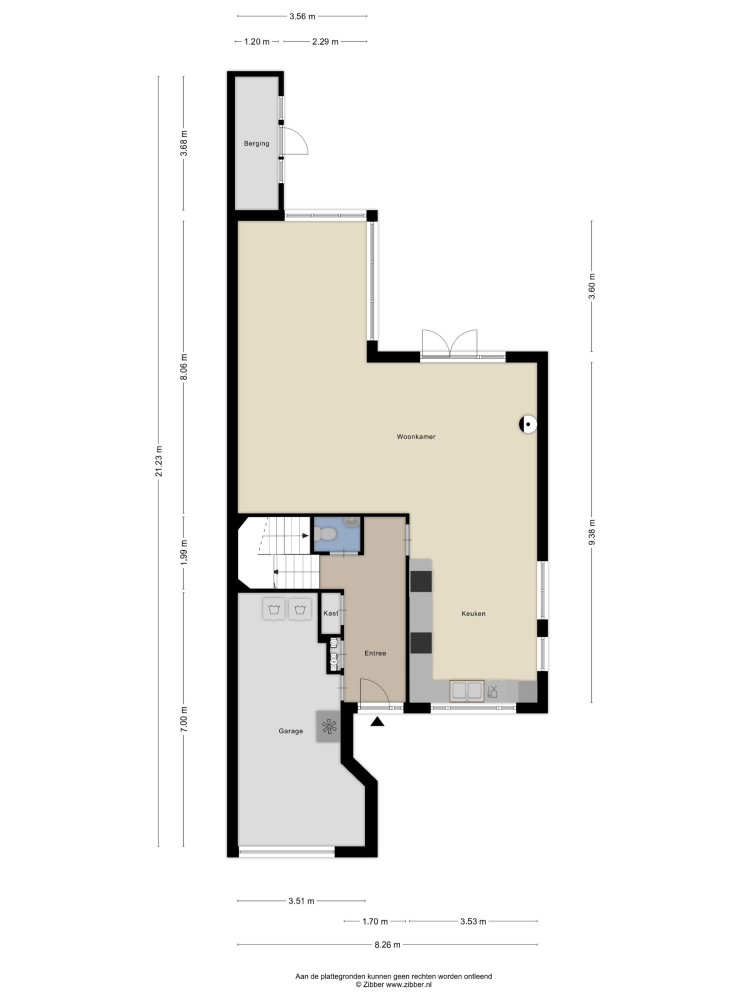
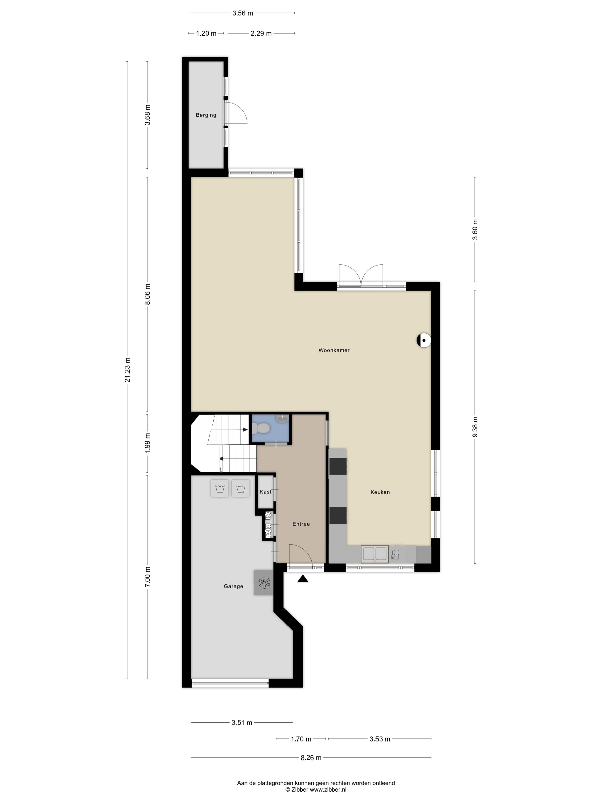
Wohnfläche
162m2
Grundstücksgröße
655m2
Schlafzimmer
3

Beschreibung

Diese Doppelhaushälfte in Valkenburg liegt direkt am Wasser und bietet ruhiges Wohnen am Ufer, mitten im Herzen der Randstad. Das Anwesen umfasst 162 m² elegant gestalteten Wohnraum auf einem 655 m² großen Grundstück, vereint durch einen architektonisch gestalteten Garten und einen zehn Meter langen privaten Bootssteg an der Alten Rijn mit komfortablem Zugang Richtung Leiden und den Kagerplassen. Aus dem sonnigen Garten gelangen Sie direkt ans Wasser, Bootfahren wird Teil des Alltags, und der Valkenburger See ist fußläufig erreichbar.

Innen empfängt Sie die Villa mit einer großzügigen Diele, die in ein lichtdurchflutetes Wohnzimmer führt. Große Fensterfronten und französische Türen lassen den Blick auf Garten und Wasser eindrucksvoll wirken, ergänzt durch einen Gaskamin und Fußbodenheizung im gesamten Erdgeschoss. Die Küche bietet Raum zum Kochen und für Begegnungen, während die angeschlossene Garage mit elektrischem Tor und eigenen Anschlüssen ausgestattet ist. Im Obergeschoss befinden sich drei Schlafzimmer sowie ein luxuriöses Bad mit Fußbodenheizung und begehbarer Dusche aus 2022, die den privaten Bereich abrunden. Ein begehbarer Kleiderschrank und ein großzügiger Stauraum im Dachgeschoss sorgen für zusätzliche Flexibilität, zudem lässt sich problemlos ein viertes Schlafzimmer realisieren.

Die angelegte Vorgarten- und Rückgartenfläche bietet sonnige und schattige Bereiche, unterstützt von automatischer Beregnungsanlage, einem Schuppen direkt am Wasser und der Privatsphäre eigener Parkplätze für drei Autos. Mit Energieeffizienzklasse B, HR++ Verglasung und gesicherten Ausstattungen verbindet dieses Haus Komfort mit Sicherheit. Diese exklusive Villa zum Verkauf in Valkenburg liegt nur wenige Minuten vom Zentrum Leidens entfernt, nahe internationaler Schulen, sowie weniger als zwanzig Minuten von Amsterdam, Schiphol und Den Haag, perfekt vernetzt für Familien- und Berufsleben. Hier bestimmen Raum, Licht und die leise Präsenz des Wassers das luxuriöse Wohnen.

Entdecken Sie Falkenburg mit Baerz, Ihrem vertrauenswürdigen persönlichen Immobilienfinder & Berater

Der Wert erfahrener, ortskundiger Berater liegt in Valkenburgs vielfältiger Bausubstanz und diskreten Off-Market-Chancen. Experten bieten Einblicke in Geschichte und Potenzial der Lagen, verschaffen Zugang zu unveröffentlichtem Angebot und sichern mit Verhandlungsgeschick und Netzwerken, etwa zu Denkmalschutzarchitekten, einen klaren Vorteil.

Vermeiden Sie häufige Fallstricke

Internationale Käufer verschwenden oft wertvolle Zeit mit doppelten, veralteten oder irreführenden Online-Angeboten, insbesondere da fast 30% der Luxusimmobilien nie auf dem öffentlichen Markt erscheinen. Verkäufermakler vertreten die Interessen des Verkäufers, nicht die des Käufers. Selbst die Anfrage nach Informationen zu einer Immobilie kann dazu führen, dass ein Verkäufermakler Sie ohne Ihre Zustimmung als seinen „Kunden“ registriert.
Mit Baerz Property Finders & Advisors vermeiden Sie all diese Fallstricke vollständig. Wir arbeiten ausschließlich in Ihrem Auftrag, bieten unabhängige Vertretung, klare Beratung und Zugang zu allen verfügbaren Immobilien, einschließlich Off-Market-Möglichkeiten, die andere nie zu sehen bekommen.

Interessiert an einem Personal Property Advisor?

Wir zeigen Ihnen alle verfügbaren Häuser an einem Ort. Kontaktieren Sie uns gerne, um zu erfahren, wie wir Ihre Bedürfnisse erfüllen und Ihre Interessen exklusiv schützen können.

Merkmale

Alarmsystem
Eigentumsübertragung
Verkaufspreis
€ 1.175.000 k.k.
Status
beschikbaar
Annahme
in overleg
Bau
Art des Hauses
Villa
Gebäudetyp
halfvrijstaande woning
Bauzeitraum
1992
Energieeffizienzklasse
B
Dachtyp
samengesteld dak
Schlafzimmer
3
Badezimmer
1
Oberflächen und Volumen
Wohnfläche
162 m2
Anderer Innenbereich
43 m2
Volumen in Kubikmetern
760 m3
Grundstücksgröße
655 m2
Einrichtungen
Mechanische ventilatie
Alarminstallatie
Tv kabel
Buitenzonwering
Rookkanaal
Aan water
Beschutte ligging
Buiten bebouwde kom
Aan vaarwater
Baerz & Co Property Brochure

Broschüre

Videos

Grundrisse

Wilbrink & v.d. Vlugt Makelaars

Heereweg 231
2161 BG Lisse

info@wilbrinkvandervlugt.nl
+31 252 41 90 49

www.onsaanbod.nl

Information / Besichtigungsanfrage

Frits Wilbrink profile image
Frits Wilbrink
Real estate agent

Kauf einer Luxusimmobilie in Falkenburg

Valkenburg überzeugt durch wertvolles Kulturerbe, exklusive Angebote und eine engagierte Gemeinschaft. Bewohner und Investoren profitieren von maßgeschneiderten Services, lebendiger Kulturszene und internationalem Flair in einer der charaktervollsten Städte der Niederlande.