VALKENBURG
Voorschoterweg 71 B - 2235 SG
Netherlands

Frits Wilbrink profile image
Frits Wilbrink
Real estate agent
€1,175,000 k.k.
Living Area
162m2
Plot Size
655m2
Bedrooms
3

Description

THIS PROPERTY IS PARTICIPATING IN THE NVM OPEN HOUSE DAY! ON MARCH 28 BETWEEN 11:00 AM AND
3:00 PM, YOU ARE WELCOME TO VIEW THE PROPERTY WITHOUT OBLIGATION, NO APPOINTMENT NECESSARY.

Lovely living by the water

In a central location lies this spacious semi-detached villa with an architecturally landscaped garden and a private jetty no less than 10 meters wide. From your backyard you can take a boat on the Old Rhine towards Leiden, the Braassemmermeer or the Kagerplassen. With Lake Valkenburg within walking distance and all daily amenities within easy reach, you can enjoy the best of both worlds here: space and comfort, combined with a central location.

- 3 bedrooms (possibility of 4)
- large luxurious bathroom
- near everyday amenities
- parking on own ground

Built in 1992, living area 162m2, capacity 760m3, plot 655m2

We take you along...

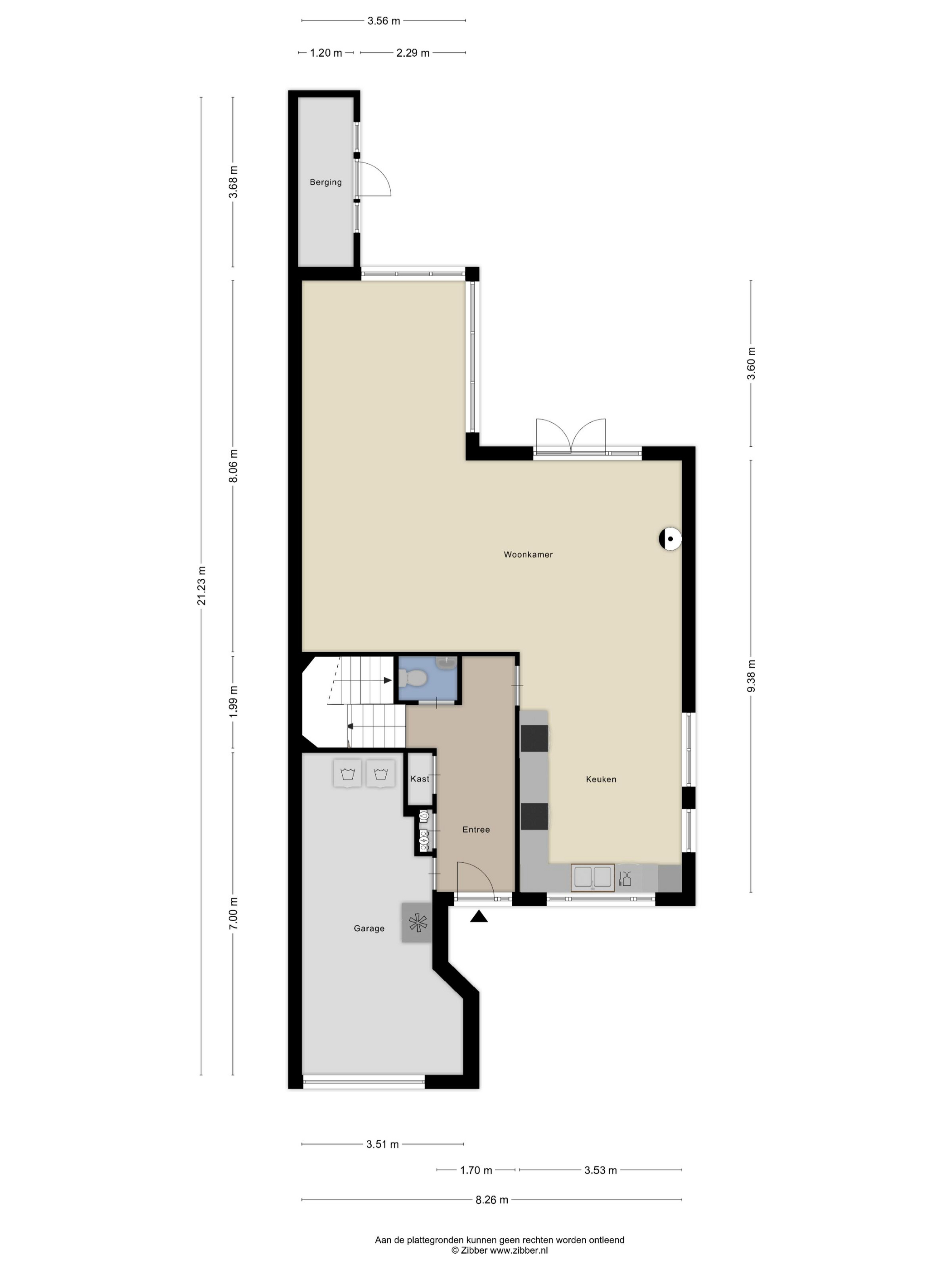
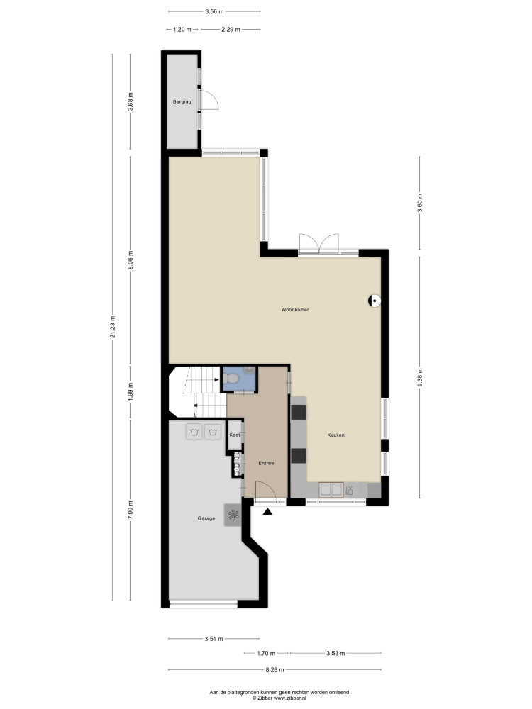
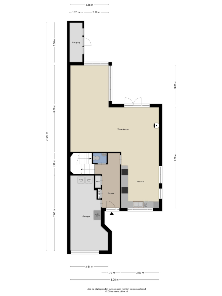
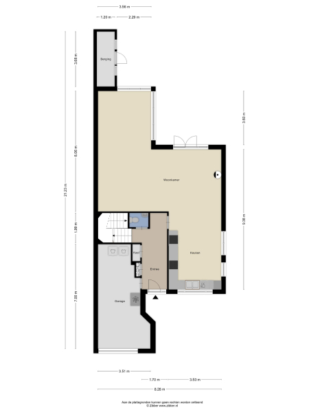
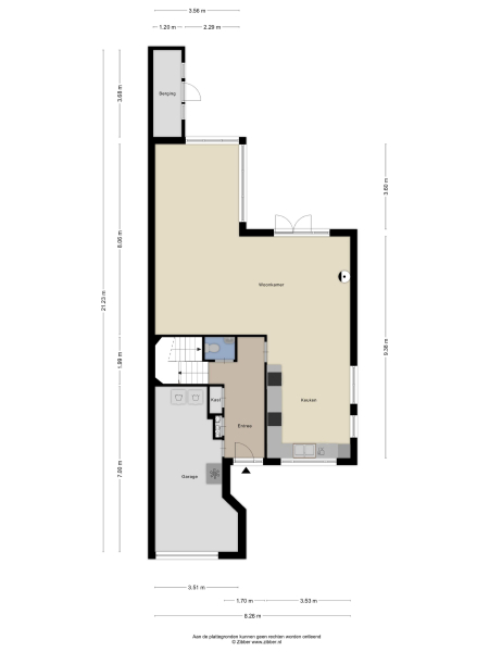
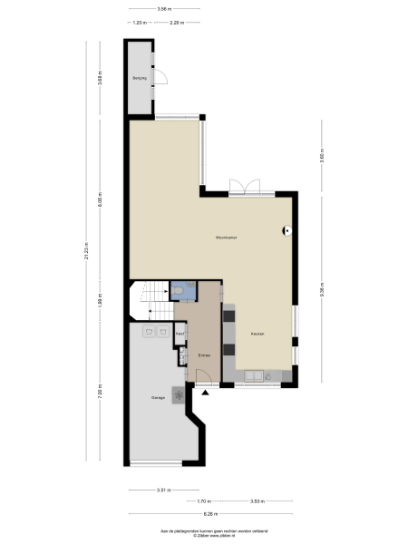
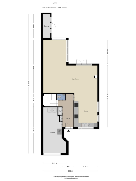
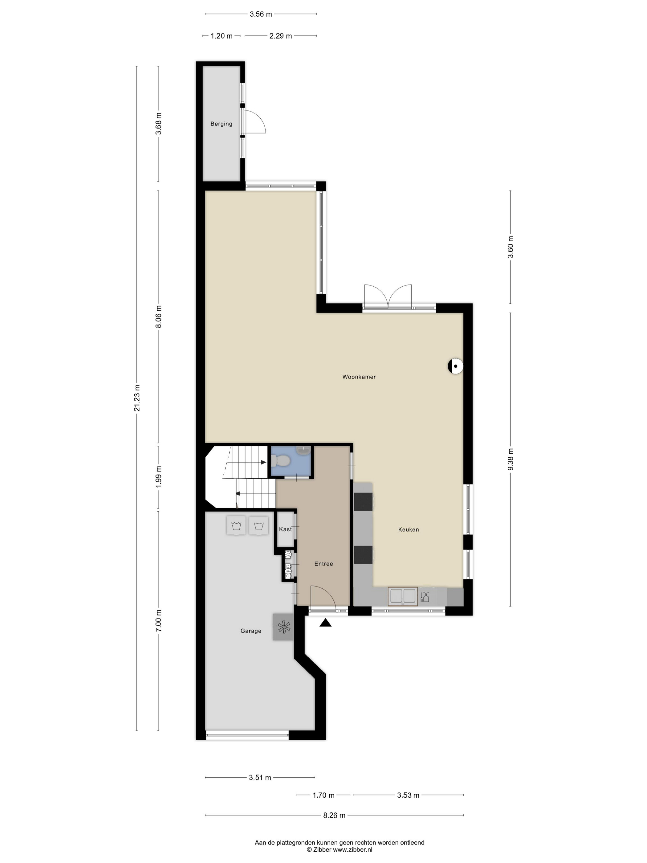
Ground floor
You enter a spacious hall with closet, toilet and stairs to the second floor. The attractive and spacious living room features a gas-fired fireplace and French doors to the sunny garden. Large windows provide a beautiful light.
The spacious kitchen is equipped with various appliances and offers plenty of space for cooking and dining together. From the hall you have access to the garage with electric door, where also the connection for washing equipment is realized.
The entire ground floor has underfloor heating.

Second floor
Here you will find three spacious bedrooms, two with dormer windows. The luxurious bathroom (2022) is a real eye-catcher, equipped with underfloor heating, walk-in shower and double sink with cabinet. The floor also features a practical walk-in closet.

Storage loft
Via a loft ladder you reach the spacious storage loft, perfect for storing seasonal items. Here is also the central heating system. There is enough space in the attic to create one or two extra rooms.

Outside Area
The beautifully landscaped, sunny backyard borders directly on water of the Old Rhine and features a shed and a private jetty. In the front yard is a cozy terrace. In the afternoon and evening you can relax in the sun. The entire garden is equipped with a sprinkler system. In the front garden is parking for three cars on site.

Location
The house is centrally located with the bustling city center and the CS station of Leiden at a short distance. Also Amsterdam, Schiphol and The Hague can be reached in about 20 minutes. For families there are several schools in Leiden and international schools in Wassenaar, Oegstgeest and Voorschoten. Water sports enthusiasts can indulge themselves with boating water right at home and the Valkenburg Lake within walking distance.

Sustainability
This well-maintained house was built in 1992 and fully insulated. Equipped with HR++ glass on the first floor and even HR++ glass on the first floor, plastic and aluminum window frames with crack sealing and comfortable floor heating on the ground floor and in the bathroom. Energy label B is available.

Details
• Luxury bathroom from 2022
• On the attic is easily a fourth bedroom to realize
• Private jetty 10 meters wide
• Large, sunny garden on water
• Ample parking on site
• Alarm system available
• Centrally located near schools, stores and roads
• Energy label B
________________________________________
A unique opportunity to live generously, comfortably and directly on the water in the Randstad. Contact us soon for a viewing!

Features

Alarm system
Transfer of ownership
Asking Price
€ 1.175.000 k.k.
Status
beschikbaar
Acceptance
in overleg
Construction
Kind of house
Villa
Building type
halfvrijstaande woning
Construction period
1992
Energy rating
B
Roof type
samengesteld dak
Bedrooms
3
Bathrooms
1
Surface Areas And Volume
Living Area
162 m2
Other indoor space
43 m2
Volume in cubic meters
760 m3
Plot Size
655 m2
Facilities
Mechanische ventilatie
Alarminstallatie
Tv kabel
Buitenzonwering
Rookkanaal
Aan water
Beschutte ligging
Buiten bebouwde kom
Aan vaarwater
Baerz & Co Property Brochure

Brochure

Videos

Floor Plans

Wilbrink & v.d. Vlugt Makelaars

Heereweg 231
2161 BG Lisse

info@wilbrinkvandervlugt.nl
+31 252 41 90 49

www.onsaanbod.nl

Information / Viewing request

Frits Wilbrink profile image
Frits Wilbrink
Real estate agent

Buying a Luxury Property in Valkenburg

Valkenburg stands out for its rich heritage, refined amenities, and cohesive community. Residents and investors benefit from tailored services, an engaging cultural landscape, and an international atmosphere within this distinctive Dutch locale.