BAARLE-NASSAU
Kapelstraat 28 - 5111 HK
Netherlands

Andy Tjokrokoesoemo profile image
Andy Tjokrokoesoemo
Real Estate Agent
€1,485,000 k.k.
Living Area
216m2
Plot Size
7265m2
Bedrooms
3

Description

Deze unieke onder architectuur gebouwde villa is werkelijk van alle gemakken voorzien. U kunt hier wonen in luxe zonder op te vallen en dat in een groene omgeving tussen Breda en Tilburg. Deze slimme villa zit boordevol techniek en domotica, heeft een uiterst gunstig energielabel (A++++) en heeft een royale parkachtige tuin. Achter op het perceel staat een ruime schuur die middels een kleine aanpassing is op te bouwen tot paardenstal.

Middels de keurig aangelegde voortuin met oprit en parkeerplaatsen voor meerdere auto’s, bereikt u de entree van de woning. De hal is voorzien van een garderobe, meterkast en inbouwverlichting. Vanuit de hal heeft u toegang tot de verdieping, de souterrain en de woonkamer.

BEGANE GROND

De woonkamer is voorzien van een keramische tegelvloer met vloerverwarming, inbouwverlichting, plafondverwarming en een gashaard. Door de grote glasgevel aan de achterzijde van het huis komt er veel natuurlijk lichtinval de woning binnen. Dankzij de grote glasgevel staat u vanuit de woonkamer altijd in verbinding met de tuin.

De woonkeuken is uitgevoerd in een rechte opstelling met een wand vol met apparatuur van Miele. De keuken is voorzien van een inbouwkoffiemachine, stoomoven, bakoven, magnetron, vaatwasser, koelkast, vriezer, 4-pits gaskookplaat met wok brander, afzuigkap en een dubbele gootsteen met Quooker. Door het gebruik van natuursteen en hout heeft deze keuken een landelijk karakter.

Over ieder detail in dit huis is nagedacht. De looplijn van de keuken naar de plek waar de eettafel staat loopt achter de gashaard langs. U loopt dus als het ware achter de zitkamer langs zodat u niemand hoeft te storen.

Vanuit de keuken heeft u toegang tot een achterportaal met garderobe en toiletruimte. Via het achterportaal heeft u via een glazen doorgang toegang tot de ruime garage. U hoeft dus nooit door de wind of de regen naar uw auto te lopen.

De eerste slaapkamer van het huis bevindt zich op de begane grond. Deze kamer is voorzien van een keramische tegelvloer met vloerverwarming, inbouwkasten, inbouwverlichting, badkamer en suite en heeft een fijn uitzicht op de tuin.

Doordat er gebruik is gemaakt van de juiste kleuren en materialen voelt deze badkamer als een oase van rust. De badkamer is voorzien van een ligbad, inloopdouche, vloerverwarming, wandcloset en een dubbele wastafel met fraai meubel.

Middels de trapopgang op de hal bereikt u de overloop, slaapkamers en badkamer op de eerste verdieping.

VERDIEPING

Op de eerste verdieping zijn aan beide kanten van het huis slaapkamers gecreëerd. Deze twee slaapkamers staan met elkaar in verbinding middels een “brug” vanwaar u een prachtig uitzicht heeft over de tuin. Doordat de brug is voorzien van een balustrade van glas heeft het bouwelement een luchtig karakter.

De tweede badkamer is volledig betegeld en voorzien van een wastafel met meubel, wandcloset en douche.

SOUTERRAIN

Onder de grond is deze woning gecompartimenteerd in verschillende ruimtes. De grote (werk)kamer is wellicht de mooiste eyecatcher van het souterrain. De glasgevel van boven loopt helemaal door tot deze kamer. Hierdoor kunt u ook in deze kamer optimaal genieten van daglichttoetreding en ervaart u ook ondergronds het binnen/buitengevoel. Indien gewenst is deze kamer ook te gebruiken als slaapkamer. Middels een relatief kleine aanpassing kan er ook een badkamer ensuite gerealiseerd worden.

Verder vindt u in het souterrain een wijnkamer/berging, wasplaats en een technische ruimte. De wasplaats is voorzien van inbouwkasten en aansluitingen voor de wasmachine en droogkast.

De technische ruimte biedt plaatst aan de opstelplaats van de grondwarmtepomp, centraal stofzuigsysteem en WTW-systeem.

Alle ruimtes in het souterrain zijn voorzien van dezelfde tegelvloer.

TUIN

De onder architectuur aangelegde en geheel omsloten parkachtige tuin heeft ontzettend veel fijne plekjes waar u heerlijk van het buitenleven kunt genieten. Vanaf het grote terras met overkapping heeft u een mooi uitzicht over de grote vijver met fontein en loopbrug.

De volwassen beplanting, de groenborders en het gazon worden besproeid via een door domotica aangestuurd sprinkler systeem die is aangesloten op een grondwaterput. Het geheel wordt in de avond mooi verlicht middels een zorgvuldig opgebouwd lichtplan.

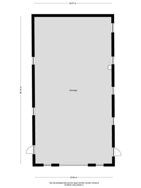
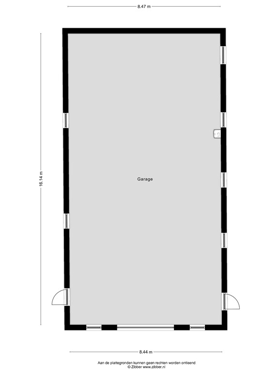
SCHUUR & GARAGE

Achter op het perceel staat een grote schuur met op het dak maar liefst 64 pv-panelen die volledig uit het zicht van het woonhuis zijn onttrokken. Deze schuur kan na een aanpassing uitstekend fungeren als bijvoorbeeld een paardenstal om hobbymatig paarden aan huis te houden. Een gedeelte van de tuin kan ingericht worden als paardenweide.

De garage die middels een glazen doorgang met het woonhuis is verbonden is net zoals het hoofdverblijf voorzien van een rieten dak. De dubbele garage heeft elektrisch bedienbare segmentdeuren en biedt plaats aan twee auto’s.

WONEN IN BAARLE

Het dorp “Baarle” bestaat uit de Nederlandse gemeente Baarle-Nassau en de Belgische gemeente Baarle-Hertog. Het dorp ligt midden in de groene driehoek tussen Breda, Tilburg en Turnhout. Men noemt Baarle ook weleens het merkwaardigste dorp ter wereld. Dit komt doordat het dorp uit maar liefst 30 enclaves bestaat! 22 Belgische en 8 Nederlandse enclaves maakt dat Baarle de ‘World capital of Enclaves’ is.

Wonen in Baarle is wonen in een dorp met veel voorzieningen. Zo zijn er onder andere Nederlandse en Belgische kinderopvanglocaties, basisscholen, voetbalclubs, tennisverenigingen en huisartsen. Ook is er een Nederlandse hockey en atletiekvereniging, middelbare school en zijn er diverse supermarkten zoals een Albert Heijn, Jumbo en Aldi. Aan horeca, bakkers, drogisterijen en detailhandel is in Baarle ook voldoende aanbod.

Liefhebbers van natuur zijn in Baarle ook goed op hun plek. De omgeving kent mooie wandelroutes, fietsroutes en prachtige natuurgebieden.

BIJZONDERHEDEN

- Bouwjaar 2014;
- Energielabel A++++;
- Woonoppervlak: 216m2;
- Bruto inhoud: 991m3;
- Perceeloppervlak: 7.265m2;
- Voorzien van domotica;
- Levensloopbestendig wonen;
- Mogelijkheid om paarden te houden;
- NEN 2580 meetrapport beschikbaar;
- Gelegen op een locatie nabij voorzieningen en uitvalswegen.
Van Baarle Makelaardij heeft alle informatie in deze advertentie met de grootst mogelijke zorgvuldigheid samengesteld. Ondanks de betrachte zorgvuldigheid kan de gepubliceerde informatie onvolledig of onjuist zijn. Van Baarle Makelaardij aanvaard geen enkele aansprakelijkheid voor enige onvolledigheid, onjuistheid of anderszins dan wel gevolgen daarvan. U kunt ons uiteraard helpen de informatie correct te houden. Onjuistheden of tips kunt u telefonisch of per e-mail aan ons doorgeven.

Features

Solar panels
Alarm system
Garage
Transfer of ownership
Asking Price
€ 1.485.000 k.k.
Status
Available
Acceptance
In Concert
Reference
171
Construction
Kind of house
Villa
Building type
Detached House
Construction period
2014
Energy rating
A++
Bedrooms
3
Bathrooms
2
Surface Areas And Volume
Living Area
216 m2
Other indoor space
51 m2
Exterior space attached to the buildinge
8 m2
External storage space
190 m2
Volume in cubic meters
990 m3
Plot Size
7265 m2
Facilities
Alarm
Fibreopticcable
Garage
Garden
Homeautomation
Solarpanels
Storageroom
Baerz & Co Property Brochure

Brochure

Videos

Van Baarle Makelaardij

Hoogbraak 1
5111 CS Baarle-Nassau

andy@vanbaarlemakelaardij.com
+31 013762 02 02

www.vanbaarlemakelaardij.com

Information / Viewing request

Andy Tjokrokoesoemo profile image
Andy Tjokrokoesoemo
Real Estate Agent

Buying a Luxury Property in Baarle-Nassau

Baarle-Nassau offers a blend of heritage, global connections, and elevated living. Distinct architecture, cultural richness, and tailored property services define the community’s enduring international appeal.