 
	        		 
								Statig herenhuis met een stoer karakter – royale benedenwoning met uitzicht over het Westerkanaal
Aan de charmante Schiemanstraat 10 verrijst momenteel een karaktervol herenhuis, volledig nieuw opgebouwd in de stijl van een New Yorks pakhuis. De gevel is klassiek en stoer tegelijk, met lange, slanke stenen van 40 cm, symmetrische raampartijen en hoogwaardige aluminium kozijnen in RAL 6006. Binnen ervaar je het comfort en de duurzaamheid van nu – met een energielabel A+++, een all-electric installatie en overal triple glas in ultradunne profielen.
Het pand bestaat uit vijf woonlagen en wordt opgedeeld in een royale beneden- en bovenwoning. Deze benedenwoning heeft een eigen entree, een indrukwekkende begane grondverdieping en een volwaardig souterrain – samen goed voor circa 100 m² aan woonoppervlakte. De ligging aan het water en de hoge raampartijen zorgen voor veel daglicht en een bijzondere woonbeleving.
De woning wordt casco opgeleverd met een duurzame technische basis: vloerverwarming én -koeling, een luchtwarmtepomp, mechanische ventilatie en zonnepanelen. De verdere afwerking is geheel naar eigen smaak te realiseren. Ter inspiratie ontvang je als koper twee uur kosteloos interieuradvies van Co van der Horst.
Indeling
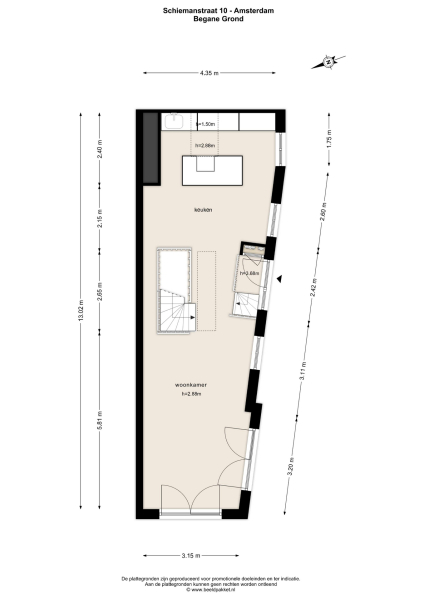
Begane grond
De bel-etage heeft een indrukwekkende plafondhoogte van bijna 2,90 meter. Grote raampartijen en een brede harmonicapui aan de waterzijde zorgen voor veel licht en een directe verbinding tussen binnen en buiten. Aan de gevel wordt een inklapbaar bankje geplaatst – een slimme manier om ook zonder buitenruimte tóch van het uitzicht en de zon te genieten. Deze verdieping leent zich perfect voor een ruime woonkamer en een royale open keuken.
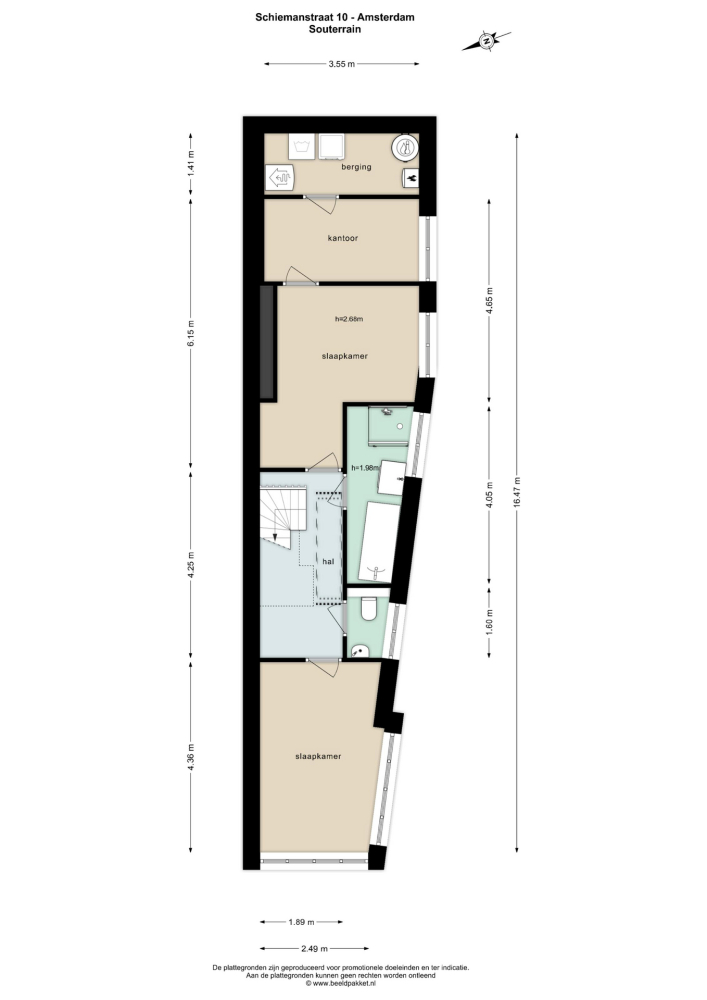
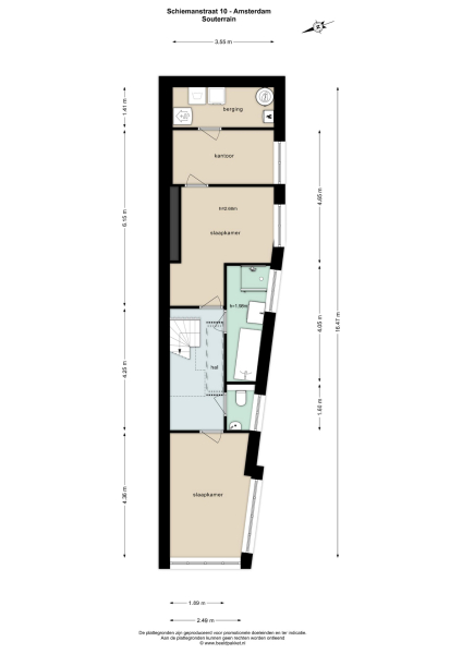
Souterrain
Met een comfortabele plafondhoogte van circa 2,68 meter is het souterrain een volwaardige woonlaag. Hier bevinden zich twee slaapkamers, een aparte toiletruimte, een ruime badkamer, een werkruimte en een berging met aansluitingen voor wasmachine en droger. Ook is hier ruimte voor de technische installaties.
Omgeving
Schiemanstraat 10 ligt aan een rustige kade aan het Westerkanaal, in de historische binnenstad van Amsterdam. Alles wat de stad bijzonder maakt, ligt op loopafstand. Op een paar minuten lopen vind je het Haarlemmerplein, de Haarlemmerstraat en het Westerpark – stuk voor stuk geliefde plekken vanwege hun mix van cultuur, horeca, markten en winkels.
Ook qua bereikbaarheid is de locatie ideaal. Station Amsterdam Centraal, de ring A10 en het openbaar vervoer zijn allemaal snel bereikbaar.
Bijzonderheden
•	Statig herenhuis in pakhuisstijl met slechts twee woningen
•	Woonoppervlakte benedenwoning ca. 100 m²
•	Eigen entree en uitzicht over het Westerkanaal
•	Volledig nieuwbouw op eigen grond
•	Energielabel A+++
•	Ultradunne aluminium kozijnen in RAL 6006, met triple glas
•	Luchtwarmtepomp met vloerverwarming én -koeling
•	Mechanische ventilatie en zonnepanelen
•	Casco oplevering – afbouw naar eigen inzicht
•	Souterrain met plafondhoogte van ca. 2,68 m
•	Begane grond met plafondhoogte van ca. 2,90 m
•	Slimme buitenoplossing: inklapbankje aan zijgevel
•	2 uur professioneel interieuradvies via Co van der Horst
•	Notariskeuze aan koper (mits binnen regio Amsterdam en gebruik model Ring Amsterdam)
•	Deze informatie is door ons met de nodige zorgvuldigheid samengesteld. Onzerzijds wordt echter geen enkele aansprakelijkheid aanvaard voor enige onvolledigheid, onjuistheid of anderszins, dan wel de gevolgen daarvan. Alle opgegeven maten en oppervlakten zijn indicatief. Van toepassing zijn de NVM voorwaarden.